Giữa nhịp sống hiền hòa của vùng đất sương sa Bến Tre, một công trình nhà cấp 4 mái Nhật mang hơi thở đương đại vừa được ra mắt, đánh dấu sự kết hợp hoàn mỹ giữa tư duy con người và trí tuệ nhân tạo. Đó là tổ ấm của gia đình anh Hà được Min Home chắt lọc từ những xu hướng kiến trúc mới nhất, mang đến định nghĩa mới về sự sang trọng và tiện nghi.
Thông tin mẫu nhà cấp 4 mái Nhật hiện đại ở Bến Tre
| Chủ đầu tư: Anh Nguyễn Đông Hà | Địa chỉ: Phú Nhuận, TP Bến Tre |
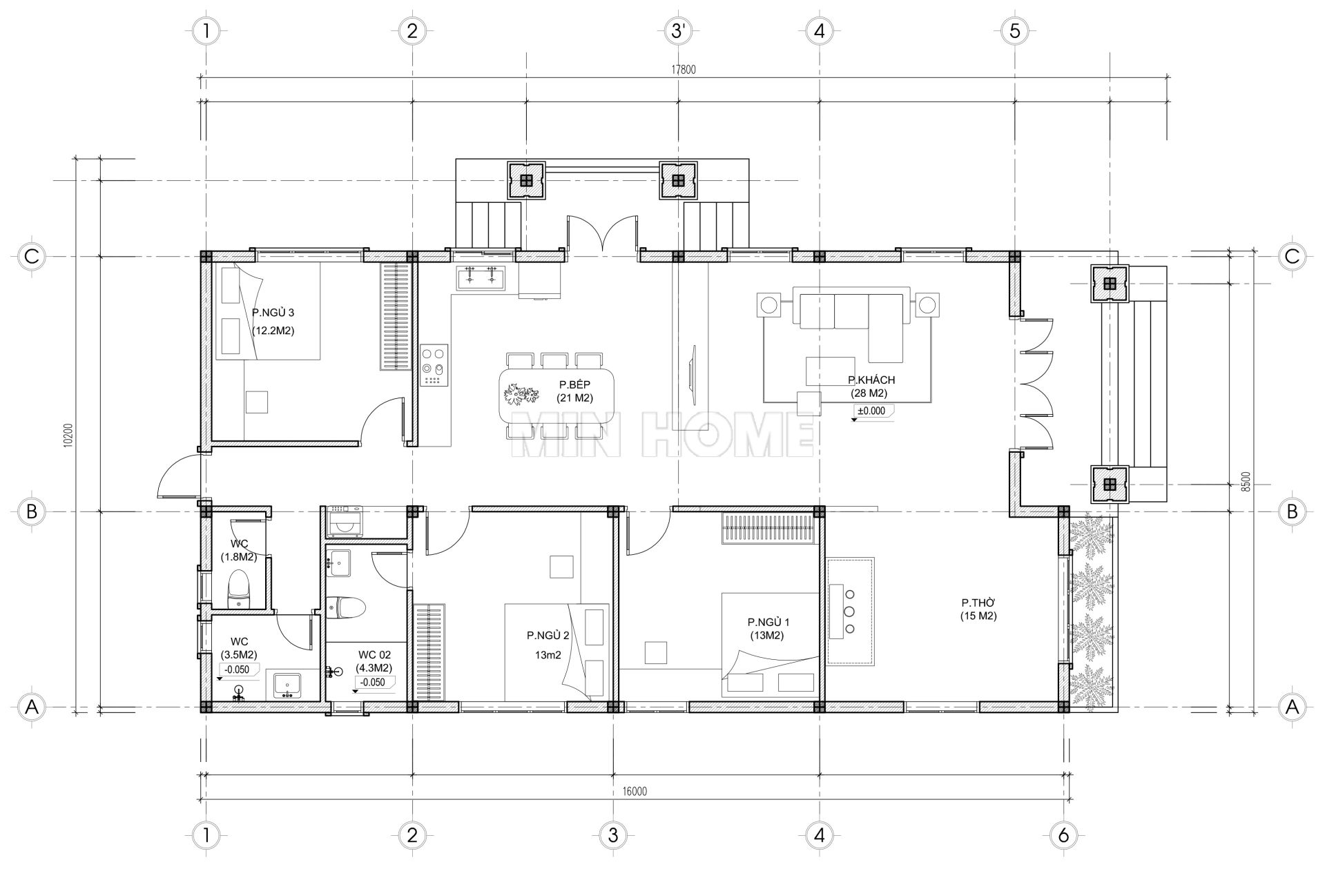
| Mặt tiền: 10,2m | Kích thước xây dựng: 10,2 x 17,8m |
| Số tầng: 1 tầng | Loại hình: Nhà mái Nhật hiện đại |
| Tổng diện tích: 138m2 | |
| Công năng: Phòng khách, phòng thờ, phòng bếp, 3 phòng ngủ, 2 wc, 1 phòng tắm | |
| Đơn vị thiết kế: CÔNG TY TNHH THIẾT KẾ & XÂY DỰNG MINHOME | |
Sắc trắng tinh khôi gặp xanh than đẳng cấp ở mẫu nhà đẹp
Ngay từ cái nhìn đầu tiên, ngôi nhà cấp 4 mái Nhật của anh Hà đã gây ấn tượng mạnh bởi bảng màu thời thượng. Trên nền sơn trắng chủ đạo, đội ngũ kiến trúc sư Min Home cùng sự hỗ trợ của các thuật toán AI đã lựa chọn tone màu xanh than làm điểm nhấn. Đây không chỉ là một lựa chọn ngẫu nhiên vì sắc xanh than đại diện cho sự tĩnh lặng, sâu lắng nhưng cực kỳ nam tính và bền bỉ.

Điểm xuyết trên các diện tường là hệ thống chỉ âm tường được tính toán tỉ lệ vàng. Những đường rãnh ngang chạy bao quanh công trình tạo nên một nhịp điệu thị giác liền mạch, giúp xóa bỏ sự đơn điệu thường thấy của những mảng tường lớn. Sự đồng điệu về màu sắc giữa các rãnh chỉ và hệ mái Nhật phía trên tạo nên một tổng thể tone-sur-tone cực kỳ tinh tế, minh chứng cho việc ứng dụng công nghệ trong việc phối màu chuẩn xác đến từng pixel.

Tại Min Home, chúng tôi tin rằng vẻ đẹp bền vững nằm ở vật liệu. Phần chân tường được bảo vệ bởi lớp gạch ốp xám sẫm màu không chỉ có tác dụng chống rêu mốc trước khí hậu nóng ẩm của miền Tây mà còn tạo cảm giác an cư lạc nghiệp với chân đế vững chãi.

Bên cạnh đó, việc sử dụng gạch Inax cao cấp tại các vị trí chiến lược như khung cửa sổ và cột trụ là một bước đi đầy dụng ý cho mẫu nhà cấp 4. Với bề mặt vân sần tự nhiên, loại vật liệu này tạo ra những khoảng tối sáng sinh động khi ánh nắng mặt trời phản chiếu, mang đến chiều sâu và cái hồn cho phong cách kiến trúc hiện đại.

Mẫu nhà cấp 4 mái Nhật của anh Hà có ba lối tiếp cận linh hoạt để ngôi nhà luôn được đảm bảo lưu thông không khí tuyệt vời. Trọng tâm của bộ mặt ngôi nhà vườn với hệ cửa thép vân gỗ sang trọng. Những đường chạm khắc giả gỗ tinh xảo không chỉ đảm bảo an ninh mà còn mang lại cảm giác ấm áp, thân thiện ngay khi bước vào.

Min Home đã tối ưu hóa việc sử dụng nhôm kính cao cấp cho sảnh phụ và cửa hậu. Những ô cửa kính lớn như những bức tranh thiên nhiên sống động, xóa nhòa ranh giới giữa bên trong và bên ngoài, cho phép gia chủ tận hưởng trọn vẹn khu vườn xanh mát bao quanh.
Đặc biệt, hệ mái Nhật xanh than cũng được tính toán độ dốc lý tưởng bởi công nghệ AI của Min Home. Điều này giúp tối ưu hóa khả năng thoát nước vào mùa mưa và chống nóng hiệu quả vào mùa hè, phù hợp hoàn hảo với khí hậu đặc trưng của Bến Tre.
Ứng dụng AI vào bố trí công năng nhà cấp 4 mái Nhật
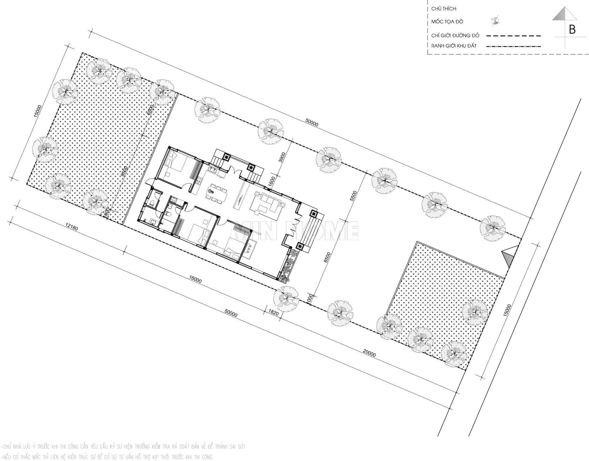
Trên khuôn viên đất lý tưởng 15x50m, Min Home đã tư vấn cho anh Hà lùi công trình nhà cấp 4 mái Nhật về phía sau. Cách bố trí này tạo ra một khoảng sân trước rộng thênh thang để trẻ em có thể thỏa sức vui chơi và cũng là khoảng đệm hoàn hảo tách biệt không gian nghỉ ngơi khỏi tiếng ồn phố thị.

Bước qua sảnh chính, khách quý sẽ được đón tiếp tại phòng khách sang trọng rộng 28m2, nơi ánh sáng tự nhiên luôn tràn ngập nhờ hệ cửa lớn. Kết nối gián tiếp với không gian này là khu vực phòng thờ 15m2 được đặt tại vị trí trang trọng nhất hướng ra mặt tiền để đảm bảo tính tôn nghiêm và phong thủy cho gia chủ.

Trái tim của ngôi nhà nằm ở khu vực bếp và phòng ăn rộng 21m2, một không gian mở liên thông trực tiếp với sảnh phụ giúp việc luân chuyển không khí trở nên hoàn hảo và xóa tan nỗi lo ám mùi khi nấu nướng. Để đảm bảo sự yên tĩnh tối đa cho việc nghỉ ngơi, hệ thống 3 phòng ngủ được khéo léo bố trí về phía cuối nhà. Trong khi phòng ngủ 01 và 02 sở hữu diện tích đối xứng 13m2 thì phòng ngủ 03 rộng 12,2m2 cũng được chăm chút kỹ lưỡng về mặt ánh sáng. Điểm nhấn trong thiết kế công năng chính là sự tách biệt tinh tế giữa các khu vực vệ sinh: một phòng vệ sinh Master riêng tư cùng hệ thống vệ sinh chung được chia nhỏ thành khu vực tắm và khu vực vệ sinh riêng biệt. Cách bố trí thông minh này không chỉ gia tăng tính thẩm mỹ mà còn giúp nhịp sống của gia đình đông thành viên trở nên linh hoạt và thuận tiện hơn bao giờ hết.








