Giữa xu hướng tìm kiếm những mẫu nhà đẹp, tiện nghi nhưng vẫn tiết kiệm chi phí, mẫu nhà cấp 4 mái Nhật mặt tiền 7m tại Đồng Nai đang trở thành lựa chọn được nhiều gia chủ yêu thích. Với thiết kế hiện đại pha nét truyền thống, công trình không chỉ mang đến vẻ đẹp thanh thoát, sang trọng mà còn đáp ứng tối ưu công năng sử dụng trên mọi diện tích đất. Mời bạn cùng tham khảo mẫu thiết kế nhà đẹp dưới đây nhé!
Thông tin nhà cấp 4 mái Nhật hiện đại
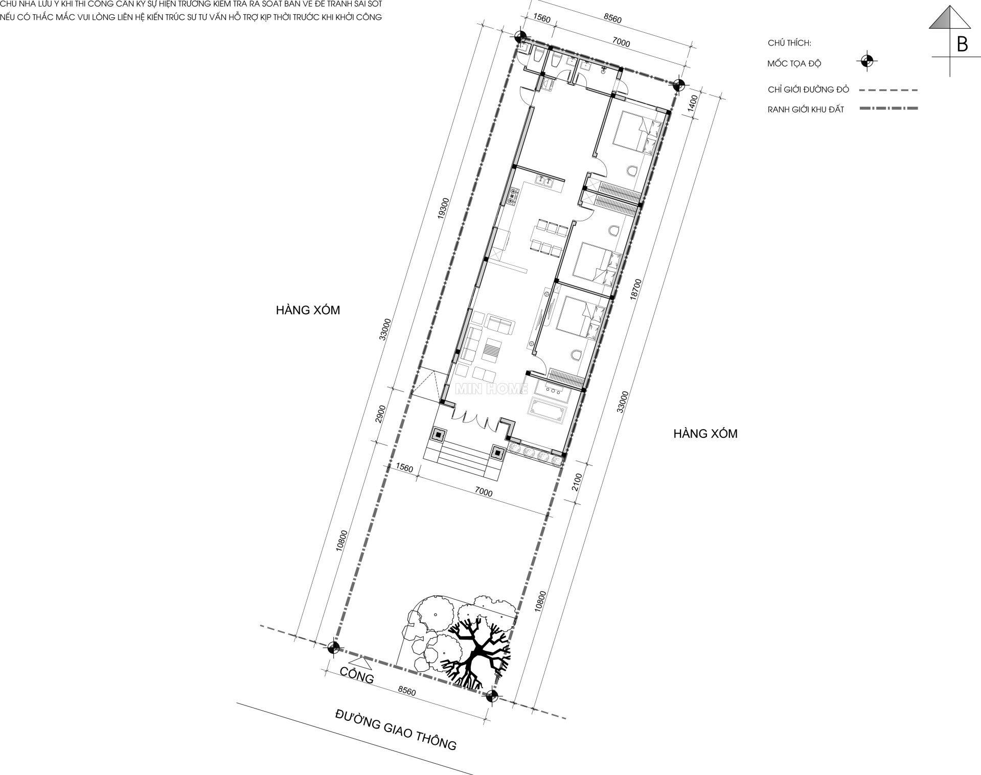
| Chủ đầu tư: Anh Nguyễn Xuân Tuấn | Địa chỉ: Xuân Tâm, Xuân Lộc, Đồng Nai |
| Mặt tiền: 7m | Kích thước xây dựng: 7m x 22,3m |
| Số tầng: 1 tầng | Loại hình: Nhà mái Nhật hiện đại |
| Tổng diện tích: 154m2 | |
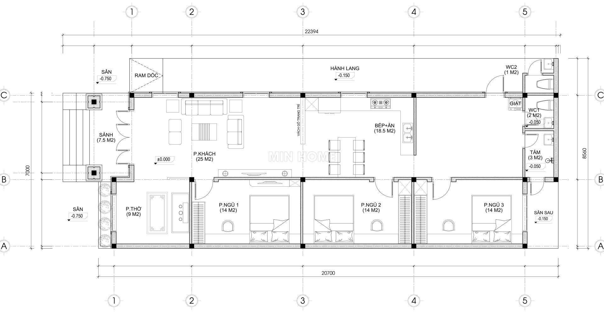
| Công năng: Phòng khách, phòng thờ, phòng bếp, 3 phòng ngủ, 2 wc, 1 phòng tắm | |
| Đơn vị thiết kế: CÔNG TY TNHH THIẾT KẾ & XÂY DỰNG MINHOME | |
Mẫu nhà cấp 4 mái Nhật đẹp sang trọng, tinh tế đến từng chi tiết
Mẫu nhà cấp 4 mái Nhật được thiết kế theo phong cách hiện đại, vừa đảm bảo công năng sử dụng tối ưu, vừa thể hiện gu thẩm mỹ tinh tế và cá tính riêng của gia chủ. Dựa trên mong muốn và phong cách sống của chủ đầu tư, đội ngũ kiến trúc sư Maxhome đã dành nhiều tâm huyết trong từng chi tiết thiết kế, từ bố cục tổng thể đến cách lựa chọn vật liệu và màu sắc. Tất cả nhằm mang đến một không gian sống tiện nghi, thoáng đãng, đồng thời gắn kết hài hòa với thiên nhiên xung quanh, tạo nên tổ ấm lý tưởng cho cả gia đình.

Thiết kế nhà cấp 4 mái Nhật sở hữu vẻ đẹp tinh giản nhưng đầy sức hút, thể hiện sự giao hòa hoàn hảo giữa phong cách kiến trúc hiện đại và nét gần gũi tự nhiên. Tông màu chủ đạo trắng tinh khôi được kết hợp khéo léo với sắc ghi điểm xuyết ở một số mảng tường mặt tiền, tạo nên hiệu ứng thị giác nhã nhặn mà vẫn ấn tượng. Toàn bộ phần sơn tường được sử dụng dòng sơn cao cấp Maxhome, nổi bật với các đặc tính vượt trội như khả năng chống hấp thụ nhiệt, chống thấm tối đa và ngăn ngừa hiệu quả sự phát triển của rêu mốc, nấm khuẩn, giúp công trình luôn bền đẹp theo thời gian.

Tỷ lệ hình khối, chiều cao và các chi tiết trang trí của mẫu nhà cấp 4 mái Nhật hiện đại được xử lý tinh tế, tạo nên bố cục kiến trúc hài hòa và cân đối. Nổi bật trong tổng thể công trình là hệ cột trụ vuông vức với dáng vẻ khỏe khoắn, được nhấn nhá bằng các đường rãnh lõm tinh xảo và sơn màu ghi trang nhã, góp phần tăng thêm chiều sâu thẩm mỹ cho mặt tiền. Theo phong thủy, cột trụ vuông tượng trưng cho sự vững chãi, ổn định và thịnh vượng, giúp thu hút năng lượng tích cực, mang lại may mắn và tài lộc cho gia chủ. Đây không chỉ là chi tiết kiến trúc mang tính thẩm mỹ mà còn là yếu tố phong thủy quan trọng, góp phần hoàn thiện vẻ đẹp toàn diện của ngôi nhà.

Toàn bộ hệ thống cửa còn lại của ngôi nhà được thiết kế từ kính cường lực kết hợp khung nhôm Xingfa cao cấp, mang đến vẻ đẹp hiện đại, sang trọng và đảm bảo độ bền vượt trội theo thời gian. Kính cường lực là vật liệu được ưa chuộng trong kiến trúc hiện đại nhờ khả năng chịu lực cao, tính an toàn tốt, dễ lau chùi và chống bám bẩn hiệu quả. Bên cạnh đó, việc sử dụng các khung cửa kính kích thước lớn giúp không gian nội thất luôn ngập tràn ánh sáng tự nhiên, mang lại cảm giác rộng mở, thoáng đãng, đồng thời giúp tiết kiệm điện năng chiếu sáng và điều hòa không khí.

Mặc dù sở hữu mặt tiền chỉ 7m, nhưng các kiến trúc sư Maxhome đã khéo léo tối ưu hóa không gian, mang đến một mẫu nhà vườn cấp 4 mái Nhật vừa khoa học trong bố trí công năng, vừa đạt hiệu quả thẩm mỹ cao. Điểm nhấn nổi bật của thiết kế là phần ram dốc được bố trí bên hông nhà, giúp thuận tiện cho việc di chuyển, đặc biệt phù hợp với người cao tuổi, trẻ nhỏ hoặc xe đẩy.

Phần mái Nhật được thiết kế tinh tế và chuẩn tỷ lệ, với những đường nét gọn gàng, thanh thoát, mang lại vẻ đẹp hiện đại mà vẫn giữ được nét truyền thống đặc trưng. Kiến trúc mái được tính toán độ dốc vừa phải, phù hợp với điều kiện khí hậu nhiệt đới ẩm gió mùa của Việt Nam, giúp thoát nước nhanh chóng, hạn chế tối đa tình trạng thấm dột hay rêu mốc theo thời gian.
Bên cạnh đó, hệ thống thoát nước mưa được bố trí khéo léo dọc theo viền mái, đảm bảo tính thẩm mỹ và hiệu quả kỹ thuật, giúp bảo vệ tường, mái và nền móng khỏi hư hại do nước mưa. Với kết cấu mái chắc chắn, cùng lớp ngói màu ghi xanh hiện đại được lợp tỉ mỉ, công trình không chỉ bền vững theo thời gian mà còn tôn lên vẻ sang trọng, tinh tế cho tổng thể ngôi nhà.

Ngôi nhà cấp 4 mái Nhật được thiết kế và xây dựng theo hướng Nam, một hướng được đánh giá cao về phong thủy vì giúp đón nhận ánh sáng tự nhiên vừa đủ, tạo không gian sống mát mẻ vào mùa hè và ấm áp vào mùa đông. Công trình có kích thước 7m x 22,3m, với tổng diện tích sử dụng khoảng 154m².

Bước vào từ sảnh chính, bạn sẽ gặp ngay khu vực phòng khách rộng rãi. Phòng thờ được bố trí liền kề, nằm ở vị trí trang trọng và hướng theo trục chính của ngôi nhà, đảm bảo sự tôn nghiêm và phù hợp với yếu tố phong thủy.
Tiếp nối là khu vực phòng bếp và ăn uống, được sắp xếp gọn gàng và tiện nghi. Hướng bếp được đặt theo hướng Đông, một hướng được cho là mang lại sự may mắn và thịnh vượng cho gia đình. Không gian bếp được thiết kế mở hoặc có cửa thông ra sân sau, giúp tạo sự thông thoáng, loại bỏ mùi thức ăn và mang lại cảm giác dễ chịu khi sử dụng.

Không gian tiếp theo là ba phòng ngủ được bố trí khoa học và hợp lý, đảm bảo sự riêng tư và tiện nghi cho các thành viên trong gia đình. Mỗi phòng đều được thiết kế để tối ưu hóa diện tích, đồng thời tận dụng ánh sáng tự nhiên, mang lại không gian nghỉ ngơi thoải mái và thư giãn. Nhà vệ sinh chung và một phòng tắm riêng biệt, đảm bảo đáp ứng nhu cầu sinh hoạt của gia đình đông người mà không gây cảm giác bất tiện.










