Nhà cấp 4 mái Nhật 3 phòng ngủ đang trở thành xu hướng được nhiều người yêu thích nhờ sự kết hợp giữa công năng tiện nghi và thẩm mỹ tinh tế. Với kiến trúc đơn giản, nhưng vẫn đảm bảo vẻ đẹp sang trọng, và đáp ứng hoàn hảo nhu cầu của các gia đình Việt. Cùng Min Home khám phá mẫu thiết kế nhà đẹp này qua công trình của gia đình anh Loan dưới đây, để có thêm ý tưởng thiết kế cho căn nhà của gia đình.
Thông tin mẫu nhà cấp 4 mái Nhật
| Chủ đầu tư: Anh Phạm Hoàng Loan | Địa chỉ: Buôn Mê Thuột, Đắk Lắk |
| Mặt tiền: 10m | Kích thước xây dựng: 10 x 16m |
| Số tầng: 1 tầng | Loại hình: Nhà mái Nhật hiện đại |
| Tổng diện tích: 135m2 | |
Công năng:
| |
| Đơn vị thiết kế: CÔNG TY TNHH THIẾT KẾ & XÂY DỰNG MINHOME | |
Phối cảnh 3D hiện đại của ngôi nhà cấp 4 mái Nhật
Ngôi nhà cấp 4 mái Nhật của anh Loan có thiết kế đơn giản mang đến một không gian sống thoải mái và yên bình. Các mảng khối được xử lý gọn gàng, kết hợp với tỷ lệ cân đối và bố cục hài hòa, tạo nên vẻ đẹp vừa mạnh mẽ vừa cuốn hút. Hệ mái Nhật là điểm nhấn nổi bật, với độ dốc vừa phải và các lớp mái xếp tầng thanh thoát, mang đến dáng vẻ nhẹ nhàng nhưng vẫn đầy tính kiến trúc. Mái được lợp ngói màu xanh kết hợp hài hòa với tổng thể màu sắc của công trình, tạo nên một ngôi nhà cấp 4 đẹp mắt, tinh tế là nơi lý tưởng để cả gia đình nghỉ ngơi và tận hưởng cuộc sống.

Khoác lên mình tone màu trắng chủ đạo công trình toát lên vẻ đẹp thanh thoát, trẻ trung đầy nổi bật phối cùng gam xanh dương dịu mát mang đến sự nhẹ nhàng, lôi cuốn. Sảnh chính của ngôi nhà cấp 4 mái Nhật sử dụng hệ cột trụ vuông bề thế với thân cột kẻ chỉ chữ I tinh xảo, kết hợp cùng chân cột ốp gạch giả đá, càng làm tăng thêm vẻ uy nghi, vững chãi cho phần mặt tiền. Mái sảnh có thiết kế tương tự mái chính tạo sự đồng nhất về kiến trúc đồng thời che chắn cho khu vực sảnh luôn mát mẻ, sạch sẽ. Trên các diện tường, những đường kẻ chỉ lõm chạy ngang tạo điểm nhấn nhẹ nhàng nhưng tinh tế, giúp tăng chiều sâu và sự sinh động cho mặt đứng công trình.

Để công trình thêm cao ráo, bề thế các kiến trúc sư đã sử dụng bậc ngũ cấp 5 bậc tạo kết nối từ sân lên sảnh chính, bậc có tổng chiều cao 750mm, được ốp đá Granite màu đen trắng, vừa đảm bảo độ bền vừa tạo vẻ sang trọng. Đế công trình cũng được ốp đá chẻ tự nhiên, giúp hạn chế bám bẩn và đồng thời tăng độ vững chãi, bề thế cho tổng thể căn nhà.

Để ngôi nhà luôn thoáng mát các kiến trúc sư đã tận dụng mọi mặt của căn nhà để thiết kế cửa sổ không chỉ có vai trò lấy sáng, thông gió mà còn tăng tính thẩm mỹ cho phần thân nhà. Dưới mỗi ô cửa đều được ốp gạch Inax vật liệu hiện đại có khả năng chống bám bụi và dễ lau chùi. Toàn bộ cửa sử dụng vật liệu là loại kính cường lực kết hợp khung nhôm Xingfa cao cấp, giúp tăng cường khả năng cách âm, cách nhiệt và tạo cảm giác không gian rộng mở hơn. Riêng cửa chính có sử dụng thêm nan hoa đồng nhằm tăng nét đẹp thẩm mỹ và tạo sự khác biệt cho phần mặt tiền.

Anh Loan là người yêu thích cuộc sống trong lành, thoáng đãng, do vậy đã yêu cầu xung quanh nhà cần có những bồn cây, chậu hoa mang đến không gian sống gần gũi với thiên nhiên, tạo sự thoải mái cho mọi người khi về nhà. Đây cũng là không gian để gia chủ giảm stress bằng các hoạt động chăm sóc cây nhẹ nhàng vào sáng sớm hoặc chiều tối. Trước nhà cũng có phần sân rộng lớn, lát gạch chống trơn màu ghi xám, vừa đảm bảo an toàn khi di chuyển, vừa luôn sạch sẽ.

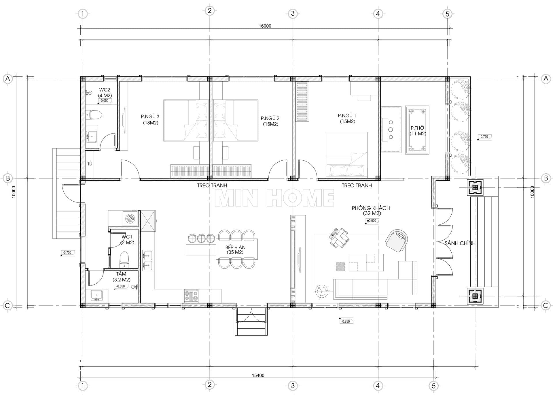
Bản vẽ chi tiết công năng nhà cấp 4 mái Nhật 3 phòng ngủ
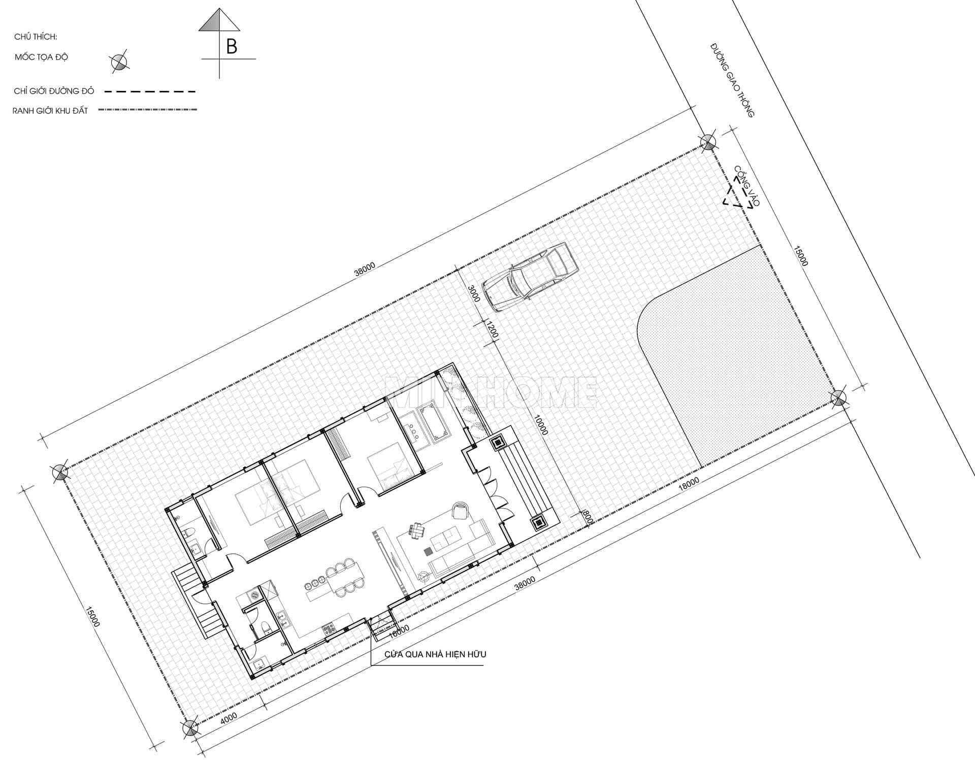
Dựa vào mặt bằng định vị ta thấy nhà cấp 4 mái Nhật mang phong cách hiện đại, tọa lạc trên mảnh đất có hướng chính Tây Nam, được các kiến trúc sư thiết kế chỉn chu theo nguyên tắc phong thủy và nhu cầu sinh hoạt của gia đình. Công trình có kích thước xây dựng 10 x 16m, tổng diện tích sàn sử dụng khoảng 135m² vừa đủ rộng rãi cho một không gian sống tiện nghi, hài hòa và gần gũi với thiên nhiên.

Từ sảnh bước vào không gian sinh hoạt chung đầu tiên sẽ là phòng khách được thiết kế mở, trang bị đầy đủ nội thất mang đến cảm giác vừa ấm cúng vừa sang trọng. Đối diện với phòng khách là phòng thờ trang nghiêm được bài trí riêng biệt, cẩn thận, nội thất bằng gỗ thể hiện sự tôn kính của gia chủ với tổ tiên. Hướng bàn thờ trùng với hướng chính của ngôi nhà hợp phong thủy giúp gia chủ đón tài lộc, may mắn.

Sau phòng khách là không gian bếp và phòng ăn liền kề, tạo sự liền mạch trong sinh hoạt gia đình. Bếp được bố trí theo dạng chữ L, tích hợp các thiết bị hiện đại như bếp từ, máy hút mùi, lò nướng âm và tủ lạnh lớn. Bàn đảo bếp đặt ở trung tâm, vừa là không gian chuẩn bị đồ ăn, vừa có thể sử dụng như quầy bar mini. Bộ bàn ăn 6 ghế đặt bên cạnh cửa phụ để đón nắng tự nhiên, mang lại không gian thưởng thức bữa cơm gia đình ấm cúng.
3 phòng ngủ được thiết kế phù hợp tạo sự thoải mái khi nghỉ ngơi cho các thành viên, đặc biệt phòng ngủ 03 có thiết kế khép kín theo mong muốn riêng của chủ phòng. Nhà vệ sinh chung được bố trí ở cuối nhà cùng với nhà tắm tiện lợi cho sinh hoạt hàng ngày, đồng thời đảm bảo sự kín đáo cần thiết.








