Nhà cấp 4 mái Nhật có thiết kế đơn giản được các gia đình ưa chuộng bởi sự tiện nghi và chi phí xây dựng thấp. Với những mẫu nhà 1 tầng 2 phòng ngủ còn vừa sở hữu kiến trúc đẹp, hiện đại vừa đáp ứng được nhu cầu sinh hoạt của gia đình ít người và vô cùng thuận tiện. Cùng Min Home tham khảo nét đẹp của căn nhà này qua thiết của gia đình anh Long tại Bàu Bàng, Bình Dương trong bài viết dưới đây.
Thông tin mẫu nhà cấp 4 mái Nhật tại Bình Dương
| Chủ đầu tư: Anh Phạm Đình Long | Địa chỉ: Hưng Hòa, Bàu Bàng, Bình Dương |
| Mặt tiền: 9,6m | Kích thước xây dựng: 9,6 x 12,2m |
| Số tầng: 1 tầng | Loại hình: Nhà mái Nhật hiện đại |
| Tổng diện tích: 76m2 | |
| Công năng: Phòng khách, phòng thờ, phòng bếp, 2 phòng ngủ, 1 wc | |
| Đơn vị thiết kế: CÔNG TY TNHH THIẾT KẾ & XÂY DỰNG MINHOME | |
Phối cảnh 3D ngôi nhà cấp 4 mái Nhật
Ngôi nhà cấp 4 mái Nhật được thiết kế theo phong cách hiện đại, mang đến sự kết hợp hài hòa giữa hình khối kiến trúc vuông vắn và những đường nét dứt khoát, rõ ràng. Kiến trúc sư đã tinh tế lược bỏ các chi tiết rườm rà, thay vào đó là những họa tiết trang trí tối giản, tạo nên một tổng thể thanh thoát nhưng không kém phần thu hút.

Tông màu trắng được lựa chọn làm màu chủ đạo giúp làm nổi bật sự sang trọng và tinh tế của công trình, đồng thời tôn lên các đường nét kiến trúc khỏe khoắn. Kết hợp cùng màu xanh dương mang lại cảm giác dịu mắt, tươi mát và hài hòa với không gian xung quanh. Mái Nhật với độ dốc vừa phải không chỉ đảm bảo khả năng thoát nước tốt, mà còn góp phần tạo nên dáng vẻ nhẹ nhàng, thanh lịch cho tổng thể ngôi nhà. Đây là lựa chọn lý tưởng dành cho những gia đình yêu thích sự hiện đại nhưng vẫn muốn giữ lại nét gần gũi, thân thiện trong thiết kế nhà ở.

Ngôi nhà cấp 4 nổi bật với hệ cột trụ vuông kiên cố tại sảnh chính, tạo nên vẻ đẹp vững chãi, bề thế, khẳng định sự chắc chắn và bền vững. Thân cột được thiết kế hình chữ T với màu xanh tươi mới, không chỉ làm tăng tính thẩm mỹ mà còn tạo điểm nhấn ấn tượng cho ngôi nhà. Chân cột ốp gạch màu xám tinh tế, mang đến sự sang trọng, đồng thời làm tăng sức hút vào ngoại thất của công trình.
Diện tường các kiến trúc sư đã thiết kế những đường kẻ chỉ âm tường 40x20mm cách đều 590mm chạy ngang quanh nhà làm giảm sự đơn điệu cho kiến trúc và tăng chiều sâu về thị giác khi nhìn vào công trình. Trên tường có sử dụng những chiếc đèn trang trí có vai trò chiếu sáng kết hợp cùng đèn trên cột và sảnh sẽ tạo vẻ đẹp huyền ảo lung linh khi trời tối.

Với thiết kế hệ bậc ngũ cấp sẽ là bước đệm an toàn giúp việc di chuyển được dễ dàng và thuận lợi hơn. Bậc cao 750mm cũng nâng tổng thể ngôi nhà thêm bề thế và cân đối, đá ốp bậc sử dụng là đá tự nhiên bền vững, chống trơn trượt tốt và có độ bền cao nên rất phù hợp khi sử dụng ngoài trời. Đặc biệt phần đế công trình cũng ốp đá chẻ màu xám giúp bảo vệ kết cấu và tăng thẩm mỹ cho căn nhà.
Bên hông nhà ta sẽ thấy ống khói giả được thiết kế tinh tế tạo điểm nhấn thú vị cho căn nhà. Chi tiết này các kiến trúc sư đã tính toàn không chỉ làm tăng giá trị truyền thống mà còn góp phần hoàn thiện vẻ đẹp tổng thể của công trình .

Cửa chính của ngôi nhà cấp 4 mái Nhật sử dụng chất liệu cửa thép vân gỗ kết hợp kính cường lực dày 8mm vừa mang đến vẻ đẹp sang trọng và ấm cúng cho căn nhà vừa có chi phí thi công rẻ. Các ô cửa sổ sử dụng chất liệu kính cường lực giúp lấy tối đa ánh sáng vào trong tạo bầu không khí tươi mới, thoáng mát khi sử dụng. Kết hợp khung nhôm Xingfa cao cấp, có khả năng cách âm tốt mang đến không gian sống yên tĩnh, thoải mái cho cả gia đình.

Hệ cổng và tường bao góp phần quan trọng vào thẩm mỹ của ngôi nhà. Với thiết kế đồng điệu cùng kiến trúc bên trong, cổng được làm sắt hộp sơn tĩnh điện màu đen kết hợp cùng tường bê tông kiên cố sử dụng nan sắt hộp vừa giúp đảm bảo an toàn cho gia đình vừa tăng sự thông thoáng và tăng thẩm mỹ cho công trình.
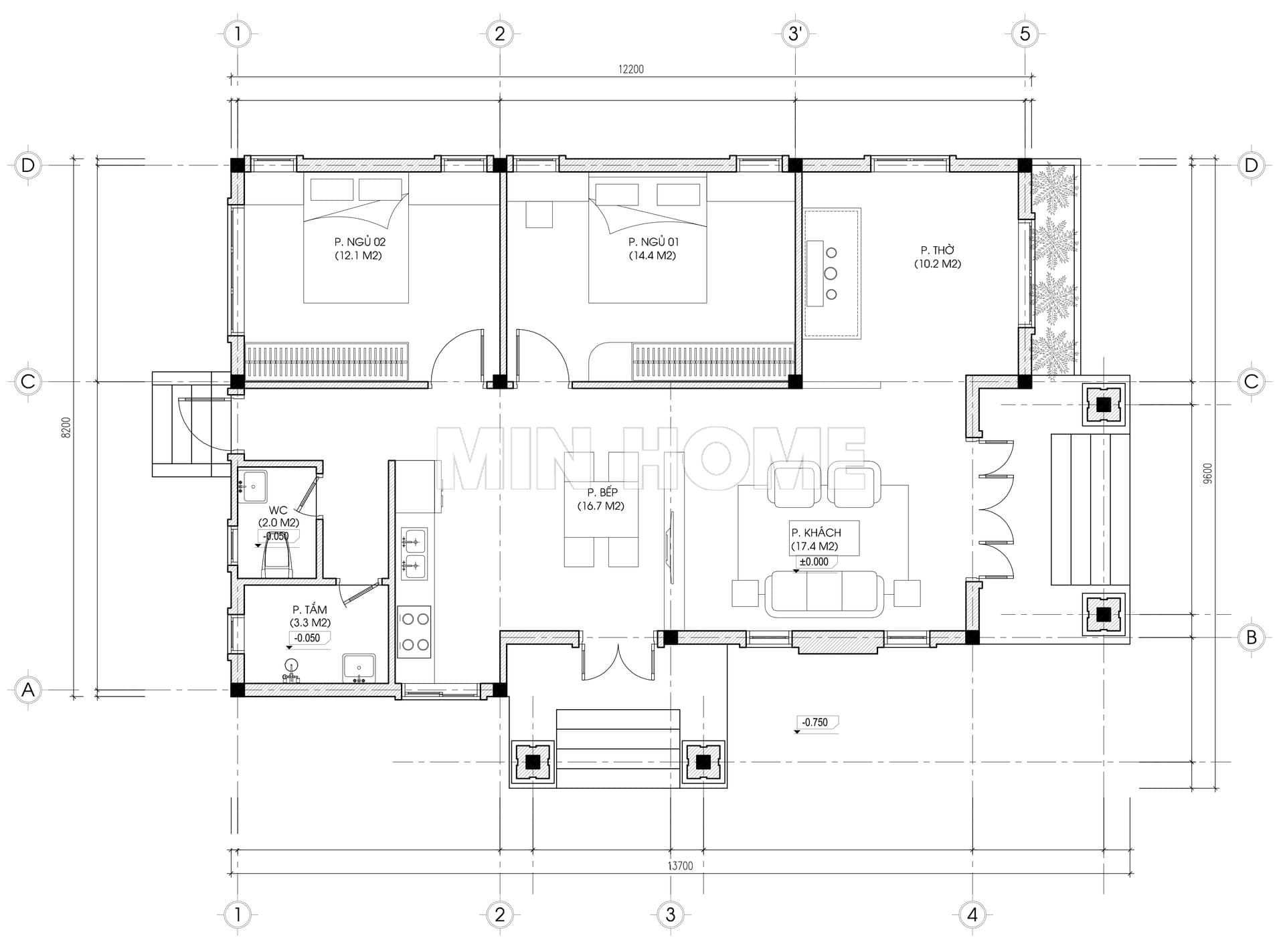
Mặt bằng bố trí công năng nhà cấp 4 mái Nhật 2 phòng ngủ
Về vị trí, ngôi nhà cấp 4 mái Nhật 2 phòng ngủ có hướng chính nằm ở phía Đông Bắc, có kích thước xây dựng là 9,6 x 12,2m. Với tổng diện tích sử dụng khoảng 76m² công trình có công năng được bố trí hài hòa phù hợp với hoạt động sinh hoạt của cả gia đình.

Bước vào từ sảnh chính đầu tiên là phòng khách có thiết kế 2 ô cửa sổ lớn tạo bầu không khí thoáng mát, thoải mái khi ngồi thư giãn khi tiếp đón khách. Bên cạnh là phòng thờ rộng 10,2m² có cửa sổ để lưu thông khí và khói hương, giúp giảm mùi hương cho căn phòng và đón sinh khí mỗi ngày. Bàn thờ có hướng cùng với hướng chính của ngôi nhà phù hợp phong thủy, tuổi mệnh của gia chủ nhằm đem may mắn, tài lộc cho gia đình.

Đi sâu vào trong là phòng bếp có thiết kế đặt gần sảnh phụ giúp giảm mùi khi đun nấu và thuận tiện hơn khi di chuyển. Căn bếp có nội thất được bố trí hài hòa đảm bảo tiện nghi cho các thành viên khi sử dụng.
2 phòng ngủ được bài trí nội thất đầy đủ phù hợp với độ tuổi và sở thích của mỗi người đem đến không gian nghỉ ngơi dễ chịu, thoải mái, nạp năng lượng mới sau một đêm ngon giấc. 1 nhà vệ sinh chung và nhà tắm đặt cuối nhà có thiết kế tách biệt đảm bảo sạch sẽ cùng công năng sử dụng tiện nghi khi dùng.








