Bạn đang tìm kiếm một thiết kế nhà cấp 4 truyền thống có kiến trúc đẹp, chi phí thi rẻ mà lại tiện nghi. Vậy hãy tham khảo ngay mẫu nhà cấp 4 mái Nhật ngói đỏ của gia đình anh Hồ tại Phí Thọ do Min Home thiết kế cho gia chủ dưới đây.
Thông tin mẫu nhà cấp 4 Nhật ngói đỏ
| Chủ đầu tư: Anh Đào Văn Hồ | Địa chỉ: Tam Nông, Phú Thọ |
| Mặt tiền: 11,7m | Kích thước xây dựng: 11,7 x 12,1m |
| Số tầng: 1 tầng | Loại hình: Nhà mái Nhật hiện đại |
| Tổng diện tích: 93m2 | |
Công năng:
| |
| Đơn vị thiết kế: CÔNG TY TNHH THIẾT KẾ & XÂY DỰNG MINHOME | |
Vẻ đẹp ngoại thất cuốn hút của ngôi nhà cấp 4 mái Nhật hiện đại
Ngôi nhà cấp 4 mái Nhật có hình khối vuông vức, đường nét gọn gàng thẳng tắp cùng các chi tiết trang trí đơn giản nhưng vẫn nổi bật và cuốn hút người nhìn ngay lần gặp đầu tiên. Màu trắng là tone màu chủ đạo của căn nhà tôn lên vẻ đẹp trang trọng, thanh nhã kết hợp cùng màu đỏ tươi mới, trẻ trung.

Công trình sử dụng hệ mái Nhật thanh thoát có thiết kế bao phủ toàn bộ, giúp che chắn bảo vệ cho căn nhà. Mái ngói sử dụng ngói đỏ truyền thống vừa giữ gìn giá trị văn hóa, vừa mang tính thẩm mỹ cao. Độ dốc mái được tính toán hợp lý, giúp thoát nước nhanh và phù hợp với điều kiện khí hậu tại Việt Nam.

Mặt tiền ngôi nhà cấp 4 mái Nhật sử dụng hệ cột trụ vuông vức ở sảnh chỉnh tạo nét bề thế, nổi bật cho kiến trúc, thân cột được kẻ chỉ tinh tế, còn chân cột được ốp gạch màu sẫm, là điểm nhấn ấn tượng và tăng độ bền cho căn nhà.
Các kiến trúc sư đã tinh tế khi sử dụng các đường kẻ chỉ âm, đan xen kẻ nổi, vừa tạo chiều sâu cho kiến trúc, vừa giúp công trình thêm sinh động, tránh cảm giác đơn điệuso với các bức tường trơn, phẳng lì.

Công trình sử dụng bậc ngũ cấp gồm 5 bậc, có tổng chiều cao 750mm, giúp nâng nền nhà thêm cao ráo và góp phần tăng sự sang trọng và bề thế cho công trình. Phần đế nhà được ốp gạch màu xám, hài hòa với tổng thể ngoại thất và đóng vai trò bảo vệ tường trước tác động của thời tiết, bụi bẩn. Chân tường cũng được ốp gạch đồng bộ, giúp tăng tính thẩm mỹ và dễ dàng vệ sinh.
Các ô cửa của ngôi nhf cấp 4 mái Nhật được bố trí hợp lý, đảm bảo sự lưu thông khí cho toàn bộ căn nhà. Cửa sử dụng vật liệu kính cường lực để lấy được tối đa ánh sáng mang đến không gian sống tươi mới, gần gũi với thiên nhiên, cùng khung nhôm Xingfa chắc chắn, dày dặn giúp cách âm tốt mang đến sự yên bình cho các hoạt động sinh hoạt của gia đình.

Cây xanh được bố trí hợp lý ở các vị trí: cửa sổ mặt tiền, cột sảnh…giúp làm đẹp cảnh quan và góp phần điều hòa không khí, mang lại cảm giác thư giãn cho gia chủ khi trở về nhà.
Bên cạnh không gian sinh hoạt chính, gia chủ mong muốn có một căn nhà nhỏ để đun bếp củi, thông thoáng nhằm giữ lại như một phần ký ức gắn bó với gia đình, đồng thời có thể tận dụng làm khu nấu nướng phụ hoặc kho chứa tiện lợi cho các hoạt động sinh hoạt hàng ngày.

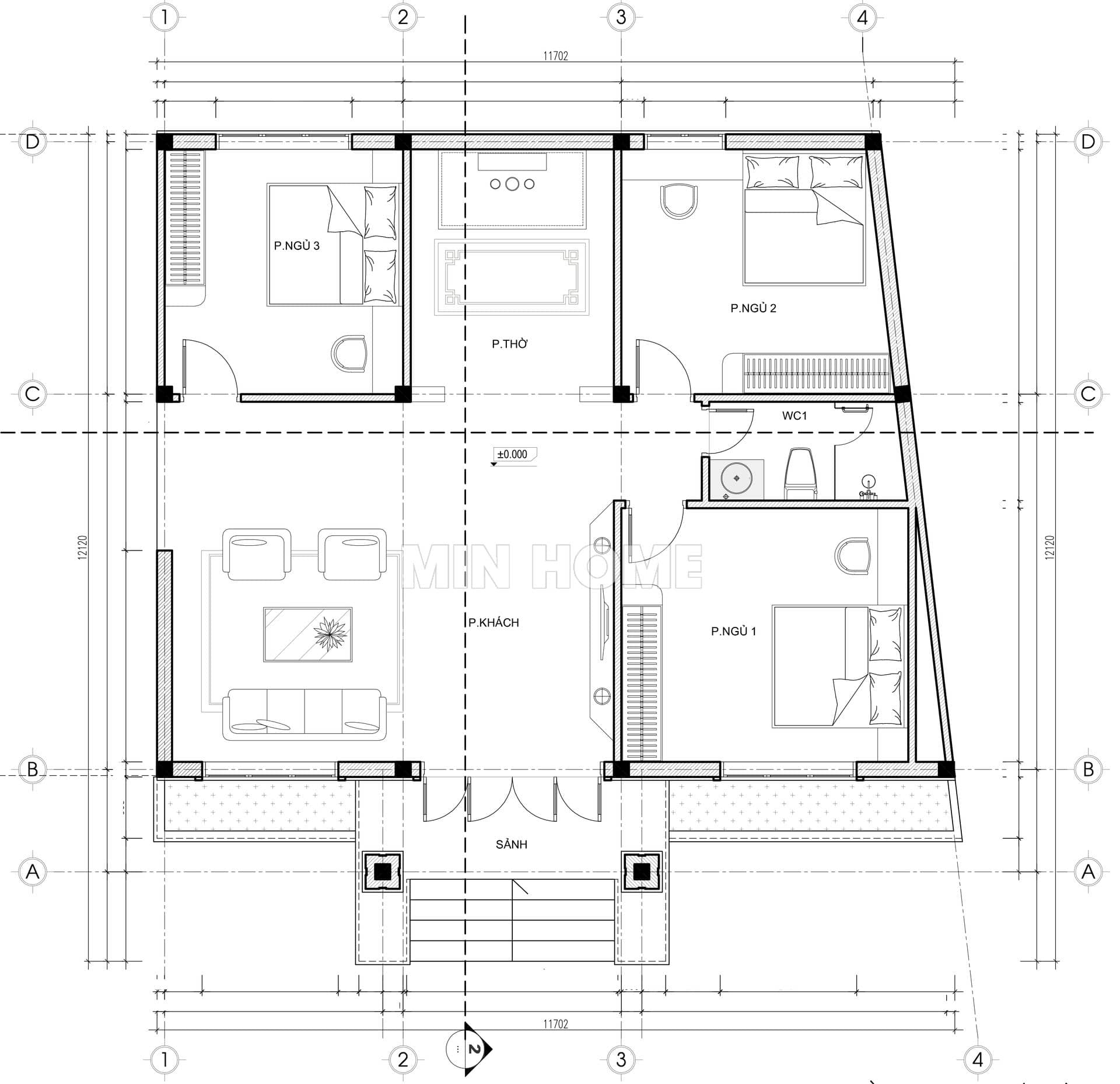
Mặt bằng bố trí công năng nhà cấp 4 mái Nhật
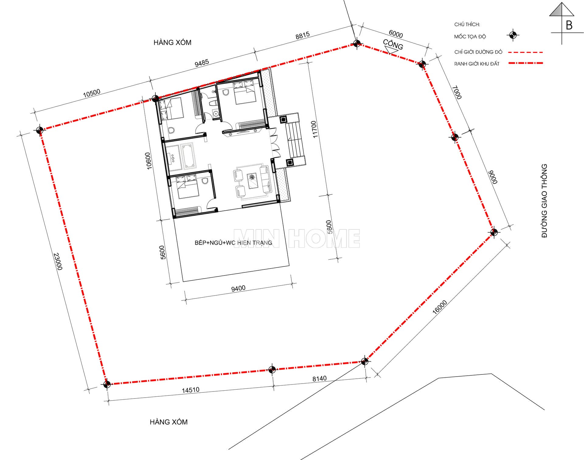
Ngôi nhà cấp 4 mái Nhật lợp có hướng chính được xây dựng quay về phía Bắc, đón gió mát và ánh sáng tự nhiên. Với kích thước xây dựng 11,7 x 12,1m, tổng diện tích sàn sử dụng khoảng 93m² các kiến trúc sư Min Home đã khai thác hiệu quả về công năng, đảm bảo sự tiện nghi, thoải mái trong sinh hoạt hằng ngày cho mọi thành viên trong gia đình.

Từ cửa chính đi vào đầu tiên là phòng khách rộng rãi, thoáng đãng. Căn phòng có nội thất được bố trí hài hòa, phù hợp mang đến sự thoải mái khi tiếp đón khách, thư giãn thoải mái cho các thành viên.
Phòng thờ được đặt tại vị trí trang trọng ngay trong không gian chính, vừa thuận tiện cho việc thờ cúng, vừa tuân thủ các nguyên tắc phong thủy, góp phần mang lại tài lộc và may mắn cho gia chủ.

3 phòng ngủ, mỗi phòng được thiết kế với nội thất riêng phù hợp với sở thích và nhu cầu của từng thành viên. Các phòng đều có cửa sổ giúp lưu thông khí đảm bảo mang lại những giấc ngủ ngon và cảm giác thư giãn sau một ngày làm việc mệt mỏi. Nhà vệ sinh chung được bố trí hợp lý, giúp các thành viên dễ dàng sử dụng mà không ảnh hưởng đến sự riêng tư của từng không gian.

Do diện tích đất sử dụng của gia đình vẫn còn nên khu vực bếp và phòng ăn được thiết kế tách biệt ra phía ngoài, cạnh không gian sinh hoạt chính giúp hạn chế mùi trong quá trình nấu nướng và giữ cho không gian bên trong nhà luôn thông thoáng. Thiết kế này đồng thời tạo ra một khoảng đệm giữa không gian sống và khu vực nấu ăn, phù hợp với thói quen sinh hoạt của nhiều gia đình.











