Bắt kịp xu hướng thiết kế mới, các KTS Min Home đã lên ý tưởng cho ngôi nhà mái bằng 1 tầng của gia đình chú Nghĩa tại Hà Nội đẹp tinh tế với kiến trúc hiện đại cùng công năng sử dụng thoải mái tiện nghi. Không phải chờ lâu, mời quý bạn đọc cùng khám phá mẫu nhà đẹp này ngay tại bài viết dưới đây.
Thông tin chung mẫu nhà mái bằng 1 tầng
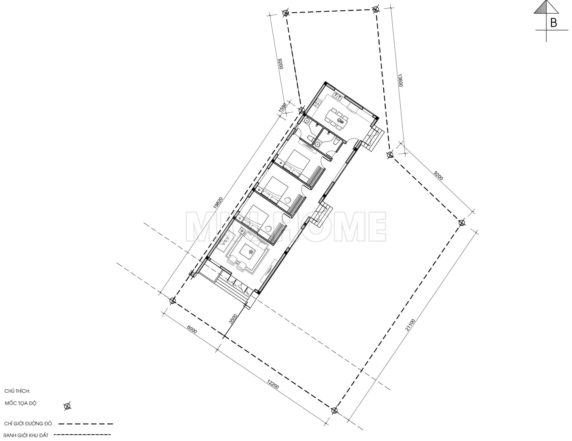
| Chủ đầu tư: Chú Nguyễn Đình Nghĩa | Địa chỉ: Ba Vì, Hà Nội |
| Mặt tiền: 6m | Kích thước xây dựng: 6 x 19,8m |
| Số tầng: 1 tầng | Loại hình: Nhà mái bằng hiện đại |
| Tổng diện tích: 115m2 | |
Công năng:
| |
| Đơn vị thiết kế: CÔNG TY TNHH THIẾT KẾ & XÂY DỰNG MINHOME | |
Ngoại thất đẹp tinh tế của mẫu nhà cấp 4 mái bằng
Ngôi nhà 1 tầng mái bằng được thiết kế theo phong cách hiện đại, sự độc đáo, mới mẻ đến từ những hình khối, cách sử dụng vật liệu trang trí và cách sắp đặt không gian một cách tự do không cần theo một tỉ lệ, tính đối xứng hay quá quan trọng vào các thức cột như kiến trúc cổ điển.

Sự kết hợp hài hoà giữa gam màu trắng – ghi chủ đạo với những vật liệu hiện đại như gỗ nhựa, nhôm, kính cường lực, gạch, đá tự nhiên,… đã mang đến một tổng thể thời thượng và sang trọng. Toàn bộ cửa được KTS làm bằng kính cường lực khung nhôm xingfa tạo nên vẻ đẹp hiện đại đồng thời giúp thu hút gió mát, ánh sáng mang đến cảm giác rộng rãi, thoáng đãng.

Ánh sáng là yếu tố quan trọng, góp phần gia tăng vẻ đẹp ngôi nhà, chính vì vậy, bên cạnh ánh sáng tự nhiên, các KTS cũng chú trọng bố trí hệ thống đèn chiếu sáng nhân tạo như đèn trần, đèn hắt trên các diện tường giúp mọi không gian của ngôi nhà đẹp lung linh, quyến rũ.

Thiết kế mái hiên sảnh với kết cấu bằng bê tông cốt thép đua rộng ra giúp che chắn nắng mưa hắt vào nhà. Những đường nét thẳng, dứt khoát mang đến cho ngôi nhà dáng vẻ mạnh mẽ, phóng khoáng đồng thời khiến người nhìn có cảm giác an tâm về độ vững chãi, an toàn.

Kiến trúc hiện đại không đặt nặng vào các chi tiết trang trí cầu kỳ, thay vào đó là lối kiến trúc đơn giản, màu sắc trung tính và hài hòa tạo nét đẹp bình dị, gần gũi với thiên nhiên. Hai bên mặt tiền chính phụ mở ra khoảng sân vườn đầy cây xanh thoáng mát, đảm bảo cho gia chủ một không gian nghỉ ngơi lý tưởng.

Bản vẽ chi tiết mặt bằng của mẫu nhà 1 tầng mái bằng
Về vị trí, ngôi nhà nằm theo hướng Tây Bắc, có kích thước mặt tiền 6m, chiều dài 19,8m, tổng diện tích sử dụng khoảng 115m2. Ngay sau đây Min Home xin chia sẻ chi tiết mặt bằng công năng của ngôi nhà để các bạn cùng tham khảo.

Từ sảnh chính tiến vào là phòng khách thoáng đãng, rộng rãi. Phía sau là 3 phòng ngủ được bố trí đầy đủ nội thất hiện đại, tiện nghi, các phòng ngủ được đặt liền kề nhau mang lại cảm giác ấm cúng, gần gũi. Riêng phòng ngủ Master có thiết kế nhà vệ sinh khép kín.
Khu vực bếp và phòng ăn gọn gàng tiện nghi được bố trí phía cuối nhà, tại đây có một lối cửa đi ra sảnh phụ giúp không khí lưu thông được dễ dàng, mang đến cảm giác mát mẻ, tránh tối đa tình trạng mùi thức ăn bám đọng lại. Bên cạnh là nhà vệ sinh chung.









