Mẫu nhà 2 tầng hiện đại mái bằng mà Min Home giới thiệu dưới đây có lối thiết kế tinh tế, đơn giản nhưng không kém phần đẳng cấp, đáp ứng tốt nhu cầu của những khách hàng tìm kiếm không gian sống độc đáo, tiện nghi. Đặc biệt, với khả năng chống chịu thời tiết tốt, mẫu nhà này đảm bảo độ bền vững theo thời gian và khả năng mở rộng linh hoạt trong tương lai. Đây chắc chắn sẽ là nguồn cảm hứng thiết kế tuyệt vời cho những ai đang tìm kiếm ý tưởng cho ngôi nhà của mình. Mời bạn cùng tham khảo dưới đây nhé!
Thông tin chung nhà 2 tầng mái bằng hiện đại
| Chủ đầu tư: Anh Trần Văn Phong | Địa chỉ: Tân Thạnh Đông, Củ Chi, Thành Phố Hồ Chí Minh |
| Mặt tiền: 5m | Kích thước xây dựng: 5 x 18,9m |
| Số tầng: 2 tầng | Loại hình: Nhà mái bằng hiện đại |
| Tổng diện tích: 188m² | |
Công năng:
| |
| Đơn vị thiết kế: CÔNG TY TNHH THIẾT KẾ & XÂY DỰNG MINHOME | |
Phối cảnh ngoại thất nhà 2 tầng mái bằng hiện đại
Mẫu nhà 2 tầng hiện đại của gia đình anh Phong nổi bật với kết cấu vững chắc và tuân thủ nghiêm ngặt các nguyên tắc phong thủy, mang đến sự hài hòa giữa không gian sống và yếu tố tự nhiên. Với phong cách trẻ trung, hiện đại, thiết kế này tạo ấn tượng bởi các khối kiến trúc độc đáo, do các kiến trúc sư của Maxhome dày công sáng tạo. Sự kết hợp hài hòa giữa hình khối mạnh mẽ và tỉ lệ cân đối giúp ngôi nhà không chỉ đẹp về mặt thẩm mỹ mà còn đảm bảo lưu thông năng lượng, mang lại may mắn và thịnh vượng cho gia chủ.

Các mảng tường được thiết kế với các phần nhô ra và lùi vào một cách hợp lý, tạo nên sự cân đối và những điểm nhấn kiến trúc độc đáo. Cách sắp xếp này không chỉ tăng tính thẩm mỹ cho ngôi nhà mà còn mang lại cảm giác sinh động, thu hút ánh nhìn ngay từ bên ngoài. Việc bổ sung các ban công nhỏ được trang trí bằng cây xanh không chỉ giúp không gian sống trở nên trong lành, thoáng đãng hơn, mà còn tăng tính kết nối với thiên nhiên.

Ngôi nhà sử dụng màu sơn trắng làm tông màu chủ đạo, kết hợp khéo léo với các vật liệu trang trí như gỗ nhựa trên trần nhà. Sự phối hợp này không chỉ mang đến vẻ đẹp tinh tế, sang trọng mà còn giúp tạo cảm giác ấm áp và gần gũi cho không gian sống. Ngoài ra, việc sử dụng gỗ nhựa còn có ưu điểm về độ bền cao, chống thấm nước và dễ dàng bảo trì, làm tăng giá trị lâu dài cho ngôi nhà.

Toàn bộ khu vực mặt tiền của ngôi nhà 2 tầng hiện đại được thay thế bằng hệ thống cửa kính Xingfa cao cấp, tối ưu hóa việc lấy sáng tự nhiên cho không gian bên trong. Việc sử dụng cửa kính không chỉ giúp ngôi nhà trở nên sáng sủa, thoáng đãng mà còn tạo sự kết nối gần gũi với môi trường xung quanh, mang lại cảm giác rộng rãi và dễ chịu. Cửa kính Xingfa với độ bền cao, khả năng cách âm và cách nhiệt tốt, giúp gia đình tận hưởng không gian sống yên tĩnh và thoải mái, đồng thời tiết kiệm năng lượng.

Mẫu thiết kế nhà 2 tầng hiện đại được trang bị hệ mái đua ốp gạch giả gỗ tinh tế, kết hợp với hệ thống đèn LED âm tường hiện đại. Sự lựa chọn gạch giả gỗ không chỉ mang lại vẻ đẹp tự nhiên, ấm áp mà còn tăng thêm tính thẩm mỹ và độ bền cho phần mái.

Khi thiết kế và xây dựng nhà trọn gói với Min Home, bạn hoàn toàn có thể yên tâm vì chúng tôi sẽ cung cấp bản mô phỏng 3D chi tiết, với độ chính xác cao. Điều này giúp quý khách dễ dàng hình dung toàn bộ không gian sống một cách rõ ràng, đồng thời có thể điều chỉnh thiết kế theo ý muốn trước khi tiến hành xây dựng thực tế. Bản mô phỏng 3D không chỉ giúp tối ưu hóa quy trình thiết kế mà còn đảm bảo rằng mọi yêu cầu của gia chủ được phản ánh đầy đủ và chính xác, giảm thiểu sai sót trong quá trình thi công.

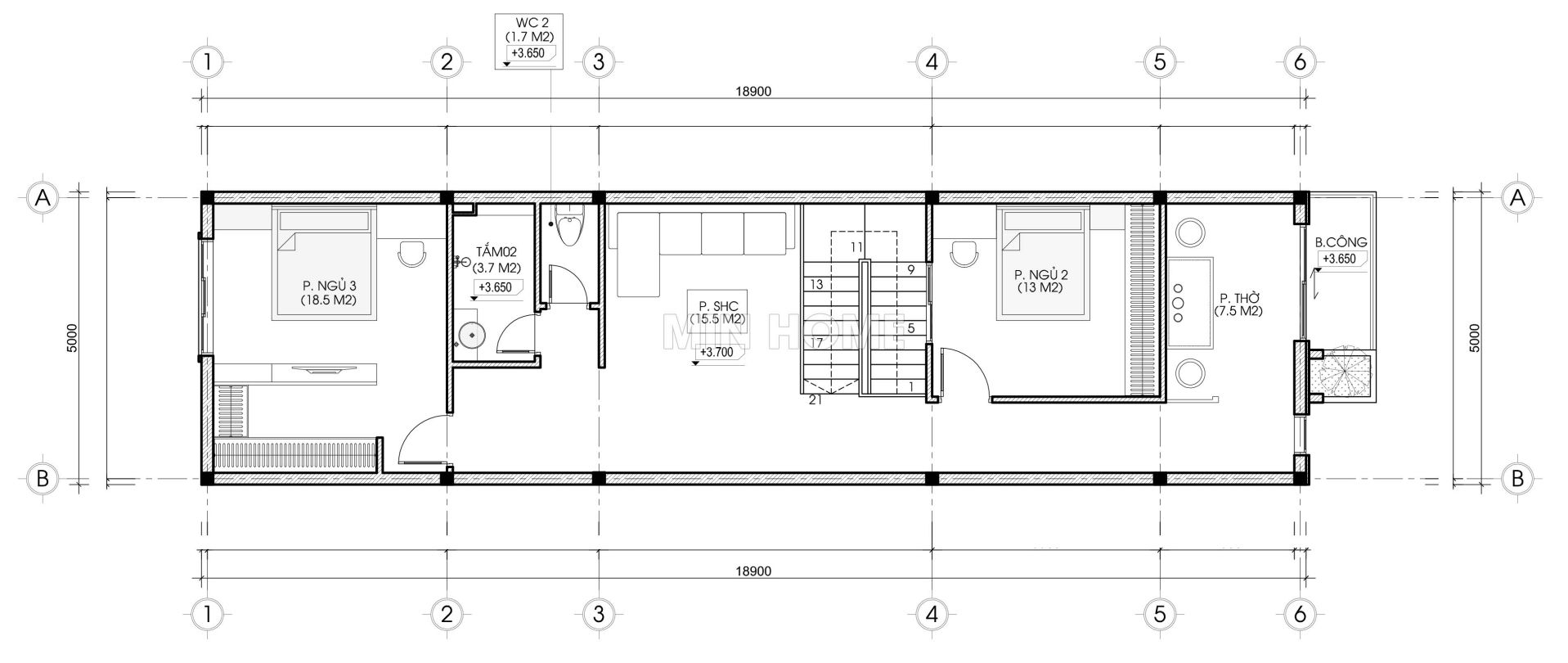
Mặt bằng công năng nhà 2 tầng mái bằng hiện đại
Công trình được định vị theo hướng Đông Bắc, với mặt tiền rộng 5m và chiều sâu 18,9m. Diện tích sử dụng của cả hai tầng là khoảng 188m². Thiết kế này tận dụng tối đa diện tích đất, mang lại không gian sống thoải mái cho các thành viên trong gia đình. Hướng Đông Bắc giúp ngôi nhà đón được ánh sáng tự nhiên và gió mát, tạo điều kiện cho không gian bên trong luôn thông thoáng và dễ chịu. Ngoài ra, sự bố trí hợp lý giữa mặt tiền và chiều sâu giúp tối ưu hóa công năng sử dụng cho từng khu vực trong nhà.

Từ sảnh chính bước vào, bạn sẽ gặp ngay khu vực phòng khách rộng rãi, nơi gia chủ có thể thoải mái tiếp đón khách quý hoặc tổ chức các buổi gặp gỡ gia đình. Tiến sâu hơn, ngay sau khu vực cầu thang là phòng bếp và khu vực ăn uống, được thiết kế tiện nghi, phù hợp cho các bữa ăn ấm cúng. Cuối nhà là phòng ngủ yên tĩnh cùng với nhà vệ sinh chung, mang lại sự thuận tiện cho sinh hoạt hàng ngày của cả gia đình. Cách bố trí này không chỉ đảm bảo tính thẩm mỹ mà còn tạo ra luồng di chuyển hợp lý, giúp tối ưu hóa không gian sinh hoạt.

Phòng thờ được đặt trên tầng 2, đảm bảo không gian trang nghiêm và yên tĩnh, lý tưởng cho việc thờ cúng và các hoạt động tâm linh của gia đình. Gần khu vực cầu thang là phòng sinh hoạt chung, nơi các thành viên có thể tụ họp, thư giãn và cùng nhau chia sẻ những giây phút gắn kết. Phía sau là hai phòng ngủ rộng rãi, đảm bảo sự thoải mái cho các thành viên. Nhà vệ sinh chung của tầng này được thiết kế cùng trục với nhà vệ sinh tầng 1, giúp tối ưu hóa hệ thống cấp thoát nước, từ đó giảm thiểu chi phí lắp đặt và đảm bảo sự tiện lợi trong sinh hoạt hàng ngày. Cách sắp xếp này không chỉ hợp lý về mặt công năng mà còn nâng cao chất lượng sống cho cả gia đình.









