Mẫu nhà cấp 4 mái Nhật 4 phòng ngủ do Min Home thiết kế là lựa chọn hoàn hảo cho những gia đình yêu thích không gian sống hiện đại, tiện nghi và gần gũi với thiên nhiên. Công trình gây ấn tượng bởi kiến trúc mái Nhật sang trọng, đường nét tinh tế cùng cách bố trí công năng khoa học, đáp ứng trọn vẹn nhu cầu sinh hoạt của gia đình nhiều thế hệ. Mời bạn cùng tham khảo mẫu thiết kế nhà đẹp dưới đây nhé!
Thông tin nhà vườn mái Nhật 4 phòng ngủ
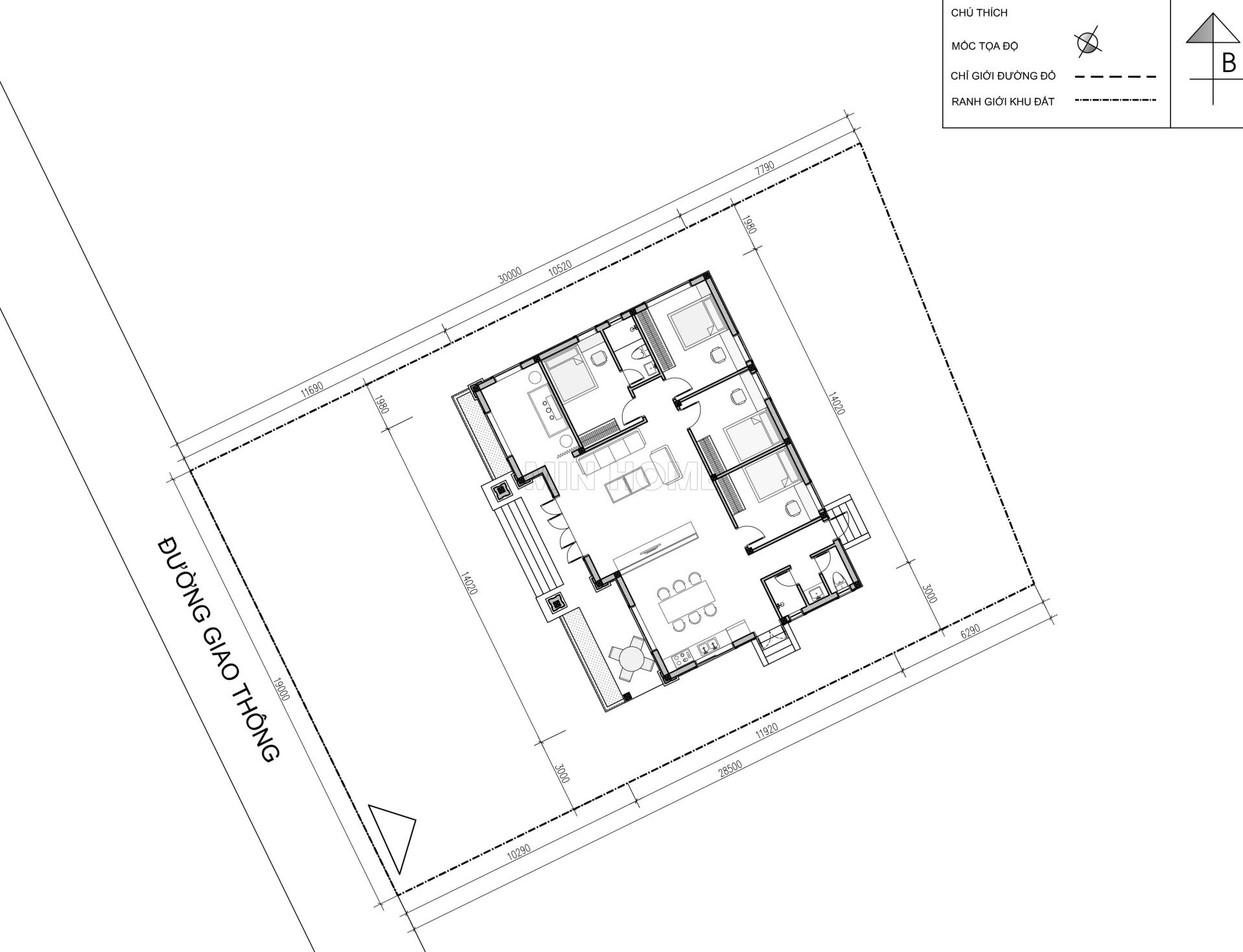
| Chủ đầu tư: Chú Nguyễn Ngọc Luyện | Địa chỉ: Hà Trung, Thanh Hoá |
| Mặt tiền: 14m | Kích thước xây dựng: 14 x 10,5m |
| Số tầng: 1 tầng | Loại hình: Nhà vườn mái Nhật hiện đại |
| Tổng diện tích: 145m2 | |
| Công năng: Phòng khách, phòng thờ, phòng bếp ăn, 4 phòng ngủ, 2 wc, 1 phòng tắm | |
| Đơn vị thiết kế: CÔNG TY TNHH THIẾT KẾ & XÂY DỰNG MINHOME | |
Mẫu nhà vườn mái Nhật 4 phòng Hot nhất 2025
Mẫu nhà cấp 4 mái Nhật được thiết kế theo phong cách hiện đại và tinh gọn, mang đến vẻ đẹp thanh thoát, sang trọng nhưng vẫn gần gũi và hài hòa với thiên nhiên. Với lợi thế mặt tiền rộng 14m, công trình dễ dàng phô diễn sự bề thế, cân đối và nét đẳng cấp trong tổng thể kiến trúc. Các chi tiết ngoại thất được xử lý tối giản nhưng tinh tế, kết hợp hài hòa giữa hình khối, màu sắc và vật liệu để tạo nên diện mạo cuốn hút cho ngôi nhà.

Mẫu nhà vườn hiện đại dưới đây gây ấn tượng với sự phối hợp hài hòa giữa hai gam màu chủ đạo trắng và nâu theo tỷ lệ 70:30. Sự kết hợp tinh tế này không chỉ mang đến vẻ đẹp thanh lịch, sang trọng mà còn tạo cảm giác ấm áp, gần gũi với thiên nhiên, góp phần tôn lên nét mềm mại và cân bằng cho tổng thể kiến trúc. Gam màu trắng giúp ngôi nhà trở nên sáng sủa, thoáng đãng, trong khi sắc nâu của gỗ và vật liệu trang trí lại mang đến điểm nhấn ấm cúng, thể hiện gu thẩm mỹ tinh tế của gia chủ.

Phần chân công trình nhà cấp 4 mái Nhật được thiết kế đôn cao hơn so với mặt sân, giúp ngôi nhà trở nên cao ráo, thông thoáng và hạn chế tối đa tình trạng ẩm thấp, bám bẩn trong quá trình sử dụng. Toàn bộ chân tường được ốp đá chẻ tự nhiên, không chỉ mang lại vẻ đẹp thẩm mỹ tinh tế mà còn góp phần tăng độ bền, chống thấm nước và chống bám rêu mốc hiệu quả. Lớp đá ốp với màu sắc tự nhiên, bề mặt sần nhẹ giúp công trình thêm phần vững chãi, sang trọng và hài hòa với tổng thể kiến trúc mái Nhật.

Mẫu nhà cấp 4 được thiết kế với nhiều ô cửa sổ phân bố hợp lý quanh công trình, giúp tận dụng tối đa ánh sáng và gió tự nhiên, mang lại không gian sống thoáng đãng, tràn ngập sinh khí và gắn kết chặt chẽ với thiên nhiên. Đặc biệt, cửa chính được nhấn nhá bằng chất liệu thép vân gỗ sang trọng, không chỉ tạo điểm nhấn nổi bật cho mặt tiền mà còn tăng thêm vẻ bề thế, tinh tế và thống nhất về phong cách kiến trúc cho toàn bộ công trình.

Từ góc nhìn trên cao, có thể dễ dàng nhận thấy sự phân chia rõ ràng và hài hòa giữa không gian nhà ở và khu sân vườn xanh mát. Phần sân trước được lát gạch phẳng phiu, đồng đều, mang lại cảm giác sạch sẽ, gọn gàng và giúp việc vệ sinh, di chuyển trở nên thuận tiện hơn. Sự kết hợp giữa kiến trúc nhà ở hiện đại và cảnh quan thiên nhiên gần gũi không chỉ giúp công trình trở nên ấn tượng và thân thiện hơn, mà còn mang đến cho gia chủ một không gian sống thư giãn, chan hòa cùng thiên nhiên mỗi ngày.

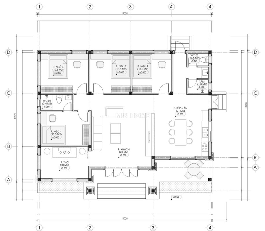
Công trình nhà cấp 4 mái Nhật được thiết kế với kích thước 14 x 10,5m, mang đến tổng diện tích sử dụng khoảng 145m². Với quy mô này, ngôi nhà không chỉ đảm bảo đầy đủ công năng cho gia đình mà còn giữ được sự thoáng đãng và tiện nghi.

Từ sảnh chính bước vào là phòng khách rộng rãi, được thiết kế thoáng đãng, tạo cảm giác sang trọng và ấm cúng để tiếp đón khách. Bên phải phòng khách là khu vực phòng thờ trang nghiêm, đảm bảo yếu tố phong thủy. Tiếp theo phòng bếp ăn có cửa phụ mở ra bên hông, giúp việc di chuyển thuận tiện hơn và hạn chế mùi thức ăn ám vào các không gian khác trong nhà.
Ngôi nhà cấp 4 mái Nhật được bố trí 4 phòng ngủ xung quanh, mỗi phòng ngủ đều có cửa sổ giúp không khí mỗi phòng luôn thoáng mát. Cuối nhà có nhà vệ sinh chung và phòng tắm riêng biệt tiện cho việc dễ dàng sử dụng.









