Sóc Trăng là vùng đất của những ngôi chùa tháp cổ kính và nét văn hóa đa dạng vừa chào đón một tác phẩm kiến trúc mới đầy ấn tượng. Đó chính là mẫu nhà cấp 4 tân cổ điển của gia đình chú Chi, tại dự án này, Min Home – Thiết kế nhà đẹp cùng AI đã chứng minh rằng công nghệ đỉnh cao hoàn toàn có thể thổi hồn vào những nét vẽ truyền thống để tạo nên một không gian sống hoàn mỹ.
Thông tin mẫu nhà cấp 4 tân cổ đẹp siêu lòng người
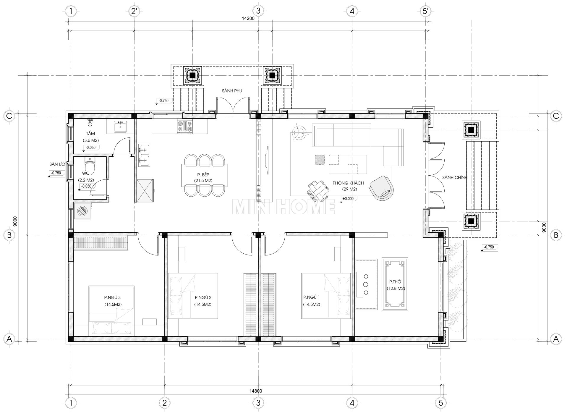
| Chủ đầu tư: Chú Quách Kim Chi | Địa chỉ: Thuận Hưng, Mỹ Tú, Sóc Trăng |
| Mặt tiền: 9m | Kích thước xây dựng: 9 x 14,8m |
| Số tầng: 1 tầng | Loại hình: Nhà mái Nhật tân cổ điển |
| Tổng diện tích: 137m2 | |
| Công năng: Phòng khách, phòng thờ, phòng bếp, 3 phòng ngủ, 1 phòng tắm, 1 wc | |
| Đơn vị thiết kế: CÔNG TY TNHH THIẾT KẾ & XÂY DỰNG MINHOME | |
Ngôn ngữ thiết kế nhà cấp 4 giữa cổ điển và hiện đại
Bước vào khuôn viên nhà cấp 4 tân cổ điển của chú Chi, bất kỳ ai cũng sẽ bị thu hút bởi vẻ đẹp bề thế nhưng không hề phô trương. Dưới sự hỗ trợ của công nghệ AI trong việc tính toán tỷ lệ vàng, đội ngũ kiến trúc sư Min Home đã khắc họa nên một mặt tiền đầy quyền uy.

Điểm nhấn đầu tiên chính là khu vực sảnh chính. Cặp trụ cột vuông to bản được thiết kế không chỉ để nâng đỡ hệ mái mà còn đóng vai trò như những người lính canh giữ sự bình yên cho ngôi nhà. Các đường chỉ dọc tinh xảo chạy dọc thân cột được tái hiện lại một cách thanh thoát. AI đã giúp chúng tôi mô phỏng hướng nắng để tính toán độ uốn cong của vòm bán nguyệt giúp tạo ra bóng đổ mềm mại làm giảm bớt sự thô cứng của các hình khối bê tông, mang lại cảm giác quyến rũ và đầy nhã nhặn.

Một ngôi nhà cấp 4 tân cổ điển đẹp phải là một ngôi nhà bền vững, Min Home đã lựa chọn hệ bậc tam cấp ốp đá Granite vân mây đen bóng với độ cao 750mm so với sân vườn, ngôi nhà như được đặt trên một bệ phóng vững chãi, vừa giúp tránh ẩm mốc đặc trưng của khí hậu miền Tây vừa tạo ra cái nhìn tôn nghiêm, hiếu khách.

Về hệ thống cửa, chúng tôi sử dụng nhôm hệ Xingfa kết hợp kính cường lực cao cấp. Đây là điểm chạm giữa công năng và thẩm mỹ, kính không chỉ là vật liệu, nó là vách ngăn vô hình đưa thiên nhiên Sóc Trăng vào tận phòng khách. Ánh sáng tự nhiên được lọc qua lớp kính, lan tỏa đều khắp không gian giúp gia chủ tiết kiệm điện năng và luôn cảm thấy tràn đầy năng lượng.

Đặc biệt, phần chân tường được ốp đá rối màu xám đậm, đây là một chi tiết kỹ thuật tinh tế mà AI của Min Home đã gợi ý để bảo vệ công trình nhà cấp 4 tân cổ khỏi tác động của thời tiết nhiệt đới, chống thấm, rêu mốc và giữ cho ngôi nhà luôn như mới sau nhiều thập kỷ.
Quan sát từ trên cao, hệ mái Nhật màu xám đậm hiện lên như một tác phẩm nghệ thuật sắp đặt. Hệ mái này không chỉ giải quyết bài toán thoát nước nhanh trong mùa mưa mà còn tạo ra một lớp đệm không khí cách nhiệt hoàn hảo. AI đã hỗ trợ mô phỏng nhiệt độ thực tế để điều chỉnh độ dày và góc nghiêng của mái, đảm bảo bên trong nhà luôn mát mẻ dù ngoài trời có nắng gắt. Các cột thu lôi kim loại thanh mảnh được bố trí kín đáo vừa đảm bảo an toàn tuyệt đối vừa tăng thêm vẻ uy nghi, hiện đại cho tổng thể.

Min Home quan niệm rằng, vẻ đẹp của ngôi nhà phải bắt đầu từ cổng vào. Hàng rào nan sắt mỹ thuật sơn tĩnh điện không chỉ có tác dụng bảo vệ mà còn tạo sự thông thoáng, giúp ngôi nhà thở cùng không gian xung quanh. Sự đồng điệu giữa màu trắng sứ của tường và sắc đen của sắt mỹ thuật tạo nên một bức tranh tương phản mạnh mẽ nhưng vô cùng hài hòa.
Quy hoạch không gian bằng trí tuệ nhân tạo
Với diện tích xây dựng 9×14,8m trên khuôn viên đất 13x20m, việc đặt ngôi nhà ở đâu là một bài toán cân não. Min Home đã sử dụng thuật toán tối ưu hóa không gian để đưa ra phương án đẩy công trình lùi về phía sau. Điều này tạo ra một khoảng sân trước rộng lớn giúp chú Chi có thể thoải mái đỗ xe và là khoảng đệm xanh ngăn cách tiếng ồn từ con phố bên ngoài.

Bước vào bên trong, không gian nội thất của ngôi nhà cấp 4 gây ấn tượng mạnh bởi sự phân chia công năng thông minh, đề cao tính kết nối và phong thủy. Tâm điểm là trục sinh hoạt chung rộng lớn với phòng khách 29m2 liên thông trực tiếp với bếp ăn 21,5m2, tạo nên một không gian mở thoáng đãng giúp gia đình luôn gắn kết trong mọi hoạt động.

Sự tôn nghiêm được đặt tại phòng thờ 12,8m2 hướng mặt tiền, nơi công nghệ AI của Min Home đã hỗ trợ tính toán tọa độ chuẩn phong thủy để mang lại bình an, tài lộc cho gia chủ. Cuối cùng, sự riêng tư được đảm bảo tuyệt đối với dãy 3 phòng ngủ đồng diện tích 14,5m2 bố trí khoa học dọc hành lang yên tĩnh, mỗi phòng đều có cửa sổ đón sáng tự nhiên, kiến tạo nên chốn nghỉ ngơi thư thái và trọn vẹn cho cả gia đình.








