Mẫu nhà 1 tầng mái bằng nhỏ gọn đang dần trở thành lựa chọn ưu tiên của nhiều gia chủ nhờ thiết kế đơn giản, chi phí đầu tư hợp lý và tính thẩm mỹ hiện đại. Công trình gây ấn tượng với lối kiến trúc thanh thoát, đường nét rõ ràng, tinh tế, hạn chế các chi tiết rườm rà nhưng vẫn đảm bảo sự hài hòa tổng thể. Bên cạnh đó, việc bố trí công năng khoa học, tối ưu diện tích sử dụng giúp ngôi nhà đáp ứng đầy đủ nhu cầu sinh hoạt hằng ngày. Không gian sống vì thế luôn thông thoáng, tiện nghi, mang lại cảm giác thoải mái, nhẹ nhàng và giá trị sử dụng bền vững theo thời gian.
Thông tin nhà 1 tầng mái bằng nhỏ xinh
| Chủ đầu tư: Chú Hồ Văn Phúc | Địa chỉ: Ea Kar, Đắk Lắk |
| Mặt tiền: 6m | Kích thước xây dựng: 6x24m |
| Số tầng: 1 tầng | Loại hình: Nhà mái bằng hiện đại |
| Tổng diện tích: 144m2 | |
| Công năng: Phòng khách, phòng thờ, phòng bếp ăn, 3 phòng ngủ, 1 vệ sinh, phòng tắm | |
| Đơn vị thiết kế: CÔNG TY TNHH THIẾT KẾ & XÂY DỰNG MINHOME | |
Ngắm nhìn 3D nhà 1 tầng thanh lịch có 3 phòng ngủ
Trong xu hướng sống tinh gọn, đề cao công năng và hiệu quả khai thác không gian, mẫu nhà 1 tầng mái bằng phong cách hiện đại đang dần trở thành lựa chọn lý tưởng của nhiều gia đình. Thiết kế này không chỉ giúp tối ưu chi phí xây dựng mà còn mang lại không gian sống tiện nghi, thông thoáng và dễ dàng bố trí công năng một cách linh hoạt. Với lối kiến trúc hiện đại, hình khối rõ ràng và cách tổ chức mặt bằng khoa học, ngôi nhà đáp ứng tốt nhu cầu sinh hoạt hằng ngày, đồng thời đảm bảo giá trị thẩm mỹ bền vững, phù hợp với nhịp sống năng động và hiện đại ngày nay.

Mẫu nhà 1 tầng mái bằng phong cách hiện đại thường có đặc điểm tương đồng với nhà phố, đặc biệt là hạn chế bố trí cửa sổ ở hai bên hông do quỹ đất xây dựng liền kề. Chính vì vậy, các giải pháp thiết kế thường tập trung khai thác không gian theo chiều trước – sau, kết hợp bố trí giếng trời, ô thông gió và hệ cửa kính lớn tại mặt tiền. Cách tổ chức này giúp tăng khả năng lấy sáng tự nhiên, đón gió hiệu quả, đồng thời tạo cảm giác không gian rộng mở, thông thoáng. Nhờ đó, ngôi nhà luôn đảm bảo sự mát mẻ, dễ chịu, nâng cao chất lượng sinh hoạt và mang lại sự thoải mái lâu dài cho các thành viên trong gia đình.

Không chỉ giới hạn trong những hình khối vuông vức đặc trưng của kiến trúc hiện đại, mẫu nhà 1 tầng mái bằng còn được xử lý khéo léo bằng các mảng tường bo cong mềm mại, tạo điểm nhấn tinh tế và mang lại cảm giác uyển chuyển cho tổng thể công trình. Sự kết hợp hài hòa giữa đường nét thẳng và cong giúp kiến trúc trở nên cân đối, nhẹ nhàng và có chiều sâu thẩm mỹ. Gam màu trắng được lựa chọn làm tông màu chủ đạo, phối hợp cùng sắc ghi ở các mảng tường nhấn, vừa tôn lên vẻ đẹp thanh lịch, hiện đại vừa góp phần làm nổi bật hình khối kiến trúc. Cách phối màu này không chỉ mang lại cảm giác sạch sẽ, sang trọng mà còn giúp công trình giữ được giá trị thẩm mỹ bền vững, hạn chế lỗi mốt theo thời gian.

Mẫu nhà 1 tầng mái bằng được bố trí thêm cửa đi tại khu vực cuối nhà, đóng vai trò như cửa hậu, giúp việc di chuyển, lưu thông và tổ chức sinh hoạt hằng ngày trở nên linh hoạt, thuận tiện hơn. Giải pháp này đồng thời hỗ trợ thông gió tự nhiên, góp phần mang lại không gian sống thoáng mát và dễ chịu. Bên cạnh đó, toàn bộ phần chân tường xung quanh công trình được ốp đá chẻ tự nhiên, vừa tạo điểm nhấn thẩm mỹ mộc mạc, khỏe khoắn, vừa giúp bảo vệ bề mặt tường khỏi tác động của thời tiết. Lớp đá ốp có tác dụng hạn chế rêu mốc, ẩm bẩn, giảm xuống cấp theo thời gian, từ đó nâng cao độ bền và tuổi thọ cho ngôi nhà trong quá trình sử dụng lâu dài.

Quan sát từ góc nhìn trên cao, có thể thấy ngôi nhà 1 tầng được thiết kế theo phong cách mái bằng gọn gàng, hiện đại, với hình khối rõ ràng và bố cục mạch lạc. Phần mái được kết hợp sử dụng tôn chống nóng chất lượng cao, giúp hạn chế hấp thụ nhiệt từ môi trường bên ngoài, giữ cho không gian nội thất bên trong luôn mát mẻ và dễ chịu, đặc biệt trong những ngày thời tiết nắng nóng. Bên cạnh đó, hệ thống giếng trời được bố trí hợp lý tại các khu vực chức năng, góp phần tăng cường khả năng lấy sáng tự nhiên và lưu thông không khí. Giải pháp này không chỉ giúp ngôi nhà luôn thông thoáng, sáng sủa mà còn hỗ trợ tiết kiệm năng lượng, nâng cao chất lượng sinh hoạt hằng ngày và tạo cảm giác thoải mái lâu dài cho các thành viên trong gia đình.

Mẫu nhà 1 tầng mái bằng gây ấn tượng ngay từ ánh nhìn đầu tiên nhờ hệ cổng được thiết kế theo phong cách tối giản nhưng vẫn toát lên sự tinh tế và hiện đại. Điểm nhấn nổi bật nằm ở sự kết hợp hài hòa giữa hệ cửa sắt sơn tĩnh điện giả vân gỗ mang gam màu ấm áp và phần tường bao bê tông kiên cố, chắc chắn. Cách phối hợp vật liệu này không chỉ đảm bảo yếu tố an ninh, riêng tư cho không gian bên trong mà còn góp phần tạo nên diện mạo trẻ trung, năng động. Tổng thể thiết kế phù hợp với xu hướng kiến trúc tối giản đương đại, đồng thời giúp công trình giữ được giá trị thẩm mỹ bền vững theo thời gian.

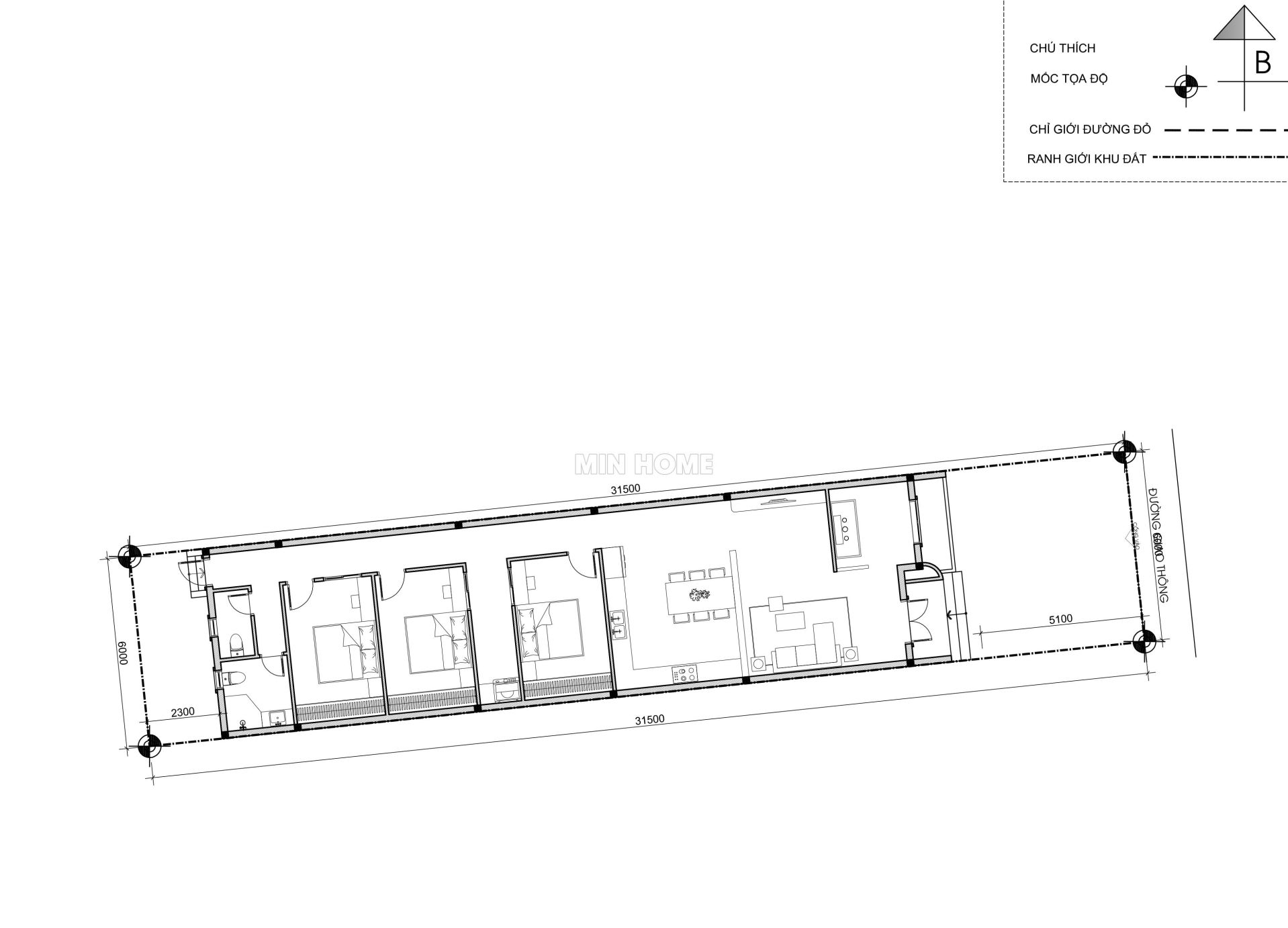
Dưới đây là hình ảnh mặt bằng định vị công trình, thể hiện rõ khuôn viên khu đất khi triển khai xây dựng mẫu nhà 1 tầng mái bằng. Với đặc điểm lô đất có mặt tiền hạn chế chỉ 6m trong khi chiều sâu lên tới 24m, phương án thiết kế đã được nghiên cứu kỹ lưỡng nhằm khai thác tối đa diện tích theo chiều dài, đồng thời đảm bảo sự thông thoáng và tiện nghi cho không gian sống. Nhờ cách tổ chức mặt bằng khoa học, tổng diện tích sử dụng của ngôi nhà đạt khoảng 144m², đáp ứng đầy đủ nhu cầu sinh hoạt của gia đình từ công năng chung đến không gian riêng tư.

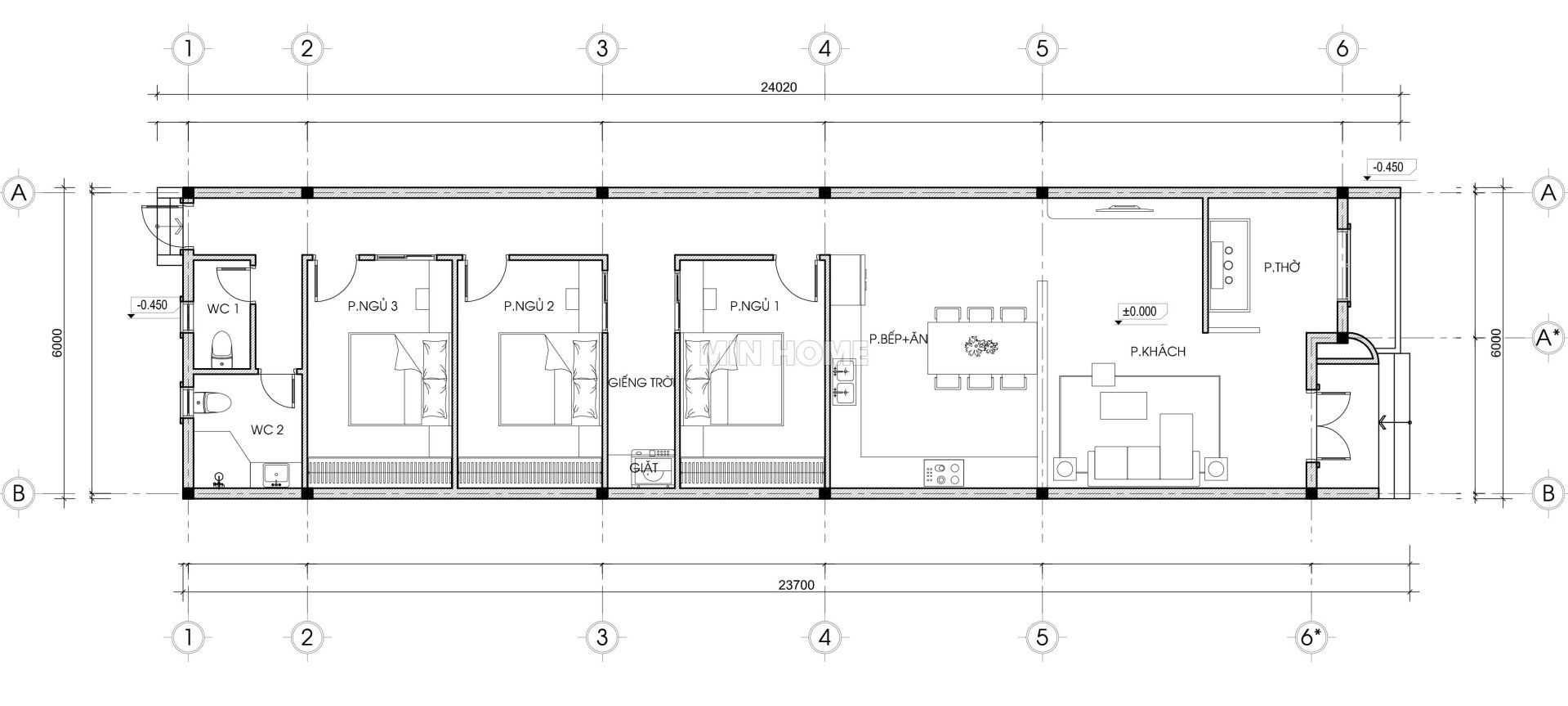
Từ cửa chính bước vào là khu vực phòng khách rộng rãi, được bố trí kết hợp với không gian phòng thờ trang nghiêm, vừa đảm bảo sự tôn kính trong đời sống tâm linh vừa thuận tiện cho sinh hoạt hằng ngày. Tiếp nối về phía sau là khu vực bếp và phòng ăn được sắp xếp gọn gàng, thông thoáng, tạo cảm giác ấm cúng cho những bữa cơm sum họp gia đình. Cuối nhà là 3 phòng ngủ được bố trí liền kề, đáp ứng nhu cầu nghỉ ngơi riêng tư cho các thành viên. Khu vệ sinh và phòng tắm chung được đặt ở vị trí cuối nhà, thiết kế hợp lý nhằm tối ưu diện tích sử dụng, đồng thời đảm bảo sự thuận tiện và kín đáo trong quá trình sinh hoạt.











