Trong bối cảnh quỹ đất đô thị ngày càng hạn chế, những mẫu nhà phố 2 tầng mặt tiền hẹp kết hợp kinh doanh đang trở thành lựa chọn ưu tiên của nhiều gia chủ. Với lợi thế mặt tiền 4,9m, mẫu nhà phố 2 tầng được thiết kế theo phong cách hiện đại không chỉ tận dụng tối đa diện tích sử dụng mà còn đáp ứng linh hoạt nhu cầu vừa ở vừa kinh doanh. Sự bố trí công năng khoa học cùng hình khối kiến trúc gọn gàng giúp công trình đảm bảo tính thẩm mỹ, tiện nghi và hiệu quả khai thác lâu dài.
Thông tin nhà phố 2 tầng mặt tiền 4,9m
| Chủ đầu tư: Anh Lê Văn Tuấn | Địa chỉ: Thần Khê, Hưng Yên |
| Mặt tiền: 4,9m | Kích thước xây dựng: 4,9m x 20m |
| Số tầng: 2 tầng | Loại hình: Nhà lô phố hiện đại |
| Tổng diện tích: 196m2 | |
Công năng:
| |
| Đơn vị thiết kế: CÔNG TY TNHH THIẾT KẾ & XÂY DỰNG MINHOME | |
Ngắm nhìn 3D nhà phố 2 tầng phù hợp với kinh doanh
Thay vì những mảng khối vuông vức quen thuộc, mẫu nhà phố hiện đại ngày nay được “làm mềm” bằng các đường cong tinh tế, tạo nên diện mạo mới mẻ và cuốn hút hơn cho không gian đô thị. Công trình nhà phố 2 tầng do Maxhome thiết kế là sự giao thoa khéo léo giữa tính thẩm mỹ và tính ứng dụng, nơi khu vực kinh doanh và không gian sinh hoạt được sắp xếp tách bạch nhưng vẫn liên kết hài hòa. Mỗi mét vuông đều được tính toán cẩn thận, giúp gia chủ vừa khai thác hiệu quả mặt tiền để buôn bán, vừa sở hữu một tổ ấm riêng tư, tiện nghi và dễ chịu cho gia đình anh Tuấn.

Không chọn cách phô trương, mẫu nhà phố 2 tầng gây thiện cảm ngay từ ánh nhìn đầu tiên nhờ gam trắng chủ đạo tinh giản, mang lại cảm giác nhẹ nhàng, hiện đại và tràn đầy năng lượng. Sắc trắng đóng vai trò như “phông nền” hoàn hảo, giúp mặt tiền trở nên sáng thoáng, đồng thời khéo léo nới rộng cảm giác không gian cho ngôi nhà có mặt tiền khiêm tốn.
Ở tầng 1 – khu vực dành cho hoạt động kinh doanh, vật liệu đá granite cao cấp được sử dụng như một lớp “áo giáp” vừa sang trọng vừa bền bỉ, đáp ứng tốt yêu cầu sử dụng thường xuyên và dễ dàng vệ sinh. Lên đến tầng 2, công trình được tiết chế bằng gam ghi trung tính kết hợp trần ốp gỗ nhựa, tạo điểm chuyển mềm mại giữa sự sôi động bên dưới và không gian sống ấm áp phía trên. Sự đan xen tinh tế giữa màu sắc và vật liệu giúp ngôi nhà vừa nổi bật giữa phố thị, vừa giữ được nét cân bằng, hài hòa và tiện nghi trong từng chi tiết.

Mặt tiền mẫu nhà phố 2 tầng được kiến trúc sư định hướng theo phong cách mở, ưu tiên sử dụng các mảng kính cường lực kích thước lớn thay cho những bức tường đặc, giúp công trình trở nên thông thoáng, trẻ trung và giàu tính hiện đại. Khu vực cửa chính được bố trí hệ cửa cuốn linh hoạt, đáp ứng tốt nhu cầu kinh doanh, kết hợp cùng hệ cửa kính rộng vừa đảm bảo an toàn, vừa tối ưu khả năng lấy sáng và tạo điểm nhấn thẩm mỹ cho toàn bộ mặt tiền.
Nhờ giải pháp thiết kế thông minh này, không gian bên trong mẫu nhà ống dù có bề ngang hạn chế vẫn luôn ngập tràn ánh sáng tự nhiên, lưu thông không khí hiệu quả và giảm cảm giác bí bách thường thấy. Đồng thời, sự kết nối liền mạch giữa không gian nội thất và bên ngoài còn mang đến cảm giác gần gũi với thiên nhiên, góp phần tạo nên môi trường sống và kinh doanh thoải mái, dễ chịu trong suốt quá trình sử dụng lâu dài.


Mẫu nhà phố 2 tầng được kiến trúc sư Maxhome thiết kế lùi tầng 2 vào phía trong, giúp mặt tiền cân đối và thanh thoát hơn. Khoảng không gian phía trước được tận dụng làm sân chơi, vừa mở rộng diện tích sinh hoạt, vừa tăng khả năng lấy sáng và thông gió tự nhiên. Ban công sử dụng lan can kính cường lực trong suốt, đảm bảo an toàn, đồng thời tạo cảm giác hiện đại, thoáng đãng cho tổng thể công trình.

Thay vì lựa chọn các kiểu mái truyền thống, mẫu nhà 2 tầng này được hoàn thiện với hệ mái bằng mang đậm tinh thần kiến trúc hiện đại, tạo nên tổng thể gọn gàng và dứt khoát. Phần mái được đổ bê tông cốt thép nguyên khối, phẳng và chắc, đóng vai trò như “tấm khiên” bảo vệ toàn bộ công trình trước tác động của thời tiết, đồng thời đảm bảo độ ổn định và tuổi thọ sử dụng lâu dài. Bên trên, lớp tôn màu đỏ được lắp đặt bổ sung nhằm tăng khả năng cách nhiệt, chống thấm, giúp không gian bên trong luôn mát mẻ và khô ráo.
Không chỉ dừng lại ở yếu tố thẩm mỹ, hệ mái bằng còn được tính toán kỹ lưỡng về kết cấu và thoát nước, đảm bảo sự an toàn trong quá trình sử dụng. Chính giải pháp này cũng mở ra khả năng linh hoạt trong tương lai như cải tạo, bố trí sân thượng hay nâng tầng, giúp ngôi nhà dễ dàng thích ứng với nhu cầu thay đổi của gia chủ theo thời gian.

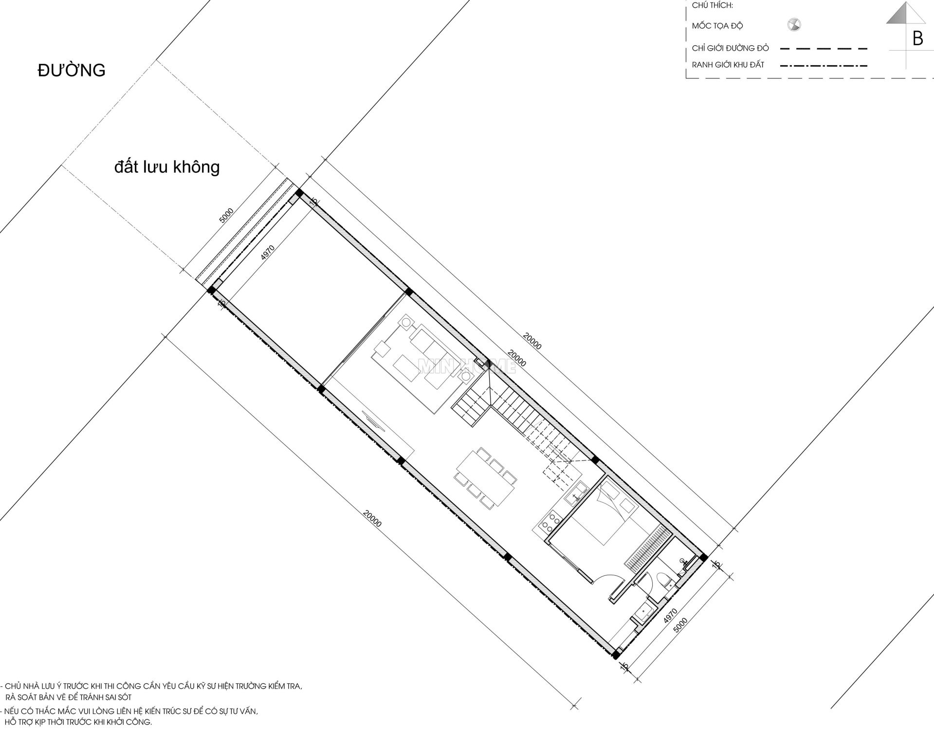
Công trình được xây dựng trên khu đất nhà phố có diện tích gọn gàng, với kích thước xây dựng 4,9 × 20m – tỷ lệ phổ biến tại các khu đô thị hiện nay. Nhờ phương án tổ chức mặt bằng hợp lý, không gian được khai thác hiệu quả theo chiều sâu, đảm bảo sự thông thoáng, liền mạch và tiện nghi trong quá trình sử dụng. Tổng diện tích sử dụng của ngôi nhà 2 tầng đạt khoảng 196m², đáp ứng tốt nhu cầu vừa ở vừa kinh doanh của gia đình trong điều kiện quỹ đất hạn chế.

Mặt bằng tầng 1 được bố trí linh hoạt theo hướng kết hợp kinh doanh và sinh hoạt. Gia chủ dành khoảng 23m² phía trước làm khu vực bán hàng, thuận tiện cho việc trưng bày và tiếp đón khách. Tiếp nối phía sau là không gian phòng khách được sắp xếp gọn gàng, tạo sự tách biệt cần thiết với khu vực kinh doanh, đảm bảo tính riêng tư cho gia đình. Khu bếp và phòng ăn nằm ở phía trong, được bố trí khoa học, giúp quá trình sinh hoạt diễn ra thuận tiện và liền mạch. Cuối nhà là phòng ngủ số 01, đặt tại vị trí yên tĩnh, phù hợp cho người lớn tuổi hoặc nhu cầu nghỉ ngơi lâu dài; bên cạnh là nhà vệ sinh chung, được bố trí hợp lý, dễ sử dụng.

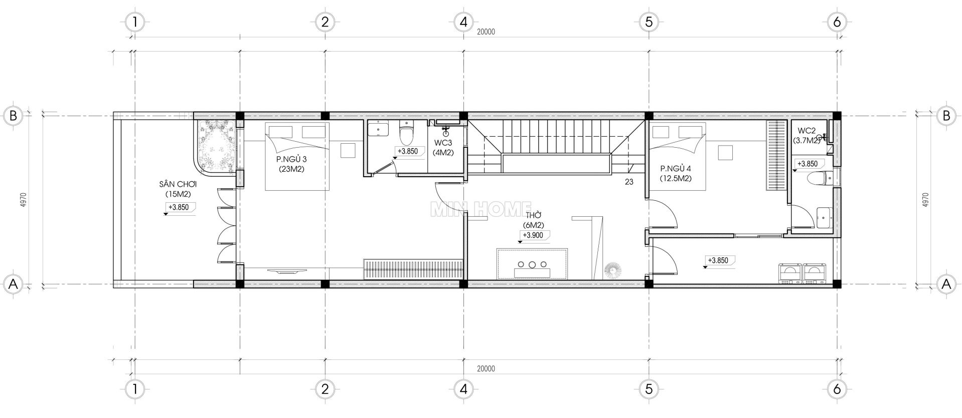
Mặt bằng tầng 2 tập trung vào không gian nghỉ ngơi và sinh hoạt riêng. Từ khu vực cầu thang bước lên là phòng thờ được bố trí trang nghiêm, đảm bảo sự yên tĩnh và yếu tố phong thủy. Tiếp theo là 2 phòng ngủ có diện tích hợp lý, mỗi phòng đều được thiết kế nhà vệ sinh khép kín, mang lại sự riêng tư và tiện nghi trong sinh hoạt hằng ngày. Cuối nhà là khu vực sân phơi thông thoáng, tận dụng tối đa ánh nắng và gió tự nhiên, vừa phục vụ nhu cầu giặt giũ, vừa góp phần tăng khả năng thông gió cho toàn bộ tầng.










