Mẫu nhà 2 tầng 3 phòng ngủ mái bằng do Min Home thiết kế cho gia đình anh Ba tại Thanh Hóa là sự kết hợp hoàn hảo giữa tính thẩm mỹ tinh tế và công năng tối ưu. Công trình gây ấn tượng với mặt tiền rộng thoáng, đường nét kiến trúc hiện đại, ngoại thất sang trọng cùng không gian sống tràn ngập ánh sáng, gió trời, mang lại trải nghiệm tiện nghi nhưng vẫn gắn bó mật thiết với thiên nhiên.
Thông tin nhà 2 tầng mái bằng
| Chủ đầu tư: Anh Ngô Văn Ba | Địa chỉ: Thiệu Tiến, Thanh Hoá |
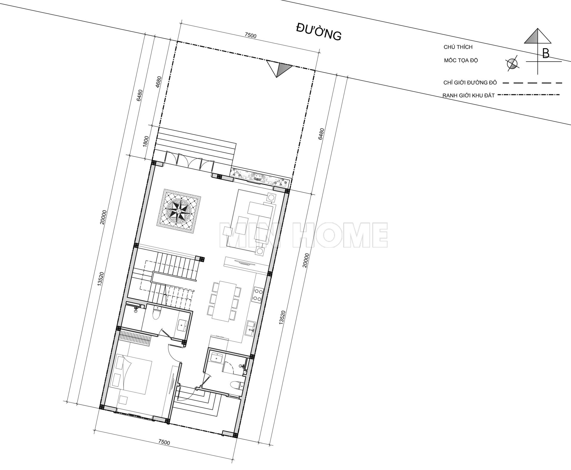
| Mặt tiền: 7,5m | Kích thước xây dựng: 7,5 x 15,3m |
| Số tầng: 2 tầng | Loại hình: Nhà mái bằng hiện đại |
| Tổng diện tích: 210m2 | |
Công năng:
| |
| Đơn vị thiết kế: CÔNG TY TNHH THIẾT KẾ & XÂY DỰNG MINHOME | |
Mẫu nhà mái bằng 2 tầng 3 phòng ngủ quá đẹp, chi phí hợp lý
Từ góc nhìn mặt tiền, mẫu nhà 2 tầng 3 phòng ngủ cuốn hút bởi hình khối vuông vắn, sắc nét, thể hiện rõ tinh thần của kiến trúc hiện đại. Các mảng khối được xử lý mạch lạc, tỷ lệ cân xứng, tạo nên một bố cục tổng thể vừa bề thế vừa tinh giản.
Nổi bật nhất là khối ban công tầng hai với đường viền trắng thanh thoát bao quanh, giúp công trình thêm sang trọng, tăng chiều sâu thị giác và điểm nhấn thẩm mỹ. Thiết kế mái bằng phẳng gọn gàng không chỉ mang lại vẻ đẹp trẻ trung, thời thượng mà còn tối ưu chi phí, đồng thời phù hợp với điều kiện khí hậu nhiệt đới và nhu cầu sinh hoạt của gia đình Việt.

Ngoại thất ngôi nhà 2 tầng 3 phòng ngủ nổi bật với bảng màu sang trọng, lấy sắc trắng và ghi làm chủ đạo, kết hợp cùng những mảng ốp gỗ nhựa ngoài trời và hệ cửa kính khung nhôm màu xám hiện đại. Sự kết hợp khéo léo giữa các tông màu trung tính mang lại diện mạo thanh lịch, tinh tế mà vẫn đầy sức hút.
Đặc biệt, cửa chính bằng gỗ tự nhiên với hoa văn chạm khắc tinh mỹ không chỉ trở thành điểm nhấn uy nghi của công trình mà còn khẳng định gu thẩm mỹ đẳng cấp và giá trị bền vững vượt thời gian.

Các kiến trúc sư đã đặc biệt chú trọng trong việc lựa chọn vật liệu cho mẫu nhà 2 tầng 3 phòng ngủ, đảm bảo sự kết hợp hài hòa giữa thẩm mỹ tinh tế và độ bền vượt trội. Hệ thống cửa được lắp đặt kính cường lực khổ lớn, giúp tận dụng tối đa ánh sáng tự nhiên, đồng thời mở rộng tầm nhìn, mang đến cảm giác gần gũi với cảnh quan bên ngoài.
Phần tường tầng một được ốp gạch granite giả đá cao cấp, tạo nên vẻ ngoài vững chắc, sang trọng và bề thế. Trong khi đó, trần ban công sử dụng lam gỗ nhựa ngoài trời gam nâu trầm, không chỉ gia tăng tính thẩm mỹ mà còn có khả năng chống chịu tốt trước điều kiện khí hậu khắc nghiệt, góp phần kéo dài tuổi thọ công trình.


Ban công được mở rộng theo chuẩn phong thủy, mang đến sự cân bằng trong tổng thể kiến trúc và tạo nên một khoảng không gian thoáng đãng đầy tiện ích. Với diện tích rộng rãi, gia chủ có thể dễ dàng sắp đặt bàn trà hay tiểu cảnh xanh, biến nơi đây thành góc thư giãn lý tưởng để tận hưởng gió trời và phóng tầm mắt ra cảnh quan xung quanh.
Lan can ban công được làm từ kính cường lực trong suốt, vừa đảm bảo độ an toàn tuyệt đối vừa tối đa hóa khả năng đón sáng và mở rộng tầm nhìn. Cách xử lý tinh tế này không chỉ tạo cảm giác không gian rộng mở, hiện đại, sang trọng mà còn giúp tăng cường sự kết nối hài hòa giữa nội thất bên trong và thiên nhiên bên ngoài.

Ngôi nhà được xây dựng trên thế đất hướng Tây Bắc với kích thước 7,5 x 15,3m và tổng diện tích sử dụng khoảng 210m², trong đó các kiến trúc sư đã khéo léo quy hoạch công năng hợp lý, vừa đảm bảo sự tiện nghi và riêng tư, vừa giữ được sự kết nối hài hòa để mang đến một không gian sống ấm áp, thoải mái cho cả gia đình.

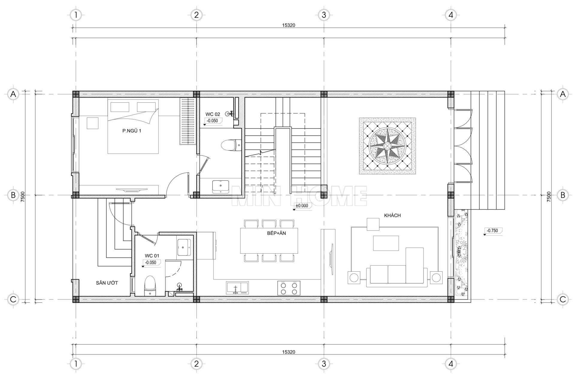
Ngay khi bước qua cửa chính, bạn sẽ bắt gặp khoảng đệm thông thoáng mở ra không gian phòng khách sang trọng bên trái – nơi phản ánh gu thẩm mỹ tinh tế, sự hiếu khách của gia chủ và đồng thời giữ vai trò là “trái tim” kết nối toàn bộ ngôi nhà.
Liền kề đó là khu bếp – ăn được thiết kế hiện đại, tiện nghi, đi kèm WC chung và một cửa phụ dẫn ra sân sau, giúp không khí luôn lưu thông và tạo sự gắn kết với thiên nhiên. Ngay cạnh cầu thang, một phòng ngủ khép kín được bố trí khéo léo, mang đến sự riêng tư tối đa mà vẫn đảm bảo tính tiện lợi trong sinh hoạt thường ngày.

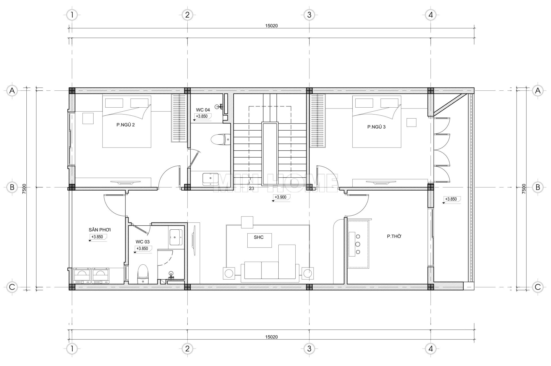
Bước lên tầng hai, không gian đầu tiên hiện ra là phòng sinh hoạt chung ấm áp, nơi gắn kết các thành viên trong gia đình sau những giờ làm việc và học tập. Phòng thờ được bố trí ở vị trí phong thủy thuận lợi, hướng thẳng ra ban công rộng mở, vừa đón sáng và gió trời, vừa mang đến nguồn sinh khí dồi dào và may mắn cho gia chủ.
Hai phòng ngủ được sắp đặt cân đối ở hai bên cầu thang, đảm bảo tính riêng tư nhưng vẫn duy trì sự gắn kết hài hòa giữa các không gian. Nhà vệ sinh chung được đặt trùng trục với tầng một nhằm tối ưu hệ thống kỹ thuật, đồng thời kết hợp cùng khu giặt phơi phía sau gọn gàng, giúp cuộc sống sinh hoạt trở nên tiện nghi, khoa học và trọn vẹn hơn.









