Bạn đang tìm kiếm một mẫu nhà cấp 4 mái Nhật 3 phòng ngủ giá rẻ vừa đẹp, vừa tiện nghi cho gia đình? Với phong cách thiết kế hiện đại, tối ưu công năng và chi phí xây dựng hợp lý, mẫu thiết kế nhà đẹp chính là lựa chọn lý tưởng dành cho những gia đình mong muốn có một không gian sống ấm cúng, đầy đủ tiện ích mà vẫn tiết kiệm chi phí.
Thông tin nhà vườn mái Nhật giá rẻ 3 phòng ngủ
| Chủ đầu tư: Anh Nguyễn Đức Dinh | Địa chỉ: Hữu Lũng, Lạng Sơn |
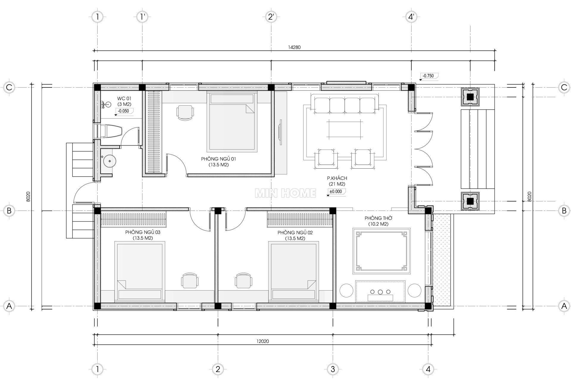
| Mặt tiền: 8m | Kích thước xây dựng: 8 x 14,2m |
| Số tầng: 1 tầng | Loại hình: Nhà mái Nhật hiện đại |
| Tổng diện tích: 113m2 | |
| Công năng: Phòng khách, phòng thờ, 3 phòng ngủ, 1 wc | |
| Đơn vị thiết kế: CÔNG TY TNHH THIẾT KẾ & XÂY DỰNG MINHOME | |
Khám phá 3D nhà mái Nhật 3 phòng ngủ đẹp
Mẫu nhà cấp 4 mái Nhật 3 phòng ngủ được thiết kế theo phong cách nhỏ gọn, tinh giản nhưng vẫn nổi bật với nét hiện đại và sang trọng. Điểm nhấn ấn tượng của công trình chính là hệ mái Nhật bề thế – kiểu mái mang tính thẩm mỹ cao, được nhiều gia đình Việt lựa chọn nhờ khả năng chống nóng, thoát nước tốt và phù hợp với điều kiện khí hậu nước ta. Ngôi nhà không chỉ đáp ứng nhu cầu sinh hoạt tiện nghi mà còn mang lại cảm giác thư thái, gần gũi với thiên nhiên nhờ sự hòa quyện giữa kiến trúc và cảnh quan sân vườn.

Về ngoại thất, công trình lựa chọn gam màu trắng tinh khôi làm chủ đạo, mang đến vẻ đẹp thanh thoát và tinh tế. Trên nền trắng ấy, những điểm nhấn màu xanh ghi nhẹ nhàng được phối hợp khéo léo, tạo nên sự hiện đại và cuốn hút, đồng thời làm bật lên đường nét kiến trúc của ngôi nhà. Sự kết hợp màu sắc hài hòa không chỉ giúp công trình trở nên cân đối, bắt mắt mà còn thể hiện rõ gu thẩm mỹ tinh tế của gia chủ.

Ngôi nhà càng thêm bề thế nhờ hệ thống cột vuông đối xứng tại sảnh chính, tạo cảm giác vững chãi và kiên cố. Các đường kẻ lõm tinh xảo trên bề mặt cột góp phần tăng chiều sâu thẩm mỹ, đồng thời mang lại hiệu ứng sang trọng. Bên cạnh đó, phần tường mặt tiền được ốp gạch inax kết hợp gạch giả gỗ, vừa tăng độ bền, vừa tạo điểm nhấn kiến trúc độc đáo, giúp công trình giữ được vẻ đẹp lâu dài theo thời gian.

Hệ thống cửa kính khung nhôm Xingfa được bố trí hợp lý, mang lại sự thông thoáng, hiện đại cho ngôi nhà. Nhờ thiết kế cửa kính rộng, các không gian bên trong luôn ngập tràn ánh sáng tự nhiên, giúp mở rộng tầm nhìn và kết nối chặt chẽ với khung cảnh bên ngoài. Điều này không chỉ mang lại bầu không khí trong lành, mà còn giúp gia chủ tận hưởng cảm giác sống hòa quyện với thiên nhiên.

Đặc biệt, kiến trúc sư đã khéo léo bố trí công trình gọn về một phía, nhường phần diện tích còn lại để thiết kế sân vườn xanh mát. Khu vực sân được quy hoạch rõ ràng: một bên dành làm chỗ để xe ô tô, phần còn lại trồng cây xanh, lát lối đi và bố trí chòi nghỉ. Sự sắp xếp này vừa nâng cao tính tiện ích, vừa tạo không gian thư giãn lý tưởng cho cả gia đình sau những giờ làm việc căng thẳng. Đây chính là điểm cộng lớn khiến mẫu nhà cấp 4 mái Nhật trở thành lựa chọn hoàn hảo cho những ai yêu thích sự yên bình và chan hòa cùng thiên nhiên.

Từ mặt bằng định vị có thể thấy rõ khuôn viên đất cũng như vị trí xây dựng của ngôi nhà cấp 4 mái Nhật đẹp này. Công trình được thiết kế trên diện tích 8 x 14,2m, tổng diện tích sử dụng khoảng 113m². Với tỷ lệ hợp lý, ngôi nhà không chỉ đảm bảo đầy đủ công năng mà còn tối ưu hóa không gian, tạo sự cân đối giữa kiến trúc và cảnh quan xung quanh.

Từ sảnh chính bước vào là không gian phòng khách rộng rãi, được thiết kế thoáng đãng để tiếp đón khách và sinh hoạt chung cho cả gia đình. Gần với phòng khách là khu vực phòng thờ trang nghiêm, đảm bảo yếu tố phong thủy và sự tôn kính với tổ tiên. Nhà cấp 4 mái Nhật bố trí 3 phòng ngủ, mỗi phòng có diện tích khoảng 13,5m², đủ rộng để sắp xếp nội thất tiện nghi và mang lại sự riêng tư cho các thành viên. Cuối nhà là khu vực nhà vệ sinh chung, thiết kế gọn gàng và thuận tiện cho quá trình sử dụng.









