Mẫu nhà 2 tầng mái bằng 4 phòng ngủ mà Min Home thiết kế cho gia đình anh Đông tại Thái Nguyên mang phong cách hiện đại với hình khối rõ ràng và tỉ lệ cân đối. Không gian bên trong được phân chia hợp lý, đáp ứng tốt nhu cầu sinh hoạt của gia đình nhiều thế hệ và tạo sự thuận tiện trong sử dụng hằng ngày. Đây là lựa chọn phù hợp cho những ai muốn sở hữu một ngôi nhà bền vững, thẩm mỹ và mang lại trải nghiệm sống thoải mái lâu dài.
Thông tin nhà 2 tầng mái bằng
| Chủ đầu tư: Anh Đông (chị Thuỷ) | Địa chỉ: Phú Bình, Thái Nguyên |
| Mặt tiền: 9m | Kích thước xây dựng: 9 x 12m |
| Số tầng: 2 tầng | Loại hình: Nhà mái bằng hiện đại |
| Tổng diện tích: 160m2 | |
Công năng:
| |
| Đơn vị thiết kế: CÔNG TY TNHH THIẾT KẾ & XÂY DỰNG MINHOME | |
Mẫu nhà 2 tầng mái bằng 4 phòng ngủ đẹp hiện đại, công năng vượt trội
Mẫu nhà mái bằng 2 tầng 4 phòng ngủ được tạo hình từ các khối vuông mạnh mẽ, kết hợp những mảng kiến trúc có kích thước khác nhau để tạo nên ngoại thất lạ mắt và cân đối. Cách xử lý hình khối này giúp không gian bên trong nhận nhiều ánh sáng tự nhiên hơn, đồng thời tăng khả năng lưu thông gió. Nhờ đó, ngôi nhà vừa toát lên vẻ hiện đại, sang trọng vừa mang lại cảm giác thoải mái và gần gũi với cảnh quan xung quanh.

Nhìn trực diện, ngôi nhà 2 tầng 4 phòng ngủ mái bằng nổi bật với hình khối vuông rõ ràng và các đường nét mạch lạc, tạo cảm giác hiện đại ngay từ cái nhìn đầu tiên. Sự kết hợp giữa màu trắng và ghi giúp mặt tiền trông thanh thoát hơn, còn những mảng đá ốp được bố trí có chủ đích làm công trình thêm chắc chắn và giàu chiều sâu. Tổng thể mang đến vẻ sang sạch, hợp với xu hướng kiến trúc hiện nay.

Cổng nhà được thiết kế theo phong cách tối giản, dùng thép và các lam trang trí để tạo vẻ hiện đại và ăn ý với hệ tường rào xung quanh. Những đường thẳng gọn giúp mặt tiền trông sạch và có điểm nhấn vừa phải. Trên tầng hai, lan can thép sơn tĩnh điện mang lại sự thông thoáng nhưng vẫn đảm bảo an toàn, đặc biệt khi kết hợp cùng mảng xanh làm ngôi nhà thêm sinh động và dễ chịu khi nhìn vào.

Cửa chính bằng gỗ được thiết kế kéo dài theo chiều cao mặt tiền, tạo cảm giác ấm và giúp ngôi nhà nổi bật hơn khi nhìn từ xa. Hệ cửa sổ và cửa phụ dùng nhôm kính Xingfa mang lại lượng sáng lớn, đồng thời giữ cho tổng thể trông gọn và hiện đại. Bậc tam cấp cao 450 mm so với mặt đường cũng giúp chống nước mưa hiệu quả, trong khi lớp đá granite ốp toàn bộ bậc tạo sự chắc chắn và duy trì vẻ sang ngay cả khi phải tiếp xúc thường xuyên với thời tiết.

Hệ mái bằng được thiết kế phẳng và chắc, giúp ngôi nhà trông vững và hiện đại hơn. Trên mái, téc nước và thái dương năng được đặt đúng vị trí để không ảnh hưởng đến hình khối chung. Cách bố trí này vừa phục vụ sinh hoạt hằng ngày, vừa giúp tiết kiệm điện và tạo nên một công trình thân thiện với môi trường.

Ngôi nhà 2 tầng mái bằng 4 phòng ngủ của gia đình anh Đông toát lên sự chỉn chu trong cách lựa chọn vật liệu và cách sắp đặt từng chi tiết. Bố cục công năng được chia rõ ràng để các thành viên sử dụng thuận tiện, đồng thời vẫn đảm bảo những yêu cầu cơ bản về phong thủy. Những khoảng xanh đặt xen kẽ cũng giúp không gian luôn thoáng và cân bằng, tạo cảm giác yên tĩnh ngay cả khi ngôi nhà nằm trong khu vực đông đúc.

Ngôi nhà được đặt ở hướng Đông Bắc trên diện tích xây dựng 9 x 12 m, với tổng diện tích sử dụng 160m², đủ rộng để bố trí các không gian sinh hoạt một cách thoáng và hợp lý. Hướng nhà này nhận nắng và gió khá đồng đều, giúp bầu không khí bên trong luôn thoải mái. Nhờ lợi thế vị trí và mặt bằng gọn, công trình có điều kiện tốt để tối ưu công năng và tạo cảm giác dễ chịu trong mọi hoạt động hằng ngày.

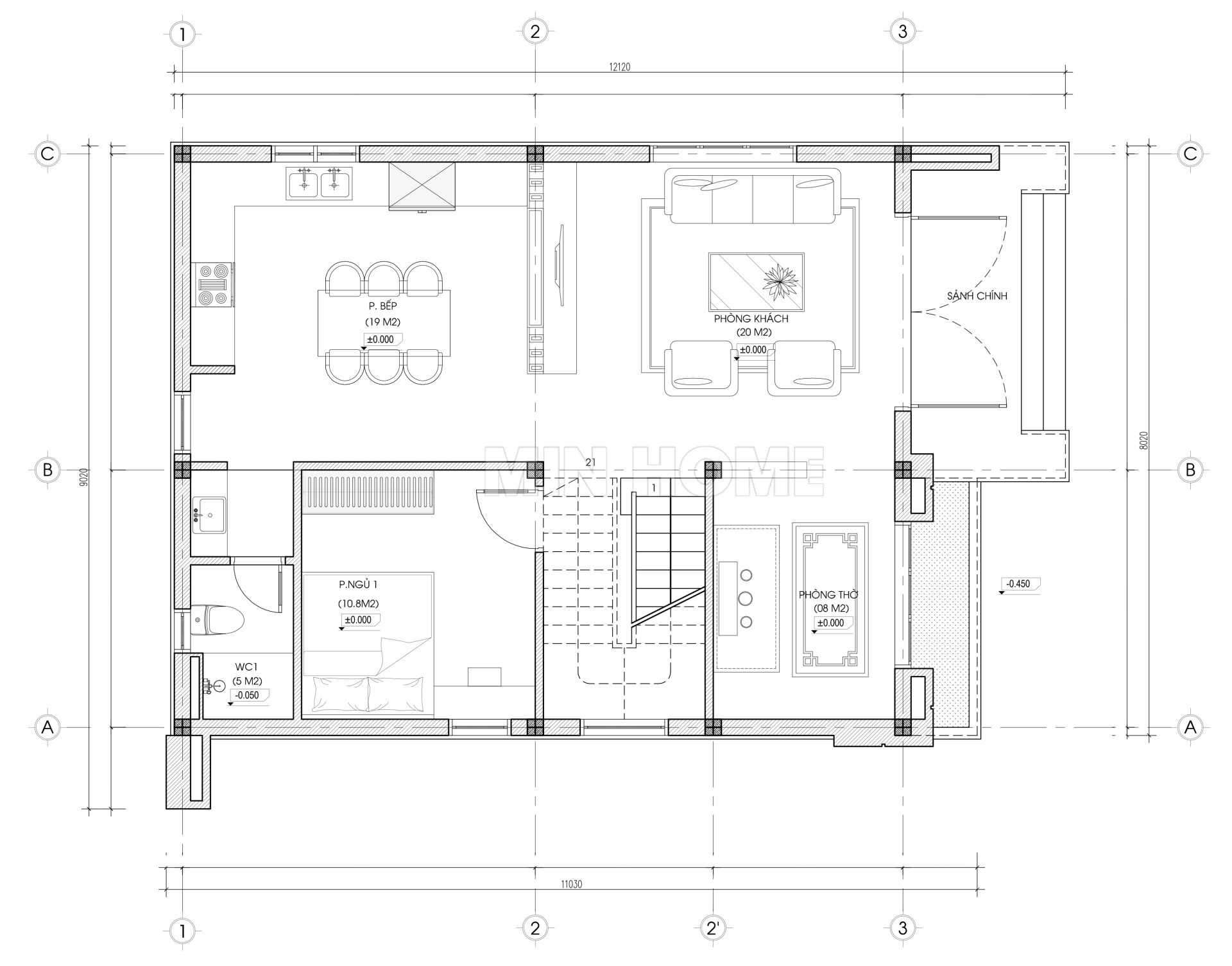
Từ sảnh chính bước vào, phòng khách mở ra với không gian rộng và thoáng, nội thất được chọn kỹ nên nhìn vừa sang vừa hợp mắt. Bên phải là phòng thờ đặt gọn gàng, sử dụng ban thờ gỗ tự nhiên và được xoay đúng hướng mặt tiền để giữ sự trang trọng và hỗ trợ phong thủy.
Đi tiếp vào bên trong là khu bếp ăn ấm và dễ dùng, đủ rộng để cả nhà sinh hoạt thoải mái. Tầng một còn có một phòng ngủ tiện lợi và một vệ sinh chung, giúp việc di chuyển và sử dụng hằng ngày luôn thuận tiện.

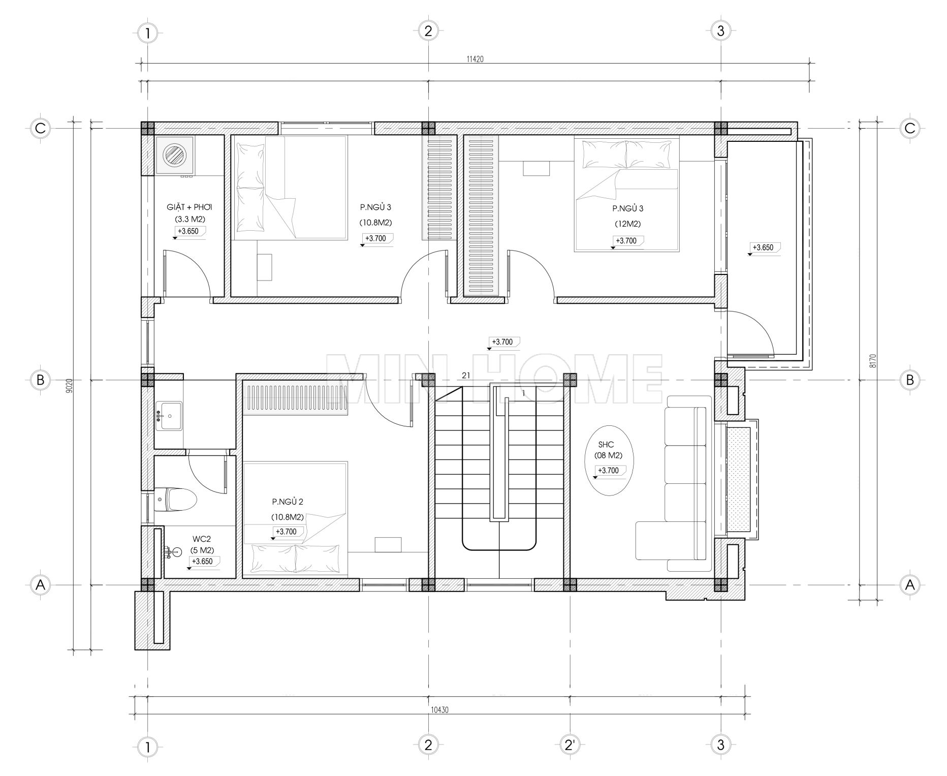
Tầng 2 được sắp xếp gọn và hợp lý với phòng sinh hoạt chung đặt gần sảnh tầng, tạo không gian mở để các thành viên dễ trò chuyện và quây quần. Ba phòng ngủ đều thoáng, có diện tích đủ rộng và được bố trí nội thất vừa phải để giữ sự thoải mái khi nghỉ ngơi. Khu vệ sinh chung cùng khu giặt phơi được đưa về cuối nhà nhằm giữ sự kín đáo, hạn chế ẩm và giúp toàn tầng luôn sạch, dễ lưu thông.








