Thông tin nhà 2 tầng mái bằng
| Chủ đầu tư: Anh Lương Bảo Lộc | Địa chỉ: Ninh Lộc, Nghệ An |
| Mặt tiền: 7,5m | Kích thước xây dựng: 7,5 x 15,2m |
| Số tầng: 2 tầng | Loại hình: Nhà mái bằng hiện đại |
| Tổng diện tích: 185m2 | |
Công năng:
|
|
| Đơn vị thiết kế: CÔNG TY TNHH THIẾT KẾ & XÂY DỰNG MINHOME | |
Mẫu nhà hiện đại 2 tầng mái bằng đẹp tinh tế, sang trọng
Ngôi nhà 2 tầng mái bằng được tạo hình theo phong cách hiện đại, chú trọng xử lý mảng khối dứt khoát, mạch lạc, mang lại cảm giác vững chãi nhưng không khô cứng. Bảng màu trắng kết hợp ghi xám giúp tôn lên đường nét kiến trúc, đồng thời tạo diện mạo thanh lịch, dễ thích nghi với thời gian và môi trường xung quanh. Việc lựa chọn các vật liệu như kính cường lực, nhôm xingfa, gỗ nhựa conwood và đá ốp hoàn thiện góp phần nâng cao độ bền, tối ưu công năng và mang đến không gian sống tiện nghi, hiện đại.

Hệ cửa của ngôi nhà sử dụng kính cường lực kết hợp khung nhôm Xingfa chất lượng cao, mang đến diện mạo hiện đại, gọn gàng và phù hợp với xu hướng kiến trúc đương đại. Thiết kế này giúp khai thác tối đa ánh sáng tự nhiên, tạo cảm giác không gian thoáng đãng, mở rộng tầm nhìn và kết nối hài hòa với bên ngoài.
Bên cạnh yếu tố thẩm mỹ, cửa nhôm kính còn đảm bảo khả năng cách âm, cách nhiệt tốt, góp phần mang lại môi trường sống yên tĩnh, tiện nghi và tiết kiệm năng lượng cho gia đình.

Khu vực ban công chữ L được thiết kế như một không gian nghỉ ngơi ngoài trời, kết hợp cây xanh và tiểu cảnh nhằm tạo sự cân bằng giữa kiến trúc và thiên nhiên. Cách bố trí khéo léo giúp ngôi nhà luôn thông thoáng, đồng thời mang lại điểm nhấn mềm mại, dễ chịu cho tổng thể hình khối.
Lan can kính cường lực trong suốt không chỉ làm mặt tiền trở nên thanh thoát, hiện đại hơn mà còn mở rộng tầm nhìn, tăng khả năng đón sáng và lưu thông không khí cho không gian sống.

Khu vực mái sảnh được hoàn thiện bằng gỗ nhựa conwood, mang lại sắc thái ấm áp, sang trọng và đảm bảo độ bền cao trước tác động của thời tiết. Phía trên là hệ lam che nắng kết hợp khung thép và lam gỗ tông nâu, vừa tăng tính thẩm mỹ hiện đại vừa hạn chế hấp thụ nhiệt, giúp không gian bên trong mát mẻ hơn. Khi kết hợp với hệ đèn LED bố trí hợp lý, khu vực sảnh trở nên nổi bật về đêm, tạo ấn tượng thân thiện và nâng tầm diện mạo tổng thể của ngôi nhà.

Hệ mái bằng được thiết kế gọn gàng, cân đối về tỷ lệ, đảm bảo hài hòa với cảnh quan xung quanh và không gây cảm giác nặng nề cho tổng thể công trình. Bề mặt mái sử dụng gạch ốp tông ghi vừa tăng độ bền, hạn chế bám bẩn, vừa giúp giảm hấp thụ nhiệt hiệu quả trong điều kiện thời tiết nắng nóng. Nhờ cách xử lý này, không gian bên trong luôn giữ được sự mát mẻ, góp phần nâng cao tiện nghi và tuổi thọ cho ngôi nhà.

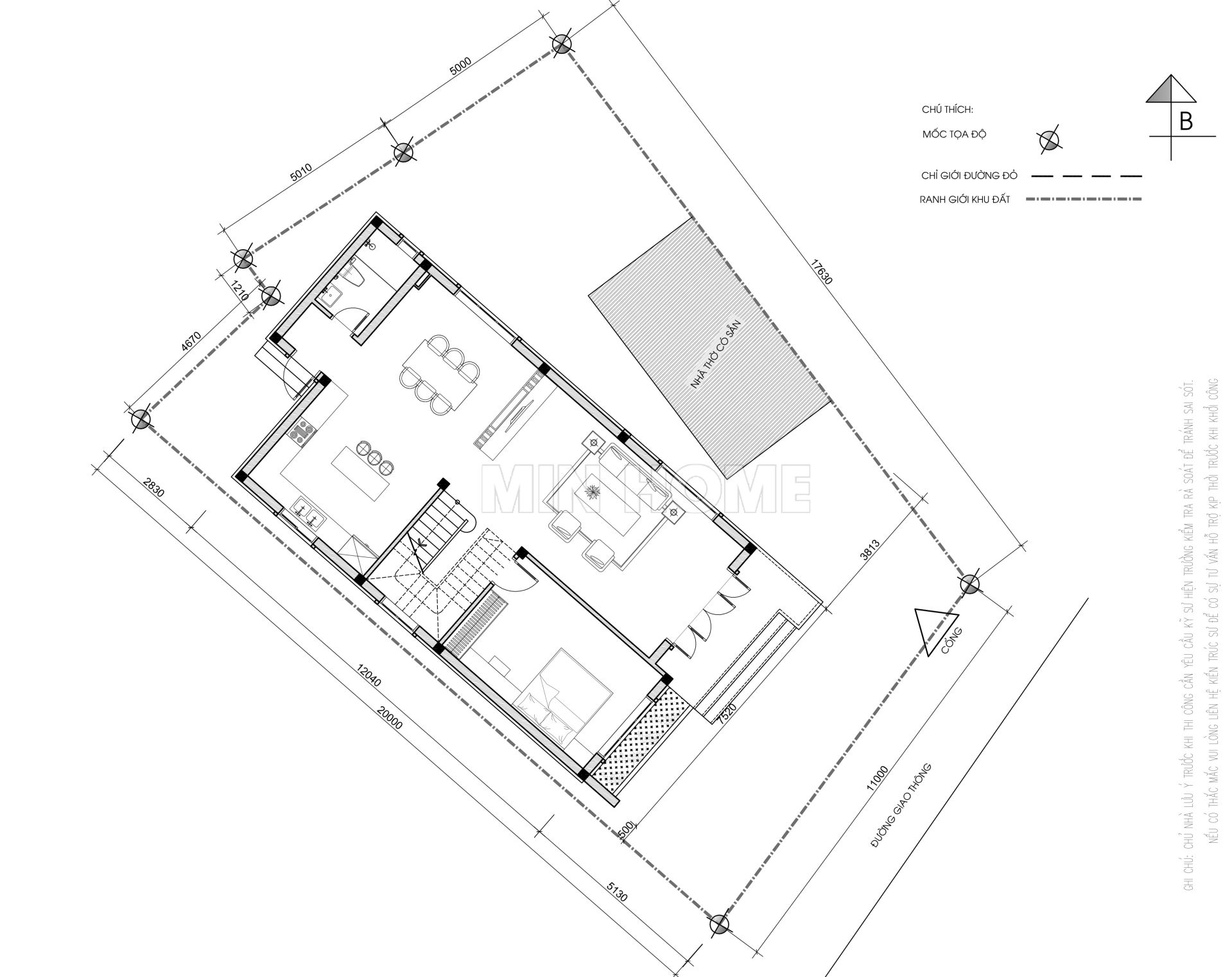
Công trình sở hữu quy mô 7,5 x 15,2m, được bố trí linh hoạt để phù hợp với điều kiện quỹ đất đô thị, với tổng diện tích sử dụng khoảng 185m² và 3 phòng ngủ rộng rãi, đáp ứng tốt nhu cầu sinh hoạt của gia đình nhiều thế hệ. Thiết kế chú trọng các khoảng mở và hệ cửa thông thoáng, giúp không khí lưu thông liên tục, tận dụng ánh sáng tự nhiên và mang lại cảm giác mát mẻ, dễ chịu trong suốt quá trình sử dụng.

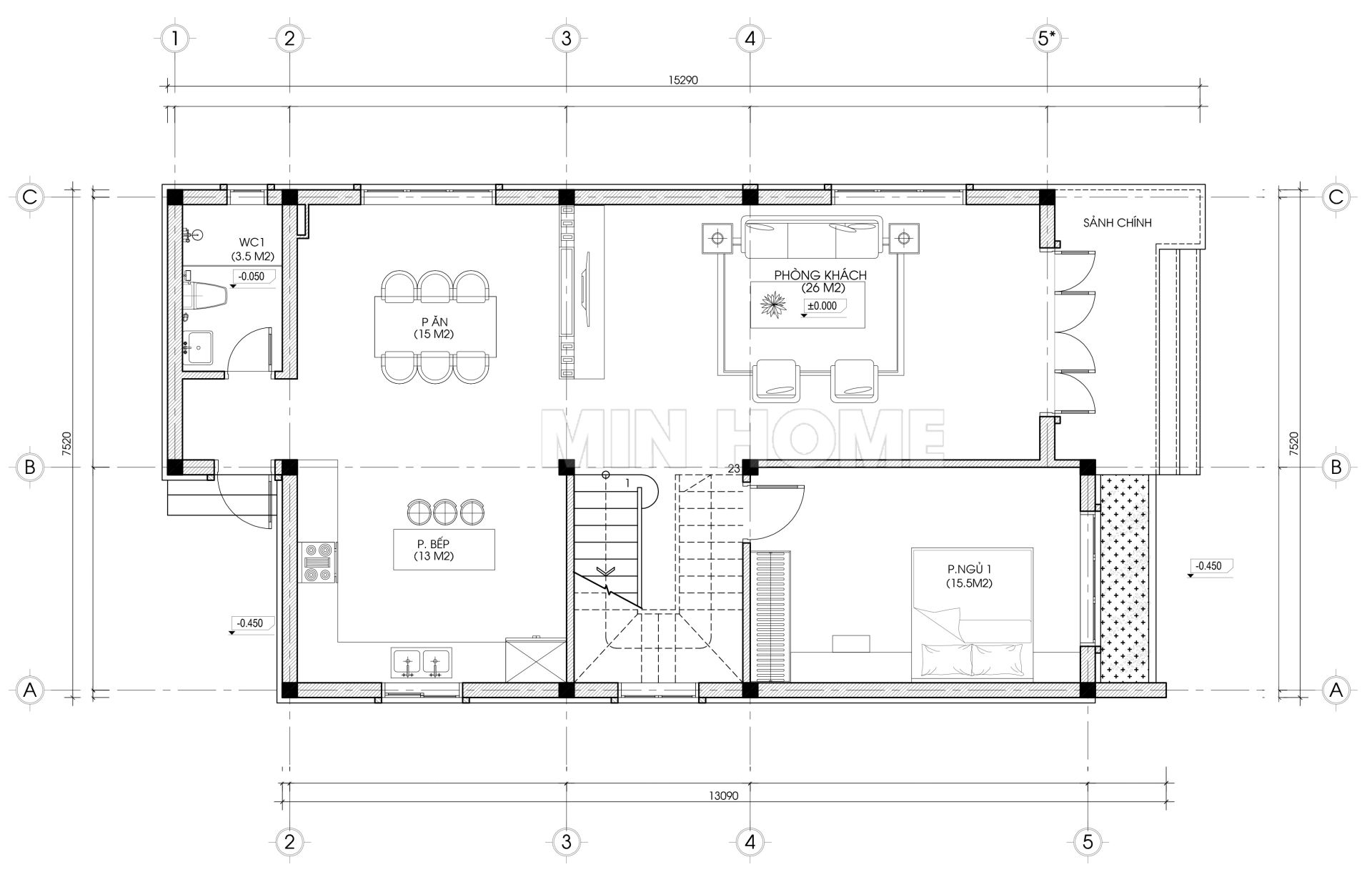
Ngay từ lối vào, không gian để xe được sắp xếp khoa học, tách biệt hợp lý nhưng vẫn thuận tiện kết nối với phòng khách thoáng sáng, mang lại cảm giác rộng rãi và thân thiện cho khu vực sinh hoạt chung. Phía trong là khu bếp – phòng ăn bố trí liền mạch, kết hợp phòng ngủ khép kín cạnh cầu thang và nhà vệ sinh chung cuối nhà, giúp tối ưu công năng, đảm bảo sự tiện lợi và riêng tư trong sinh hoạt hằng ngày.

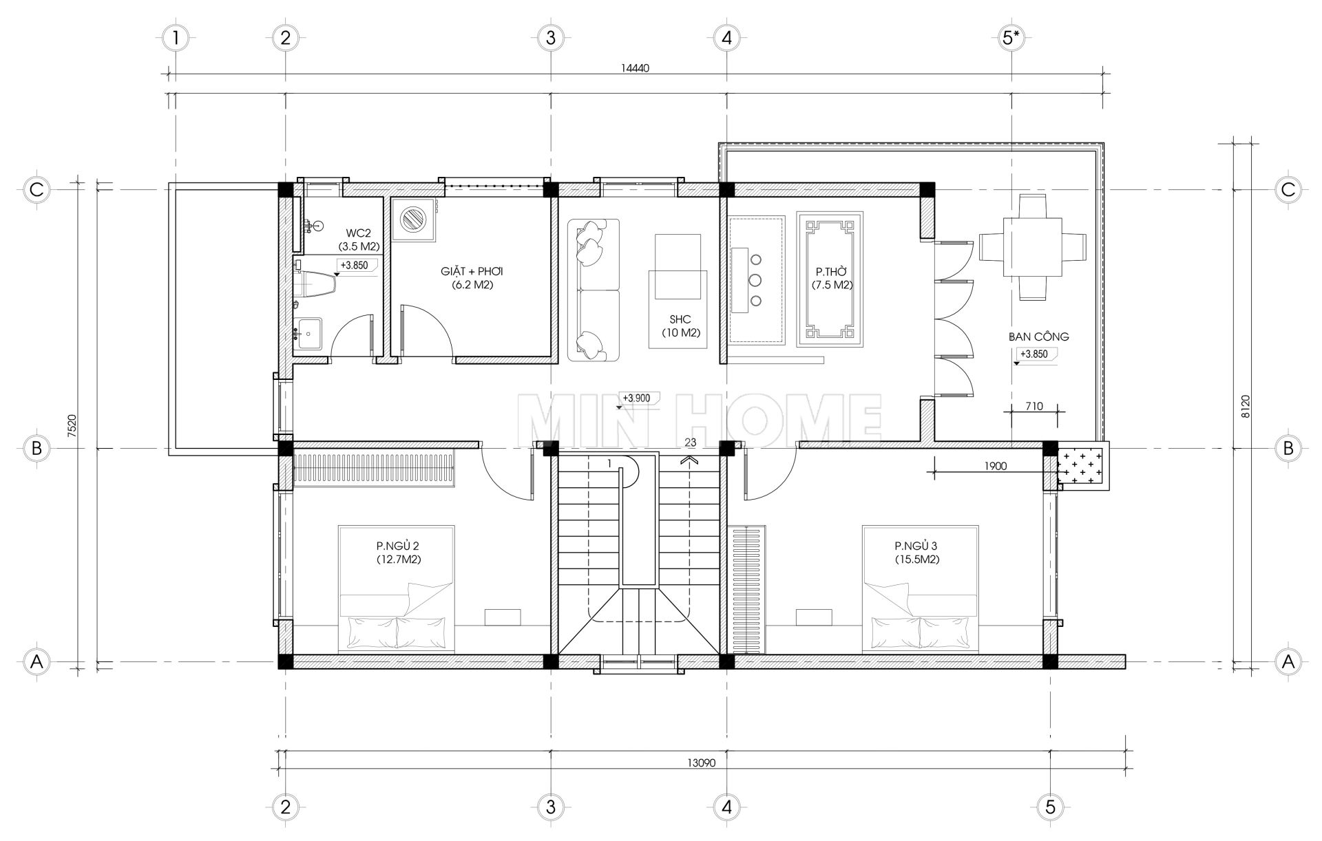
Không gian tầng 2 được tổ chức khoa học với khu thờ cúng đặt phía trước, hướng ra ban công thoáng đãng để đón gió và ánh sáng, kết hợp phòng sinh hoạt chung mở tại sảnh tầng, tạo nơi sum họp và thư giãn cho các thành viên. Hai phòng ngủ bố trí cân đối quanh khu vực cầu thang, đi kèm phòng giặt phơi và vệ sinh chung, giúp đảm bảo sự riêng tư, tiện nghi và vận hành sinh hoạt thuận tiện mỗi ngày.



