Mẫu nhà cấp 4 mái bằng chữ L đang trở thành lựa chọn phổ biến nhờ hình thức hiện đại, dễ bố trí công năng và tận dụng hiệu quả quỹ đất. Dựa trên xu hướng đó, Min Home đã thực hiện thiết kế cho gia đình chú Chu tại Hà Tĩnh một công trình hài hòa về thẩm mỹ, tiện nghi trong sử dụng và thể hiện rõ phong cách sống gọn gàng, tinh tế của gia chủ.
Thông tin nhà cấp 4 mái bằng
| Chủ đầu tư: Chú Trương Doãn Chu | Địa chỉ: Đồng Tiến, Hà Tĩnh |
| Mặt tiền: 11,8m | Kích thước xây dựng: 11,8 x 13,8m |
| Số tầng: 1 tầng | Loại hình: Nhà chữ L mái bằng hiện đại |
| Tổng diện tích: 115m2 | |
| Công năng:
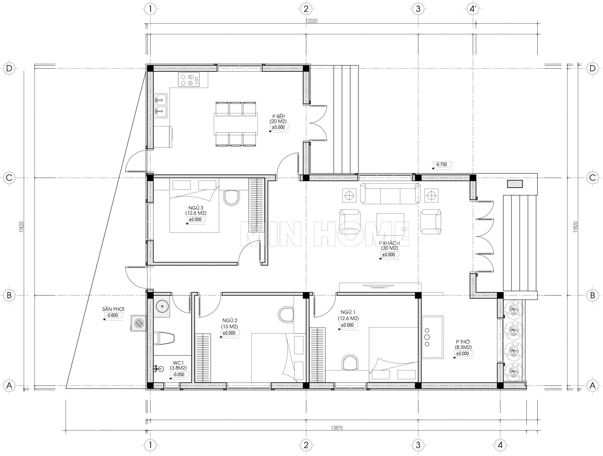
Phòng khách, phòng thờ, phòng bếp, 3 phòng ngủ, 1 wc |
|
| Đơn vị thiết kế: CÔNG TY TNHH THIẾT KẾ & XÂY DỰNG MINHOME | |
Mẫu nhà cấp 4 mái bằng nổi bật với thiết kế hình chữ L ấn tượng
Mẫu nhà cấp 4 chữ L mái bằng sở hữu tạo hình chắc khỏe với bố cục mạch lạc, sử dụng các đường nét thẳng dứt khoát để làm nổi bật phong cách hiện đại. Sự kết hợp giữa mảng tường giả đá vân mây, gạch trang trí và hệ cửa kính lớn không chỉ tăng chiều sâu thẩm mỹ mà còn giúp không gian bên trong đón sáng tốt, kết nối hài hòa với cảnh quan xung quanh và nâng tầm trải nghiệm sống.

Mặt tiền nhà chữ L mái bằng được mở rộng hợp lý, kết hợp mảng xanh bao quanh giúp tổng thể trở nên thông thoáng, nhẹ nhàng và giàu sức sống. Bảng màu trắng – xám ghi phối cùng cửa nhôm kính Xingfa, gạch trang trí và đá granite cao cấp tạo nên diện mạo hiện đại, chắc chắn, đồng thời nâng cao giá trị thẩm mỹ và độ bền cho công trình.

Thiết kế nhà cấp 4 chữ L mang lại lợi thế lớn trong việc phân tách công năng rõ ràng, khai thác hiệu quả diện tích đất và tạo khoảng mở thông thoáng cho không gian sống. Việc sử dụng đồng bộ hệ cửa nhôm kính cường lực không chỉ giúp công trình toát lên vẻ hiện đại, tinh tế mà còn tăng khả năng đón sáng, kết nối trong – ngoài và đảm bảo độ bền, an toàn trong quá trình sử dụng lâu dài.

Hệ tam cấp 5 bậc được thiết kế với cao độ hợp lý, giúp công trình thêm cao thoáng, vững chãi và hạn chế hiệu quả tình trạng nước mưa hắt ngược vào bên trong. Khu vực sảnh và bậc thềm ốp đá granite bền chắc, sắc sảo, vừa đảm bảo tính thẩm mỹ vừa tạo lối tiếp cận trang trọng, góp phần tôn lên diện mạo sang trọng cho ngôi nhà ngay từ bên ngoài.


Không chỉ sở hữu diện mạo hiện đại và tinh tế, ngôi nhà cấp 4 chữ L mái bằng còn được đánh giá cao nhờ phương án công năng khoa học, trong đó ba phòng ngủ bố trí hợp lý, đảm bảo sự riêng tư, thuận tiện và hài hòa về phong thủy. Công trình xây dựng theo hướng Đông Bắc, trên diện tích 11,8 x 13,8m với tổng sàn sử dụng khoảng 115m², mang đến không gian sống gọn gàng, dễ sử dụng và phù hợp với nhịp sinh hoạt của gia đình hiện đại.

Từ lối sảnh chính, không gian phòng khách hiện ra với diện tích rộng rãi, được bố trí làm trung tâm sinh hoạt và tiếp đón của cả gia đình. Khu vực phòng thờ đặt liền kề, sắp xếp khéo léo để đảm bảo sự trang nghiêm, đồng thời vẫn giữ được tính kết nối hài hòa với không gian chung.

Lối sảnh phụ dẫn trực tiếp vào khu bếp và phòng ăn gọn gàng, thuận tiện cho việc nấu nướng, dùng bữa và lưu thông hàng ngày. Ba phòng ngủ được phân bổ hợp lý nhằm đảm bảo sự riêng tư, yên tĩnh, kết hợp với nhà vệ sinh chung đặt cuối nhà giúp tối ưu công năng và mang lại sự tiện nghi cho toàn bộ ngôi nhà.


