Trong những năm gần đây, nhà cấp 4 mái bằng hiện đại đang trở thành lựa chọn ưu tiên của nhiều gia đình Việt nhờ thiết kế gọn gàng, chi phí xây dựng hợp lý và khả năng ứng dụng linh hoạt trên nhiều diện tích đất. Không chỉ mang vẻ đẹp tối giản, trẻ trung, mẫu nhà này còn đáp ứng tốt nhu cầu sinh hoạt tiện nghi, dễ thi công và bền vững theo thời gian. Mẫu MN05045 là một ví dụ tiêu biểu, được tối ưu cả về công năng lẫn thẩm mỹ, phù hợp với những gia chủ đang tìm kiếm giải pháp xây nhà tiết kiệm nhưng vẫn đảm bảo không gian sống thoải mái, hiện đại.
Thông tin nhà cấp 4 mái bằng hiện đại
| Chủ đầu tư: Anh Hoàng Văn Đức | Địa chỉ: Hưng Hà, Thái Bình |
| Mặt tiền: 11,3m | Kích thước xây dựng: 11,3 × 12,3m |
| Số tầng: 1 tầng | Loại hình: Nhà vườn mái Nhật hiện đại |
| Tổng diện tích: 138m2 | |
| Công năng:
Phòng khách, phòng thờ, phòng bếp ăn, 4 phòng ngủ, 2 wc, phòng tắm |
|
| Đơn vị thiết kế: CÔNG TY TNHH THIẾT KẾ & XÂY DỰNG MINHOME | |
Ngắm nhìn 3D nhà cấp 4 mái bằng hiện đại
Nhà cấp 4 mái bằng được đánh giá là giải pháp xây dựng kinh tế và khoa học, đặc biệt phù hợp với những gia chủ yêu thích phong cách hiện đại nhưng vẫn mong muốn kiểm soát hiệu quả chi phí đầu tư. So với các kiểu mái Nhật hay mái Thái truyền thống, hệ mái bằng có kết cấu đơn giản hơn, giúp giảm đáng kể chi phí vật liệu, rút ngắn thời gian thi công và thuận tiện trong quá trình bảo trì, sửa chữa về sau. Chính sự tối giản trong thiết kế đã giúp mẫu nhà này tối ưu ngân sách nhưng vẫn đảm bảo đầy đủ tiện nghi và tính thẩm mỹ cho không gian sống.

Nhờ việc sử dụng các hình khối vuông vức, mạch lạc cùng bố cục tổng thể được tổ chức chặt chẽ, công trình mang đến cảm giác gọn gàng, khỏe khoắn và hiện đại. Kiến trúc sư lựa chọn gam màu trắng làm chủ đạo, kết hợp tinh tế với các mảng tường màu ghi nhằm tạo chiều sâu cho mặt đứng và tăng điểm nhấn thị giác. Sự phối hợp hài hòa giữa màu sắc trung tính và vật liệu hoàn thiện hiện đại không chỉ giúp công trình trở nên sang trọng hơn mà còn đảm bảo tính bền vững, phù hợp với xu hướng kiến trúc đương đại.

Không gian sống được thiết kế với nhiều mặt thoáng mở rộng ra khu vực sân vườn xung quanh, giúp ngôi nhà luôn đón nhận tối đa ánh sáng tự nhiên và gió trời. Hệ cửa kính lớn kết hợp cùng khung nhôm Xingfa cao cấp góp phần nâng cao giá trị thẩm mỹ, đồng thời đảm bảo khả năng cách âm, cách nhiệt hiệu quả. Nhờ đó, không gian bên trong luôn thông thoáng, dễ chịu và tạo sự kết nối hài hòa giữa kiến trúc và thiên nhiên.

Quan sát từ góc nhìn tổng thể, có thể thấy toàn bộ khuôn viên nhà cấp 4 mái bằng được quy hoạch khoa học với khoảng sân vườn rộng rãi, xen kẽ nhiều mảng xanh mang lại cảm giác mát mẻ và trong lành. Khu vực ngoại thất được bố trí hợp lý, không chỉ đáp ứng nhu cầu sinh hoạt ngoài trời mà còn góp phần nâng cao giá trị thẩm mỹ và chất lượng sống cho gia đình.

Công trình sử dụng hệ mái bằng phẳng theo phong cách hiện đại, tối giản, phù hợp với xu hướng thiết kế hiện nay. Kiểu mái này giúp tổng thể ngôi nhà trở nên gọn gàng, chắc chắn, đồng thời thuận tiện cho việc thi công và bảo trì lâu dài. Ngoài ra, mái bằng còn có thể linh hoạt tận dụng làm sân thượng, khu thư giãn hoặc lắp đặt hệ thống điện năng lượng mặt trời trong tương lai.

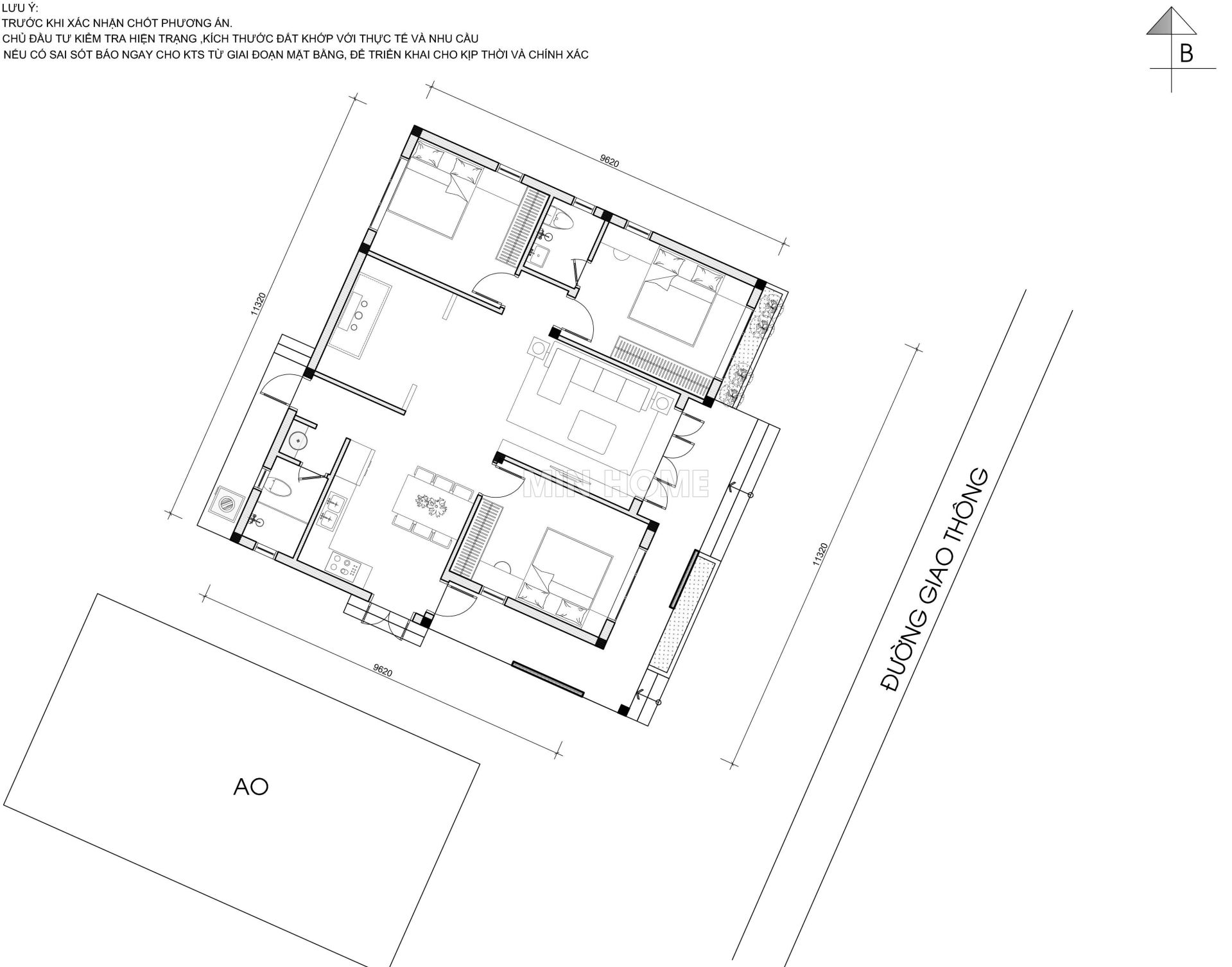
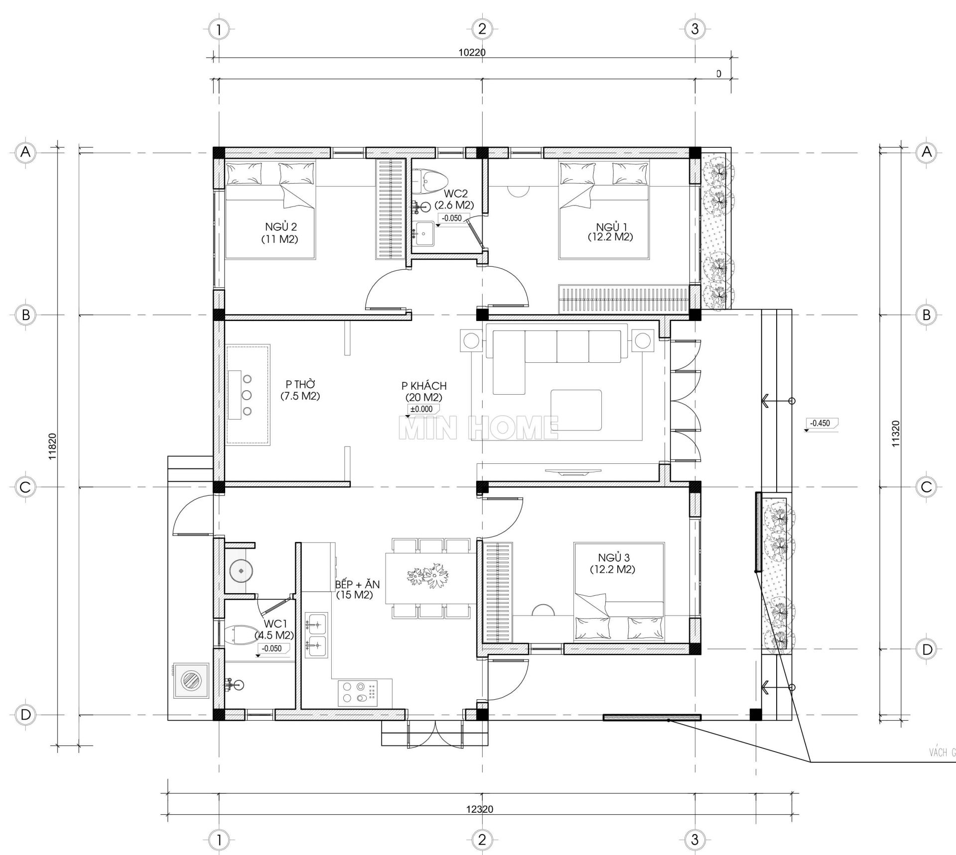
Hình ảnh mặt bằng định vị công trình thể hiện rõ toàn bộ khu đất khi quan sát từ trên cao, giúp gia chủ dễ dàng hình dung vị trí xây dựng cũng như cách tổ chức không gian tổng thể. Ngôi nhà cấp 4 mái bằng được triển khai trên diện tích 11,3 × 12,3m, với tổng diện tích sử dụng khoảng 138m², đáp ứng đầy đủ nhu cầu sinh hoạt tiện nghi cho gia đình, đồng thời đảm bảo sự cân đối giữa kiến trúc và cảnh quan xung quanh.

Mặt bằng bố trí công năng được sắp xếp khoa học và hợp lý. Từ sảnh chính bước vào là không gian phòng khách rộng rãi, thông thoáng, tạo cảm giác chào đón ngay từ những bước chân đầu tiên. Tiếp nối là khu vực phòng thờ được bố trí trang nghiêm, đảm bảo sự yên tĩnh và tôn trọng yếu tố tâm linh. Khu bếp – ăn được đặt gần sảnh phụ, thuận tiện cho việc di chuyển, thông gió và hạn chế mùi trong quá trình nấu nướng. Ngoài ra, ngôi nhà còn được bố trí 3 phòng ngủ tiện nghi, trong đó phòng ngủ số 01 có nhà vệ sinh khép kín, mang lại sự riêng tư và thoải mái cho gia chủ, các phòng ngủ còn lại được thiết kế hợp lý, đáp ứng tốt nhu cầu sinh hoạt chung của gia đình.



