Mẫu nhà cấp 4 mái bằng của gia đình chị Vân tại Nghệ An nổi bật với ngôn ngữ kiến trúc hiện đại, hình khối rõ ràng và tổng thể vững vàng, chỉn chu. Bên trong, công năng được tổ chức khoa học với ba phòng ngủ rộng rãi, đảm bảo sự thoải mái và tiện nghi trong sinh hoạt hằng ngày. Giải pháp thiết kế hợp lý giúp tận dụng tối đa diện tích sử dụng, vừa tối ưu chi phí đầu tư vừa đáp ứng trọn vẹn nhu cầu của gia đình.
Thông tin nhà cấp 4 mái bằng
| Chủ đầu tư: Chị Lương Thị Vân | Địa chỉ: Tiền Phong, Nghệ An |
| Mặt tiền: 7m | Kích thước xây dựng: 7 x 17m |
| Số tầng: 1 tầng | Loại hình: Nhà mái bằng hiện đại |
| Tổng diện tích: 115m2 | |
| Công năng: Phòng khách, phòng thờ, phòng bếp, 3 phòng ngủ, 1 phòng tắm, 2 wc | |
| Đơn vị thiết kế: CÔNG TY TNHH THIẾT KẾ & XÂY DỰNG MINHOME | |
Mẫu nhà cấp 4 mái bằng đẹp, tiết kiệm chi phí được ưa chuộng nhất
Ngôi nhà cấp 4 được định hình theo phong cách hiện đại với mái bằng gọn gàng, tạo dấu ấn kiến trúc rõ nét và khác biệt. Các khối hình học được xử lý mạch lạc, cân đối, mang lại cảm giác chắc chắn nhưng vẫn nhẹ nhàng về thị giác. Sự chọn lọc vật liệu và cách hoàn thiện tinh tế giúp công trình toát lên vẻ trẻ trung, phóng khoáng, đồng thời đáp ứng trọn vẹn tiêu chuẩn sống tiện nghi và sang trọng.

Công trình được thiết kế mở với hệ cửa nhôm kính cường lực cao cấp giúp khai thác tối đa ánh sáng tự nhiên và dòng đối lưu không khí, mang lại sự thông thoáng và cảm giác dễ chịu cho không gian sống. Các mảng kính lớn được xử lý tinh tế, vừa tạo điểm nhấn hiện đại cho kiến trúc, vừa thiết lập sự kết nối liền mạch giữa nội thất và cảnh quan bên ngoài. Nhờ đó, ngôi nhà luôn tràn đầy sinh khí, cho phép các thành viên tận hưởng trọn vẹn sự thư thái và gần gũi với thiên nhiên trong sinh hoạt hằng ngày.


Tông trắng kem được sử dụng làm nền chủ đạo, mang lại cảm giác trang nhã, nhẹ nhàng và giúp không gian trở nên thoáng đãng, rộng mở hơn. Trên nền sắc sáng ấy, các mảng đá xám vân mây cùng chi tiết lam gỗ nhựa nâu được điểm xuyết tinh tế, tạo chiều sâu thị giác và nhấn mạnh vẻ đẹp hiện đại của công trình. Cách phối màu hài hòa này không chỉ nâng tầm thẩm mỹ mà còn đáp ứng yếu tố phong thủy, góp phần mang đến sự an yên và vượng khí cho gia đình.

Phần chân tường được xử lý bằng đá chẻ xám đậm, tạo cảm giác vững chãi và làm nổi bật diện mạo hiện đại của công trình. Vật liệu này không chỉ tăng giá trị thẩm mỹ mà còn sở hữu khả năng chống ẩm, hạn chế bám bẩn và bảo vệ tường trước tác động của thời tiết. Nhờ đó, ngôi nhà giữ được vẻ bền đẹp lâu dài, đồng thời tối ưu chi phí bảo dưỡng trong suốt quá trình sử dụng.

Ngôi nhà cấp 4 mái bằng được xây dựng trên khu đất rộng thoáng, nơi cảnh quan cây xanh, tiểu cảnh và khu vực để xe được sắp xếp mạch lạc, tạo nên tổng thể hài hòa và chỉn chu. Những khoảng xanh được tổ chức như một không gian đệm sinh thái, góp phần thanh lọc không khí và mang lại cảm giác dễ chịu cho môi trường sống.
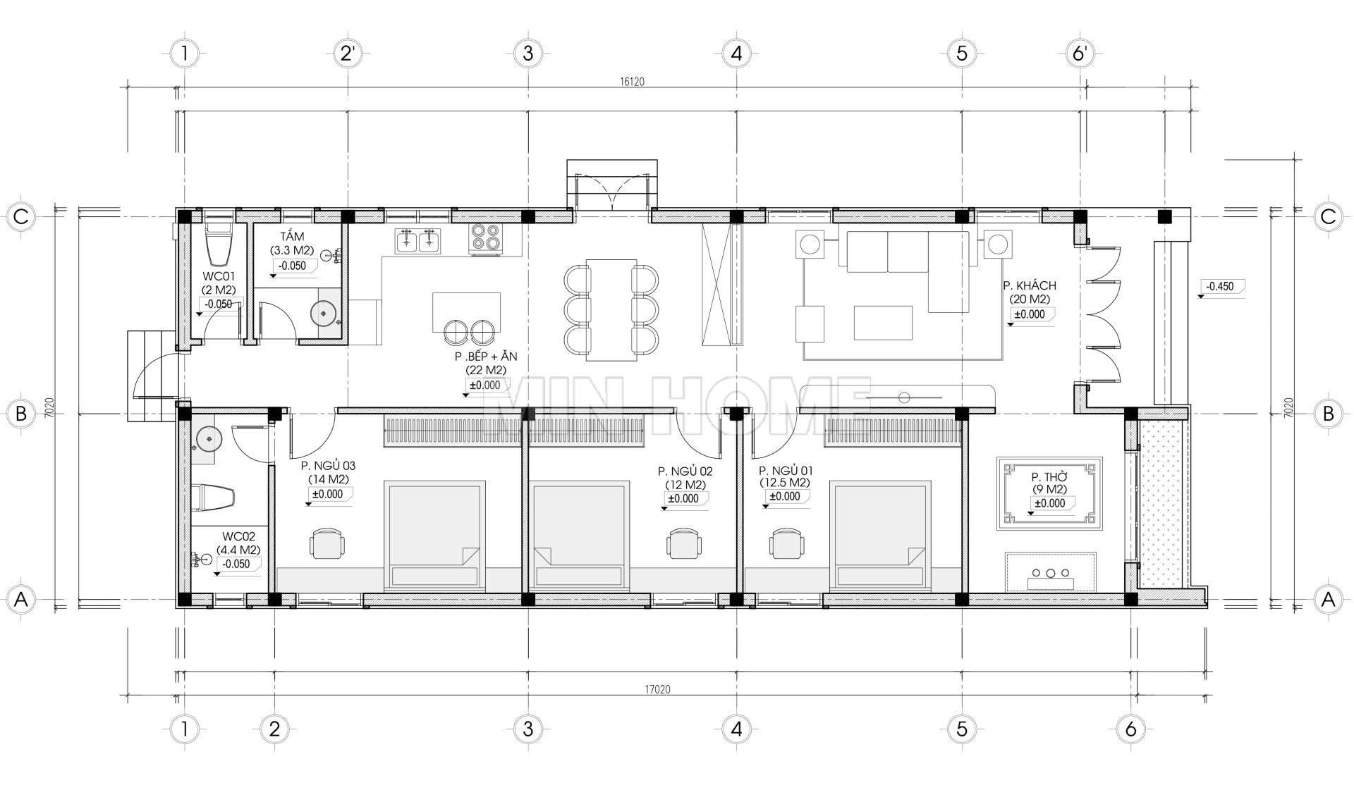
Bản vẽ chi tiết công năng
Công trình được bố trí tại vị trí hướng Đông Bắc, vừa đảm bảo yếu tố phong thủy, vừa đón gió và ánh sáng tự nhiên một cách thuận lợi. Với kích thước xây dựng 7 x 17m và tổng diện tích sử dụng khoảng 115m², ngôi nhà được quy hoạch hợp lý, đáp ứng đầy đủ không gian sinh hoạt tiện nghi, thoải mái cho gia đình trong quá trình sử dụng lâu dài.

Từ sảnh chính, phòng khách mở ra với không gian rộng thoáng và trang nhã, liền kề khu vực thờ tự được bố trí trang trọng, tạo nên sự hài hòa giữa sinh hoạt và giá trị tâm linh. Khu bếp – phòng ăn được tổ chức thông thoáng, kết nối thuận tiện với sảnh phụ, trong khi ba phòng ngủ sắp xếp gọn về một phía nhằm đảm bảo sự yên tĩnh, riêng tư cần thiết. Hệ thống phòng tắm và vệ sinh được phân bổ hợp lý, đáp ứng trọn vẹn công năng sử dụng và góp phần hoàn thiện trải nghiệm sống tiện nghi cho gia đình.









