Nếu gia chủ đề cao sự tối giản, tiện nghi và bài toán chi phí hợp lý, mẫu nhà vườn 1 tầng mái bằng của gia đình anh Hiếu tại Phú Thọ là lựa chọn đáng cân nhắc. Thiết kế tập trung vào hình khối gọn gàng, mạch lạc, hạn chế chi tiết nhưng vẫn toát lên vẻ hiện đại và sang trọng nhờ tỷ lệ kiến trúc cân đối, vật liệu chọn lọc. Không gian sống được mở rộng tối đa ra sân vườn, đón ánh sáng và gió tự nhiên, mang lại cảm giác thư thái, bền vững cho sinh hoạt lâu dài.
Thông tin nhà vườn mái bằng 1 tầng
| Chủ đầu tư: Anh Nguyễn Đình Hiếu | Địa chỉ: Việt Trì, Phú Thọ |
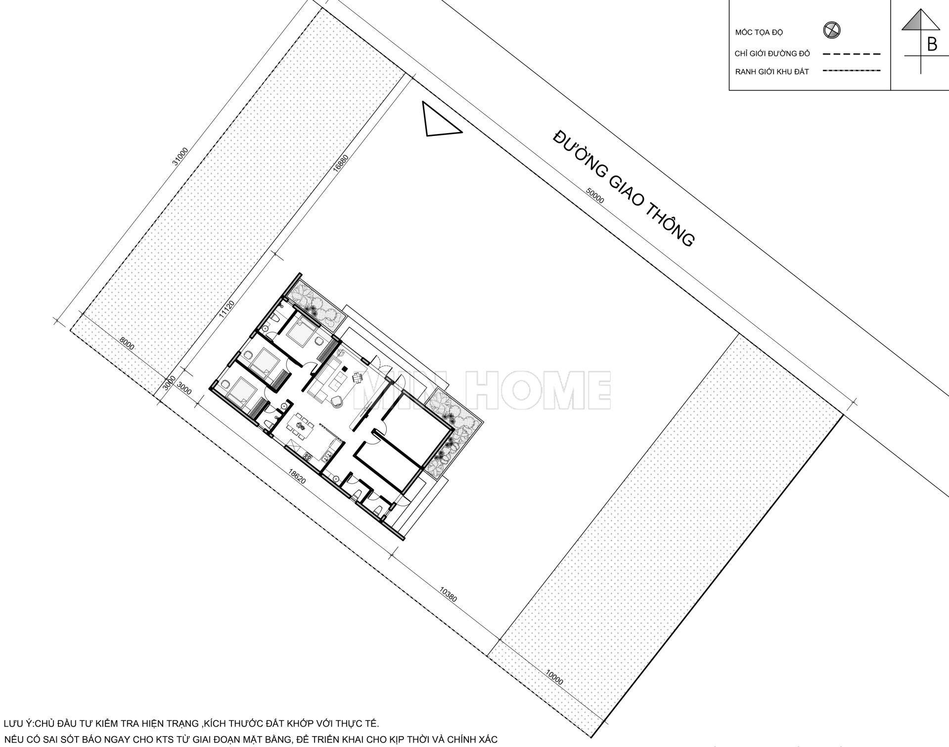
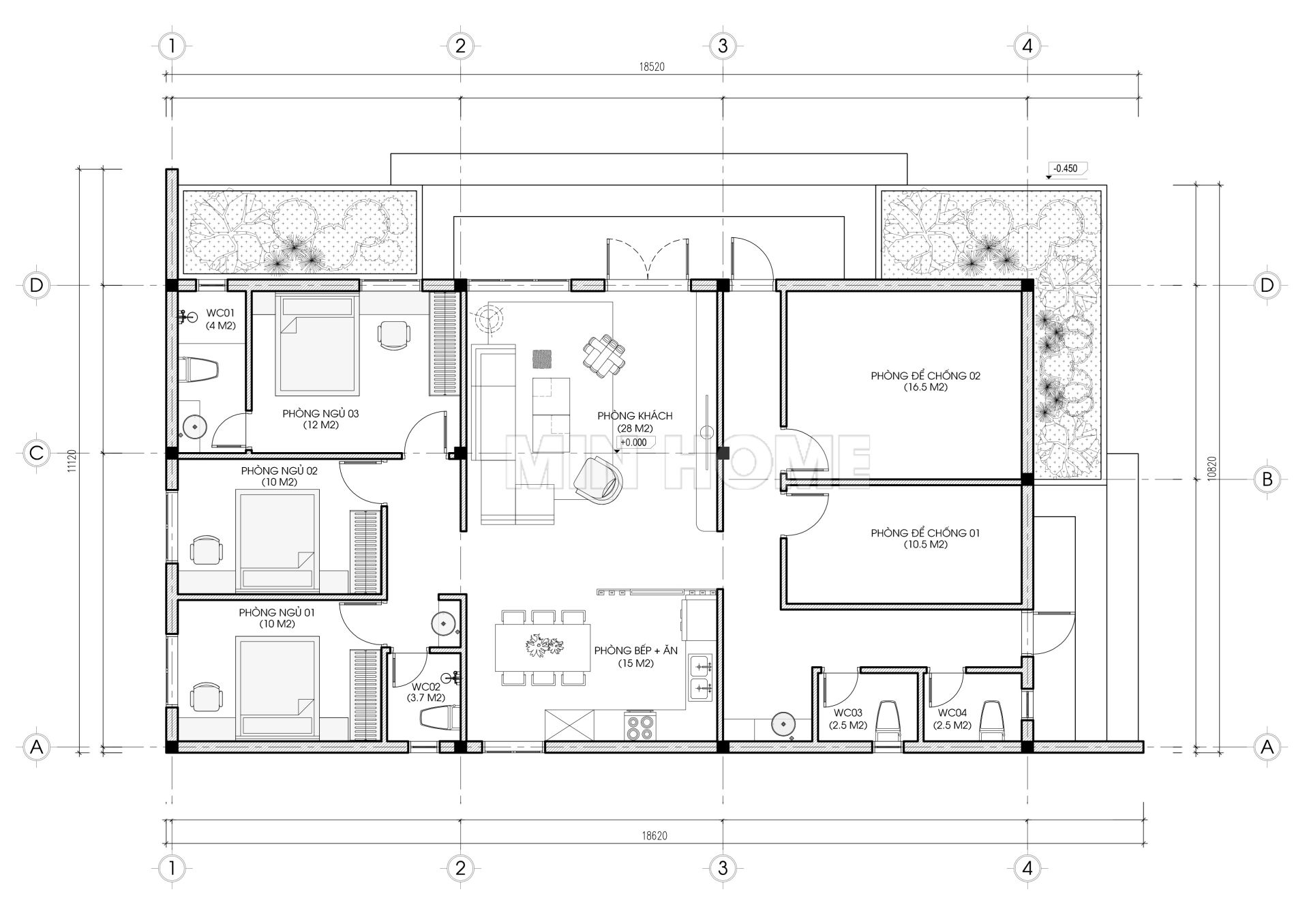
| Mặt tiền: 11,1m | Kích thước xây dựng: 11,1 x 18,6m |
| Số tầng: 1 tầng | Loại hình: Nhà vườn mái bằng hiện đại |
| Tổng diện tích: 150m2 | |
| Công năng: Phòng khách, phòng bếp, 3 phòng ngủ, 2 phòng trống, 2 wc | |
| Đơn vị thiết kế: CÔNG TY TNHH THIẾT KẾ & XÂY DỰNG MINHOME | |
Mẫu nhà vườn 1 tầng mái bằng hiện đại ai nhìn cũng mê
Ngôi nhà vườn 1 tầng mái bằng mang phong cách hiện đại, ưu tiên công năng linh hoạt và trải nghiệm sống thoải mái cho các gia đình trẻ. Ngôn ngữ thiết kế tiết chế, chú trọng tỷ lệ hình khối và cách xử lý bề mặt, giúp các vật liệu như kính, đá tự nhiên và gỗ nhựa phát huy giá trị thẩm mỹ lẫn độ bền. Tổng thể công trình vì thế toát lên vẻ thanh lịch, nhẹ nhàng nhưng vẫn đủ chiều sâu, tạo sức hút bền vững theo thời gian.

Ngôi nhà thu hút ánh nhìn nhờ mặt tiền rộng thoáng, tạo nên tỷ lệ kiến trúc hài hòa và cảm giác vững vàng cho tổng thể công trình. Các mảng khối được tổ chức mạch lạc, đường nét gãy gọn, nhấn mạnh tinh thần hiện đại và sự chỉn chu trong từng chi tiết. Bảng màu trắng, xám kết hợp sắc nâu trầm được xử lý tinh tế, vừa tăng chiều sâu cho mặt đứng vừa mang lại vẻ sang trọng, giúp công trình nổi bật cả ban ngày lẫn khi ánh đèn buông xuống.

Hệ cửa kính khung nhôm Xingfa được sắp xếp linh hoạt quanh công trình, giúp không gian bên trong luôn ngập tràn ánh sáng và mở ra tầm nhìn thoáng đãng hướng ra sân vườn. Khu hiên và sân trước được thiết kế rộng rãi, bậc cấp thấp tạo sự chuyển tiếp mềm mại giữa nội thất và cảnh quan, đồng thời là nơi lý tưởng để bố trí góc thư giãn ngoài trời. Cách tổ chức này không chỉ nâng cao trải nghiệm sống mà còn gia tăng giá trị sử dụng, làm nổi bật tinh thần tiện nghi của mẫu nhà vườn 1 tầng mái bằng.

Không gian sân vườn bao quanh công trình được tổ chức bài bản, với sự đan cài tinh tế giữa thảm xanh, tiểu cảnh và các lối dạo lát gạch gọn gàng. Cách bố trí cây cối có chủ đích giúp điều hòa vi khí hậu, mang lại cảm giác mát lành và thư thái cho sinh hoạt hằng ngày. Những mảng xanh mềm mại đóng vai trò cân bằng thị giác, làm dịu đi các khối kiến trúc hiện đại, đồng thời tăng sự gắn kết giữa ngôi nhà và thiên nhiên.

Kết cấu mái bằng được xử lý gọn gàng và chắc chắn, vừa gia tăng khả năng thích ứng với điều kiện thời tiết vừa tôn lên dáng vẻ hiện đại, thanh lịch của công trình. Vật liệu chống nóng chất lượng cao được lựa chọn kỹ lưỡng, giúp ổn định nhiệt độ bên trong và tối ưu hiệu quả sử dụng năng lượng. Các thiết bị kỹ thuật như bồn nước và hệ thống năng lượng mặt trời được sắp xếp khoa học trên mái, đảm bảo vận hành thuận tiện mà vẫn giữ trọn tính thẩm mỹ cho tổng thể ngôi nhà.

Công trình được xây dựng theo hướng Đông Bắc, sở hữu kích thước 11,1 x 18,6m với tổng diện tích sử dụng khoảng 150m². Mặt bằng được tổ chức theo hình khối vuông vức, gọn gàng, tạo điều kiện thuận lợi cho việc sắp xếp công năng khoa học, tối ưu không gian và đảm bảo sự tiện nghi trong quá trình sử dụng.










