Mẫu nhà vườn mái Nhật 4 phòng ngủ do Min Home thiết kế cho gia đình anh Y Rôm Niê tại Đắk Lắk gây ấn tượng với kiến trúc sang trọng, hài hòa cùng không gian sống hiện đại và tiện nghi. Sự kết hợp tinh tế giữa ngoại thất nổi bật và cảnh quan sân vườn xanh mát đã tạo nên một tổng thể cân đối, thể hiện rõ phong cách sống và gu thẩm mỹ riêng của gia chủ. Hãy cùng theo dõi bài viết dưới đây để khám phá chi tiết từng góc nhìn của công trình.
Thông tin nhà vườn mái Nhật 1 tầng
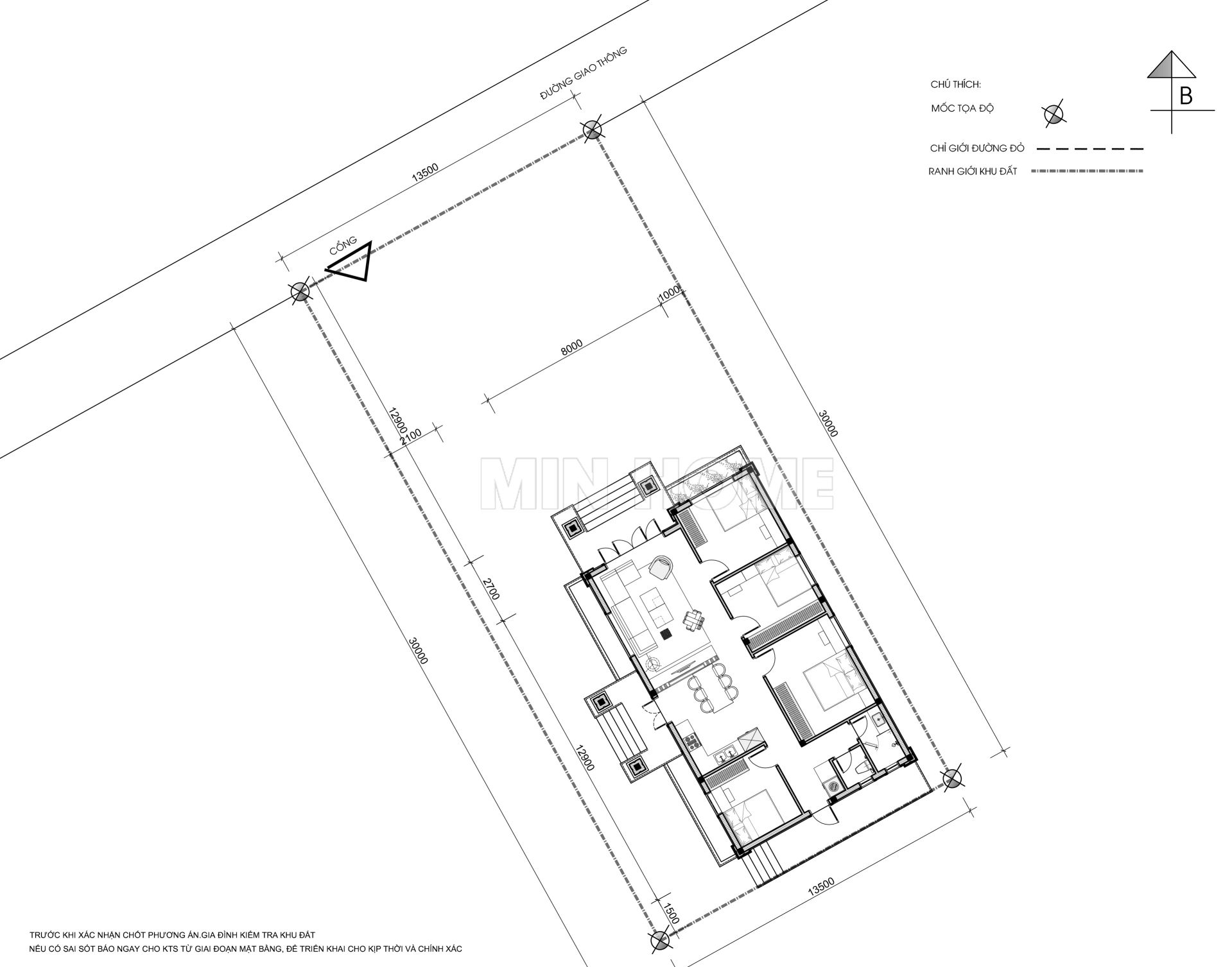
| Chủ đầu tư: Anh Y Rôm Niê | Địa chỉ: Ea Drông, Đắk Lắk |
| Mặt tiền: 10,4m | Kích thước xây dựng: 10,4 x 17,1m |
| Số tầng: 1 tầng | Loại hình: Nhà vườn mái bằng hiện đại |
| Tổng diện tích: 120m2 | |
| Công năng: Phòng khách, phòng bếp, 4 phòng ngủ, 1 phòng tắm, 1 wc | |
| Đơn vị thiết kế: CÔNG TY TNHH THIẾT KẾ & XÂY DỰNG MINHOME | |
Nhà vườn mái Nhật hiện đại 4 phòng ngủ đẹp
Ngôi nhà vườn mái Nhật được đặt trong không gian sân vườn xanh mát, mang lại cảm giác yên bình và bầu không khí trong lành cho cuộc sống hằng ngày. Kiến trúc công trình nổi bật với sự hài hòa trong bố cục và đường nét, đồng thời được nghiên cứu kỹ lưỡng theo các yếu tố phong thủy nhằm gia tăng sinh khí và sự hanh thông cho gia chủ. Công năng bên trong được tổ chức khoa học, đáp ứng nhịp sống hiện đại nhưng vẫn giữ được sự ấm áp, gắn kết của mái ấm gia đình.

Mặt tiền ngôi nhà gây ấn tượng với bố cục hình khối vuông vắn, hệ trụ cột chắc khỏe mang lại cảm giác bề thế và an toàn cho tổng thể công trình. Những đường kẻ rãnh tinh tế kết hợp cùng mảng ốp gạch thẻ Inax ở chân cột tạo điểm nhấn thẩm mỹ, góp phần làm nổi bật phong cách sang trọng và hiện đại. Phần khối đế được nâng cao, hoàn thiện bằng đá tự nhiên gam màu trung tính cùng bậc tam cấp ốp granite, giúp công trình thêm cao ráo, vững chãi và cuốn hút ngay từ lối tiếp cận.

Tổng thể kiến trúc lấy gam trắng làm chủ đạo, tạo nên phông nền tinh tế, tôn lên vẻ đẹp thanh lịch và sang trọng của công trình. Sự phối hợp hài hòa giữa mái Nhật ngói xanh, các mảng tường nhấn sắc xanh, hệ khung nhôm Xingfa màu đen cùng đá ốp ghi xám mang lại chiều sâu thẩm mỹ, đồng thời khẳng định phong cách hiện đại và bền vững. Bên cạnh yếu tố tạo hình, bảng màu và vật liệu còn được lựa chọn dựa trên các nguyên tắc phong thủy, góp phần cân bằng năng lượng và mang đến sự hanh thông, an yên cho không gian sống.

Không gian ngôi nhà vườn mái Nhật được định hình theo hướng mở, với hệ cửa nhôm kính Xingfa cao cấp bao quanh, vừa tôn lên vẻ đẹp hiện đại vừa tạo cảm giác rộng rãi và thông thoáng. Giải pháp thiết kế này giúp ánh sáng tự nhiên và không khí trong lành lưu thông hiệu quả, mang đến sự dễ chịu cho toàn bộ không gian nội thất. Đồng thời, các mảng kính lớn còn mở rộng tầm nhìn, tạo sự kết nối liền mạch giữa không gian sống bên trong và cảnh quan sân vườn bên ngoài.

Khuôn viên sân vườn bao quanh ngôi nhà cấp 4 mái Nhật được quy hoạch gọn gàng với mảng xanh và tiểu cảnh hài hòa, mang lại bầu không khí trong lành và cảm giác thư thái cho gia chủ. Phần sân lát gạch gam ghi xám tạo diện mạo hiện đại, sạch sẽ, đồng thời đảm bảo không gian rộng rãi cho việc đỗ xe, sinh hoạt và các hoạt động ngoài trời. Nhờ đó, cuộc sống hằng ngày trở nên tiện nghi, thoải mái và tràn đầy sinh khí.

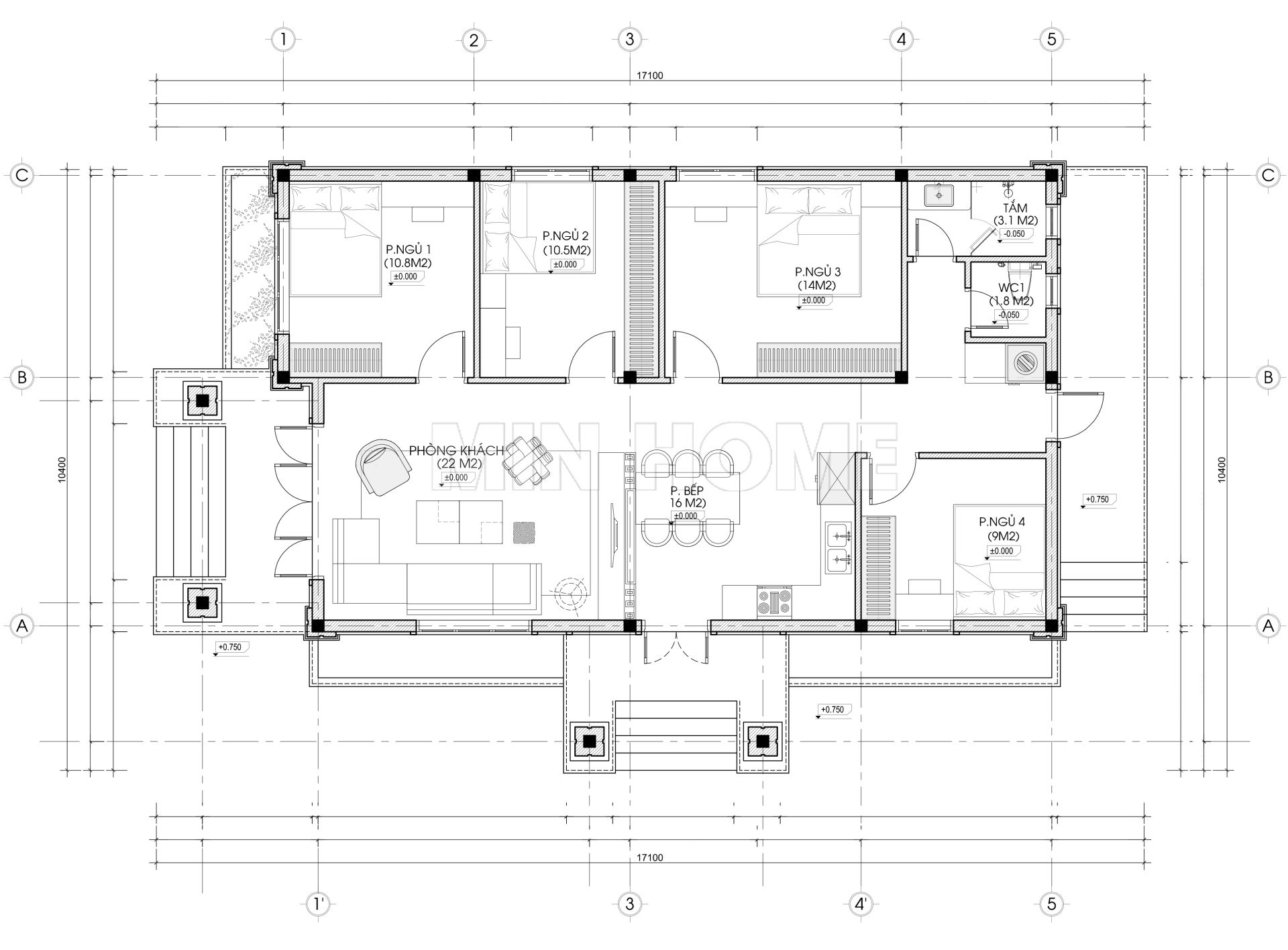
Bản vẽ chi tiết công năng
Công trình được thiết kế với kích thước 10,4 x 17,1m, tổng diện tích sử dụng khoảng 120m², mang đến không gian sống rộng rãi và tiện nghi với 4 phòng ngủ. Các khu vực chức năng được bố trí hài hòa, khoa học, đảm bảo sự thoải mái tối đa cho cả gia đình, đồng thời tạo nên một môi trường sống lý tưởng, tiện lợi và đầy đủ công năng.

Bước qua sảnh chính, bạn sẽ được chào đón bởi không gian phòng khách sang trọng, nơi thể hiện rõ nét gu thẩm mỹ tinh tế và sự hiếu khách của gia chủ. Với vị trí trung tâm, phòng khách không chỉ là nơi tiếp đón khách quý mà còn là điểm nhấn quan trọng trong tổng thể thiết kế nội thất.
Từ sảnh phụ dẫn thẳng đến phòng bếp ăn tiện nghi, ấm cúng. 4 phòng ngủ được bố trí hợp lý xung quanh nhà, phòng nào cũng có cửa sổ thoáng mát giúp thu hút ánh sáng tự nhiên và không khí trong lành. Cuối nhà còn 1 phòng tắm và 1 nhà vệ sinh chung, được sắp xếp khoa học để đáp ứng nhu cầu sinh hoạt hàng ngày của gia đình.









