Thông tin nhà ống 2 tầng 3 phòng ngủ
| Chủ đầu tư: Chị Dương Thị Thu Huyền | Địa chỉ: Phố Hiến, Hưng Yên |
| Mặt tiền: 5m | Kích thước xây dựng: 5 x 17m |
| Số tầng: 2 tầng | Loại hình: Nhà ống mái bằng hiện đại |
| Tổng diện tích: 175m2 | |
Công năng:
| |
| Đơn vị thiết kế: CÔNG TY TNHH THIẾT KẾ & XÂY DỰNG MINHOME | |
Nhà ống 2 tầng 3 phòng ngủ siêu đẹp với đường cong tinh tế
Mẫu nhà mái bằng 2 tầng nổi bật với ngôn ngữ kiến trúc hiện đại được làm mềm bằng các đường cong vòm tinh tế, mang lại cảm giác khác biệt so với những thiết kế nhà ống truyền thống. Việc tạo hình ban công cong kết hợp cùng mảng kính lớn không chỉ đóng vai trò điểm nhấn thẩm mỹ mà còn giúp mặt tiền trở nên thoáng rộng, cân đối hơn so với chiều ngang thực tế. Giải pháp này vừa tăng hiệu ứng thị giác, vừa cải thiện độ thông thoáng, đặc biệt phù hợp với những ngôi nhà ống có bề ngang hạn chế trong khu dân cư đông đúc.

Mặt tiền công trình trở nên cuốn hút nhờ hệ vòm cong tầng 2 được xem như điểm nhấn kiến trúc chủ đạo, với các đường nét liền mạch, dứt khoát nhưng vẫn giữ được sự mềm mại cần thiết. Khi kết hợp cùng ánh sáng tự nhiên, hình khối cong tạo nên hiệu ứng đổ bóng sinh động, góp phần làm rõ chiều sâu và tăng giá trị thẩm mỹ cho tổng thể mặt đứng.
Không chỉ mang ý nghĩa tạo hình, chi tiết đường cong còn được đánh giá cao về yếu tố phong thủy, tượng trưng cho sự linh hoạt, hài hòa và dòng chảy năng lượng tích cực. Nhờ đó, không gian sống trở nên cân bằng, dễ chịu hơn, đáp ứng mối quan tâm ngày càng lớn của các gia chủ nhà phố khi đầu tư cho một tổ ấm bền vững và lâu dài.

Công trình sử dụng bảng màu tinh tế với trắng kem làm nền, kết hợp cam đất và sắc đen làm điểm nhấn, tạo nên tổng thể vừa hiện đại vừa có chiều sâu. Gam trắng giúp mặt tiền luôn sáng sủa, gọn gàng, trong khi cam đất được nhấn nhá tại các chi tiết cong và mảng trang trí, mang lại cảm giác ấm áp và thể hiện rõ cá tính của gia chủ. Sự phối hợp màu sắc được tiết chế hợp lý, đủ để tạo dấu ấn riêng giữa dãy nhà ống đô thị mà vẫn giữ được sự hài hòa, không gây cảm giác phô trương hay lệch tông so với cảnh quan xung quanh.

Ngoại thất công trình được hoàn thiện bằng hệ vật liệu cao cấp với sự kết hợp đồng bộ giữa sơn hoàn thiện chất lượng cao, cửa kính viền đen, lan can kính trong suốt và các chi tiết kim loại sơn tĩnh điện, tạo nên diện mạo hiện đại, tinh gọn và bền bỉ theo thời gian.
Ở tầng 1, cửa cuốn được lựa chọn nhằm đảm bảo an ninh và thuận tiện trong sử dụng, đồng thời được thiết kế khéo léo để hòa nhập với tổng thể kiến trúc thông qua các đường bo mềm và hệ chiếu sáng trang trí tinh tế. Trong khi đó, hệ cửa kính lớn tại tầng 2 giúp không gian bên trong luôn thoáng sáng, mở rộng tầm nhìn và tăng sự kết nối giữa nội thất và môi trường bên ngoài, nâng cao chất lượng trải nghiệm sống cho gia chủ.

Mặc dù sở hữu diện tích khiêm tốn, ngôi nhà vẫn được khéo léo đưa các mảng xanh vào ban công và những khoảng tường lõm, tạo điểm nhấn sinh động cho mặt tiền. Cây xanh được lựa chọn và bố trí vừa đủ giúp kiến trúc trở nên mềm mại hơn, hạn chế cảm giác khô cứng của vật liệu xây dựng, đồng thời mang lại bầu không khí trong lành cho không gian sống. Bên cạnh giá trị thẩm mỹ, giải pháp này còn góp phần giảm nhiệt và cải thiện vi khí hậu, đặc biệt phù hợp với nhà phố chịu nhiều tác động của nắng nóng, đáp ứng xu hướng sống xanh mà nhiều gia chủ trẻ hiện nay hướng tới.
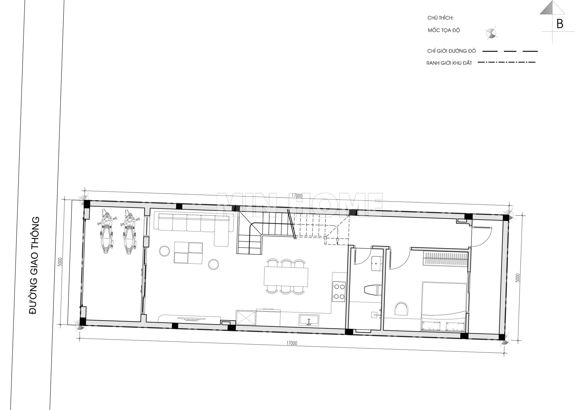
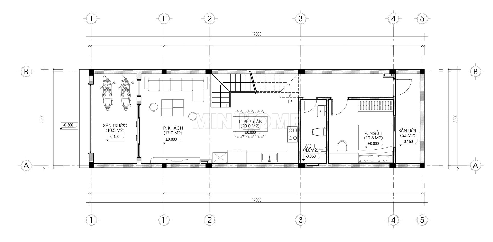
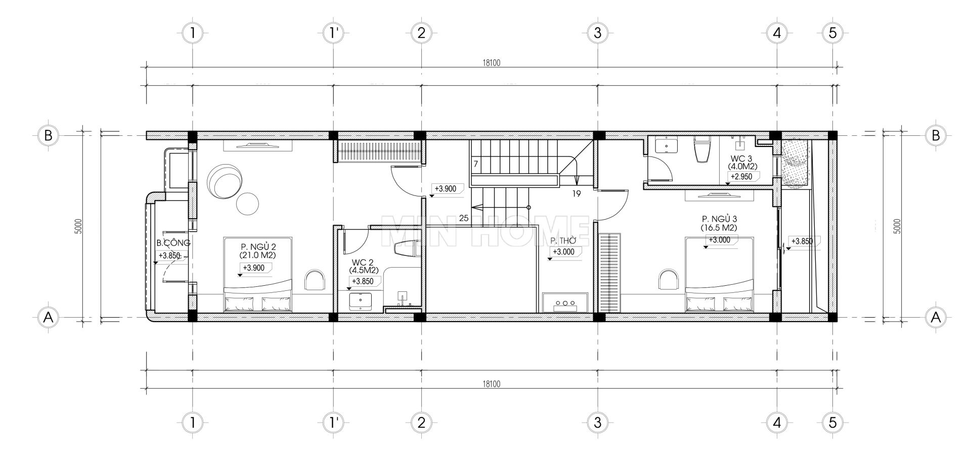
Bản vẽ chi tiết công năng

Công trình nằm ở hướng Tây Bắc, có kích thước 5 x 17m, tổng diện tích sử dụng rơi vào khoảng 175m². Mặt bằng công năng được bố trí khoa học, chú trọng tính tiện nghi và linh hoạt theo thói quen sinh hoạt thực tế, nhằm mang đến cho các thành viên trong gia đình một không gian sống tối ưu và thoải mái nhất.

Ngay từ lối vào, ngôi nhà được bố trí khoảng sân trước rộng 10,5m² làm khu vực để xe, đảm bảo sự gọn gàng và thuận tiện trong sinh hoạt hằng ngày. Không gian tiếp nối là phòng khách được thiết kế chỉn chu, mang vẻ sang trọng vừa đủ, vừa đáp ứng nhu cầu tiếp đón vừa thể hiện rõ gu thẩm mỹ và phong cách sống của gia chủ. Phía trong là khu bếp – phòng ăn sắp xếp hợp lý, tạo cảm giác ấm cúng, kết hợp cùng phòng ngủ riêng tư, khu vệ sinh và sân ướt cuối nhà, giúp công năng tầng 1 trở nên hoàn chỉnh, tiện nghi và phù hợp cho sinh hoạt lâu dài.

Không gian phòng thờ được đặt tại tầng 2 ở vị trí yên tĩnh, tách biệt khỏi khu sinh hoạt chung, vừa đảm bảo sự trang nghiêm cần thiết vừa thể hiện sự trân trọng các giá trị tâm linh của gia đình. Cùng tầng là hai phòng ngủ được bố trí khoa học, ưu tiên sự thông thoáng và riêng tư, mỗi phòng đều tích hợp vệ sinh khép kín, đáp ứng đầy đủ tiện nghi và mang lại cảm giác thoải mái trong quá trình sử dụng lâu dài.







