Nhà cấp 4 mái Nhật ngói đỏ cam đang trở thành xu hướng được nhiều gia đình yêu thích nhờ sự kết hợp hài hòa giữa kiến trúc hiện đại và nét truyền thống gần gũi. Mẫu nhà đẹp gây ấn tượng mạnh ngay từ cái nhìn đầu tiên với hệ mái Nhật thanh thoát, gam ngói đỏ cam nổi bật cùng bố cục không gian gọn gàng, khoa học. Không chỉ sở hữu vẻ ngoài độc đáo, cuốn hút, công trình còn được tối ưu công năng, phù hợp với nhu cầu sinh hoạt của gia đình hiện đại, mang đến không gian sống tiện nghi, ấm cúng và bền vững theo thời gian.
Thông tin nhà cấp 4 mái Nhật 3 phòng ngủ
| Chủ đầu tư: Anh Đinh Duy Ngọc | Địa chỉ: Đắk Hà, Quảng Ngãi |
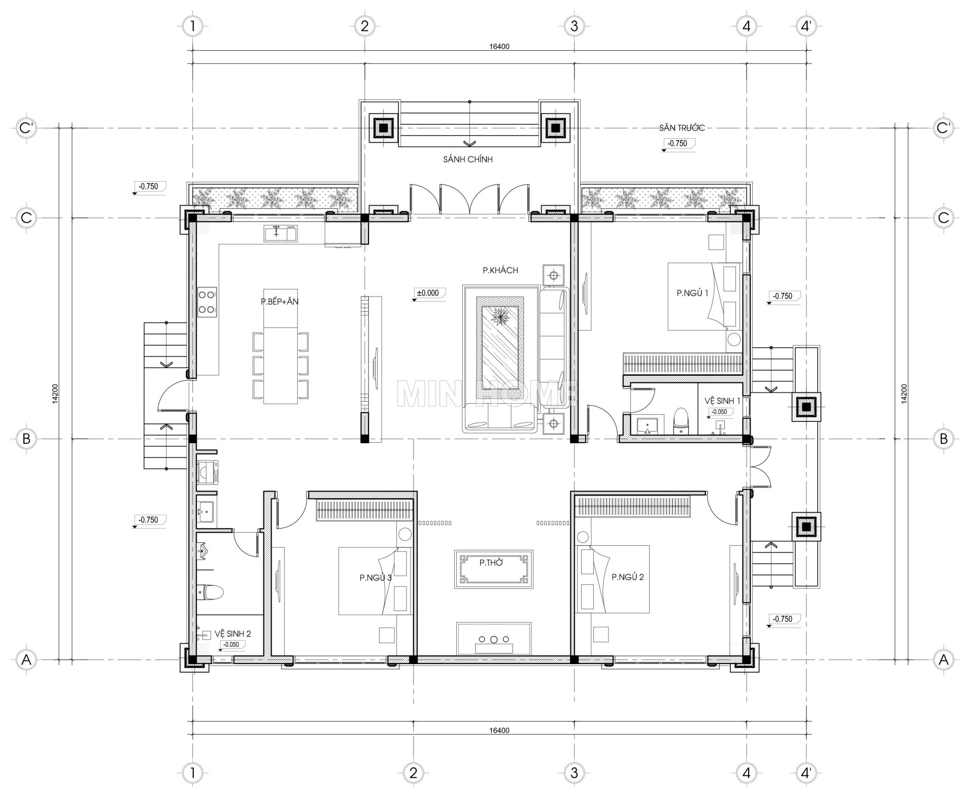
| Mặt tiền: 16,4m | Kích thước xây dựng: 16,4 × 14,2m |
| Số tầng: 1 tầng | Loại hình: Nhà vườn mái Nhật |
| Tổng diện tích: 195m2 | |
| Công năng: Phòng khách, phòng thờ, phòng bếp ăn, 3 phòng ngủ, 2 wc | |
| Đơn vị thiết kế: CÔNG TY TNHH THIẾT KẾ & XÂY DỰNG MINHOME | |
Ngắm nhìn 3D nhà cấp 4 mái Nhật ngói đỏ cam siêu đẹp
Nhà cấp 4 mái ngói đỏ cam đang dần trở thành xu hướng được nhiều gia đình lựa chọn trong những năm gần đây nhờ sở hữu phong cách tân cổ điển nhẹ nhàng, mang hơi thở châu Âu tinh tế và trang nhã. Thiết kế không quá cầu kỳ trong chi tiết nhưng vẫn toát lên vẻ sang trọng, thanh lịch, phù hợp với những gia chủ yêu thích sự giao thoa hài hòa giữa nét hiện đại và cổ điển vừa đủ. Bên cạnh yếu tố thẩm mỹ, mẫu nhà này còn được đánh giá cao nhờ bố cục không gian hợp lý, dễ ứng dụng thực tế và phù hợp với điều kiện khí hậu cũng như thói quen sinh hoạt của gia đình Việt.

Công trình sử dụng gam màu kem đậm làm tông màu chủ đạo, mang lại cảm giác ấm áp, trang nhã và tạo sự khác biệt so với những bảng màu phổ biến hiện nay. Màu sắc này được kết hợp khéo léo cùng hệ phào chỉ tinh tế tại các trụ cột và mảng tường, góp phần làm nổi bật vẻ đẹp đặc trưng của kiến trúc tân cổ điển. Ngoài ra, các chi tiết mái vòm mềm mại được thiết kế vừa phải, tạo điểm nhấn uyển chuyển cho mặt tiền, giúp tổng thể công trình trở nên cân đối, cuốn hút và bền đẹp theo thời gian.

Hệ cửa của ngôi nhà được lựa chọn kỹ lưỡng, đảm bảo cả về thẩm mỹ lẫn công năng sử dụng. Cửa chính sử dụng gỗ tự nhiên, mang lại cảm giác sang trọng, ấm cúng và tạo điểm nhấn nổi bật cho mặt tiền. Trong khi đó, các cửa còn lại sử dụng nhôm hệ Xingfa kết hợp kính cường lực cao cấp, giúp tăng khả năng lấy sáng và thông gió tự nhiên, đồng thời đảm bảo độ bền, an toàn cũng như khả năng cách âm, cách nhiệt hiệu quả. Sự kết hợp hài hòa giữa vật liệu truyền thống và hiện đại giúp công trình vừa đẹp mắt vừa đáp ứng tốt nhu cầu sử dụng lâu dài.

Đối với mẫu nhà cấp 4 mái Nhật sử dụng ngói đỏ cam, kiến trúc sư đã bố trí hệ bậc ngũ cấp dẫn lên sảnh chính, không chỉ tạo thế nhà cao ráo, bề thế mà còn mang ý nghĩa phong thủy tích cực, tượng trưng cho sự hanh thông, may mắn và ổn định trong cuộc sống gia đình. Toàn bộ phần chân tường được ốp đá chẻ tự nhiên bao quanh, giúp hạn chế tình trạng ẩm mốc, rong rêu theo thời gian, đồng thời tăng độ chắc chắn và nâng cao giá trị thẩm mỹ cho công trình.

Hệ mái Nhật sử dụng ngói đỏ cam mang đậm nét truyền thống, tạo cảm giác ấm áp, gần gũi và dễ nhận diện trong tổng thể kiến trúc. Phần mái được thiết kế đua rộng ra nhiều hướng, giúp che nắng, chắn mưa hiệu quả, bảo vệ tường và hệ cửa bên dưới trước tác động của thời tiết. Giải pháp thiết kế này không chỉ nâng cao độ bền cho công trình mà còn góp phần tạo nên dáng vẻ cân đối, bề thế và hài hòa cho ngôi nhà.

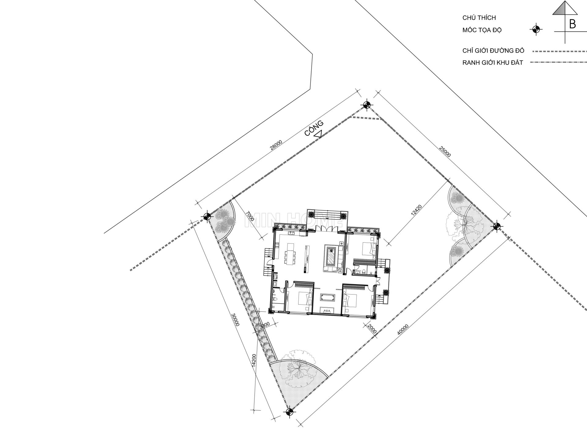
Công trình được xây dựng theo hướng Đông, giúp đón ánh sáng tự nhiên vào buổi sáng, mang lại không gian sống thông thoáng, dễ chịu và phù hợp với yếu tố phong thủy. Ngôi nhà có kích thước xây dựng 16,4 × 14,2 m, được bố trí khoa học để tối ưu diện tích khu đất. Với quy mô nhà cấp 4, tổng diện tích sử dụng khoảng 195 m², đáp ứng đầy đủ nhu cầu sinh hoạt của gia đình đông thành viên, đồng thời đảm bảo sự rộng rãi, tiện nghi và thoải mái trong quá trình sử dụng lâu dài.

Theo mặt bằng công năng, từ sảnh chính bước vào là không gian phòng khách rộng rãi, được thiết kế thông thoáng, tạo cảm giác chào đón ngay từ khi đặt chân vào ngôi nhà. Tiếp nối bên trong là khu vực phòng thờ bố trí trang nghiêm, yên tĩnh, phù hợp với yếu tố phong thủy và sinh hoạt tâm linh của gia đình. Khu bếp và phòng ăn được sắp xếp gọn gàng, khoa học, thuận tiện cho việc nấu nướng và sinh hoạt hằng ngày. Bao quanh không gian sinh hoạt chung là 03 phòng ngủ, trong đó phòng ngủ số 01 được thiết kế nhà vệ sinh khép kín, đảm bảo sự riêng tư và tiện nghi. Nhà vệ sinh chung được bố trí gần khu vực bếp – ăn, giúp các thành viên dễ dàng sử dụng mà vẫn đảm bảo sự kín đáo và hợp lý trong tổng thể mặt bằng.










