Nhà cấp 4 mái Thái 4 phòng ngủ đang trở thành lựa chọn lý tưởng của nhiều gia đình Việt nhờ sự kết hợp hài hòa giữa thẩm mỹ sang trọng và công năng sử dụng tối ưu. Với thiết kế mái Thái cao ráo, thanh thoát, ngôi nhà không chỉ tạo điểm nhấn nổi bật về kiến trúc mà còn giúp chống nóng, thoát nước hiệu quả, phù hợp với điều kiện khí hậu nước ta.
Thông tin nhà cấp 4 mái Thái 4 phòng ngủ
| Chủ đầu tư: Anh Nguyễn Thành Đồng | Địa chỉ: Lý Nhân, Ninh Bình |
| Mặt tiền: 9m | Kích thước xây dựng: 9 × 19,2m |
| Số tầng: 1 tầng | Loại hình: Nhà mái Thái tân cổ điển |
| Tổng diện tích: 135m2 | |
| Công năng: Phòng khách, phòng thờ, phòng bếp ăn, 3 phòng ngủ, 2 wc, phòng tắm | |
| Đơn vị thiết kế: CÔNG TY TNHH THIẾT KẾ & XÂY DỰNG MINHOME | |
Ngắm nhìn 3D nhà cấp 4 mái Thái đẹp cuốn hút
Mẫu nhà vườn mái Thái phong cách tân cổ điển luôn nằm trong danh sách lựa chọn hàng đầu của nhiều gia chủ nhờ vẻ đẹp sang trọng, chỉn chu trong từng đường nét nhưng vẫn giữ được sự gần gũi, phù hợp với lối sống và thói quen sinh hoạt của gia đình Việt. Không quá cầu kỳ như kiến trúc cổ điển truyền thống, phong cách tân cổ điển mang đến cảm giác tinh tế, hài hòa và bền vững theo thời gian. Trong xu hướng xây dựng hiện nay, bên cạnh yếu tố thẩm mỹ, các gia chủ còn đặc biệt quan tâm đến công năng sử dụng, sự tiện nghi, khả năng tối ưu không gian cũng như sự kết nối hài hòa giữa ngôi nhà và cảnh quan sân vườn xung quanh.

Nhà cấp 4 mái Thái tân cổ điển trong mẫu thiết kế này sử dụng gam màu trắng làm tông màu chủ đạo, giúp tổng thể công trình trở nên thanh lịch, sang trọng và dễ dàng tôn lên các chi tiết kiến trúc tinh tế. Điểm xuyết trên nền trắng là sắc xanh nhẹ nhàng tại một số mảng tường, tạo chiều sâu thị giác, đồng thời mang lại cảm giác mát mẻ, dễ chịu cho không gian ngoại thất. Ngoài bảng màu gợi ý, gia chủ hoàn toàn có thể linh hoạt điều chỉnh màu sắc theo phong thủy, mệnh tuổi hoặc sở thích cá nhân, nhằm đảm bảo sự hài hòa về thẩm mỹ, cân bằng năng lượng và thể hiện dấu ấn riêng của gia đình.

Những chi tiết tân cổ điển được thể hiện rõ nét thông qua hệ vòm cong mềm mại, mang lại cảm giác thanh thoát nhưng vẫn giữ được sự bề thế cho tổng thể công trình. Kết hợp cùng đó là hệ phào chỉ, viền mái được thiết kế tiết chế, tinh tế, tạo điểm nhấn vừa đủ mà không gây rối mắt. Đặc biệt, cả sảnh chính và sảnh phụ đều được bố trí vòm cong nổi bật, không chỉ gia tăng vẻ sang trọng cho mặt tiền mà còn giúp công trình đạt được sự cân đối, hài hòa giữa các khối kiến trúc, qua đó thể hiện rõ gu thẩm mỹ và đẳng cấp của gia chủ.

Mẫu nhà cấp 4 mái Thái phong cách tân cổ điển được thiết kế với nhiều lối tiếp cận linh hoạt, giúp việc di chuyển giữa các khu vực trở nên thuận tiện, phù hợp với sinh hoạt hằng ngày. Toàn bộ hệ cửa sử dụng nhôm hệ Xingfa cao cấp kết hợp kính cường lực, vừa đảm bảo độ bền, an toàn, vừa tăng khả năng lấy sáng và thông gió tự nhiên. Giải pháp này giúp không gian bên trong luôn thông thoáng, tiết kiệm năng lượng chiếu sáng ban ngày, đồng thời góp phần tôn lên vẻ đẹp hiện đại, sang trọng cho tổng thể kiến trúc tân cổ điển.

Hệ mái Thái được thiết kế với độ cao và độ dốc hợp lý, mang lại cảm giác bề thế, cân đối và thanh thoát cho công trình. Không chỉ ghi điểm về mặt thẩm mỹ, mái Thái còn được đánh giá cao về phong thủy khi giúp thu hút tài lộc, gia tăng vượng khí và mang lại sự hanh thông cho gia chủ. Bên cạnh đó, kết cấu mái dốc giúp thoát nước mưa nhanh, hạn chế ứ đọng, giảm nguy cơ thấm dột, đồng thời có khả năng chống nóng, cách nhiệt hiệu quả. Nhờ những ưu điểm này, mái Thái đặc biệt phù hợp với điều kiện khí hậu nhiệt đới nóng ẩm, mưa nhiều tại Việt Nam.

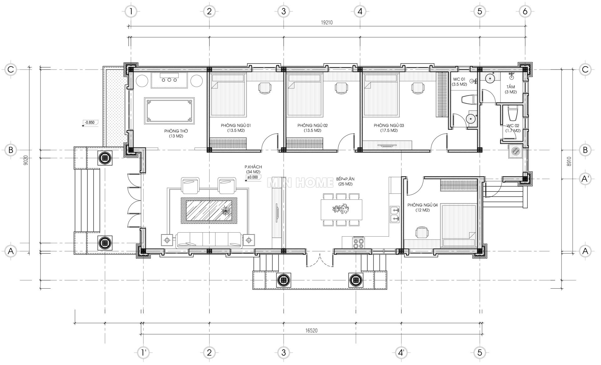
Mặt bằng định vị thể hiện rõ khuôn viên khu đất và vị trí xây dựng công trình với kích thước tổng thể 9 × 19,2m.Tổng diện tích sử dụng của ngôi nhà ước đạt khoảng 135m², đáp ứng tốt nhu cầu sinh hoạt của gia đình nhiều thế hệ, đồng thời đảm bảo sự thông thoáng và cân đối trong tổng thể không gian.

Từ sảnh chính bước vào là không gian phòng khách rộng rãi, được bố trí thông thoáng, thuận tiện cho việc tiếp đón khách và sinh hoạt chung. Khu vực phòng thờ được sắp xếp tại vị trí trang nghiêm, yên tĩnh, phù hợp với yếu tố phong thủy. Tiếp nối là khu bếp – phòng ăn thiết kế liền kề, vừa tối ưu diện tích vừa tạo sự kết nối trong sinh hoạt gia đình, đồng thời có lối đi ra sảnh phụ bên hông, giúp việc di chuyển và lưu thông không khí trở nên thuận tiện hơn.

Do toàn bộ công năng được bố trí trên một mặt sàn, các phòng ngủ được sắp xếp liền kề, đảm bảo sự gắn kết giữa các thành viên nhưng vẫn giữ được tính riêng tư cần thiết. Trong đó, phòng ngủ 03 được thiết kế nhà vệ sinh khép kín, nâng cao sự tiện nghi cho người sử dụng. Khu vực phòng tắm và nhà vệ sinh chung được bố trí về cuối nhà, tách biệt hợp lý với không gian sinh hoạt chính, góp phần đảm bảo sự riêng tư, sạch sẽ và thuận tiện trong quá trình sử dụng hằng ngày.








