Thoát khỏi khuôn mẫu của những khối nhà phố cứng nhắc, Min Home đã kiến tạo nên một không gian sống mang đậm dấu ấn nghệ thuật cho gia đình anh Kiên tại Thái Nguyên. Mẫu nhà phố 2 tầng được thiết kế với sự hòa quyện tinh tế giữa các mảng khối mạnh mẽ và đường cong mềm mại, tạo nên vẻ đẹp hiện đại, thanh thoát mà vẫn sang trọng. Tác phẩm kiến trúc này không chỉ là nơi ở, mà còn là biểu tượng của phong cách sống tinh tế giữa nhịp đô thị đương đại.
Thông tin nhà phố 2 tầng mái bằng
| Chủ đầu tư: Anh Đặng Phúc Kiên | Địa chỉ: Tràng Xá, Thái Nguyên |
| Mặt tiền: 5m | Kích thước xây dựng: 5 x 20,3m |
| Số tầng: 2 tầng | Loại hình: Nhà phố mái bằng hiện đại |
| Tổng diện tích: 180m2 | |
Công năng:
| |
| Đơn vị thiết kế: CÔNG TY TNHH THIẾT KẾ & XÂY DỰNG MINHOME | |
Mẫu nhà phố 2 tầng 3 phòng ngủ tuyệt đẹp với kiến trúc đường cong cuốn hút
Ấn tượng đầu tiên đến từ mặt tiền với bố cục gọn gàng, cân đối nhưng vẫn toát lên vẻ sinh động và cuốn hút. Kiến trúc sư tinh tế điểm xuyết những đường cong uyển chuyển ở ban công tầng hai, cùng mái vòm mềm mại đầy nghệ thuật, mang đến nét sang trọng, thời thượng và đậm chất đương đại cho mẫu nhà phố 2 tầng.

Màu sắc ngoại thất được xử lý khéo léo với tông trắng làm chủ đạo, gợi cảm giác tinh tế và thuần khiết, đồng thời làm nền hoàn hảo để tôn lên sắc vàng kem và nâu gỗ ấm áp.
Hệ cửa kính khung nhôm xám ghi cao cấp giúp không gian luôn tràn ngập ánh sáng tự nhiên, mở rộng tầm nhìn và mang lại sự kết nối hài hòa giữa nội thất hiện đại và thiên nhiên bên ngoài.

Mặt đứng công trình được bố trí hài hòa, vừa đáp ứng nhu cầu sử dụng, vừa thể hiện nét đẹp hiện đại và tinh tế trong từng đường nét. Khoảng sân trước nhỏ gọn được khéo léo tận dụng làm không gian để xe và tạo độ thoáng hợp lý, mang đến cảm giác rộng rãi, dễ chịu – minh chứng cho tư duy thiết kế tinh tế của đội ngũ kiến trúc sư.

Điểm nhấn tinh tế của ngôi nhà nằm ở hệ ban công nhỏ được điểm xuyết bởi mảng xanh nhẹ nhàng, với những chậu cây được sắp đặt khéo léo trên tầng hai, mang lại vẻ sinh động và cảm giác thư thái cho tổng thể kiến trúc. Trong không gian đô thị hạn chế, việc đưa thiên nhiên vào từng góc sống trở thành giải pháp thiết kế tinh anh, giúp mẫu nhà phố 2 tầng vừa đẹp hài hòa vừa chan hòa hơi thở tự nhiên.

Từ góc nhìn toàn cảnh, có thể thấy sự sắp xếp khoa học của hệ thống kỹ thuật như bồn nước và pin năng lượng mặt trời được bố trí gọn gàng trên mái, vừa tiện lợi cho sinh hoạt vừa đảm bảo tính thẩm mỹ tổng thể. Chi tiết tưởng chừng nhỏ này lại phản ánh rõ nét sự tỉ mỉ và chuyên nghiệp trong tư duy thiết kế của Min Home.

Tổng thể mẫu nhà phố 2 tầng là sự hòa quyện tinh tế giữa phong cách hiện đại và công năng tối ưu. Mỗi chi tiết – từ đường cong mềm mại của ban công, gam màu trang nhã, hệ cửa kính thanh lịch đến mảng xanh nhẹ nhàng – đều được chăm chút tỉ mỉ, tạo nên không gian sống vừa sang trọng, vừa ấm áp và gần gũi.
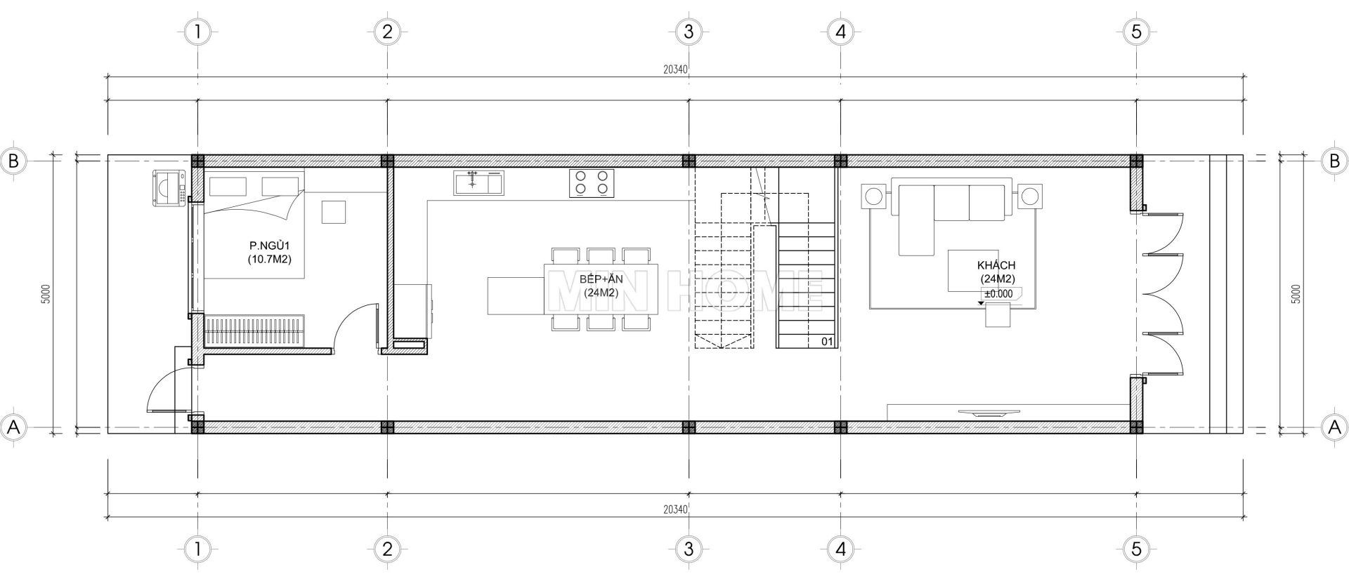
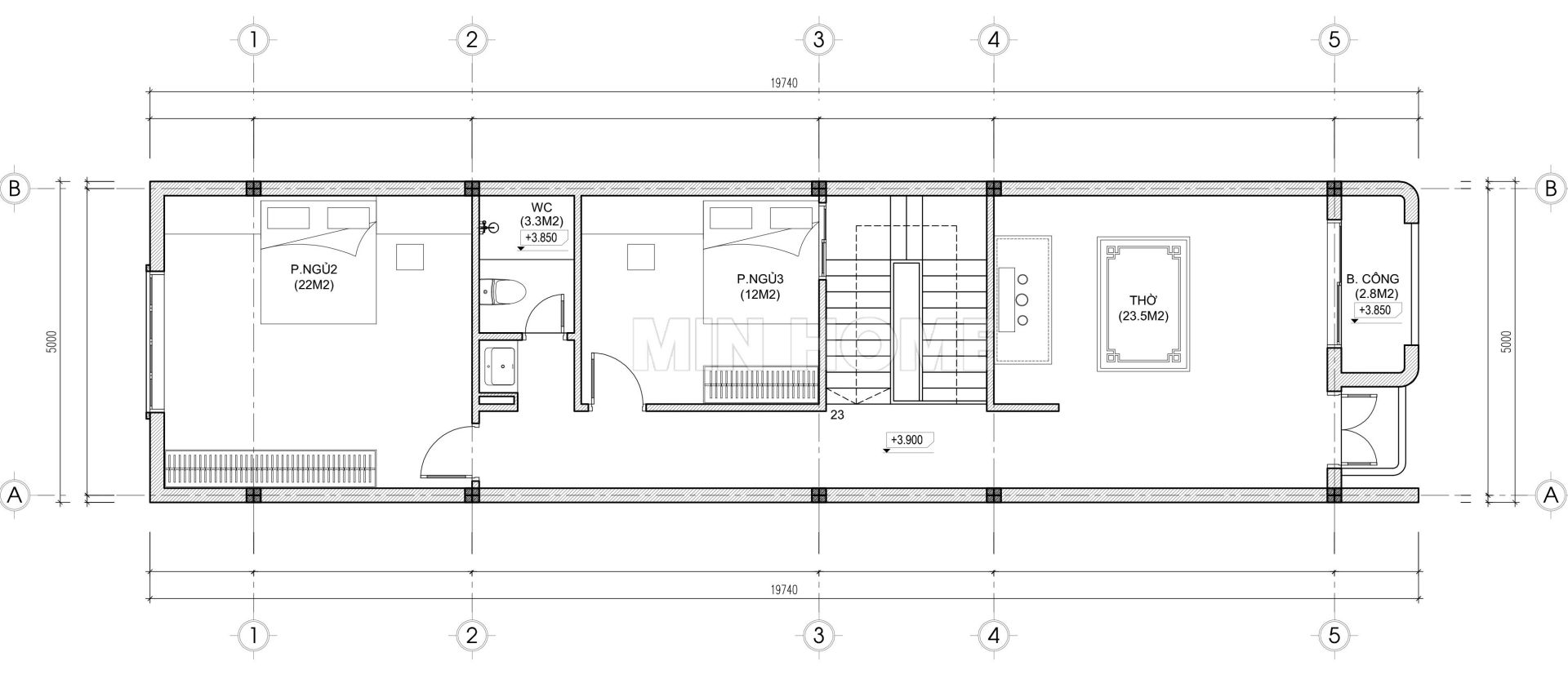
Mặt bằng chi tiết công năng

Ngôi nhà được xây dựng trên khu đất hướng Đông Bắc có diện tích 5 x 20,3m, với tổng không gian sử dụng 180m², vừa đón gió tự nhiên, vừa hợp phong thủy, mang lại vượng khí cho gia chủ. Quy mô lý tưởng này giúp tối ưu hóa công năng, đồng thời kiến tạo không gian sống tiện nghi, hài hòa giữa giá trị thẩm mỹ và tính bền vững lâu dài.

Tầng 1 được thiết kế hợp lý với phòng khách 24m² ở vị trí trung tâm, tạo cảm giác rộng rãi và sang trọng cho không gian đón tiếp. Liền kề là khu bếp – ăn 24m² tiện nghi, ấm cúng, cùng phòng ngủ 10,7m² được bố trí kín đáo, mang lại sự riêng tư và thoải mái cho gia chủ.









