Mẫu nhà cấp 4 mái Nhật của gia đình chú Trực ghi dấu ấn với kiến trúc hiện đại, thanh thoát và tinh tế trong từng đường nét thiết kế. Không gian sống được quy hoạch hợp lý, tối ưu công năng để mang đến sự tiện nghi, thoải mái và kết nối hài hòa với thiên nhiên. Với mức chi phí xây dựng hợp túi tiền nhưng vẫn đảm bảo giá trị thẩm mỹ và độ bền vững, đây chính là lựa chọn hoàn hảo cho những ai yêu thích sự tinh giản mà sang trọng.
Thông tin nhà cấp 4 mái Nhật hiện đại
| Chủ đầu tư: Chú Trần Văn Trực | Địa chỉ: Tùng Lộc, Hà Tĩnh |
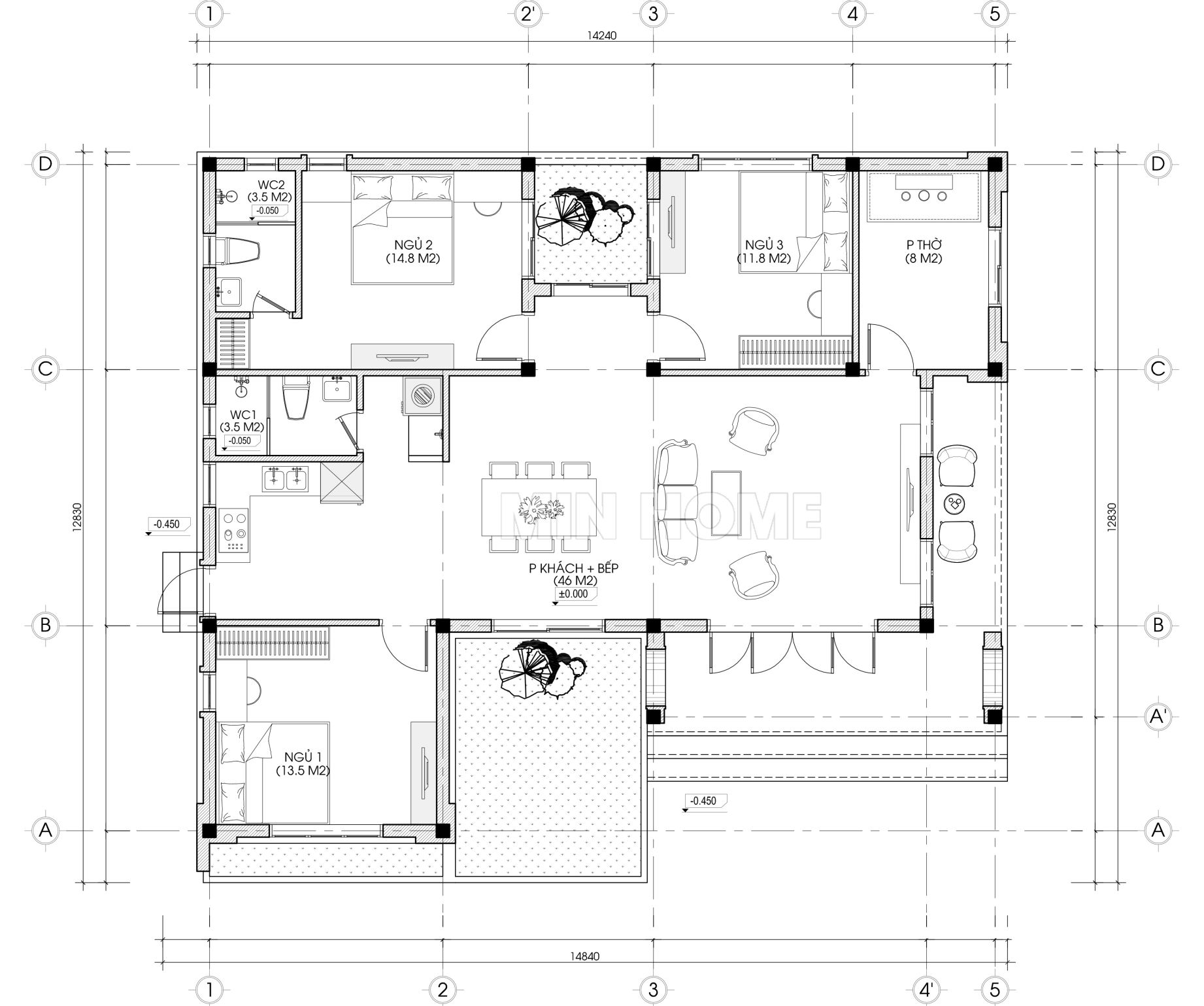
| Mặt tiền: 14,8m | Kích thước xây dựng: 14,8 x 12,8m |
| Số tầng: 1 tầng | Loại hình: Nhà mái Nhật hiện đại |
| Tổng diện tích: 135m2 | |
| Công năng: Phòng khách, phòng thờ, phòng bếp ăn, 3 phòng ngủ, 2 wc | |
| Đơn vị thiết kế: CÔNG TY TNHH THIẾT KẾ & XÂY DỰNG MINHOME | |
Mẫu nhà cấp 4 mái Nhật đẹp sang trọng, tinh tế đến từng chi tiết
Ngôi nhà cấp 4 mái Nhật sở hữu kiến trúc hài hòa với hình khối vững chãi, đường nét tinh tế và tỷ lệ cân đối, toát lên vẻ đẹp sang trọng nhưng gần gũi. Mặt tiền nổi bật với hệ cửa kính khung nhôm cao cấp, mang đến không gian tràn ngập ánh sáng tự nhiên và mở rộng tầm nhìn ra khu vườn xanh mát.
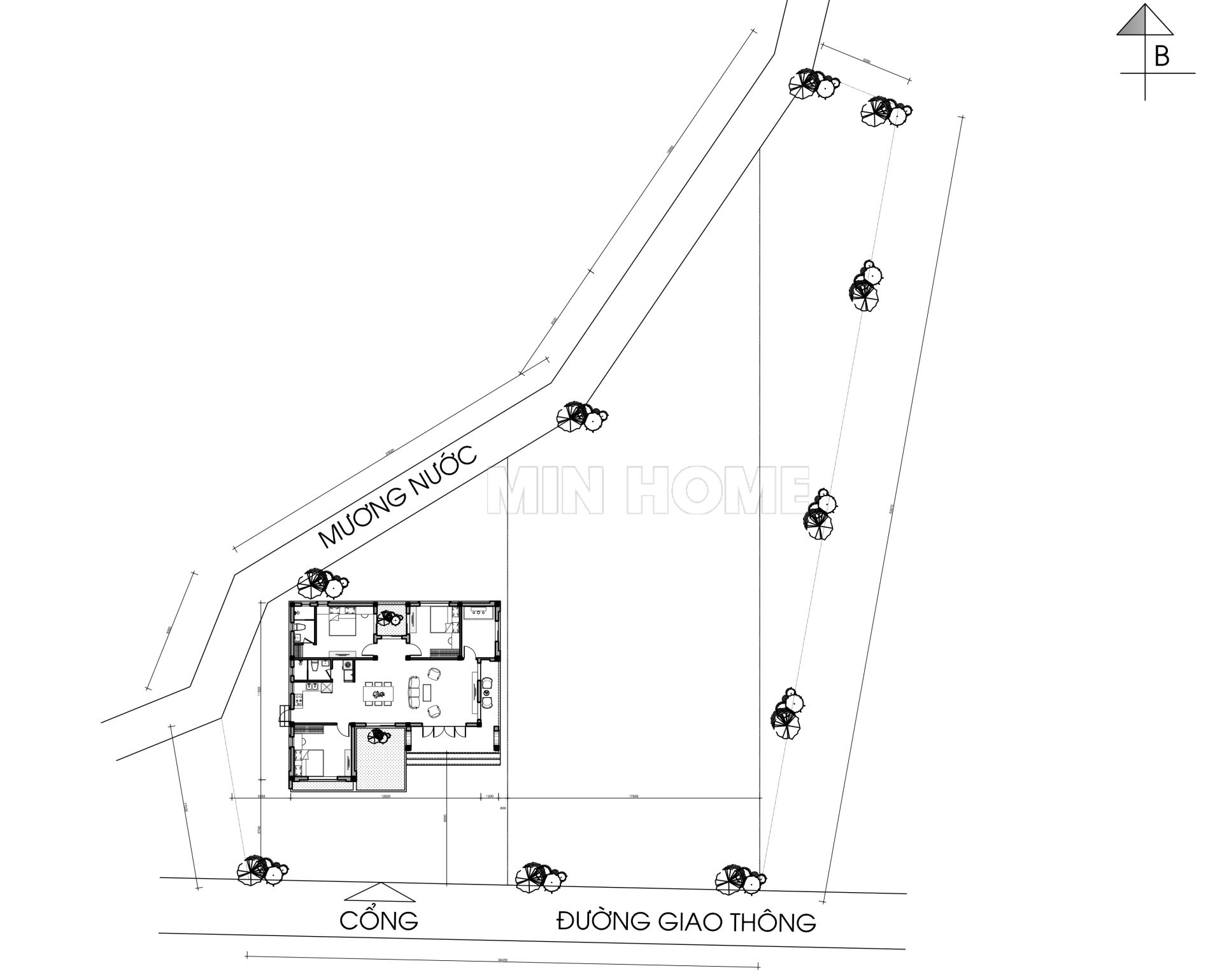
Thiết kế mặt bằng chữ L thông minh giúp tối ưu công năng, tạo khoảng sân trước rộng rãi cho xe hơi, tiểu cảnh và không gian thư giãn đầy tiện nghi.

Điểm nhấn nổi bật của ngôi nhà nằm ở mảng tường tiền sảnh ốp gạch giả đá cao cấp, kết hợp khéo léo giữa gam màu sáng – tối cùng hiệu ứng bề mặt nhám và bóng đầy tinh tế.
Hệ lam ốp giả gỗ và các đường kẻ đứng thanh mảnh không chỉ tăng tính thẩm mỹ mà còn giúp đón sáng nhẹ nhàng, tạo cảm giác cao thoáng và sang trọng cho công trình.

Khu vực hiên trước được thiết kế cao vừa phải, tạo thế vững chãi, giúp công trình bề thế hơn đồng thời hạn chế ẩm mốc, bảo vệ kết cấu bền lâu theo thời gian. Hệ bậc tam cấp ốp đá tối màu kết hợp cùng nền gạch xám mang lại cảm giác sang trọng, tinh tế và dễ dàng vệ sinh.
Hai bên lối vào được trang trí bằng những chậu cây cảnh được cắt tỉa khéo léo, điểm xuyết nét mềm mại, gần gũi thiên nhiên, góp phần tôn lên vẻ thanh lịch cho mặt tiền ngôi nhà.


Dọc theo tường rào và quanh sân vườn, các loại cây xanh được bố trí xen kẽ, tạo nên lớp nền mềm mại, cân bằng với hình khối rắn chắc của công trình. Cây hoa, tiểu cảnh được trồng ngay trước cửa chính là điểm nhấn tinh tế giúp khu tiền sảnh luôn tràn đầy sức sống. Mảng cỏ xanh mướt bao quanh không chỉ làm dịu mắt mà còn cải thiện vi khí hậu, mang đến cảm giác mát dịu cho toàn bộ không gian.

Hệ mái Nhật được thiết kế với độ dốc lý tưởng, từng lớp ngói xếp lớp đều đặn tạo nên nét mềm mại mà vẫn toát lên sự kiên cố, bề thế. Sắc đen than của mái hòa quyện cùng gam trắng kem tinh tế của tường nhà tạo nên tổng thể thanh lịch, sang trọng.

Tường rào chắc chắn với phần chân ốp đá tối màu, thân tường sơn trắng tinh tế kết hợp các thanh sắt sơn tĩnh điện, mang đến cảm giác thanh thoát mà vẫn vững chãi, an toàn. Cổng chính làm từ thép hộp kết hợp lam gỗ giả cao cấp, hòa hợp với gam màu tổng thể của ngôi nhà, tạo nên điểm nhấn hiện đại, sang trọng và đầy tính thẩm mỹ.
Bản vẽ chi tiết công năng

Quan sát mặt bằng tổng thể có thể thấy công trình được quy hoạch khoa học, các khu vực bố trí cân đối và liền mạch trong một tổng thể gọn gàng, hài hòa. Ngôi nhà hướng Nam với kích thước 14,8 x 12,8m, diện tích sử dụng khoảng 135m², mang lại không gian sống tiện nghi, thoáng đãng và tối ưu cho sinh hoạt của gia đình.










