Mẫu nhà phố giá rẻ được xem là lựa chọn lý tưởng cho các gia đình trẻ mong muốn sở hữu một không gian sống hiện đại, tiện nghi mà vẫn đảm bảo yếu tố kinh tế. Ngôi nhà nổi bật với thiết kế kiến trúc tinh gọn, bố cục thông minh giúp tối ưu hóa diện tích sử dụng, mang đến không gian sinh hoạt thoải mái và tiện lợi cho mọi thành viên. Dù có chi phí xây dựng tiết kiệm, công trình vẫn đáp ứng đầy đủ các yêu cầu về công năng, thẩm mỹ và độ bền.
Thông tin nhà phố 2 tầng mái bằng
| Chủ đầu tư: Anh Nguyễn Cao Thành | Địa chỉ: Dĩ An, TPHCM |
| Mặt tiền: 5m | Kích thước xây dựng: 5 x 20 |
| Số tầng: 2 tầng | Loại hình: Nhà phố hiện đại |
| Tổng diện tích: 148m2 | |
Công năng:
| |
| Đơn vị thiết kế: CÔNG TY TNHH THIẾT KẾ & XÂY DỰNG MINHOME | |
Mẫu nhà phố 2 tầng giá rẻ có 3 phòng ngủ
Mẫu nhà 2 tầng giá rẻ sở hữu mặt tiền rộng 5m, được thiết kế theo phong cách kiến trúc hiện đại và phóng khoáng, thể hiện rõ nét qua các khối hình vuông vức cùng những đường nét mạnh mẽ, dứt khoát. Tổng thể công trình toát lên vẻ đẹp trẻ trung, năng động, phù hợp với xu hướng nhà ở đô thị hiện nay. Thiết kế không chỉ chú trọng đến yếu tố thẩm mỹ tinh giản mà còn tối ưu công năng sử dụng, đáp ứng đầy đủ nhu cầu sinh hoạt của các gia đình trẻ trong không gian sống hiện đại.

Mẫu nhà phố 5x20m lựa chọn gam màu trắng tinh tế làm chủ đạo, mang đến cảm giác sang trọng, thanh thoát và giúp mặt tiền 5m trở nên rộng rãi, thoáng đãng hơn. Tông màu trắng kết hợp hài hòa với sắc đen của khung nhôm Xingfa và kính cường lực, tạo nên hiệu ứng tương phản bắt mắt, góp phần tôn lên vẻ hiện đại và cá tính cho công trình. Bên cạnh đó, hệ lam gỗ trang trí được bố trí khéo léo ở mặt tiền vừa làm điểm nhấn thẩm mỹ vừa giúp cân bằng ánh sáng, mang lại cảm giác ấm áp và gần gũi hơn cho ngôi nhà.

Ở tầng một, cổng sắt sơn tĩnh điện kết hợp nan gỗ trang trí tạo ấn tượng ngay từ cái nhìn đầu tiên. Chất liệu sắt sơn tĩnh điện không chỉ mang đến vẻ đẹp hiện đại mà còn có khả năng chống gỉ sét, chịu được thời tiết khắc nghiệt, đảm bảo độ bền theo thời gian. Ban công tầng hai được thiết kế tinh tế với lan can kính cường lực trong suốt, giúp mở rộng tầm nhìn, đón sáng tự nhiên và tăng tính kết nối giữa không gian trong – ngoài, mang lại sự thoáng đãng cho toàn bộ ngôi nhà.

Từ góc nhìn trên cao, công trình nổi bật với ban công rộng rãi, được bố trí bộ bàn ghế nhỏ tạo không gian thư giãn lý tưởng. Gia chủ có thể thưởng trà, đọc sách hay ngắm nhìn cảnh quan xung quanh trong không khí thoáng mát. Thiết kế ban công mở giúp tận dụng tối đa ánh sáng và gió trời, đồng thời mang lại tầm nhìn đẹp ra khu vườn xanh mát phía trước.

Do hai bên hông nhà tiếp giáp với công trình lân cận, kiến trúc sư đã khéo léo bố trí hệ thống cửa sổ hướng ra phía sau để đón gió và ánh sáng tự nhiên. Cách bố trí này không chỉ giúp không gian bên trong luôn mát mẻ, sáng sủa, mà còn đảm bảo tính riêng tư và an toàn trong sinh hoạt hằng ngày của gia đình.

Đặc biệt, ngôi nhà được thiết kế hệ thống giếng trời thông minh, giúp lưu thông không khí và mang ánh sáng tự nhiên vào các khu vực bên trong. Phần mái bằng được tận dụng để đặt téc nước và hệ thống năng lượng mặt trời, đáp ứng đầy đủ nhu cầu sinh hoạt hằng ngày. Ngoài ra, phần mái được xử lý chống thấm kỹ lưỡng, ốp gạch toàn bộ, giúp tăng độ bền, hạn chế hấp thụ nhiệt và bảo vệ công trình trước ảnh hưởng của thời tiết.

Ngôi nhà được xây dựng theo hướng Nam, hướng được nhiều gia chủ ưa chuộng nhờ khả năng đón gió mát và ánh sáng ổn định quanh năm, mang đến không gian sống dễ chịu và thông thoáng. Với kích thước 5x20m, tổng diện tích sử dụng khoảng 148m², công trình được bố trí khoa học và hợp lý, đảm bảo sự tiện nghi tối đa cho mọi thành viên trong gia đình.

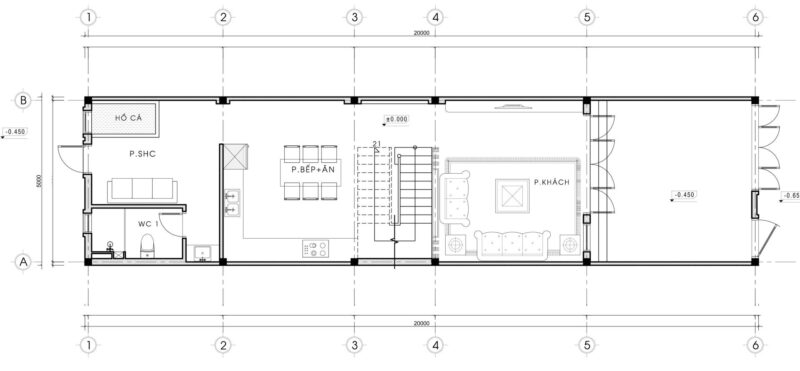
Từ cổng chính bước vào là khu vực để xe máy gọn gàng, thuận tiện cho việc di chuyển. Tiếp đến là phòng khách rộng rãi, được thiết kế sang trọng – nơi gia đình quây quần hoặc tiếp đón bạn bè, khách khứa. Qua khu vực cầu thang là phòng bếp kết hợp phòng ăn hiện đại với hệ tủ bếp chữ L, giúp tối ưu không gian và tăng tính tiện dụng. Cuối nhà là khu sinh hoạt chung được điểm xuyết bởi hồ cá nhỏ, tạo cảm giác thư giãn, gần gũi với thiên nhiên. Bên cạnh đó là nhà vệ sinh chung được bố trí hợp lý, đảm bảo thuận tiện cho việc sử dụng.

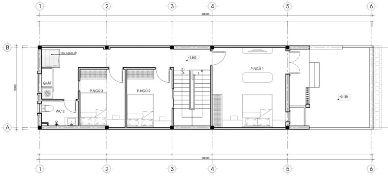
Không gian tầng 2 được sắp xếp 3 phòng ngủ khoa học và tiện nghi, đảm bảo sự riêng tư cho từng thành viên. Phòng ngủ chính hướng ra ban công, tận dụng ánh sáng và gió trời, mang đến cảm giác thư giãn và thoải mái. Hai phòng ngủ còn lại được bố trí liền kề, thích hợp cho con nhỏ hoặc khách đến thăm, cùng sử dụng một nhà vệ sinh chung đặt ở cuối nhà. Cách bố trí hợp lý giúp tối ưu công năng sử dụng, đồng thời giữ cho không gian tầng 2 luôn thông thoáng, hài hòa và tiện nghi.










