Thiết kế nhà 2 tầng 5x18m là xu hướng phổ biến hiện nay. Mẫu nhà này được rất nhiều hộ gia đình lựa chọn xây dựng làm tổ ấm của mình, nhất là những gia đình trẻ ít thành viên. Công trìnhkhông những mang tính thẩm mỹ cao mà còn đảm bảo tối ưu công năng sử dụng. Hãy cùng tham khảo kiến trúc sang trọng, nổi bật của căn nhà phố 2 tầng 5x18m do Min Home lên ý tưởng thiết kế dưới đây!
Thông tin mẫu nhà phố 2 tầng hiện đại
| Chủ đầu tư: Anh Phạm Văn Điện | Địa chỉ: Khoái Châu, Hưng Yên |
| Mặt tiền: 5m | Kích thước xây dựng: 5 x 18m |
| Số tầng: 1 tầng | Loại hình: Nhà phố hiện đại |
| Tổng diện tích: 168m2 | |
Công năng:
| |
| Đơn vị thiết kế: CÔNG TY TNHH THIẾT KẾ & XÂY DỰNG MINHOME | |
Vẻ đẹp ngoại thất cuốn hút của ngôi nhà phố 2 tầng sang trọng, cuốn hút
Ngôi nhà phố 2 tầng được thiết kế theo phong cách hiện đại, nổi bật với những khối hình vuông vức, đường nét kiến trúc gọn gàng, tinh giản nhưng không kém phần tinh tế. Tổng thể công trình tạo ấn tượng mạnh nhờ sự kết hợp hài hòa giữa hình khối, vật liệu hoàn thiện cao cấp và bảng màu ngoại thất thời thượng, giúp ngôi nhà trở nên nổi bật giữa khu phố.

Gam màu trắng chủ đạo mang đến cho ngôi nhà vẻ đẹp sang trọng, thanh lịch và cảm giác rộng mở, thoáng đãng. Điểm xuyết trên nền trắng là những mảng màu xám mạnh mẽ và màu be trung tính, tạo nên sự cân bằng, chiều sâu và vẻ hiện đại, trẻ trung cho không gian ngoại thất.
Mặt tiền công trình gây ấn tượng với tầng 1 được ốp gạch giả đá cao cấp, không chỉ giúp gia tăng độ bền và khả năng chống bám bẩn cho bề mặt tường mà còn mang lại cảm giác chắc chắn, bề thế. Trong khi đó, tầng 2 được xử lý bằng gạch thẻ màu trung tính, tạo nên sự tương phản nhẹ nhàng, giúp mặt đứng trở nên sinh động và có chiều sâu thẩm mỹ hơn.

Thông thường, các căn nhà phố thường có mặt tiền hẹp và chiều sâu lớn, khiến việc lấy sáng và thông gió tự nhiên gặp nhiều hạn chế. Tuy nhiên, nhờ lợi thế nằm trên lô đất rộng, căn nhà của gia đình anh Điện vẫn còn khoảng trống bên hông, cho phép thiết kế thêm các ô cửa sổ mở sang là yếu tố quan trọng giúp tăng khả năng lưu thông không khí và ánh sáng tự nhiên trong nhà.

Hệ thống cửa sử dụng vật liệu kính cường lực kết hợp khung nhôm Xingfa cao cấp, không chỉ đảm bảo tính thẩm mỹ và độ bền mà còn góp phần đưa ánh sáng vào sâu bên trong các không gian sinh hoạt, tạo nên một môi trường sống gần gũi với thiên nhiên.

Ban công tầng 2 được thiết kế rộng rãi, là không gian lý tưởng để thư giãn vào mỗi buổi sáng sớm hoặc chiều muộn. Bên cạnh ban công là bồn cây xanh được bố trí khéo léo, mang lại cảm giác gần gũi với thiên nhiên. Lan can ban công làm bằng kính cường lực trong suốt kết hợp tay vịn nhôm hiện đại, vừa an toàn vừa giúp mở rộng tầm nhìn.
Phía trên, công trình sử dụng hệ mái bằng kiên cố, được thi công chắc chắn, tỉ mỉ đến từng chi tiết. Trên mái, các thiết bị như bồn nước inox và bình năng lượng mặt trời được lắp đặt hợp lý, đảm bảo cung cấp nước nóng và sinh hoạt đầy đủ cho gia đình, đồng thời góp phần nâng cao hiệu quả sử dụng năng lượng tự nhiên.

Mặt bằng bố trí công năng tiện nghi của ngôi nhà phố 2 tầng, 4 phòng ngủ
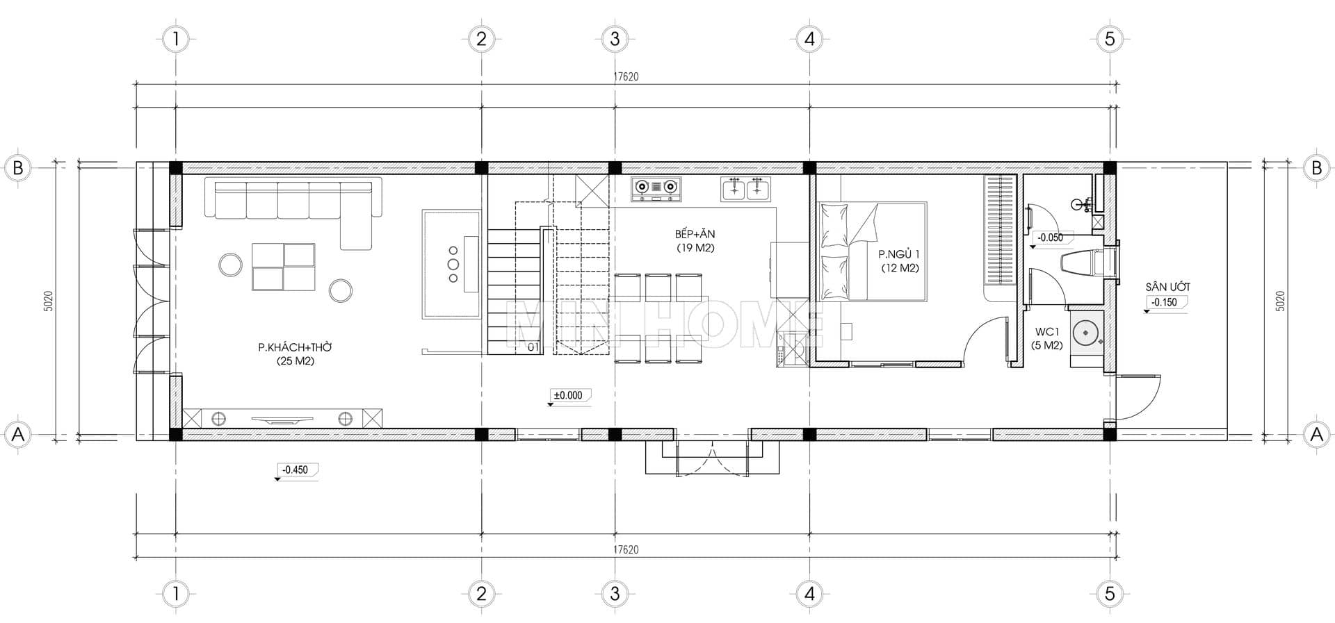
Dựa vào mặt bằng định vị công trình ta thấy ngôi nhà phố 2 tầng được xây dựng có hướng chính nằm ở phía Tây Nam, phù hợp phong thủy với tuổi, mệnh của gia chủ. Với kích thước xây dựng là 5 x 18m, tổng diện tích sàn sử dụng khoảng 168m² các kiến trúc sư đã tính toán khéo léo, bố trí công năng thông minh giúp vừa đảm bảo sự tiện nghi vừa tạo ra nhiều khoảng trống xanh mát, thông thoáng.

Từ cửa đi vào đầu tiên là phòng khách kết hợp phòng thờ rộng 25m². Không gian này được thiết kế mở nhưng vẫn đảm bảo tính trang nghiêm nhờ cách phân chia hợp lý giữa nơi tiếp khách và khu vực thờ cúng. Nội thất tối giản với bộ sofa bàn trà nhỏ giúp căn phòng toát lên vẻ ấm cúng và sang trọng.

Tiến sâu vào bên trong,là phòng bếp + ăn rộng 19m² được trang bị đầy đủ thiết bị hiện đại, giúp hỗ trợ tối đa cho quá trình nấu nướng hàng ngày. Tủ bếp chữ L được bo góc mềm mại, tận dụng tối đa diện tích mà vẫn đảm bảo tính thẩm mỹ. Bộ bàn ăn 6 ghế đặt giữa không gian, là nơi cả gia đình quây quần bên những bữa cơm đầm ấm, thân tình.
1 phòng ngủ nhỏ rộng 12m² có nội thất đầy đủ mang đến sự thoải mái khi nghỉ ngơi cho các thành viên. Phía cuối nhà là khu vệ sinh chung với lavabo đặt bên ngoài thuận tiện cho sinh hoạt, tiếp nối là sân ướt nơi giặt giũ, phơi phóng, đồng thời đóng vai trò là khoảng lùi để lưu thông không khí.

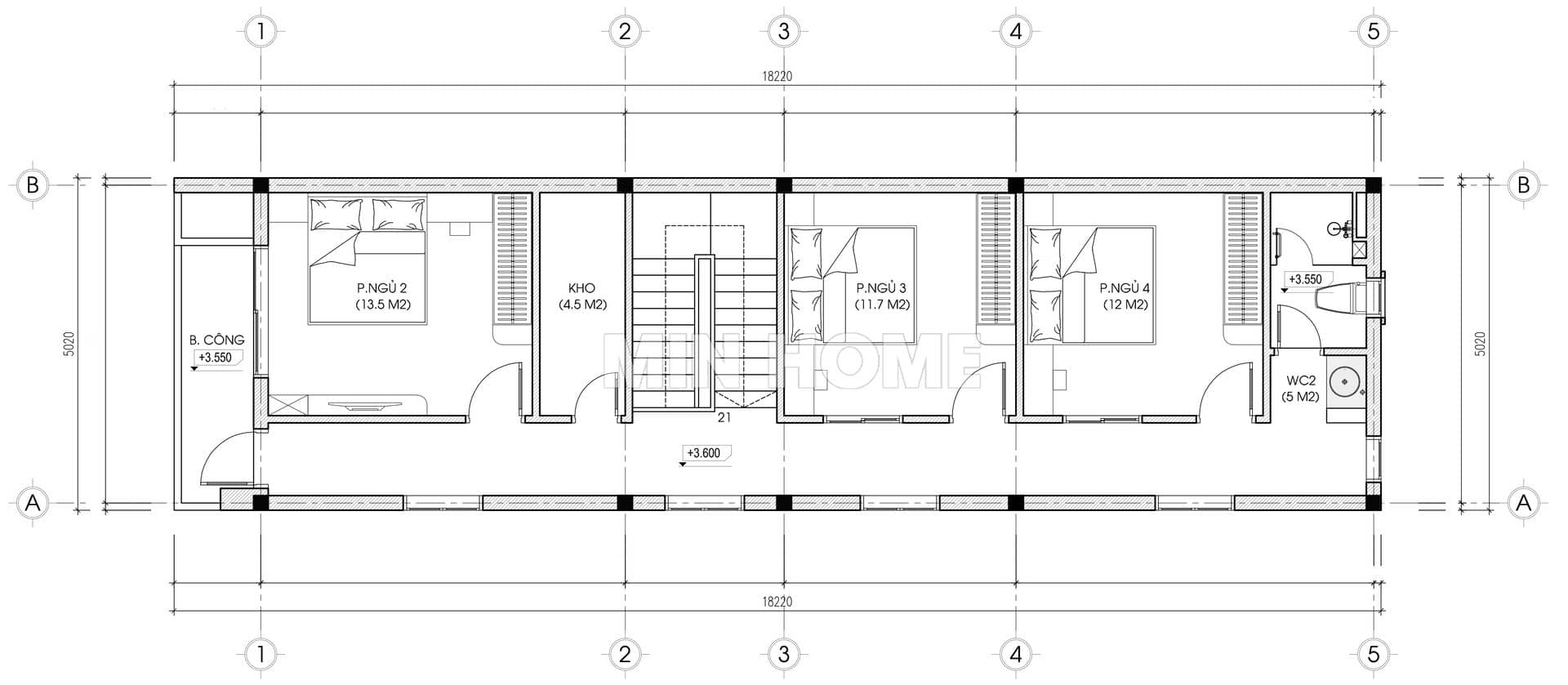
Di chuyển lên tầng 2 là không gian nghỉ ngơi chính của gia đình với 3 phòng ngủ được bố trí hợp lý, đảm bảo nhu cầu sử dụng riêng tư của từng thành viên. Mỗi phòng đều có cửa sổ lớn, đón sáng tự nhiên và gió trời, tạo nên môi trường sống trong lành, dễ chịu.
Nhà vệ sinh chung được đặt đồng trục với tầng 1 để thuận tiện cho hệ thống cấp thoát nước, đồng thời tiết kiệm chi phí xây dựng. Ngoài ra, còn có một phòng kho nhỏ đặt cạnh cầu thang giúp lưu trữ các đồ vật ít sử dụng giúp căn nhà thêm gọn gàng, ngăn nắp.







