Giữa nhịp sống hiện đại, nhu cầu về một không gian an yên, chan hòa cùng thiên nhiên ngày càng trở thành lựa chọn ưu tiên của nhiều gia đình. Trong đó, những mẫu nhà vườn mái Nhật 3 phòng ngủ không chỉ mang lại sự tiện nghi, thoáng đãng mà còn đáp ứng hoàn hảo về mặt thẩm mỹ, đặc biệt phù hợp với vùng nông thôn hoặc những khu đất rộng rãi. Công trình do kiến trúc sư Min Home thiết kế dành cho gia đình anh Duy tại Gia Lai đã thể hiện trọn vẹn tinh thần ấy, khi dung hòa giữa nét đẹp sang trọng, công năng khoa học và giá trị tinh thần thư thái cho gia chủ.
Thông tin nhà vườn mái Nhật 3 phòng ngủ
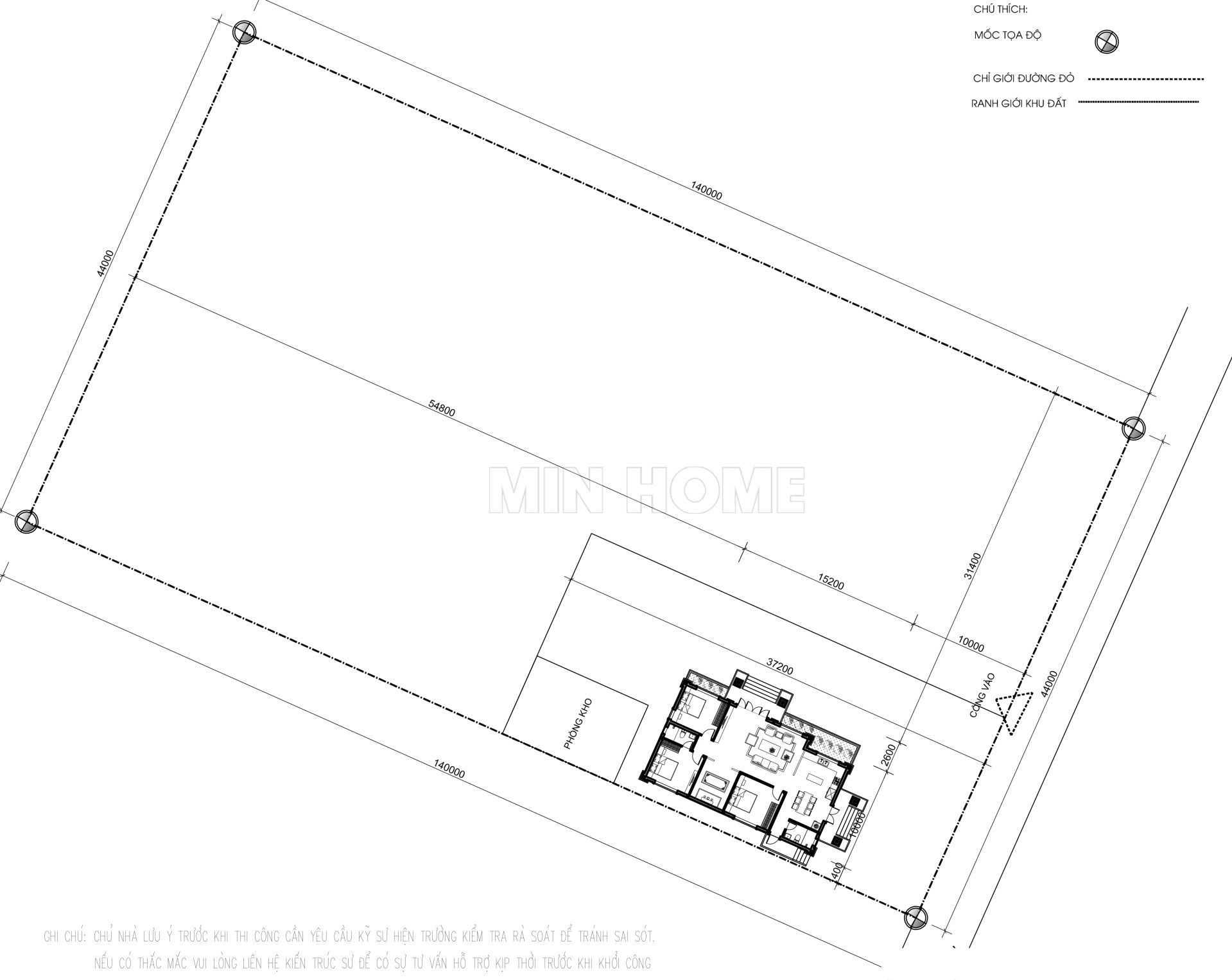
| Chủ đầu tư: Anh Nguyễn Hữu Duy | Địa chỉ: Iagra, Gia Lai |
| Mặt tiền: 17,7m | Kích thước xây dựng: 17,7 x 11,3m |
| Số tầng: 1 tầng | Loại hình: Nhà vườn mái Nhật |
| Tổng diện tích: 140m2 | |
| Công năng: Phòng khách, phòng thờ, phòng bếp, 3 phòng ngủ, 2 wc | |
| Đơn vị thiết kế: CÔNG TY TNHH THIẾT KẾ & XÂY DỰNG MINHOME | |
Mẫu nhà vườn mái Nhật 3 phòng ngủ siêu đẹp, chi phí lại rẻ bất ngờ
Mẫu nhà vườn mái Nhật 3 phòng ngủ nổi bật bởi vẻ đẹp chắc khỏe trong hình khối, kết hợp cùng sự cân đối và rõ ràng trong từng đường nét kiến trúc. Với thiết kế chỉ một tầng, ngôi nhà vẫn toát lên sự bề thế nhờ tỉ lệ chuẩn xác, cách xử lý hình khối tinh tế và hệ mái Nhật thoải nhẹ mang đến dáng vẻ thanh thoát, sang trọng. Đặc biệt, phần mái được thiết kế giật cấp nhiều lớp, kết hợp linh hoạt giữa mái chính và mái phụ, không chỉ tạo chiều sâu thẩm mỹ mà còn giúp tổng thể công trình trở nên cuốn hút và đầy sinh khí.

Ngôi nhà mái Nhật 3 phòng ngủ được thiết kế với phong cách tinh giản, hạn chế chi tiết rườm rà nhưng vẫn toát lên vẻ sang trọng và cá tính riêng. Hệ trụ cột vuông vức kết hợp phào chỉ thanh mảnh tạo nên những mảng nhấn tinh tế, mang lại chiều sâu và sự bề thế cho kiến trúc mặt tiền.
Cửa chính từ gỗ tự nhiên cao cấp với lớp sơn bóng mịn nổi bật nét uy nghi, trong khi hệ cửa sổ và cửa phụ nhôm kính Xingfa mang lại khả năng lấy sáng, đón gió tối ưu, đồng thời tạo sự kết nối hài hòa giữa không gian nội thất và cảnh quan bên ngoài.

Cách phối màu trong công trình được xử lý khéo léo, tạo nên tổng thể vừa tinh tế vừa cuốn hút. Sắc trắng tinh khôi kết hợp cùng gam ghi xanh mang lại sự thanh lịch, hiện đại, trong khi mái Nhật xanh than nổi bật trên nền tường sáng, đi kèm cửa gỗ nâu trầm ấm, tạo nên sự cân bằng và điểm nhấn thị giác mạnh mẽ.

Chân tường được ốp đá chẻ xám sáng, kết hợp hài hòa với bậc tam cấp lát đá trắng vân mây, không chỉ nâng cao giá trị thẩm mỹ mà còn đảm bảo công trình bền bỉ, sạch sẽ theo thời gian.


Mẫu nhà vườn mái Nhật 3 phòng ngủ này là sự kết hợp tinh tế giữa yếu tố truyền thống và hiện đại, giữa tiện nghi và thiên nhiên, giữa thẩm mỹ và công năng. Không phô trương cầu kỳ, nhưng từng chi tiết đều toát lên sự trau chuốt, chuẩn mực và đầy cảm xúc, đúng như kỳ vọng về một tổ ấm lý tưởng cho những ai đang tìm kiếm một cuộc sống an yên, nhẹ nhàng và đẳng cấp.
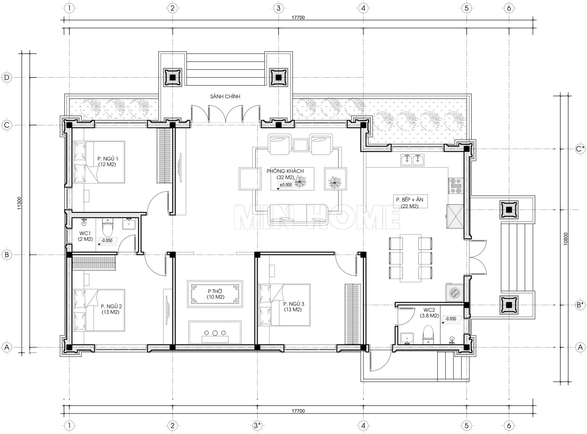
Bản vẽ chi tiết công năng nhà cấp 4 mái Nhật

Ngôi nhà vườn mái Nhật 3 phòng ngủ không chỉ gây ấn tượng bởi diện mạo tinh tế mà còn được kiến trúc sư Min Home tính toán kỹ lưỡng về công năng, đảm bảo đáp ứng trọn vẹn nhu cầu sinh hoạt hằng ngày của gia đình.
Công trình tọa lạc tại vị trí hướng Đông Bắc, sở hữu mặt bằng rộng rãi với kích thước 17,7 x 11,3m, thuận lợi cho việc bố trí không gian hợp lý. Với tổng diện tích sử dụng khoảng 140m², ngôi nhà mang đến sự tiện nghi, thoải mái và tối ưu từng mét vuông diện tích.

Từ sảnh chính bước vào, phòng khách hiện ra với diện tích rộng rãi, nội thất tinh tế, vừa là nơi tiếp đón trang trọng vừa phản ánh phong cách sống đẳng cấp của gia chủ. Kế bên là không gian phòng thờ được bố trí trang nghiêm, tạo sự liền mạch và cân bằng giữa tính thẩm mỹ và yếu tố tâm linh.
Khu bếp ăn phía sau được thiết kế mở hướng ra sân vườn, mang đến sự thoáng mát và gắn kết với thiên nhiên; ba phòng ngủ sắp xếp khoa học theo dạng chữ L, gồm một phòng ngủ khép kín và một nhà vệ sinh chung đặt ở vị trí thuận tiện, đảm bảo tính tiện nghi và riêng tư cho cả gia đình.








