Nếu mái Thái hay mái Nhật đã trở thành lựa chọn quen thuộc thì mẫu nhà vườn mái bằng 1 tầng hiện đại của Min Home chính là một gợi ý mới mẻ. Thiết kế này đang được nhiều gia đình yêu thích bởi sự đơn giản, trẻ trung, dễ thi công và đặc biệt là chi phí vô cùng hợp lý. Không cầu kỳ trong chi tiết, không rườm rà trong hình thức mà mái bằng mang lại cảm giác khỏe khoắn, hiện đại nhưng vẫn giữ được nét mộc mạc gần gũi với nếp sống của người Việt.
Thông tin nhà vườn mái bằng 1 tầng 90m2
| Chủ đầu tư: Anh Trương Đình Thanh Hải | Địa chỉ: Bình Tân, TP HCM |
| Mặt tiền: 5m | Kích thước xây dựng: 5 x 18m |
| Số tầng: 1 tầng | Loại hình: Nhà mái bằng hiện đại |
| Tổng diện tích: 90m2 | |
| Công năng:
Phòng khách, phòng bếp, 2 phòng ngủ, 2 wc |
|
| Đơn vị thiết kế: CÔNG TY TNHH THIẾT KẾ & XÂY DỰNG MINHOME | |
Kiến trúc tổng thể mẫu nhà vườn mái bằng đẹp
Ngôi nhà của anh Hải tại Thanh Hóa có diện tích sử dụng 90m2 với mặt tiền rộng 5m và chiều sâu gần 18m. Dù kích thước không lớn nhưng với sự khéo léo của kiến trúc sư Min Home thì công trình đã trở nên cân đối, thoáng đãng và ấn tượng. Nhờ đó, ngôi nhà vừa phù hợp với những lô đất nhỏ hẹp vừa đảm bảo sự tiện nghi cần thiết.

Mặt tiền căn nhà cấp 4 mái bằng có điểm nhấn quan trọng với gam trắng tinh khôi kết hợp cùng màu xám ghi trang nhã và xen kẽ chi tiết ốp gạch giả đá vân mây dã tạo nên vẻ đẹp hiện đại nhưng không hề lạnh lẽo. Hệ cửa kính khung nhôm màu đen nổi bật trên nền sáng giúp tăng tính thẩm mỹ và giúp ánh sáng tự nhiên tràn ngập không gian bên trong. Nhờ vậy mà ngôi nhà anh Hải luôn thoáng đãng và gần gũi với thiên nhiên xung quanh.

Hệ cửa sổ bố trí dọc hai bên tường mang đến sự cân đối, khoa học đồng thời tạo độ mở cho không gian sống. Phần mái bằng được đổ bê tông chắc chắn, chống thấm kỹ lưỡng và tận dụng hợp lý để đặt bồn nước inox cùng bình năng lượng mặt trời. Đây là chi tiết thể hiện sự thực tế và thân thiện môi trường mà Min Home luôn hướng đến để giúp gia chủ tối ưu công năng, tiết kiệm năng lượng và bền vững theo thời gian.

Ngoài ra, hệ thống hàng rào và cổng của công trình được thiết kế gọn gàng, gam màu sáng kết hợp cùng cổng sắt hiện đại. Cách xử lý này vừa đảm bảo an ninh cho gia đình anh Hải vừa giúp tổng thể công trình hòa hợp với cảnh quan, mang lại cảm giác thoáng đãng và an toàn.

Kết cấu mái bằng đơn giản nhưng vững chãi, được phủ sơn chống thấm chất lượng cao giúp ngôi nhà bền bỉ trước thời tiết mưa nắng thất thường. Sự kết hợp hài hòa giữa vật liệu hiện đại và màu sắc tinh tế giúp công trình giữ được vẻ đẹp mới mẻ lâu dài, giảm chi phí bảo dưỡng về sau.

Bố trí công năng tối ưu cho mẫu nhà vườn mái bằng 1 tầng 90m2

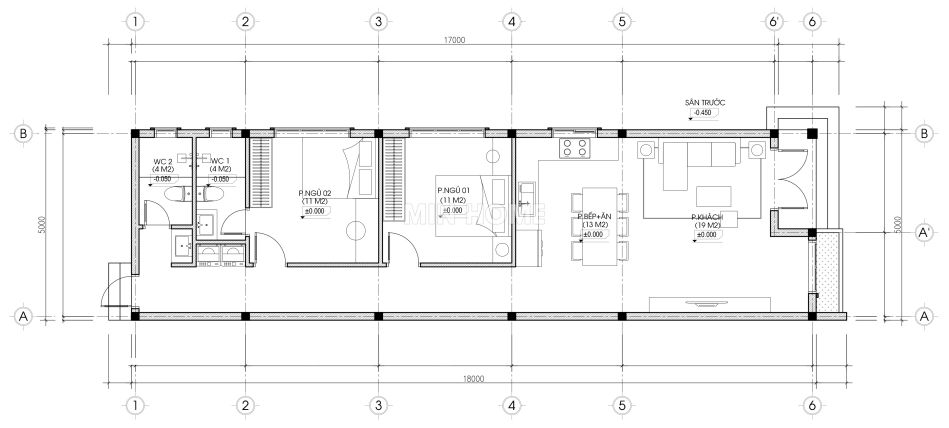
Về công năng, ngôi nhà được thiết kế gọn trong khu đất không vuông vức nhưng vẫn tận dụng tối đa diện tích. Không gian bên trong sắp xếp hợp lý với phòng khách 19m2 đặt ngay lối vào và liên thông với khu vực bếp ăn 13m2 tạo sự kết nối tiện lợi. Kế tiếp là hai phòng ngủ diện tích 11m2 vừa đủ để bố trí giường, tủ và các vật dụng cần thiết. Cuối cùng là hai nhà vệ sinh 4m2 được đặt cạnh nhau để tiết kiệm không gian mà vẫn đảm bảo tiện nghi cho cả gia đình anh Hải sử dụng.

Có thể thấy, mẫu nhà vườn mái bằng 1 tầng này là minh chứng rõ ràng cho Min Home thiết kế đẹp, thi công chắc và chi phí hợp lý. Đây là giải pháp hoàn hảo cho những gia đình yêu thích sự hiện đại, thực tế và mong muốn sở hữu một tổ ấm gọn gàng nhưng vẫn đủ đầy tiện nghi.


