Mẫu nhà cấp 4 mái Nhật 120m² do Min Home thiết kế cho gia đình anh Thiều tại Thanh Hóa gây chú ý không chỉ bởi ngoại thất tinh tế mà còn nhờ sự bố trí công năng khoa học, gắn kết chặt chẽ với cảnh quan xung quanh. Kiến trúc hiện đại kết hợp cùng không gian xanh mang đến một tổ ấm tiện nghi, thoáng mát và giàu tính thẩm mỹ. Với mức chi phí xây dựng hợp lý, công trình này trở thành gợi ý lý tưởng cho những gia chủ mong muốn một không gian sống vừa sang trọng vừa gần gũi thiên nhiên.
Thông tin nhà cấp 4 mái Nhật 120m2
| Chủ đầu tư: Anh Nguyễn Văn Thiều | Địa chỉ: Nông Cống, Thanh Hoá |
| Mặt tiền: 9,6m | Kích thước xây dựng: 9,6 x 13,9m |
| Số tầng: 1 tầng | Loại hình: Nhà cấp 4 mái Nhật |
| Tổng diện tích: 120m2 | |
| Công năng: Phòng khách, phòng bếp, 3 phòng ngủ, 2 wc | |
| Đơn vị thiết kế: CÔNG TY TNHH THIẾT KẾ & XÂY DỰNG MINHOME | |
Mẫu nhà cấp 4 mái Nhật 120m2 tuyệt đẹp với 3 phòng ngủ rộng thoáng
Ngôi nhà cấp 4 mái Nhật 120m² gây ấn tượng với khối kiến trúc vuông vức, khỏe khoắn, vừa thể hiện sự sang trọng vừa tạo cảm giác bền vững, vững chãi theo thời gian. Từng chi tiết từ phào chỉ, hoa văn đến bảng màu được xử lý tinh tế, mang lại sự cân đối và vẻ đẹp cuốn hút cho tổng thể mặt tiền.
Hệ mái Nhật thiết kế cân đối, độ dốc vừa phải không chỉ tăng tính thẩm mỹ mà còn phát huy tối đa công năng chống nóng, thoát nước nhanh, phù hợp hoàn hảo với đặc trưng khí hậu nhiệt đới gió mùa của nước ta.

Mặt tiền ngôi nhà nổi bật với hai trụ cột vuông bề thế, nâng đỡ phần mái sảnh vòm, tạo nên cảm giác kiên cố mà vẫn sang trọng và cuốn hút. Các chi tiết kẻ rãnh chạy dọc thân cột kết hợp sắc xanh thanh nhã cùng đường chỉ ngang tinh tế, góp phần nhấn mạnh chiều sâu kiến trúc và mang lại sự cân đối cho toàn bộ công trình.
Tiền sảnh được tô điểm bởi hệ thống đèn ngoại thất bố trí hợp lý, cùng bậc tam cấp ốp đá granite màu xám tro, viền trắng tinh khôi và chân tường ốp đá tự nhiên, vừa tăng giá trị thẩm mỹ vừa nâng cao khả năng chống chịu trước mọi điều kiện thời tiết.

Hệ thống cửa của ngôi nhà được lựa chọn từ nhôm Xingfa cao cấp kết hợp kính cường lực, mang đến diện mạo hiện đại, tinh tế và độ bền vượt trội theo thời gian. Nhờ khả năng lấy sáng tối ưu, kính giúp không gian nội thất luôn sáng sủa, thoáng mát, đồng thời đảm bảo cách âm, hạn chế tiếng ồn hiệu quả. Thiết kế cửa mở rộng tầm nhìn ra khu sân vườn xanh mát, tạo sự kết nối gần gũi với thiên nhiên và mang lại cảm giác thư thái cho gia chủ.

Sự kết hợp hài hòa giữa thiết kế khoa học và cảnh quan thiên nhiên xanh mát mang đến cho ngôi nhà cảm giác yên bình, thư giãn tuyệt đối. Gam màu trắng tinh khôi phối cùng sắc xanh chủ đạo tạo nên điểm nhấn thanh thoát, giúp công trình vừa nổi bật vừa giữ được vẻ trang nhã. Nhờ đó, mẫu nhà cấp 4 mái Nhật 120m² không chỉ cuốn hút ở hình thức mà còn gợi nên sự ấm áp, gần gũi, phù hợp với lối sống an nhiên của gia đình Việt.

Với những gia chủ đề cao lối sống hòa hợp cùng thiên nhiên, mẫu nhà cấp 4 mái Nhật 120m² với 3 phòng ngủ chính là lựa chọn lý tưởng. Không gian được bao bọc bởi sân vườn xanh mát, tạo bầu không khí trong lành và dễ chịu quanh năm. Đây không chỉ là nơi nghỉ ngơi thoải mái cho cả gia đình sau ngày dài bận rộn mà còn mang lại giá trị tinh thần, giúp gắn kết các thành viên trong mái ấm.


Bản vẽ chi tiết công năng nhà cấp 4 mái Nhật

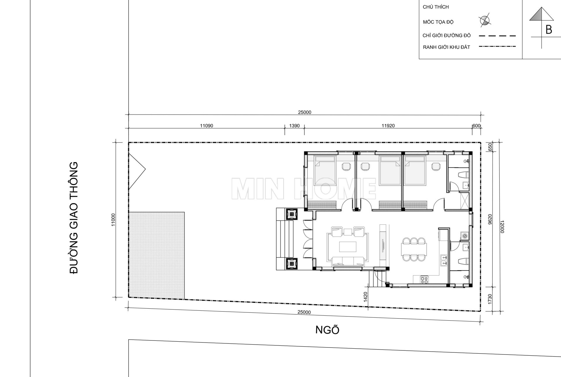
Dựa theo mặt bằng định vị, công trình nằm theo hướng Tây, với kích thước mặt bằng 9,6 x 13,9m, tổng diện tích sàn sử dụng khoảng 120m². Ngôi nhà không chỉ thu hút ánh nhìn bởi vẻ đẹp ngoại thất sang trọng, tinh tế mà còn có công năng tiện nghi đảm bảo đáp ứng nhu cầu sử dụng của cả gia đình.

Bước qua sảnh chính, phòng khách hiện ra với diện tích rộng rãi, nội thất được bài trí tinh tế theo phong cách hiện đại, vừa tạo sự thoải mái khi sinh hoạt, vừa để lại ấn tượng sang trọng cho khách ghé thăm. Liền kề phía sau là khu bếp ăn thiết kế mở, kết nối trực tiếp với cửa phụ, giúp tối ưu khả năng lưu thông không khí và mang lại sự thoáng đãng, gắn kết với không gian ngoài trời.
Khu vực nghỉ ngơi gồm ba phòng ngủ sắp xếp liền kề tạo cảm giác ấm áp, trong đó có một phòng ngủ khép kín và một nhà vệ sinh chung đặt ở vị trí hợp lý, đảm bảo sự tiện nghi và riêng tư cho cả gia đình.








