Mẫu nhà vườn mái Nhật giá rẻ ngày càng được nhiều gia đình trẻ lựa chọn bởi thiết kế hiện đại, thẩm mỹ cao và chi phí xây dựng cũng hợp lý. Mời bạn cùng tham khảo qua mẫu nhà đẹp do Min Home thiết kế dưới đây nhé!
Thông tin nhà vườn mái Nhật giá rẻ 3 phòng ngủ
| Chủ đầu tư: Anh Hoàng Trọng Nguyên | Địa chỉ: Vĩnh Cửu, Đồng Nai |
| Mặt tiền: 7,5m | Kích thước xây dựng: 7,5 x 18,5m |
| Số tầng: 1 tầng | Loại hình: Nhà mái Nhật hiện đại |
| Tổng diện tích: 180m2 | |
| Công năng:
Phòng khách, phòng thờ, phòng bếp ăn, 3 phòng ngủ, 3 wc |
|
| Đơn vị thiết kế: CÔNG TY TNHH THIẾT KẾ & XÂY DỰNG MINHOME | |
Mẫu nhà vườn mái Nhật đẹp hiện đại
Mẫu nhà cấp 4 mái Nhật 3 phòng ngủ dưới đây được thiết kế theo phong cách hiện đại, nổi bật với các khối hình vuông vức và đường nét kiến trúc dứt khoát. Kiểu dáng này không chỉ mang đến vẻ đẹp sang trọng, trẻ trung mà còn tối ưu công năng, đáp ứng trọn vẹn nhu cầu sinh hoạt của gia đình Việt. Chính vì thế, phong cách hiện đại ngày càng được nhiều gia chủ tin tưởng và lựa chọn trong thiết kế, xây dựng nhà ở hiện nay.

Tổng thể công trình sử dụng gam màu trắng tinh tế làm chủ đạo – một tông màu phổ biến bởi khả năng dễ dàng kết hợp cùng nhiều sắc thái khác. Điểm nhấn ấn tượng là gam xanh than trầm sang trọng, giúp ngôi nhà trở nên nổi bật và khác biệt hơn hẳn. Bên cạnh đó, kiến trúc sư đã khéo léo bố trí gạch Inax ở một số mảng tường, tạo thêm chiều sâu, gia tăng hiệu ứng thẩm mỹ và giữ được độ bền đẹp lâu dài.

Không gian mặt tiền càng trở nên cuốn hút nhờ hệ bậc tam cấp được thiết kế chuẩn phong thủy, tượng trưng cho sự vững chãi và thịnh vượng. Bậc thang được ốp đá granite trắng vân mây xám, vừa sang trọng hiện đại, vừa chống trơn trượt và thuận tiện trong việc vệ sinh.

Toàn bộ hệ thống cửa của ngôi nhà được lựa chọn từ dòng nhôm Xingfa kết hợp kính cường lực cao cấp. Sự kết hợp này đảm bảo độ bền chắc, chịu lực tốt, chống va đập, đồng thời mang lại vẻ đẹp tinh tế. Nhờ diện tích kính rộng, không gian bên trong luôn sáng thoáng, tiết kiệm năng lượng và tạo sự kết nối gần gũi với thiên nhiên bên ngoài.

Hệ mái Nhật màu xanh than với độ dốc vừa phải giúp thoát nước nhanh, hạn chế thấm dột, rêu mốc, qua đó gia tăng độ bền cho công trình. Phần sân phía trước được lát gạch chống trơn toàn bộ, mang lại sự gọn gàng, sạch sẽ và đảm bảo an toàn khi di chuyển, đặc biệt vào những ngày mưa. Khuôn viên rộng rãi có thể tận dụng để xe, làm sân chơi cho trẻ hoặc bố trí tiểu cảnh xanh, mang lại bầu không khí trong lành cho gia đình.

Cổng nhà được thiết kế chắc chắn với hai trụ vuông lớn ốp gạch trắng kết hợp chỉ phào tinh tế, tạo cảm giác vững chãi và sang trọng. Mái cổng lợp ngói đồng bộ với mái chính, giữ được sự hài hòa và thống nhất cho tổng thể kiến trúc. Hệ cửa cổng bằng sắt sơn tĩnh điện với các nan ngang đảm bảo sự thông thoáng, vừa chắc chắn, vừa giữ nét thanh thoát. Hai bên trụ cổng bố trí thêm đèn trang trí, giúp không gian thêm ấm áp về đêm và tăng tính thẩm mỹ cho mặt tiền.

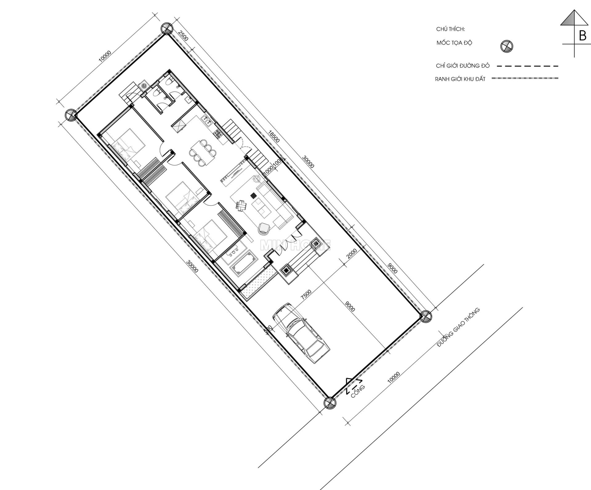
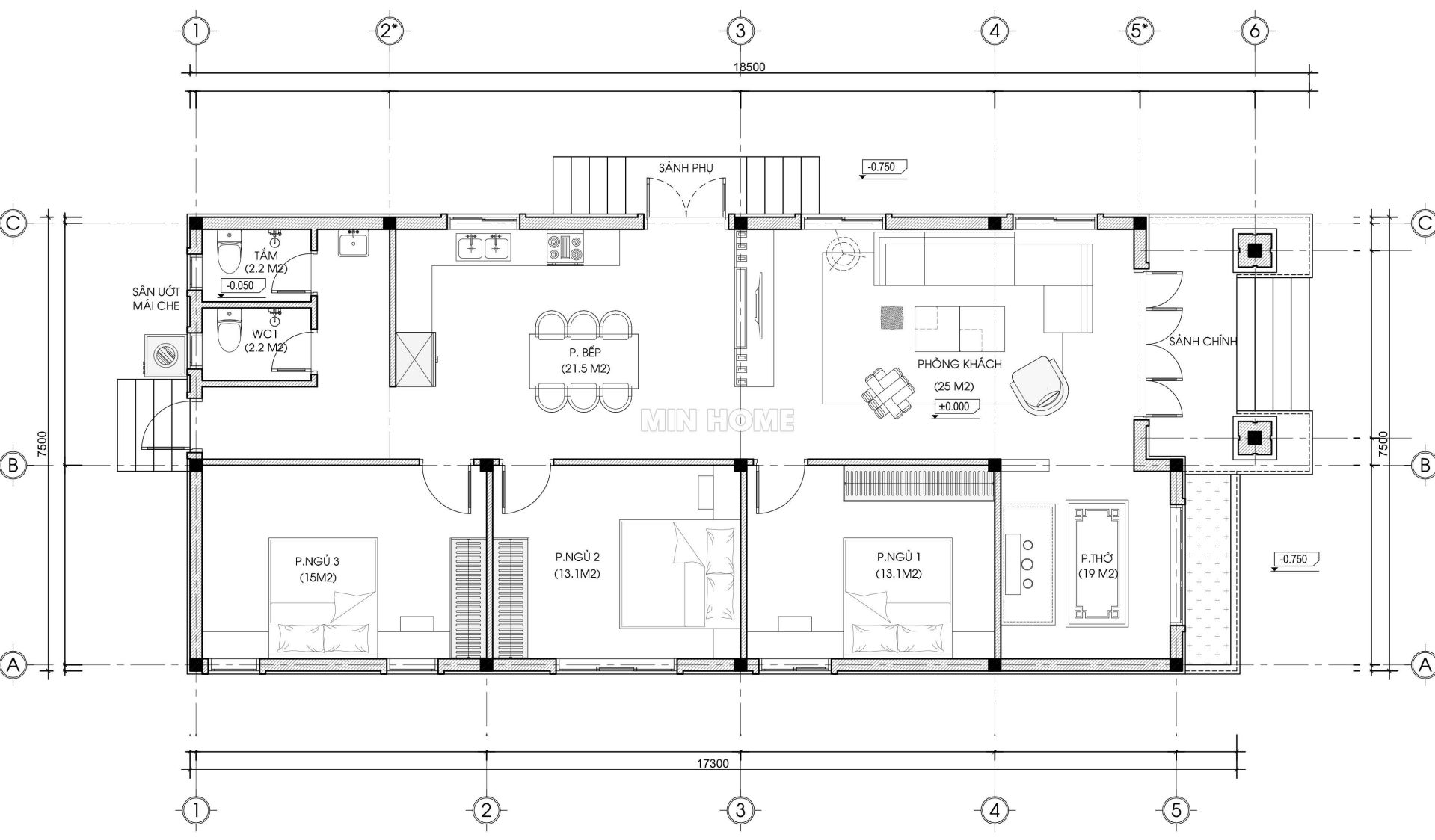
Mặt bằng định vị cho thấy công trình nhà cấp 4 được xây dựng với kích thước là 7,5 x 18,5m, tổng diện tích sử dụng sẽ rơi vào khoảng 138m². Khoảng sân phía trước rộng rãi, đủ không gian để bố trí tiểu cảnh và chỗ để xe ô tô.

Bước vào từ sảnh chính là không gian phòng khách rộng thoáng, được xem như trung tâm sinh hoạt chung của gia đình. Đối diện phòng khách là phòng thờ trang nghiêm, thể hiện nét đẹp truyền thống. Kế bên là khu vực bếp ăn được bố trí gọn gàng, có cửa mở ra sảnh phụ giúp lưu thông không khí và thuận tiện cho việc đi lại. Ngôi nhà được thiết kế với 3 phòng ngủ liền kề nhau, mang lại sự kết nối và tiện lợi cho các thành viên. Cuối nhà là khu vệ sinh và phòng tắm chung, sắp xếp hợp lý để tối ưu diện tích cũng như đảm bảo sự riêng tư và tiện nghi.



