Gia đình anh Tần tại Cao Bằng đã tìm đến Min Home với mong muốn sở hữu một ngôi nhà nhỏ gọn, tiết kiệm chi phí nhưng vẫn đảm bảo tiện nghi và sang trọng. Sau quá trình khảo sát và lên ý tưởng, chúng tôi đã mang đến giải pháp nhà cấp 4 hiện đại với 3 phòng ngủ, đáp ứng công năng và mang lại không gian sống thoải mái, trẻ trung và hợp xu hướng.
Thông tin nhà cấp 4 rẻ đẹp ở Cao Bằng
| Chủ đầu tư: Anh Lý Nông Văn Tần | Địa chỉ: Hồng Việt, Hòa An, Cao Bằng |
| Mặt tiền: 9,8m | Kích thước xây dựng: 9,8 x 14,7m |
| Số tầng: 1 tầng | Loại hình: Nhà mái Nhật hiện đại |
| Tổng diện tích: 130m2 | |
| Công năng: Phòng khách, phòng thờ, phòng bếp, 3 phòng ngủ, 2 wc, 1 phòng tắm | |
| Đơn vị thiết kế: CÔNG TY TNHH THIẾT KẾ & XÂY DỰNG MINHOME | |
Ngắm nhìn vẻ đẹp công trình nhà cấp 4 nhỏ gọn với 3 phòng ngủ tiện ích
Dù diện tích xây dựng không quá lớn nhưng với mặt tiền rộng gần 10m, căn nhà cấp 4 đã được xử lý khéo léo để toát lên vẻ bề thế và cuốn hút. Hai cột vuông khỏe khoắn ở hiên chính nâng đỡ mái sảnh và tạo cảm giác kiên cố. Thay vì để trơn, Min Home thiết kế thêm những đường kẻ chỉ ngang làm điểm nhấn tinh tế. Chân cột và bậc tam cấp được ốp gạch giả đá tối màu kết hợp hài hòa với khung cửa để mang lại sự đồng nhất và sang trọng.

Toàn bộ cửa chính và cửa sổ đều sử dụng nhôm kính cao cấp, bền chắc, dễ vệ sinh và mang lại cảm giác hiện đại. Lớp kính trong suốt không chỉ giúp đón ánh sáng tự nhiên mà còn tạo hiệu ứng mở rộng không gian khiến căn nhà nhỏ thêm phần thoáng đãng. Khi màn đêm buông xuống, ánh sáng từ bên trong hắt ra qua lớp kính càng làm nổi bật vẻ đẹp ấm áp, hiện đại của công trình. Đây chính là sự kết hợp giữa công năng, thẩm mỹ và tiết kiệm năng lượng.


Căn nhà cấp 4 được thiết kế với những mảng tường phẳng, điểm xuyết thêm bằng các đường kẻ chỉ ngang đều đặn tạo nhịp điệu cho mặt đứng và giúp tránh sự đơn điệu. Không chạy theo các chi tiết cầu kỳ mà ngôi nhà anh Tần giữ trọn sự tối giản nhưng vẫn đủ tinh tế. Đây là phong cách được nhiều gia đình trẻ yêu thích vừa hiện đại vừa dễ thi công mà lại tiết kiệm chi phí.

Ngoại thất công trình sử dụng màu trắng tinh khôi làm chủ đạo, mang lại cảm giác rộng rãi và sáng sủa. Trên nền trắng, phần mái ngói Nhật xanh than nổi bật đầy sang trọng tương phản với sắc trắng hài hòa. Kiểu dáng mái Nhật không chỉ đẹp về thẩm mỹ mà còn có ưu điểm thoát nước nhanh, chống nóng tốt và bền bỉ theo thời gian. Đây là lựa chọn tối ưu cho khí hậu nóng ẩm, mưa nhiều như ở Cao Bằng.
Nhìn từ trên cao, ngôi nhà được đặt gọn giữa khuôn viên có tường rào bao quanh chắc chắn. Sân trước lát gạch ghi xám sạch sẽ và mang vẻ sang trọng, thoải mái để bố trí chỗ để xe, tiểu cảnh hoặc khu vui chơi cho trẻ nhỏ.
Công năng hợp lý và đáp ứng nhu cầu nhiều thế hệ
Trên tổng diện tích đất rộng, ngôi nhà được bố trí ở trung tâm tạo khoảng lùi trước sau hợp lý, vừa đủ không gian cho sân vườn. Cách quy hoạch này giúp gia chủ dễ dàng mở rộng hoặc cải tạo về sau. Bản vẽ định vị rõ ràng dưới đây đã thể hiện được vị trí công trình trong tổng thể, hỗ trợ gia chủ hình dung dễ dàng ngay từ bước đầu.

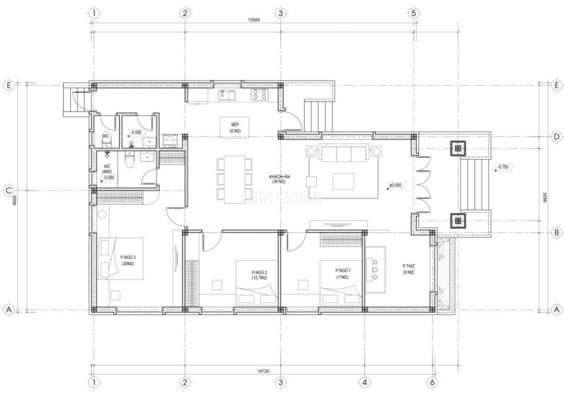
Một trong những điểm mạnh nhất của mẫu nhà cấp 4 này chính là bố cục công năng được tính toán khoa học. Từ sảnh chính đi vào là phòng khách liên thông phòng ăn rộng 38m2 thoáng đãng, thuận tiện cho sinh hoạt gia đình và tiếp khách. Bên cạnh là khu bếp 8m2 gọn gàng nhưng vẫn đủ công năng.

Về không gian nghỉ ngơi, ngôi nhà có 3 phòng ngủ diện tích đa dạng 11m2, 12,7m2 và 20m2. Cách sắp xếp thông minh giúp tối ưu diện tích mà vẫn đảm bảo sự riêng tư cho từng thành viên. Phòng ngủ lớn 03 được tích hợp nhà vệ sinh riêng, trong khi các phòng còn lại sử dụng WC chung vừa tiện lợi vừa tiết kiệm chi phí.
Ngoài ra, không gian thờ 9m2 được bố trí gần phòng khách rất trang nghiêm nhưng vẫn rất gần gũi, thuận tiện cho việc hương khói. Toàn bộ công năng này được kết nối hài hòa giúp gia đình nhiều thế hệ cùng sinh hoạt mà không cảm thấy chật chội.
Với Min Home, khách hàng không chỉ nhận được một bản vẽ kiến trúc đẹp mắt mà còn sở hữu trọn bộ hồ sơ chi tiết từ kết cấu, điện, nước, mặt bằng, nội thất,… Điều này giúp quá trình thi công dễ dàng hơn, giảm rủi ro sai sót, tiết kiệm thời gian và chi phí. Mọi chi tiết đều được tính toán chuẩn xác để khi triển khai xây dựng, gia chủ chỉ việc yên tâm thực hiện theo bản vẽ.
Nếu bạn cũng đang tìm kiếm một ngôi nhà nhỏ gọn, chi phí vừa tầm nhưng đầy đủ tiện nghi, hãy để Min Home đồng hành trong hành trình xây dựng mái ấm của bạn nhé!















