Gia đình anh Hiến tại Đồng Nai đã tin tưởng lựa chọn Min Home để hiện thực hóa mong muốn về một ngôi nhà vừa hiện đại vừa tiện nghi, chi phí lại hợp lý. Mẫu nhà cấp 4 mà chúng tôi thiết kế không chỉ ghi điểm nhờ sự gọn gàng và sang trọng mà còn đáp ứng trọn vẹn nhu cầu sinh hoạt của cả gia đình. Đây cũng chính là lý do vì sao những mẫu nhà cấp 4 mái Nhật vẫn luôn giữ vị thế bền vững trong xu hướng xây dựng hiện nay.
Thông tin nhà vườn 1 tầng mái Nhật thiết kế đẹp ở Vĩnh Phúc
| Chủ đầu tư: Anh Lê Văn Hiến | Địa chỉ: Trị An, Vĩnh Cửu, Đồng Nai |
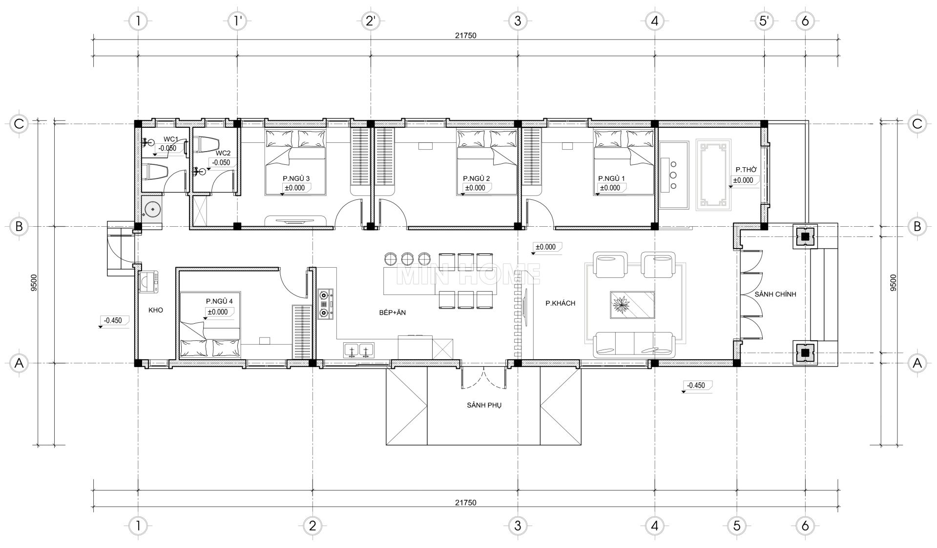
| Mặt tiền: 9,5m | Kích thước xây dựng: 9,5 x 21,8m |
| Số tầng: 1 tầng | Loại hình: Nhà mái Nhật hiện đại |
| Tổng diện tích: 132m2 | |
| Công năng: Phòng khách, phòng thờ, phòng bếp, 4 phòng ngủ, 2 wc | |
| Đơn vị thiết kế: CÔNG TY TNHH THIẾT KẾ & XÂY DỰNG MINHOME | |
Tinh tế từ mọi góc nhìn của căn nhà cấp 4 4 phòng ngủ siêu tiết kiệm
Ấn tượng đầu tiên về căn nhà anh Hiến chính là sảnh chính rộng rãi gần 7m2 được thiết kế mái che giật cấp để tạo chiều sâu cho công trình. Hai cột trụ vuông vức ở vị trí trung tâm nâng đỡ toàn bộ phần mái khẳng định sự bề thế và giúp bố cục thêm cân đối. Toàn bộ khu vực sảnh trở nên sang trọng hơn khi kết hợp bậc tam cấp ốp đá Ggranite tối màu cùng tiểu cảnh xanh hai bên. Đây là không gian vừa mang tính thẩm mỹ, vừa tạo cảm giác thân thiện, chào đón khách ngay từ những bước đầu tiên.

Cửa chính được lựa chọn là cửa nhôm kính hộp cao cấp, bền chắc, an toàn đồng thời có khả năng cách âm và cách nhiệt tốt. Nhờ bề mặt kính trong suốt mà ánh sáng tự nhiên dễ dàng len lỏi vào bên trong để tạo không gian sáng sủa và thoáng mát. Các cửa sổ cũng đồng bộ chất liệu nhôm kính, bố trí hợp lý ở nhiều mặt để đón gió, lấy sáng và mở rộng tầm nhìn ra sân vườn. Đây là giải pháp thiết kế thông minh vừa tiết kiệm điện năng vừa đem lại lối sống xanh bền vững.

Mẫu nhà cấp 4 mái Nhật này của Min Home gây ấn tượng mạnh mẽ nhờ sự phối hợp màu sắc hài hòa. Nền tường trắng tinh khôi được điểm xuyết bằng những mảng đá ốp màu ghi xám ở chân tường, tạo cảm giác chắc chắn và sạch sẽ. Toàn bộ phần chân tường đều được ốp đá tối màu để hạn chế bám bẩn và tăng tuổi thọ công trình trước điều kiện khí hậu nóng ẩm mưa nhiều.


Khi đêm xuống, căn nhà càng trở nên lung linh với hệ thống đèn âm trần bố trí ở mái hiên. Ánh sáng vàng dịu nhẹ hắt xuống bậc tam cấp và khối sảnh chính làm nổi bật từng đường nét kiến trúc. Đây là một trong những chi tiết khiến công trình luôn toát lên sự tinh tế, bất kể ngày hay đêm.

Phần mái Nhật xanh than trở thành điểm nhấn đặc biệt của công trình. Mái có độ dốc vừa phải, đua rộng bốn phía giúp chống nóng, thoát nước nhanh, hạn chế thấm dột vào mùa mưa. Chất liệu ngói cao cấp mà Min Home lựa chọn còn có tuổi thọ cao, màu sắc bền đẹp theo thời gian. Sự kết hợp giữa sắc mái xanh than và tông sơn trắng chủ đạo tạo nên diện mạo thanh lịch, hiện đại nhưng vẫn giữ được sự sang trọng và gần gũi.

Quan sát từ trên cao, ngôi nhà hiện lên gọn gàng với kích thước xây dựng 9,5×21,8m hình khối vuông vắn, cân đối. Thiết kế tối giản, hạn chế chi tiết cầu kỳ nhưng vẫn tạo sức hút nhờ những đường thẳng dứt khoát và mang hơi thở hiện đại. Đây là sự dung hòa giữa công năng và thẩm mỹ, phù hợp với các gia đình yêu thích sự tiện nghi, tinh gọn và tiết kiệm chi phí.
Công năng bên trong nhà cấp 4 đầy đủ và tiện nghi
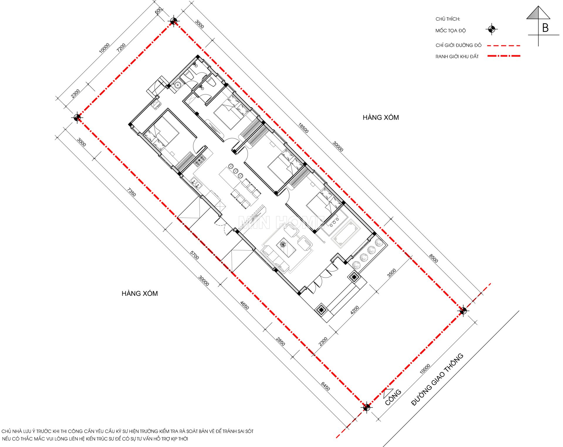
Ngôi nhà cấp 4 được bố trí hợp lý trong khu đất rộng, mặt tiền quay ra đường chính để thuận tiện di chuyển. Quanh khuôn viên được phân định rõ ràng tạo lối đi hợp lý và khoảng trống thông thoáng. Dạng đất hình chữ nhật dài đặc trưng của nhiều khu dân cư hiện nay được khai thác triệt để để đảm bảo công trình vừa đẹp vừa tiện lợi.

Bản vẽ công năng cho thấy sự tính toán kỹ lưỡng của đội ngũ Min Home. Từ sảnh chính bước vào là phòng khách rộng rãi, tiếp theo là phòng thờ được đặt ở vị trí trang nghiêm ngay gần mặt tiền vừa hợp phong thủy vừa thuận tiện trong sinh hoạt.

Dọc theo chiều dài ngôi nhà là 4 phòng ngủ, mỗi phòng đều được bố trí hợp lý, đảm bảo sự riêng tư và thoải mái cho từng thành viên. Không gian bếp ăn thoáng đãng nằm liền kề với sảnh phụ được trang bị hệ tủ bếp chữ L hiện đại đẹp mắt và tối ưu diện tích. Cuối nhà là khu vệ sinh và phòng kho gọn gàng cùng lối ra phía sau giúp việc sinh hoạt hằng ngày tiện lợi hơn.
Không chỉ dừng lại ở việc thiết kế ngoại thất và công năng, Min Home còn bàn giao cho gia đình anh Hiến một bộ hồ sơ đầy đủ từ kiến trúc, kết cấu đến điện nước và nội thất. Bộ hồ sơ này chính là “chìa khóa” giúp quá trình thi công diễn ra trơn tru, hạn chế sai sót, tiết kiệm đáng kể chi phí và thời gian.

















