Hôm nay, Min Home xin giới thiệu đến bạn mẫu nhà 2 tầng hiện đại, đầy đủ tiện nghi, được thiết kế riêng cho gia đình anh Nhật tại Hải Phòng. Ngôi nhà được xây dựng trên mảnh đất vuông vức, với bố cục cân đối và hài hòa, mang đến vẻ đẹp sang trọng và nổi bật. Thiết kế không chỉ chú trọng đến tính thẩm mỹ mà còn tối ưu hóa công năng sử dụng, phù hợp với nhu cầu sinh hoạt của gia đình. Cùng với các vật liệu cao cấp và lối kiến trúc hiện đại, mẫu nhà này hứa hẹn mang lại sự tiện nghi và thoải mái cho các thành viên trong gia đình.
Thông tin chung nhà 2 tầng hiện đại giá rẻ
| Chủ đầu tư: Anh Nguyễn Duy Nhật | Địa chỉ: Thắng Thuỷ, Vĩnh Bảo, Hải Phòng |
| Mặt tiền: 7m | Kích thước xây dựng: 7x12m |
| Số tầng: 2 tầng | Loại hình: Nhà mái bằng hiện đại |
| Tổng diện tích: 150m² | |
Công năng:
|
|
| Đơn vị thiết kế: CÔNG TY TNHH THIẾT KẾ & XÂY DỰNG MINHOME | |
Phối cảnh mặt tiền nhà 2 tầng hiện đại giá rẻ
Thiết kế ngôi nhà 2 tầng hiện đại của gia đình anh Nhật do các kiến trúc sư của Min Home thực hiện với hình khối vuông vắn, mang đến sự vững chắc và cân đối. Phong cách kiến trúc trẻ trung, kết hợp với việc phối màu hài hòa, đã tạo nên vẻ khang trang và tinh tế cho tổng thể công trình. Màu sắc được lựa chọn không chỉ tôn lên nét hiện đại mà còn thể hiện cá tính riêng của gia chủ.


Sảnh chính của ngôi nhà được thiết kế rộng rãi với 3 bậc thang, tuân thủ chuẩn phong thủy, giúp thu hút ánh sáng tự nhiên và đón luồng khí vượng, mang lại sự may mắn và tài lộc cho gia chủ. Bề mặt các bậc thang được lát bằng gạch Granite, một loại gạch có tính thẩm mỹ cao, ít bị trầy xước, độ bền cứng chắc và khả năng kháng nước tốt. Điều này giúp gạch Granite trở thành lựa chọn hoàn hảo cho những khu vực thường xuyên tiếp xúc với nắng mưa và có mật độ đi lại cao, đảm bảo tính bền vững và dễ dàng bảo dưỡng.

Với thiết kế ban công rộng rãi, chúng tôi đã khéo léo bố trí cây cảnh và hoa cỏ để tạo điểm nhấn, mang lại không gian sống xanh và gần gũi với thiên nhiên cho ngôi nhà 2 tầng hiện đại này. Những loại cây được chọn lọc kỹ lưỡng không chỉ giúp làm đẹp không gian mà còn tạo không khí trong lành, mang lại cảm giác thư thái cho các thành viên trong gia đình. Việc kết hợp giữa yếu tố kiến trúc và thiên nhiên không chỉ góp phần tăng tính thẩm mỹ mà còn tạo ra môi trường sống hài hòa, thúc đẩy sức khỏe và tinh thần cho gia chủ.

Thiết kế nhà 2 tầng sử dụng hệ mái bằng được lợp tôn, mang lại vẻ hiện đại và phù hợp với khí hậu nhiệt đới. Trên mái, chúng tôi bố trí téc nước và hệ thống năng lượng mặt trời, đảm bảo cung cấp nguồn nước sạch ổn định cho cả gia đình và giảm thiểu chi phí điện năng. Ngoài ra, mái bằng lợp tôn có độ bền cao, chống chịu tốt với thời tiết khắc nghiệt, đồng thời giúp thoát nước nhanh trong mùa mưa, đảm bảo sự an toàn và bền vững cho công trình.

Cổng của nhà 2 tầng hiện đại được thiết kế với những thanh sắt dọc đơn giản nhưng vẫn toát lên vẻ sang trọng, đồng thời hài hòa và đồng nhất với phong cách kiến trúc của ngôi nhà. Thiết kế cổng không chỉ đảm bảo tính an toàn mà còn góp phần tôn lên sự đẳng cấp và thẩm mỹ tổng thể. Ngay tại khu vực cổng, chúng tôi bố trí một khoảng đất nhỏ để trồng cây xanh và hoa lá, tạo nên một không gian sống động và gần gũi với thiên nhiên. Những mảng xanh này không chỉ làm tăng tính thẩm mỹ mà còn mang lại cảm giác dễ chịu, tươi mới ngay từ khi bước vào ngôi nhà.

Mặt bằng công năng nhà 2 tầng hiện đại giá rẻ
Công trình nhà hiện đại này được xây dựng theo hướng Đông, với kích thước 7x12m. Tổng diện tích sử dụng của cả hai tầng vào khoảng 150m², đáp ứng đầy đủ không gian sinh hoạt cho gia đình. Ngoài ra, việc xây dựng nhà theo hướng Đông còn mang lại lợi ích phong thủy, thu hút năng lượng tích cực, mang lại sự thịnh vượng và sức khỏe cho gia chủ.

Mặt bằng tầng 1 của ngôi nhà được thiết kế một cách khoa học, mang đến sự thoải mái và tiện nghi tối đa cho gia đình. Từ sảnh chính bước vào là phòng khách rộng rãi, sang trọng, được ngăn cách khéo léo với phòng bếp và phòng ăn bằng hệ lam gỗ, vừa đảm bảo sự riêng tư vừa giữ được không gian mở. Phòng bếp và khu vực ăn uống được bố trí với diện tích rộng rãi, mang lại cảm giác ấm cúng, lý tưởng cho những bữa ăn gia đình.
Tiếp theo là hai phòng ngủ lớn, đều được thiết kế thông thoáng và tiện nghi, tạo không gian nghỉ ngơi thoải mái cho các thành viên trong gia đình. Cuối nhà là khu vệ sinh chung, được bố trí hợp lý để phục vụ cho toàn bộ tầng 1 đảm bảo sự tiện lợi mà vẫn giữ được tính thẩm mỹ tổng thể.

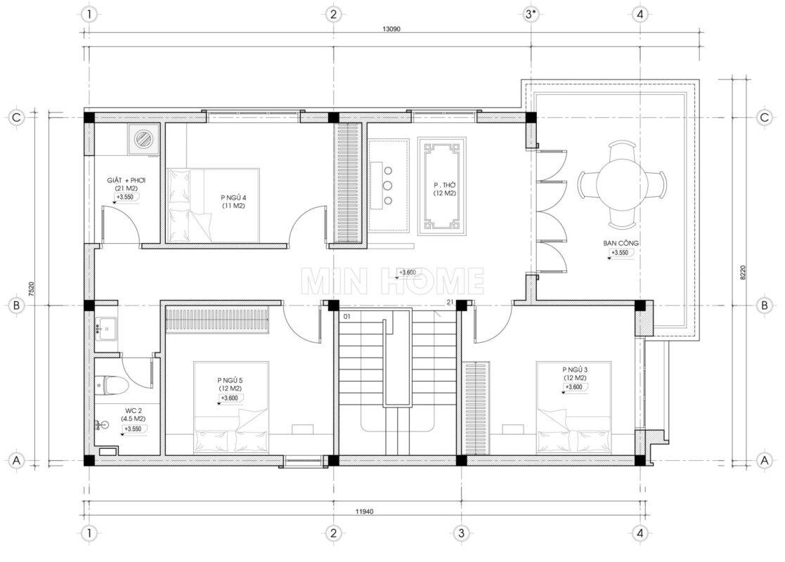
Từ cầu thang bộ dẫn lên tầng 2, dọc theo trục giao thông chính là phòng thờ, được bố trí trang trọng và yên tĩnh, phía trước là ban công rộng rãi, giúp không gian thờ cúng đón nhận ánh sáng tự nhiên và không khí trong lành. Phần còn lại của tầng 2 bao gồm 3 phòng ngủ được thiết kế thoáng đãng, đảm bảo sự riêng tư và tiện nghi cho các thành viên trong gia đình. Ngoài ra, khu vực vệ sinh chung và khu phơi đồ được bố trí hợp lý ở phía cuối nhà, tạo sự tiện lợi trong sinh hoạt hằng ngày.



