Bạn đang tìm kiếm một mẫu nhà phố 2 tầng đẹp, hiện đại nhưng vẫn đảm bảo chi phí xây dựng tiết kiệm? Đây chính là lựa chọn lý tưởng dành cho bạn. Với thiết kế tối giản, đường nét trẻ trung và công năng bố trí khoa học, mẫu nhà phố 2 tầng chi phí rẻ đang trở thành xu hướng được nhiều gia đình ưu tiên trong những năm gần đây. Không chỉ mang lại không gian sống tiện nghi, thoáng sáng, mẫu thiết kế này còn phù hợp với nhiều diện tích đất và phong cách thẩm mỹ khác nhau, giúp tối ưu ngân sách mà vẫn sở hữu một tổ ấm hiện đại, sang trọng.
Thông tin nhà phố 2 tầng đẹp
| Chủ đầu tư: Chị Bùi Thị Loan | Địa chỉ: Kiến Thuỵ, Hải Phòng |
| Mặt tiền: 5,5m | Kích thước xây dựng: 5,5 x 16m |
| Số tầng: 2 tầng | Loại hình: Nhà phố hiện đại |
| Tổng diện tích: 160m2 | |
Công năng:
|
|
| Đơn vị thiết kế: CÔNG TY TNHH THIẾT KẾ & XÂY DỰNG MINHOME | |
Mẫu nhà phố 2 tầng giá rẻ tại Hải Phòng
Mẫu nhà 2 tầng đẹp gây ấn tượng mạnh ngay từ ánh nhìn đầu tiên nhờ phong cách thiết kế hiện đại kết hợp tinh tế với những đường cong mềm mại trên mặt tiền. Các chi tiết uốn lượn được xử lý khéo léo, tạo nên sự uyển chuyển và mềm mại nhưng vẫn giữ được nét mạnh mẽ đặc trưng của kiến trúc đương đại. Sự kết hợp hài hòa giữa các hình khối sắc nét và đường nét nghệ thuật đã mang đến tổng thể công trình vẻ đẹp độc đáo, thu hút và khác biệt hoàn toàn so với các mẫu nhà phố thông thường.

Gam màu trắng chủ đạo góp phần làm nổi bật tinh thần hiện đại của ngôi nhà, đồng thời đem lại cảm giác rộng rãi và thoáng sáng hơn. Mặt tiền được nhấn nhá bằng mảng gạch giả gỗ và sắc ghi xám, tạo nên sự tương phản nhẹ nhàng nhưng đầy cuốn hút. Sự hòa quyện của các gam màu trung tính không chỉ gia tăng chiều sâu thẩm mỹ mà còn làm nổi bật phong cách tinh tế, sang trọng của gia chủ.

Trong quá trình lên phương án thiết kế, đội ngũ kiến trúc sư Maxhome luôn chú trọng lắng nghe mong muốn của gia chủ để thống nhất về phong cách kiến trúc, màu sắc và vật liệu hoàn thiện. Đặc biệt, sơn ngoại thất của Maxhome được ứng dụng cho công trình với ưu điểm vượt trội về khả năng chống thấm, độ bền màu cao và chống bám bẩn hiệu quả. Nhờ vậy, ngôi nhà giữ được vẻ đẹp bền vững theo thời gian, hạn chế tối đa tình trạng xuống cấp dưới tác động của môi trường.

Hệ cửa nhôm Xingfa cao cấp kết hợp kính cường lực được sử dụng xuyên suốt công trình, mang đến diện mạo hiện đại và thanh thoát. Chất liệu này không chỉ bền bỉ, chống oxy hóa và chịu lực tốt mà còn có khả năng cách âm – cách nhiệt hiệu quả. Nhờ bề mặt kính trong suốt, ánh sáng tự nhiên được đưa vào nhà một cách tối đa, giúp không gian bên trong luôn thông thoáng, rộng mở và tràn đầy năng lượng.

Quan sát từ trên cao, ngôi nhà nổi bật với những đường cong mềm mại uyển chuyển, tạo nên điểm nhấn thị giác đầy nghệ thuật. Hai lối cửa phụ được bố trí mở ra khu vực sân vườn bên hông, giúp không khí lưu thông tốt hơn và tăng sự kết nối giữa không gian nội thất với thiên nhiên bên ngoài. Cách bố trí này không chỉ tăng giá trị thẩm mỹ mà còn mang lại cảm giác thư thái, dễ chịu cho các thành viên trong gia đình.

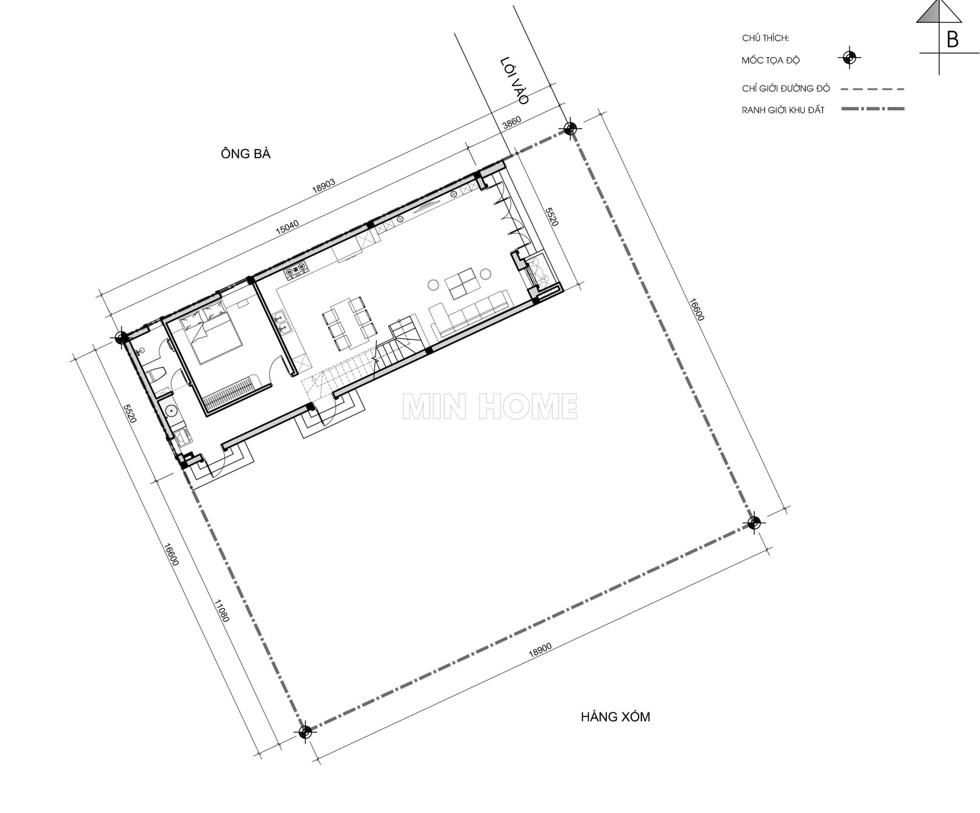
Ngôi nhà phố 2 tầng được xây dựng trên khuôn viên đất rộng 315m², trong đó gia chủ chừa một phần diện tích cho sân vườn và lối đi thoáng đãng. Công trình chính có kích thước 5,5 x 16m, tổng diện tích sử dụng khoảng 160m². Nhờ quy hoạch khoa học, ngôi nhà đảm bảo đầy đủ công năng, tạo thông thoáng tối đa và mang lại không gian sống tiện nghi, gần gũi với thiên nhiên.

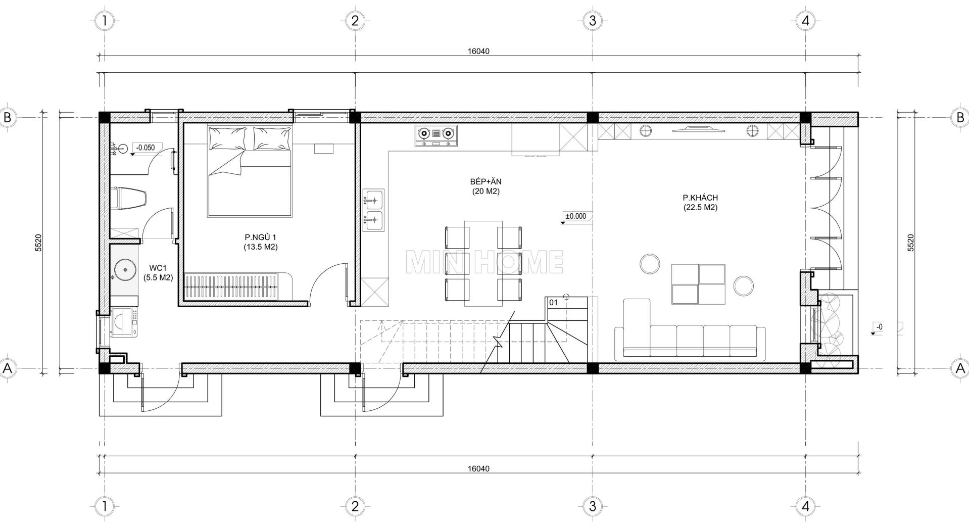
Từ cửa chính bước vào là phòng khách rộng rãi, được thiết kế sang trọng, tạo ấn tượng mạnh cho khách ghé thăm. Liền kề là khu vực bếp – ăn với hệ tủ bếp chữ L gọn gàng, tối ưu diện tích và thuận tiện cho việc nấu nướng. Cầu thang được đặt tại vị trí trung tâm, đóng vai trò kết nối và phân chia hợp lý các không gian chức năng. Cuối tầng là một phòng ngủ yên tĩnh, phù hợp cho người lớn tuổi hoặc phòng dành cho khách. Nhà vệ sinh chung được bố trí ngay bên cạnh, trang bị đầy đủ tiện nghi hiện đại.

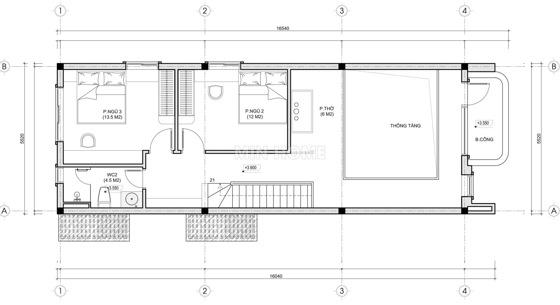
Tầng 2 bao gồm phòng thờ trang nghiêm, hướng ra khoảng thông tầng để đảm bảo sự thông thoáng và giảm mùi nhang khói. Bên cạnh đó là hai phòng ngủ được bố trí liền kề, thuận tiện cho sinh hoạt của các thành viên. Cuối tầng là nhà vệ sinh chung, được thiết kế hiện đại, rộng thoáng và đầy đủ tiện ích, mang đến sự thoải mái tối đa khi sử dụng.



