Min Home hân hạnh giới thiệu mẫu nhà cấp 4 mái lệch với phong cách thiết kế tối giản nhưng vẫn giữ được nét tinh tế, mang lại sự thoải mái và tiện nghi trong sinh hoạt hàng ngày. Với chi phí xây dựng chỉ từ 600 triệu đồng, đây là lựa chọn lý tưởng cho các cặp vợ chồng trẻ hoặc những gia đình có ngân sách hạn chế nhưng vẫn muốn sở hữu một không gian sống hiện đại và đầy đủ công năng.
Thông tin chung nhà 1 tầng mái bằng hiện đại
| Chủ đầu tư: Chú Nguyễn Văn Cường | Địa chỉ: Thạch Hoà, Thạch Thất, Hà Nội |
| Mặt tiền: 7,9m | Kích thước xây dựng: 7,9 x 13,2m |
| Số tầng: 1 tầng | Loại hình: Nhà mái lệch hiện đại |
| Tổng diện tích: 102m² | |
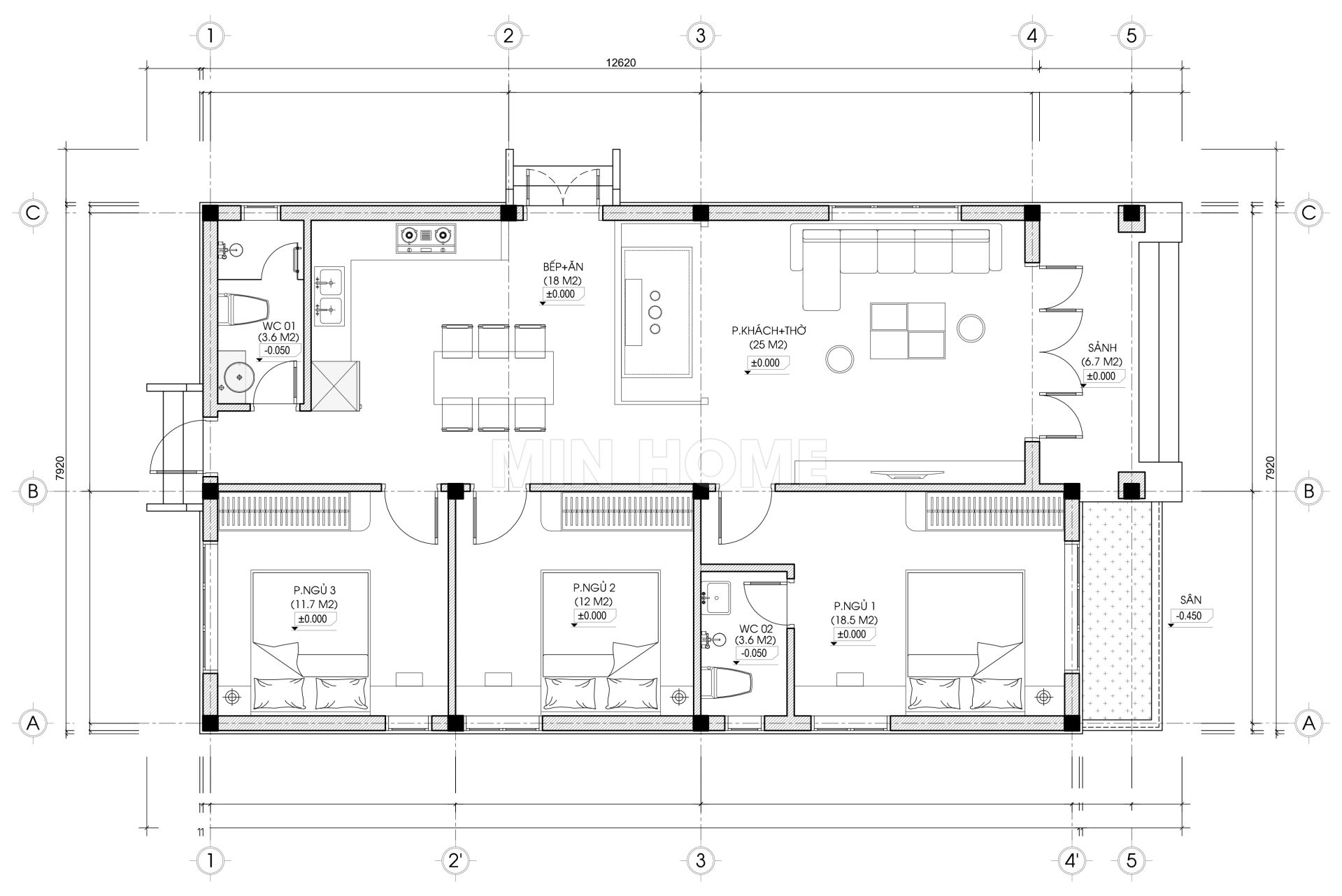
Công năng:
|
|
| Đơn vị thiết kế: CÔNG TY TNHH THIẾT KẾ & XÂY DỰNG MINHOME | |
Phối cảnh ngoại thất nhà 1 tầng mái bằng hiện đại
Với diện tích đất rộng 300m², gia chủ chỉ dành 102m² để xây dựng ngôi nhà, phần còn lại được bố trí thành không gian ngoài trời như sân vườn, gara, và các khu vực thư giãn. Cách phân chia này không chỉ giúp tối ưu hóa diện tích sử dụng mà còn mang lại sự thoáng đãng, không gian xanh mát, tạo điều kiện để gia đình tận hưởng bầu không khí trong lành. Việc bố trí gara và sân cũng góp phần nâng cao tính tiện nghi, đảm bảo sự thoải mái trong sinh hoạt hàng ngày.

Mẫu nhà cấp 4 mái lệch được thiết kế theo phong cách hiện đại, nổi bật với sự kết hợp tinh tế giữa tone màu ấm của gỗ và màu xanh tươi mát trên các mảng tường. Mặc dù sử dụng gam màu ấm, nhưng tổng thể ngôi nhà vẫn giữ được nét thanh lịch, nhã nhặn và đầy cuốn hút. Đây là sự lựa chọn vừa mang tính thẩm mỹ cao, vừa đảm bảo không bị lỗi thời theo thời gian. Sự kết hợp màu sắc này còn giúp không gian trở nên hài hòa, tạo cảm giác ấm cúng mà vẫn thoáng đãng, phù hợp với lối sống hiện đại.

Toàn bộ hệ thống kính cường lực mang đến nét đẹp hiện đại, giúp ngôi nhà trở nên trẻ trung và năng động hơn. Đây là sự lựa chọn phổ biến của nhiều gia chủ hiện nay, không chỉ vì tính thẩm mỹ mà còn nhờ vào khả năng cách âm, cách nhiệt tốt, dễ dàng vệ sinh, lau chùi. Kính trong suốt còn làm nổi bật vẻ đẹp của nội thất bên trong, tạo cảm giác không gian rộng rãi, thoáng đãng hơn, đồng thời gia tăng giá trị thẩm mỹ và sang trọng cho toàn bộ ngôi nhà.

Phần sảnh của nhà cấp 4 mái lệch được thiết kế với bậc tam cấp, không chỉ mang tính thẩm mỹ mà còn tuân thủ nguyên tắc phong thủy, giúp gia chủ gặp nhiều may mắn và thuận lợi trong công việc cũng như cuộc sống. Chân công trình được nâng cao, ốp đá chẻ xám mang vẻ đẹp huyền bí, tạo điểm nhấn mạnh mẽ và thu hút sự chú ý từ mọi góc nhìn. Việc sử dụng đá tự nhiên không chỉ làm tăng độ bền cho công trình mà còn giúp chống ẩm hiệu quả, đồng thời góp phần nâng cao giá trị thẩm mỹ tổng thể.

Nhà cấp 4 mái lệch là lựa chọn lý tưởng cho những ngôi nhà theo phong cách hiện đại, nhờ thiết kế độc đáo và tính thẩm mỹ cao. Kiến trúc mái lệch không chỉ tạo nên vẻ đẹp mới lạ, phá cách mà còn giúp tối ưu khả năng thoát nước trong mùa mưa, đồng thời tạo cảm giác thoáng đãng cho không gian sống. Đây là giải pháp hoàn hảo cho những gia đình muốn kết hợp giữa sự hiện đại, tiện nghi và tính thực dụng trong việc xây dựng không gian sống hiện đại.

Công trình nhà cấp 4 này được xây dựng theo hướng Đông, với kích thước 7,9 x 13,2m, mang lại tổng diện tích sử dụng khoảng 102m². Hướng Đông không chỉ phù hợp với phong thủy, giúp đón ánh sáng tự nhiên buổi sáng, tạo không gian sống sáng sủa và thoáng đãng, mà còn góp phần nâng cao sinh khí cho ngôi nhà. Kích thước này phù hợp cho những gia đình nhỏ, đảm bảo đủ không gian cho các khu vực chức năng như phòng khách, phòng ngủ, và bếp, đồng thời vẫn giữ được sự thoải mái trong sinh hoạt hàng ngày.

Từ cửa chính bước vào là không gian phòng khách kết hợp với phòng thờ, tạo nên sự trang nghiêm nhưng vẫn ấm cúng cho cả gia đình. Tiếp đến là khu vực bếp và phòng ăn được bố trí lùi về phía sau của ngôi nhà mái bằng cấp 4, đảm bảo sự tinh tế và riêng tư cho gia chủ trong sinh hoạt hàng ngày. Cạnh khu vực này là nhà vệ sinh chung, thuận tiện cho các thành viên và khách sử dụng.

Ngôi nhà được thiết kế với 3 phòng ngủ liền kề, tất cả đều được thi công rộng rãi, bài trí sang trọng và đầy đủ tiện nghi, đảm bảo sự thoải mái tối đa cho từng thành viên trong gia đình. Không gian các phòng ngủ được tối ưu hóa để mang lại cảm giác thoáng mát và dễ chịu, phù hợp với nhu cầu nghỉ ngơi, thư giãn.


