Thiết kế nhà gác lửng hiện đại mang đến vẻ đẹp thẩm mỹ, tối ưu hóa không gian sử dụng, đồng thời giúp tiết kiệm chi phí hiệu quả. Đây là một trong những mẫu nhà nổi bật thuộc bộ sưu tập nhà đẹp của Min Home. Gác lửng không chỉ giúp tận dụng triệt để diện tích mà còn tạo sự liên kết không gian giữa các tầng, mang lại cảm giác thoải mái và ấm cúng cho các thành viên trong gia đình. Bên cạnh đó, việc sắp xếp hợp lý các khu vực sinh hoạt còn giúp gia tăng sự tương tác, gắn kết giữa các thành viên.
Thông tin chung nhà hiện đại có gác lửng
| Chủ đầu tư: Chị Nguyễn Thị Huỳnh Đường | Địa chỉ: Hiệp Tân, Tân Phú, TPHCM |
| Mặt tiền: 5,2m | Kích thước xây dựng: 5,2 x 11m |
| Số tầng: 1 tầng 1 lửng | Loại hình: Nhà có gác lửng hiện đại |
| Tổng diện tích: 85m² | |
Công năng:
|
|
| Đơn vị thiết kế: CÔNG TY TNHH THIẾT KẾ & XÂY DỰNG MINHOME | |
Phối cảnh mặt tiền nhà hiện đại có gác lửng
Mẫu thiết kế nhà gác lửng hiện đang rất được ưa chuộng nhờ những ưu điểm vượt trội. Trước hết, gác lửng giúp tiết kiệm chi phí xây dựng đáng kể so với việc xây thêm tầng, mà vẫn đảm bảo đáp ứng đầy đủ các công năng cần thiết cho ngôi nhà. Thiết kế này không chỉ mở rộng diện tích sử dụng mà còn giúp tối ưu hóa không gian sống, mang lại sự thoải mái và tiện nghi cho gia đình. Với thiết kế phù hợp, ngôi nhà trở nên hiện đại, thông thoáng và góp phần tạo ra một lối sống tiện ích, đáp ứng nhu cầu sinh hoạt của mọi thành viên.

Mặt tiền công trình được thiết kế hài hòa với hai tông màu chủ đạo là trắng và ghi, tạo nên vẻ đẹp hiện đại và thanh lịch. Sự kết hợp khéo léo giữa các vật liệu tiên tiến như gỗ nhựa, kính cường lực và khung nhôm Xingfa cao cấp không chỉ làm nổi bật diện mạo của ngôi nhà mà còn giúp tầng 1 trở nên rộng rãi, thoáng mát.

Hệ thống cửa kính lớn không chỉ tăng cường khả năng đón ánh sáng tự nhiên, mà còn tạo cảm giác không gian mở, giúp ngôi nhà trở nên thông thoáng và kết nối hài hòa với môi trường bên ngoài. Đồng thời, việc sử dụng kính cường lực mang lại sự an toàn và bền bỉ theo thời gian, giúp không gian sống luôn sáng sủa và hiện đại.

Thiết kế mái bằng mang đến cho ngôi nhà vẻ ngoài hiện đại, nhỏ gọn và tinh tế, tạo ấn tượng mạnh mẽ về tính thẩm mỹ và sự tiện nghi. Thay vì sử dụng bê tông đổ mái như thông thường, mẫu nhà 1 tầng gác lửng này lại chọn lợp mái tôn – một giải pháp vừa kinh tế, vừa bền vững. Mái tôn được làm từ các hợp kim chất lượng cao như thép không gỉ, giúp nâng cao tuổi thọ của công trình, kéo dài từ 20 đến 40 năm, thậm chí có thể lâu hơn nếu được bảo trì tốt.

Do diện tích của công trình nhà gác lửng hiện đại này khá hạn chế, các kiến trúc sư của Maxhome đã khéo léo khai thác một lối đi bên hông nhà, kết hợp với việc lát gạch sân vườn và bố trí những thảm cỏ xanh để tạo điểm nhấn. Sự kết hợp hài hòa giữa gạch và cây xanh không chỉ mang lại vẻ đẹp thẩm mỹ mà còn góp phần làm cho không gian trở nên thoáng đãng, gần gũi với thiên nhiên.

Ngoài ra, khu vực này còn được tận dụng làm nơi giặt phơi cho gia đình, đảm bảo sự tiện lợi và gọn gàng trong sinh hoạt hàng ngày. Phần lam che được làm từ chất liệu sắt sơn tĩnh điện, bền bỉ và chống gỉ sét, giúp không gian luôn thông thoáng và thoát nước tốt. Mái hiên được làm từ gỗ nhựa Composite – một loại vật liệu hiện đại có độ bền cao và khả năng chống chịu thời tiết khắc nghiệt.

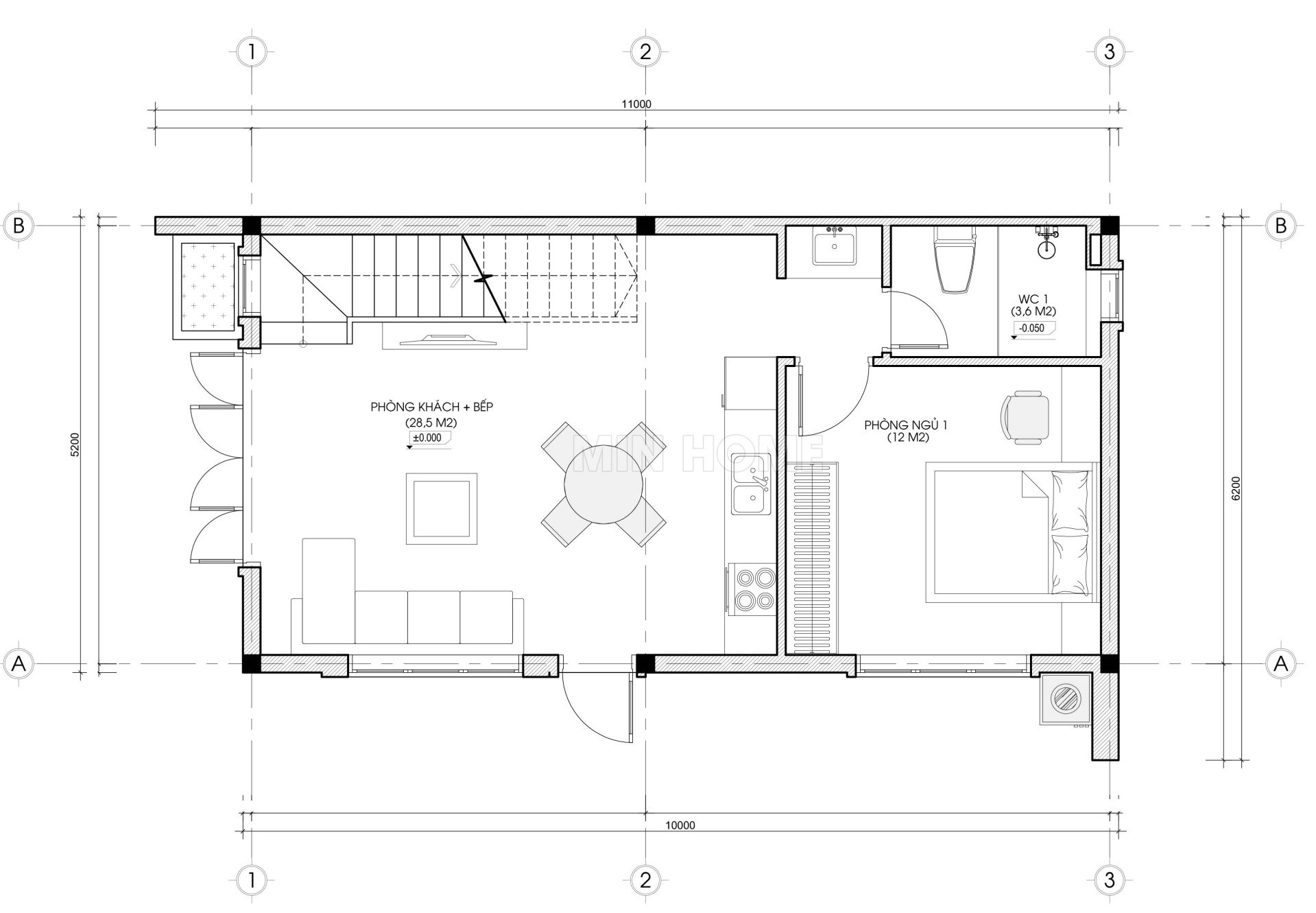
Mặt bằng công năng nhà hiện đại có gác lửng
Về mặt bằng định vị, ngôi nhà được xây dựng theo hướng Bắc với kích thước 5,2 x 11m, mang đến sự cân đối trong thiết kế. Diện tích sử dụng khoảng 85m², phù hợp cho các gia đình nhỏ hoặc những ai ưa thích không gian sống nhỏ gọn nhưng vẫn đảm bảo đầy đủ công năng. Thiết kế theo hướng Bắc còn giúp ngôi nhà đón gió mát vào mùa hè và tránh được ánh nắng gay gắt, mang lại không gian thoáng mát, dễ chịu.

Tầng 1 của ngôi nhà bao gồm phòng khách được thiết kế liên thông với khu vực bếp và bàn ăn, giúp tối ưu hóa không gian cho những căn nhà có diện tích hạn chế. Cách bố trí này không chỉ tạo sự liền mạch, rộng rãi mà còn giúp gia đình dễ dàng kết nối trong sinh hoạt hàng ngày. Phía cuối tầng là phòng ngủ 01, bên cạnh là khu vực vệ sinh chung, tiện lợi cho cả gia đình và khách sử dụng.
Thiết kế tầng 1 được bố trí nhiều cửa phụ, giúp không gian luôn thoáng đãng và đón ánh sáng tự nhiên, đồng thời tạo sự lưu thông không khí tốt, mang lại cảm giác thoải mái và dễ chịu cho ngôi nhà.

Tầng lửng được bố trí thêm một phòng ngủ rộng rãi kết hợp với khu vực làm việc, tạo ra không gian đa năng, vừa có tính riêng tư, vừa đáp ứng nhu cầu sinh hoạt và làm việc. Nhà vệ sinh khép kín bên trong được thiết kế hiện đại, tiện nghi, đảm bảo sự thoải mái cho người sử dụng, đồng thời tăng tính tiện lợi cho tầng lửng.



