Bạn đang tìm kiếm một mẫu nhà phố 2 tầng hiện đại, đẹp mắt và đáp ứng đầy đủ công năng cho gia đình? Thiết kế nhà phố 2 tầng do Min Home thực hiện dưới đây chắc chắn sẽ khiến bạn ấn tượng ngay từ cái nhìn đầu tiên. Với phong cách kiến trúc trẻ trung, đường nét tinh gọn và bố cục mặt bằng khoa học, mẫu nhà này không chỉ tối ưu không gian sống mà còn nâng tầm thẩm mỹ cho toàn bộ công trình. Đây cũng là một trong những thiết kế đang thu hút sự quan tâm lớn trên mạng xã hội nhờ tính ứng dụng cao và chi phí đầu tư hợp lý.
Thông tin nhà phố 2 tầng mái bằng
| Chủ đầu tư: Anh Trần Duy Hưng | Địa chỉ: Nho Quan, Ninh Bình |
| Mặt tiền: 6m | Kích thước xây dựng: 6 x 21,8m |
| Số tầng: 2 tầng | Loại hình: Nhà phố hiện đại |
| Tổng diện tích: 171m2 | |
Công năng:
|
|
| Đơn vị thiết kế: CÔNG TY TNHH THIẾT KẾ & XÂY DỰNG MINHOME | |
Mẫu nhà phố 2 tầng giá rẻ có 3 phòng ngủ
Mẫu nhà phố 2 tầng do Min Home thiết kế mang đậm phong cách hiện đại, nổi bật với hình khối vuông vức, gọn gàng và bố cục kiến trúc được xử lý tinh tế. Các mảng tường, đường nét và chi tiết trang trí đều được tối giản nhưng vẫn tạo nên điểm nhấn độc đáo, giúp tổng thể công trình trở nên ấn tượng và cuốn hút. Sự phối hợp hài hòa giữa hình khối mạnh mẽ và những chi tiết mềm mại mang đến vẻ đẹp sang trọng, trẻ trung, đáp ứng hoàn hảo nhu cầu thẩm mỹ của các gia đình yêu thích phong cách hiện đại.

Gam màu trắng được chọn làm tông chủ đạo cho ngôi nhà 2 tầng, mang đến vẻ ngoài thanh lịch, tinh tế và dễ phối hợp với các yếu tố kiến trúc khác. Đi kèm là sắc ghi nhẹ ở mặt tiền tầng 2, tạo điểm nhấn hiện đại, cân đối và hài hòa với tổng thể. Mặt tiền tầng 1 nổi bật với hệ cổng ốp gạch giả đá kết hợp gạch bông gió, không chỉ tăng hiệu ứng thẩm mỹ mà còn giúp không gian trở nên thông thoáng, thoải mái và ấn tượng ngay từ cái nhìn đầu tiên. Nhờ sự kết hợp màu sắc và vật liệu tinh tế, ngôi nhà vừa đẹp về mặt thẩm mỹ, vừa tối ưu công năng sử dụng.

Thiết kế nhà phố 2 tầng hiện đại sử dụng các mảng kính lớn, mang lại độ bền cao cùng khả năng cách nhiệt và chống ồn vượt trội. Kính cường lực là vật liệu tiên tiến, không thấm nước, kháng nấm mốc, chống cháy và dễ dàng vệ sinh, bảo dưỡng. Đồng thời, kính không bị giới hạn về hình dạng hay kích thước như các vật liệu truyền thống, giúp kiến trúc sư thoải mái sáng tạo các mảng tường, cửa sổ và mặt tiền độc đáo, mang đến không gian sống hiện đại, thoáng sáng và tinh tế.

Hệ mái bằng của ngôi nhà phố 2 tầng được phủ lớp sơn chống thấm, chống nước và cách nhiệt hiệu quả, giúp bảo vệ công trình trước những tác động khắc nghiệt của thời tiết. So với mái Nhật hay mái Thái, mái bằng mang đến vẻ ngoài gọn gàng, hiện đại và thanh thoát, đồng thời tiết kiệm chi phí thi công đáng kể. Bên cạnh đó, phía sau nhà còn được bố trí sân phơi rộng rãi, lợp tôn chống nóng, tạo không gian tiện nghi, đảm bảo hiệu quả sử dụng cho sinh hoạt hằng ngày và thuận tiện cho các công việc gia đình.

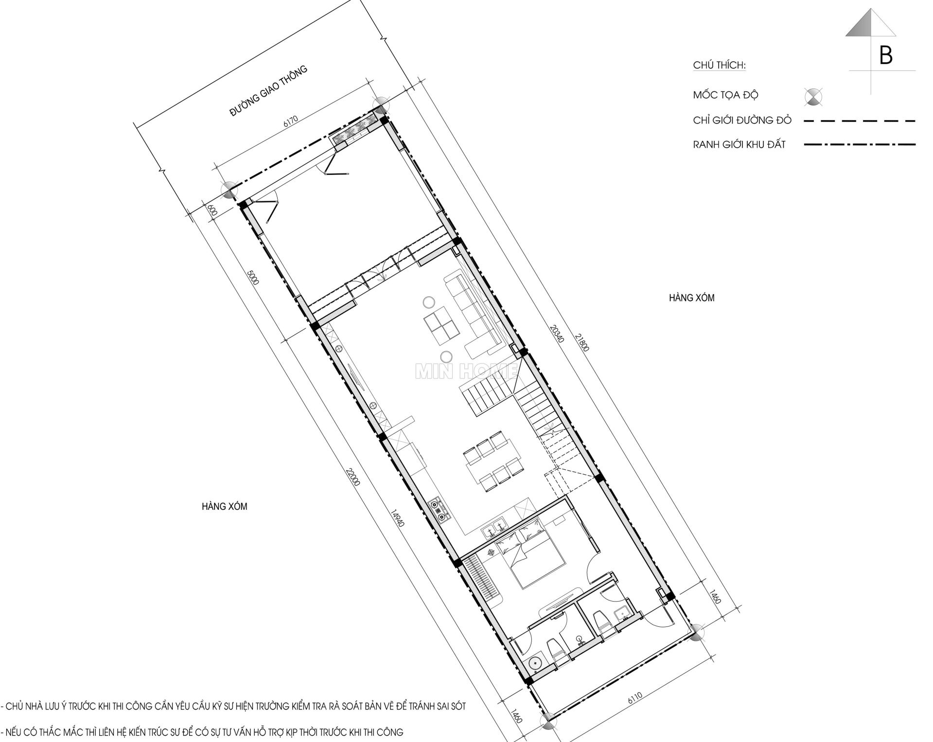
Quan sát mặt bằng định vị, có thể thấy rõ toàn bộ khuôn viên đất, từ đó Maxhome lên phương án thiết kế mặt bằng một cách tối ưu và khoa học. Công trình được xây dựng gần mặt đường, thuận tiện cho giao thông và sinh hoạt. Với kích thước xây dựng 6 x 21,8m và tổng diện tích sử dụng khoảng 171m², thiết kế không chỉ khai thác hiệu quả không gian mà còn đảm bảo sự thuận tiện trong sinh hoạt hàng ngày. Đồng thời, bố cục mặt bằng hợp lý kết hợp cùng kiến trúc hiện đại giúp nâng cao giá trị thẩm mỹ và tạo điểm nhấn cho toàn bộ ngôi nhà.

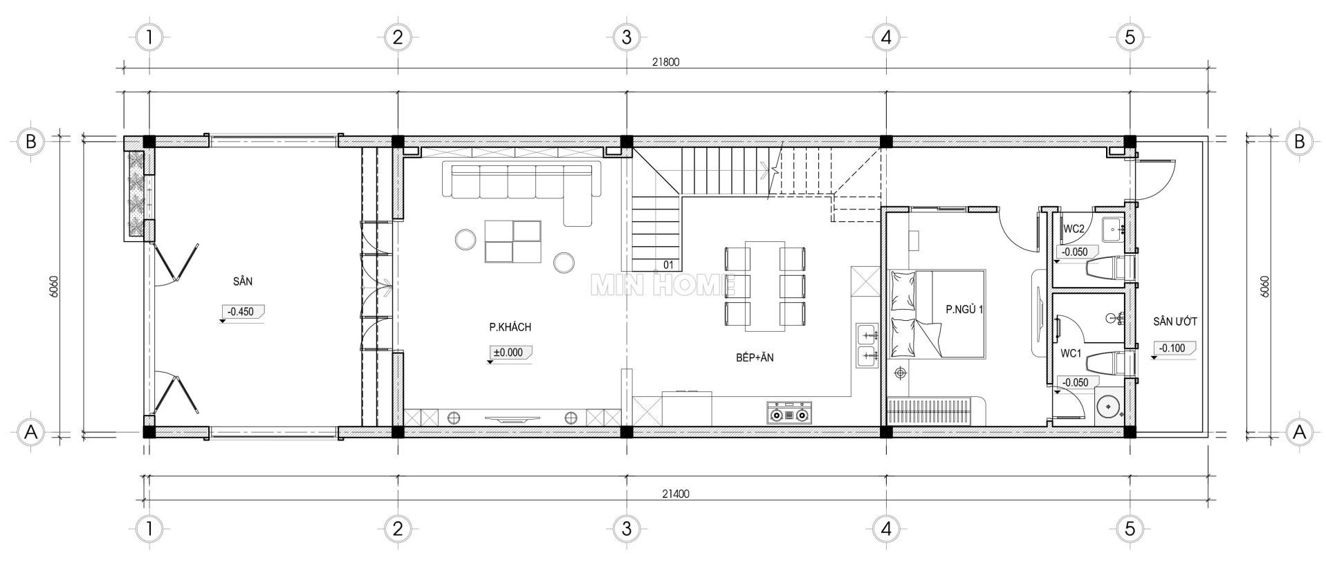
Từ sảnh chính bước vào là không gian phòng khách rộng rãi, thoáng mát, tạo ấn tượng ngay từ cái nhìn đầu tiên. Tiếp nối là khu vực bếp – ăn được bố trí khoa học, thuận tiện cho sinh hoạt hàng ngày và các bữa ăn gia đình. Ở cuối nhà là một phòng ngủ đi kèm nhà vệ sinh khép kín, đảm bảo sự riêng tư và tiện nghi tối đa cho người sử dụng. Ngoài ra, ngôi nhà còn được trang bị một nhà vệ sinh chung, thuận tiện cho các thành viên khác cũng như khách đến thăm, đồng thời góp phần tối ưu hóa công năng sử dụng.

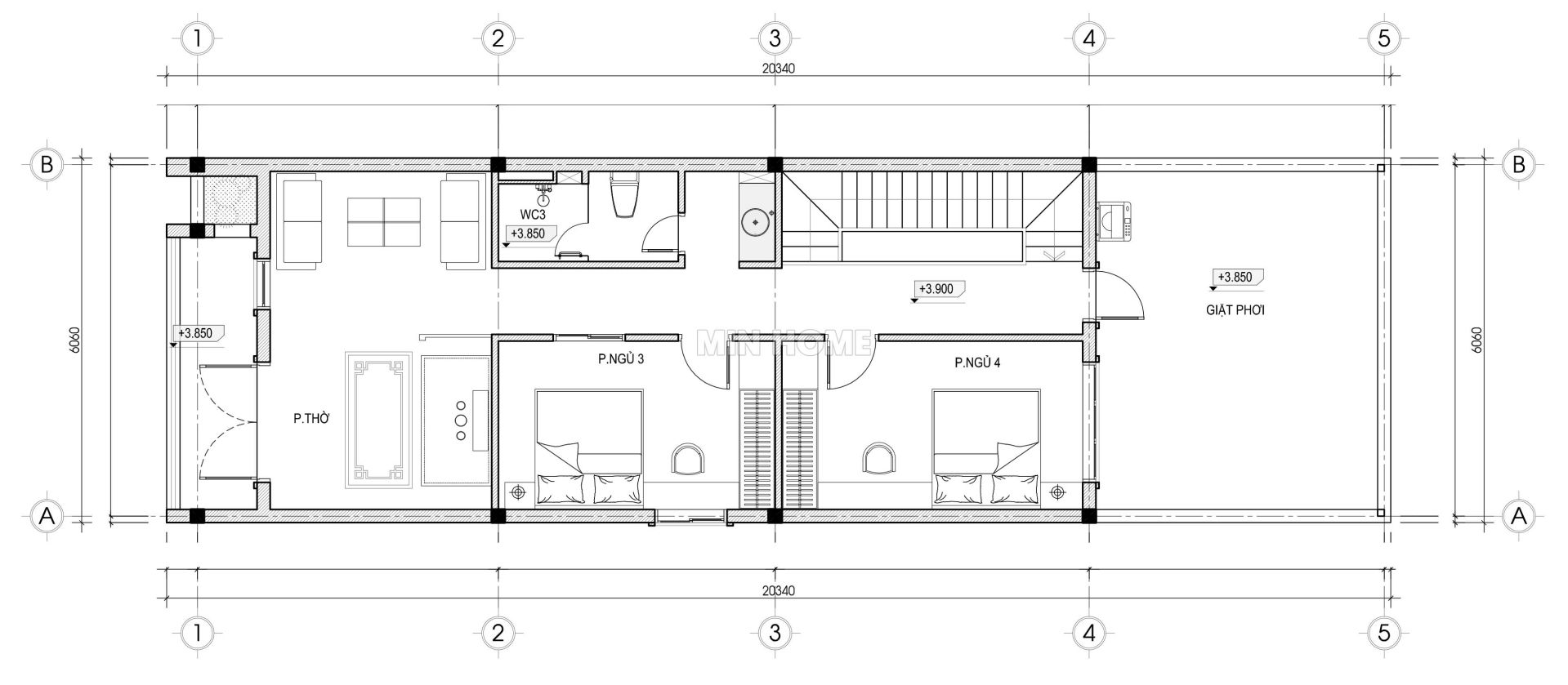
Tầng 2 của ngôi nhà bao gồm phòng thờ trang nghiêm, được bố trí hướng ra ban công nhằm hạn chế mùi nhang khói lan tỏa sang các không gian khác, đồng thời tạo cảm giác thanh tịnh và trang nghiêm. Khu vực còn lại được sắp xếp hai phòng ngủ liền kề, thuận tiện cho sinh hoạt và kết nối giữa các thành viên trong gia đình. Một nhà vệ sinh chung được đặt ở cuối nhà, vừa đảm bảo sự tiện nghi, khoa học trong sử dụng, vừa giữ cho toàn bộ không gian tầng 2 luôn thông thoáng, sáng sủa và dễ chịu.



