Mẫu nhà 1 tầng 4 phòng ngủ mái Nhật của gia đình anh Hiệp tại Bắc Giang, do Min Home thiết kế, là sự lựa chọn hoàn hảo cho những ai muốn tận hưởng không gian sống hiện đại nhưng vẫn gần gũi với thiên nhiên. Kiến trúc tinh tế kết hợp với bố trí công năng hợp lý không chỉ mang lại sự tiện nghi mà còn tối ưu hóa diện tích sử dụng, giúp mọi sinh hoạt diễn ra thuận tiện. Không gian sống được chăm chút kỹ lưỡng, tạo cảm giác thư thái, ấm cúng, nâng cao chất lượng cuộc sống cho cả gia đình.
Thông tin nhà 1 tầng 4 phòng ngủ mái Nhật
| Chủ đầu tư: Anh Phạm Văn Hiệp | Địa chỉ: Yên Dũng, Bắc Giang |
| Mặt tiền: 12,1m | Kích thước xây dựng: 12,1 x 16,5m |
| Số tầng: 1 tầng | Loại hình: Nhà mái Nhật hiện đại |
| Tổng diện tích: 140m2 | |
| Công năng:
Phòng khách, phòng thờ, phòng bếp, 4 phòng ngủ, 2 wc |
|
| Đơn vị thiết kế: CÔNG TY TNHH THIẾT KẾ & XÂY DỰNG MINHOME | |
Mẫu nhà mái Nhật 1 tầng 4 phòng ngủ đẹp như mơ
Ngôi nhà 1 tầng mái Nhật mang phong cách hiện đại, với những đường nét kiến trúc tinh tế, mang đến vẻ đẹp thanh lịch và hài hòa. Mái Nhật có độ dốc nhẹ giúp không gian thoáng đãng, phù hợp với khí hậu Việt Nam, trong khi nội thất bên trong được bố trí khoa học với 4 phòng ngủ tiện nghi, đảm bảo sự thoải mái cho cả gia đình.

Ngôi nhà 1 tầng 4 phòng ngủ mái Nhật thu hút ánh nhìn với sự kết hợp tinh tế giữa gam màu trắng chủ đạo, mái xanh than nổi bật, cùng điểm nhấn từ khung nhôm đen và gạch đá tự nhiên sắc ghi xám. Cách phối màu hài hòa không chỉ tôn lên nét sang trọng, bề thế mà còn tạo chiều sâu cho kiến trúc, giúp tổng thể trở nên cuốn hút và đầy sức sống.

Hai bên sảnh được thiết kế với hệ cột vuông vức, vững chãi, vừa đảm bảo kết cấu bền vững vừa tôn lên vẻ đẹp sang trọng. Thân cột có các rãnh chạy dọc, sơn xanh ghi trang nhã, trong khi chân cột được ốp gạch Inax cao cấp, tạo điểm nhấn ấn tượng và góp phần làm nổi bật sự bề thế của công trình.
Khối chân đế được nâng cao 750mm, không chỉ tạo sự bề thế và vững chắc mà còn giúp hạn chế tình trạng nước mưa tạt vào bên trong. Bậc tam cấp được ốp đá granite màu đen cổ bậc màu trắng tạo điểm nhấn sang trọng cho lối vào, sẵn sàng chào đón khách đến thăm.

Toàn bộ hệ thống cửa được chế tác từ nhôm Xingfa kết hợp với kính cường lực cao cấp, vừa đảm bảo độ bền vững, an toàn, vừa tôn lên nét hiện đại, tinh tế cho ngôi nhà. Chất liệu này không chỉ giúp không gian đón trọn ánh sáng tự nhiên, tạo cảm giác rộng rãi, thoáng đãng mà còn góp phần tiết kiệm năng lượng hiệu quả. Nhờ đó, mỗi góc nhà luôn sáng sủa, hài hòa với thiên nhiên, mang lại sự thoải mái và tiện nghi cho gia chủ.

Quanh ngôi nhà mái Nhật 1 tầng 4 phòng ngủ, những bồn hoa sặc sỡ và mảng xanh tự nhiên tạo nên một khung cảnh ngoại thất sống động và tràn đầy sức sống. Thiết kế sân vườn được chăm chút tỉ mỉ, hòa quyện tinh tế cùng kiến trúc, mang lại sự đồng điệu về hình thức và điểm nhấn nghệ thuật. Không gian này mở ra bầu không khí thư thái, an yên, giúp gia chủ cảm nhận sâu sắc niềm hạnh phúc và sự trọn vẹn trong cuộc sống.


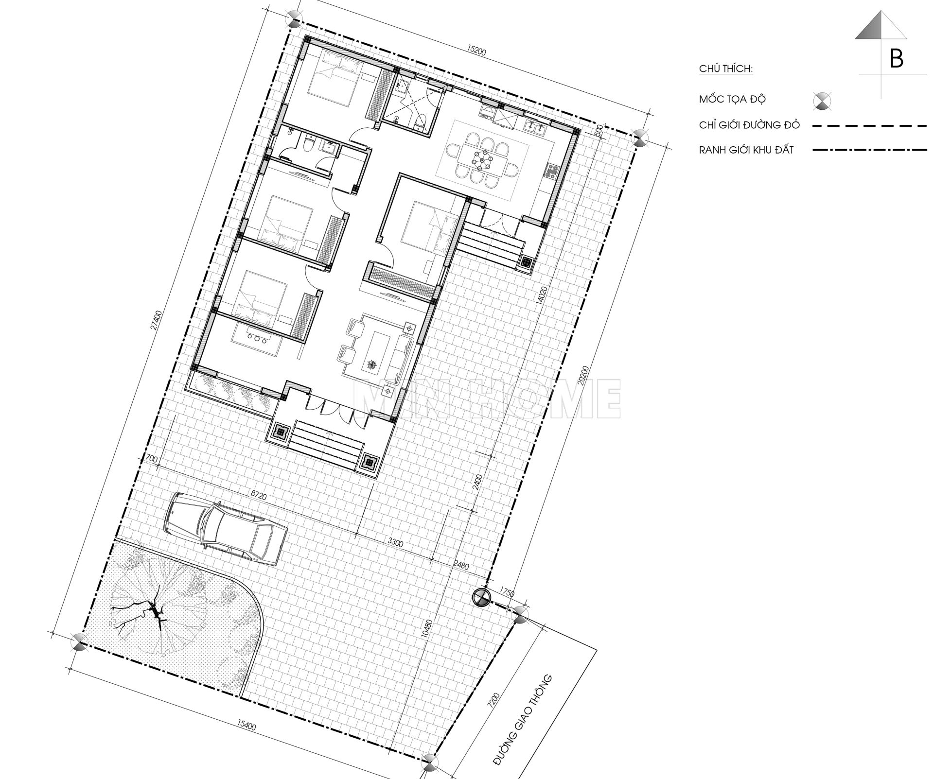
Mặt bằng công năng nhà cấp 4 mái Nhật
Ngôi nhà 1 tầng mái Nhật có tổng diện tích sử dụng khoảng 140m², nằm ở hướng Tây Nam với kích thước xây dựng 12,1×16,5m, đảm bảo sự thông thoáng và phù hợp với phong thủy. Ngay sau đây, Min Home xin chia sẻ chi tiết về cách bố trí công năng khoa học, tiện nghi, giúp tối ưu không gian sống và mang lại sự thoải mái cho gia đình.

Bước qua sảnh chính, bạn sẽ ngay lập tức cảm nhận được sự rộng rãi, thoáng đãng của phòng khách, nơi nội thất hiện đại được sắp xếp hài hòa, tôn lên vẻ sang trọng và tinh tế. Liền kề đó, phòng thờ được thiết kế trang nghiêm với vách lam ngăn cách, vừa tạo sự thông thoáng vừa đảm bảo không gian thờ cúng luôn yên tĩnh và tôn kính. Từ sảnh phụ, gia chủ có thể dễ dàng di chuyển vào khu vực bếp và phòng ăn, nơi được thiết kế mở giúp tối ưu diện tích và hạn chế tối đa tình trạng ám mùi thức ăn.
Bốn phòng ngủ rộng rãi, đầy đủ tiện nghi, mỗi phòng đều có cửa sổ lớn đón gió và ánh sáng tự nhiên, mang lại cảm giác thoải mái, trong đó phòng ngủ số 02 được bố trí khép kín để đảm bảo sự riêng tư, bên cạnh đó là một nhà vệ sinh chung được sắp xếp khoa học, thuận tiện cho sinh hoạt hằng ngày.



