Với những gia chủ mong muốn sở hữu nhà cấp 4 mái Nhật 3 phòng ngủ có không gian thoáng đãng, phong cách hiện đại và mức đầu tư hợp lý, công trình của gia đình chú Cầu là phương án rất đáng tham khảo. Thiết kế chú trọng bố trí công năng khoa học, tận dụng ánh sáng và gió tự nhiên, mang lại sự tiện nghi trong sinh hoạt hằng ngày. Tổng thể kiến trúc cân đối, đường nét tinh tế giúp ngôi nhà vừa đáp ứng nhu cầu sử dụng, vừa đảm bảo giá trị thẩm mỹ và độ bền lâu dài.
Thông tin nhà cấp 4 mái Nhật 110m2
| Chủ đầu tư: Chú Nguyễn Văn Cầu | Địa chỉ: Yên Bái, Lào Cai |
| Mặt tiền: 12,1m | Kích thước xây dựng: 12,1 x 11m |
| Số tầng: 1 tầng | Loại hình: Nhà mái Nhật hiện đại |
| Tổng diện tích: 135m2 | |
| Công năng:
Phòng khách, phòng thờ, phòng bếp, 3 phòng ngủ, 2 wc |
|
| Đơn vị thiết kế: CÔNG TY TNHH THIẾT KẾ & XÂY DỰNG MINHOME | |
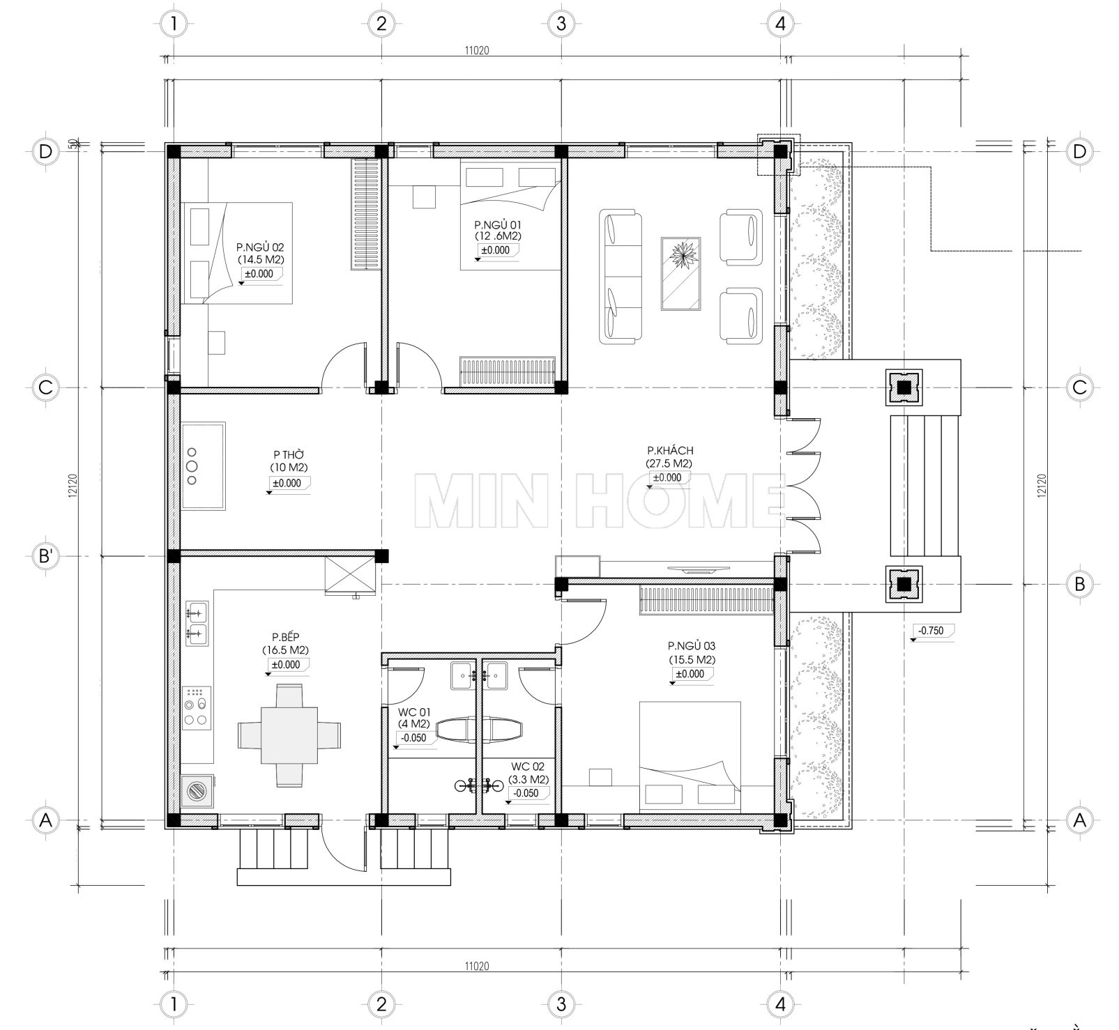
Bản vẽ nhà cấp 4 mái Nhật 110m2 nhỏ xinh mà đầy đủ công năng
Mẫu nhà cấp 4 mái Nhật 3 phòng ngủ gây ấn tượng bởi tỷ lệ kiến trúc hài hòa, khối nhà gọn gàng và kết cấu chắc chắn, tạo cảm giác an tâm khi sử dụng lâu dài. Ngôn ngữ thiết kế hiện đại với các mảng tường phẳng, đường nét rõ ràng giúp công trình toát lên vẻ tinh tế, sang trọng nhưng không cầu kỳ. Bên cạnh đó, khuôn viên sân vườn được bố trí hợp lý, kết hợp cây xanh và khoảng thoáng, mang lại không gian sống trong lành, thư giãn cho cả gia đình.

Mặt tiền công trình được tạo hình ấn tượng với hệ cột chịu lực chắc chắn, vừa nâng đỡ mái sảnh vừa mang lại cảm giác bề thế và cân đối cho tổng thể kiến trúc. Cột được xử lý kẻ chỉ tinh tế, sơn giả đá kết hợp chân cột ốp đá đen cao cấp, hài hòa với mảng tường sơn xanh và vật liệu ốp Inax, tạo nên diện mạo hiện đại, sang trọng. Bên cạnh đó, hệ tam cấp 5 bậc cao 750mm giúp ngôi nhà thêm cao thoáng, lối vào trở nên trang nghiêm với bề mặt ốp đá granite tông đen – trắng, vừa bền đẹp vừa tăng giá trị thẩm mỹ lâu dài.

Trong tổng thể thiết kế, màu sắc được lựa chọn kỹ lưỡng nhằm tạo sự hài hòa về thẩm mỹ và phù hợp với yếu tố phong thủy của gia chủ. Sự kết hợp giữa gam trắng thanh lịch và xanh dịu mát không chỉ mang đến diện mạo hiện đại, tinh tế mà còn góp phần tạo cảm giác cân bằng, thu hút năng lượng tích cực cho không gian sống. Khi phối hợp cùng các vật liệu hoàn thiện cao cấp như gỗ tự nhiên, nhôm kính Xingfa, gạch Inax và đá ốp, công trình đạt được vẻ đẹp sang trọng, bền vững và dễ chịu trong quá trình sử dụng lâu dài.

Hệ cửa chính bằng gỗ tự nhiên được gia công tỉ mỉ với các chi tiết trang trí tinh tế, góp phần tôn lên vẻ sang trọng và vững chãi cho mặt tiền nhà cấp 4 mái Nhật 3 phòng ngủ. Trong khi đó, cửa sổ khung nhôm Xingfa kết hợp kính cường lực mang lại độ an toàn cao, khả năng cách âm tốt, đồng thời khai thác tối đa ánh sáng và gió trời. Cách bố trí cửa theo hướng mở giúp không gian nội thất luôn thông thoáng, kết nối hài hòa với cảnh quan sân vườn xanh mát, tạo cảm giác thư giãn trong sinh hoạt hằng ngày.


Khu sân vườn được quy hoạch hài hòa với cây xanh, thảm cỏ và các mảng hoa nhiều sắc độ, mang lại cảm giác trong lành, thư thái cho tổng thể không gian sống. Đây là khoảng đệm lý tưởng giúp gia chủ cân bằng nhịp sống, tận hưởng những giây phút nghỉ ngơi sau ngày dài làm việc. Đồng thời, sân vườn còn trở thành không gian sinh hoạt chung ngoài trời, nơi các thành viên quây quần, trò chuyện và gắn kết tình cảm gia đình.

Ngôi nhà được định hướng Đông Bắc theo hoa tiêu chữ B trên mặt bằng, phù hợp với phong thủy và góp phần mang lại sự ổn định, thuận lợi cho gia chủ trong quá trình sử dụng. Với kích thước xây dựng 12,1 x 11m và tổng diện tích khoảng 135m², công trình được tính toán kỹ lưỡng để tối ưu công năng, đảm bảo không gian sinh hoạt rộng rãi và dễ dàng vận hành.

Từ sảnh chính bước vào là phòng khách liên thông phòng thờ, bố trí vách CNC tinh tế nhằm phân tách nhẹ nhàng, vừa tạo sự trang nghiêm vừa giữ được sự thông thoáng. Các phòng ngủ được sắp xếp hợp lý, trong đó một phòng khép kín tiện nghi, khu bếp – ăn đặt cuối nhà có cửa sảnh phụ và vệ sinh chung, mang đến sự thuận tiện và thoải mái cho sinh hoạt hằng ngày.


