Nhà mái bằng 2 tầng được xem là một trong những mẫu nhà đẹp đang được rất nhiều chủ đầu tư quan tâm và chú ý đến. Chính nhờ kiểu dáng kiến trúc độc đáo, tinh tế nhưng vẫn toát lên vẻ đẹp sang trọng. Nếu bạn đang tìm kiếm cho gia đình mình một mẫu thiết kế nhà mái bằng 2 tầng hiện đại, tiết kiệm, hãy tham khảo công trình của gia đình anh Ngọt tại Hưng Yên trong bài viết dưới đây để có thêm ý tưởng cho căn nhà tương lai.
Thông tin mẫu nhà 2 tầng mái bằng hiện đại
| Chủ đầu tư: Anh Nguyễn Văn Ngọt | Địa chỉ: Việt Yên, Yên Mỹ, Hưng Yên |
| Mặt tiền: 8,5m | Kích thước xây dựng: 8,5 x 14,9m |
| Số tầng: 2 tầng | Loại hình: Nhà mái bằng hiện đại |
| Tổng diện tích: 156m2 | |
Công năng:
|
|
| Đơn vị thiết kế: CÔNG TY TNHH THIẾT KẾ & XÂY DỰNG MINHOME | |
Phối cảnh 3D hiện đại của ngôi nhà 2 tầng mái bằng
Ngôi nhà 2 tầng hiện đại sở hữu hình khối vuông vức, cân đối cùng những đường nét mạnh mẽ, dứt khoát, tạo nên phần mặt tiền độc đáo, ấn tượng. Các kiến trúc sư sử dụng các chi tiết trang trí được tối giản, tập trung vào đường nét thẳng tắp mang lại cảm giác thông thoáng không gian sống.

Không gian ngoại thất sử dụng gam màu trắng tinh tế làm chủ đạo, nổi bật lên những mảng tường ốp giả gỗ sang trọng, sơn ghi xám trẻ trung, giúp công trình trở nên ấn tượng với nét đẹp hiện đại, mới mẻ và thanh lịch. Sự phối hợp này không chỉ giúp không gian trở nên rộng rãi, thoáng đãng mà còn làm nổi bật nét sang trọng, hiện đại và trẻ trung của tổng thể công trình.
Ngôi nhà 2 tầng hiện đại nổi bật với các mảng tường được ốp gạch giả đá. Điểm nhấn ấn tượng là chi tiết gạch ốp giả gỗ xung quanh hệ cửa sổ tầng 2, cùng các đường chỉ âm tường tạo chiều sâu và tăng tính thẩm mỹ cho mặt đứng.

Các ô cửa được bố trí hợp lý đảm bảo mỗi phòng đều có 2 cửa: cửa chính và cửa sổ để lấy sáng, lưu thông khí tạo cảm giác thoải mái cho người dùng khi sử dụng. Hầu hết cửa sử dụng vật liệu kính cường lực hiện đại có khả năng tối ưu ánh sáng tốt giúp lấy tối đa ánh sáng qua các ô cửa. kết hợp khung nhôm Xingfa cao cấp có khả năng cách âm tốt đảm bảo sự yên tĩnh cho các hoạt động sinh hoạt trong nhà. Cửa chính làm làm bằng cửa thép vân gỗ có đường vân đẹp, sang trọng và độ bền cao cùng chi phí phù hợp nên được nhiều gia đình lựa chọn.
Ngôi nhà 2 tầng hiện đại được nâng cao 450mm bằng hệ bậc tam cấp ốp đá Granite màu đen trắng sang trọng, vừa chống trơn trượt hiệu quả vừa tăng thêm vẻ bề thế cho ngôi nhà. Thiết kế này tạo điểm nhấn nổi bật cho căn nhà ngay từ cái nhìn đầu tiên. Phần chân đế ốp đá chẻ càng làm tăng nét đẹp thẩm mỹ và bảo vệ công trình bền vững khi sử dụng.

Ban công được thiết kế ở cả mặt tiền và bên hông nhà, sử dụng lan can bằng sắt hộp sơn tĩnh điện cao 0,9m, kết hợp với lam chắn nắng và kính cường lực, vừa đảm bảo an toàn vừa mang lại sự thông thoáng. Đây là nơi lý tưởng để gia chủ tận hưởng những giây phút thư giãn, thưởng trà hay đọc sách mỗi ngày.
Ngôi nhà sử dụng hệ mái bằng có kết cấu gọn gàng, vững chắc, đem đến cho căn nhà vẻ hiện đại mạnh mẽ, phóng khoáng. Phần mái được đánh dốc cẩn thận tránh tình trạng ứ đọng khi trời mưa. Trên mái được tận dụng là nơi bố trí téc nước và bình năng lượng mặt trời thân thiện với môi trường, mang đến không gian sống trong lành, thư thái mỗi ngày.

Phần sân trước nhà được ốp đá xám sạch sẽ, dễ dàng vệ sinh, chống trơn trượt, có thể sử dụng linh hoạt làm nơi vui chơi hay để xe thoải mái. Các bồn cây, hoa cảnh được bố trí gọn gàng ở trên ban công, mặt tiền và dọc chân tường rào, tạo cảm giác xanh mát và tràn đầy sức sống cho công trình.
Phần cổng và tường bao được thiết kế phù hợp giúp hoàn thiện vẻ đẹp tổng thể của ngôi nhà 2 tầng hiện đại. Cổng sử dụng vật liệu sắt sơn tĩnh điện và tường bê tông có các khoảng hở tạo điểm nhìn thoáng đãng, vừa đảm bảo an ninh vừa giúp lưu thông không khí, tôn lên vẻ đẹp của ngôi nhà từ bên ngoài.

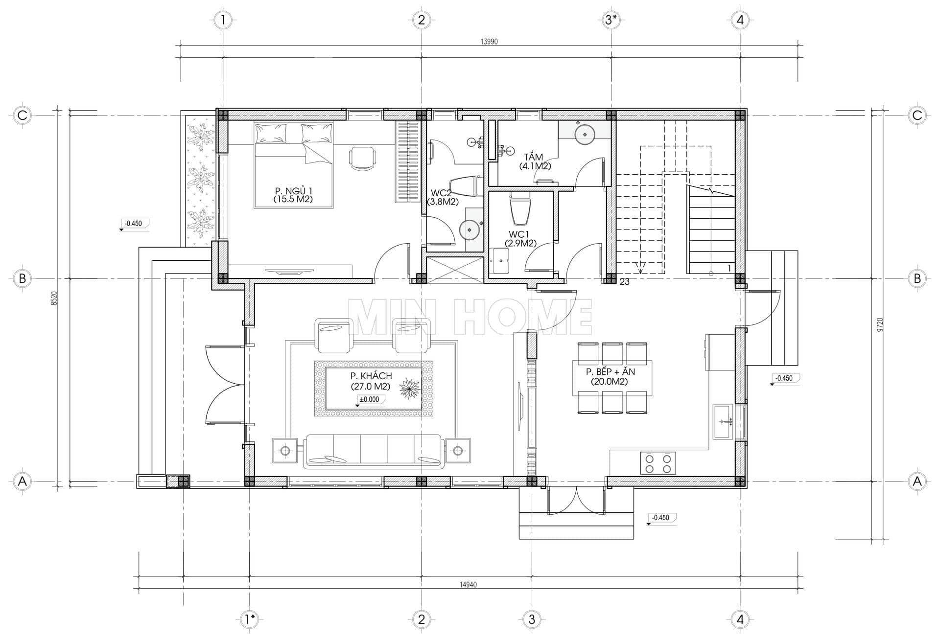
Mặt bằng bố trí công năng tiện nghi của ngôi nhà 2 tầng hiện đại
Bên cạnh vẻ đẹp kiến trúc hiện đại, thu hút ngôi nhà 2 tầng hiện đại còn có công năng được bố trí hài hòa. Được xây dựng trên lô đất có diện tích rộng 12 x 25m trong đó, diện tích xây dựng phần sàn là khoảng 156m² là diện tích sinh hoạt chung còn lại được sử dụng để bố trí sân vườn tạo nên tổng thể kiến trúc hài hòa giữa nhà ở và thiên nhiên. Công trình được xây dựng quay về hướng Bắc mát mẻ phù hợp với địa thế đất và phong thủy mang đến sự hài hòa về tài lộc, sức khỏe và tinh thần cho gia chủ.

Bước vào từ sảnh chính đầu tiên là phòng khách rộng được thiết kế theo phong cách hiện đại đồng bộ với kiến trúc ngoại thất tạo sự đồng điệu từ bên ngoài đến trong. Căn phòng sẽ có 1 bộ sofa lớn, bàn trà và các đồ trang trí nội thất hài hòa mang đến không gian đón khách thoải mái và ấm cúng. Đi sâu vào trong là phòng bếp + ăn có thiết kế cửa để ngăn cách với không gian sinh hoạt chun giúp giảm mùi khi đun nấu. Phòng bếp đặt gần sảnh phụ và có lối ra sân ướt sau nhà tiện lợi giúp thuận tiện khi di chuyển. Căn bếp có thiết kế tủ bếp chữ L rộng thoải mái để chứa đồ giúp căn bếp luôn gọn gàng ngăn nắp, bên cạnh là bộ bàn ăn 6 ghế nơi cả gia đình cùng sum vầy, quây quần bên bữa cơm gia đình ấm cúng mỗi ngày.

1 phòng ngủ có thiết kế khép kín phù hợp dành cho người lớn tuổi trong gia đình hoặc khách đến chơi. Nhà vệ sinh chung được đặt gần cầu thang, có tách biệt khu vực tắm, vệ sinh rõ ràng, đảm bảo sự tiện nghi và riêng tư cho người sử dụng.
Tiến lên tầng 2 có phòng thờ rộng 11m², được đặt vị trí đẹp trang trọng nhất theo hướng phong thủy phù hợp với mệnh của gia chủ. Đây là không gian linh thiêng được bài biện cẩn thận thể hiện lòng thành kính của gia đình với ông bà tổ tiên.

Tầng này có 3 phòng ngủ thiết kế theo sở thích của mỗi thành viên mang đến sự thoải mái khi nghỉ ngơi sau ngày dài vất vả bên ngoài. Phòng ngủ 03 khép kín có đầy đủ tiện nghi đảm bảo công năng sử dụng. Nhà vệ sinh chung đặt cạnh cầu thang đồng trục với tầng 1 để tối ưu hệ thống cấp thoát nước. Sân phơi rộng đặt bên ngoài đáp ứng nhu cầu phơi giặt cho cả gia đình mà vẫn đảm bảo thông thoáng, sạch sẽ, thuận tiện cho sinh hoạt hàng ngày.


