Bạn đang tìm kiếm ý tưởng thiết kế cho ngôi nhà cấp 4 mái Nhật giá rẻ với 4 phòng ngủ? Bài viết này sẽ giới thiệu 1 mẫu nhà đẹp, hiện đại, đáp ứng đầy đủ nhu cầu sử dụng và thẩm mỹ cho gia đình bạn. Đây là công trình do Min Home thiết kế cho gia đình anh Vinh tại Phú Thọ, cùng chúng tôi khám phá căn nhà này trong bài viết dưới đây!
Thông tin mẫu nhà cấp 4 mái Nhật tại Phú Thọ
| Chủ đầu tư: Anh Nguyễn Quang Vinh | Địa chỉ: Phù Ninh, Phú Thọ |
| Mặt tiền: 16,4m | Kích thước xây dựng: 16,4 x 10,9m |
| Số tầng: 1 tầng | Loại hình: Nhà vườn mái Nhật hiện đại |
| Tổng diện tích: 140m2 | |
| Công năng:
Phòng khách, phòng thờ, phòng bếp + ăn, 4 phòng ngủ, 2 wc |
|
| Đơn vị thiết kế: CÔNG TY TNHH THIẾT KẾ & XÂY DỰNG MINHOME | |
Phối cảnh 3D ngôi nhà cấp 4 mái Nhật
Ngôi nhà cấp 4 mái Nhật của gia đình anh Vinh được thiết kế theo phong cách hiện đại với các họa tiết không quá cầu kỳ, cùng hình khối vuông vắn đem đến vẻ đẹp tuy đơn giản nhưng vô cùng cuốn hút.

Công trình sử dụng màu trắng là tone màu chủ đạo mang đến vẻ đẹp thanh tao và sự sang trọng nhẹ nhàng. Kết hợp hài hòa cùng màu xám và xanh làm nổi bật nét đẹp hiện đại, khỏe khoắn của ngôi nhà 1 tầng.

Mặt tiền công trình ấn tượng với hệ cột trụ vuông vắn, vững chãi tạo vẻ đẹp bề thế, uy nghi cho ngôi nhà. Thân cột sử dụng đường kẻ chỉ chữ T, được sơn giả đá tạo điểm nhấn và sự sang trọng cho kiến trúc. Chân cột cũng sơn giả đá màu xám đen làm tăng thẩm mỹ và đẳng cấp cho căn nhà.

Điểm đặc biệt của ngôi nhà cấp 4 mái Nhật là 2 sảnh sẽ cùng nằm trên một mặt phẳng. Tuy nhiên phần sảnh chính có thiết kế nhô ra phía trước hơn, tạo nên một điểm nhấn ấn tượng và thu hút mọi ánh nhìn. Cấu trúc đặc biệt này không chỉ giúp tối ưu hóa không gian sử dụng, mà còn tạo ra một cảm giác mở rộng, thoáng đãng cho toàn bộ công trình.

Bậc ngũ cấp dẫn lối từ sân lên sảnh chính được ốp đá tự nhiên nhằm đảm bảo an toàn khi di chuyển đồng thời tạo vẻ đẹp sang trọng, bền vững theo thời gian sử dụng. Đế công trình ốp đá chẻ màu xám ghi giúp bảo vệ ngôi nhà trước tình trạng thấm, dột, rong rêu ẩm mốc.
Công trình sử dụng hệ mái Nhật có thiết kế bao trùm lấy toàn bộ công trình, tạo cảm giác vững chãi và bền bỉ, đồng thời giúp bảo vệ căn nhà khỏi các yếu tố thời tiết khắc nghiệt. Những đường nét uốn cong mềm mại, mái Nhật không chỉ là điểm nhấn thẩm mỹ, góp phần làm nổi bật sự kết hợp hoàn hảo giữa nét truyền thống và hiện đại. Kiểu mái này còn tạo ra không gian thoáng đãng, mát mẻ, phù hợp với khí hậu nóng ẩm mưa nhiều của Việt Nam.

Các kiến trúc sư đã thiết kế ngôi nhà theo phong cách mở với toàn bộ các ô cửa sử dụng loại vật liệu hiện đại kính cường lực để lấy ánh sáng vào bên trong mang đến không gian sống tươi mới, gắn kết cùng thiên nhiên. Các ô cửa có kích thước lớn giúp để lấy gió nhằm lưu thông khí trong nhà tạo bầu không khí thoáng mát, thoải mái khi sinh hoạt.

Không thể hiếu là hệ thống cây xanh được bố trí xung quanh nhà mang lại cảm giác thư giãn, dễ chịu cho gia chủ. Đây là không gian lý tưởng để chủ nhà vận động nhẹ nhàng sau mỗi ngày đi làm về, tưới cây, chăm sóc hoa giảm stress công việc. Bên cạnh đó, phần sân được lát gạch chống trơn sạch sẽ đảm bảo an toàn khi đi lại cho cả gia đình.
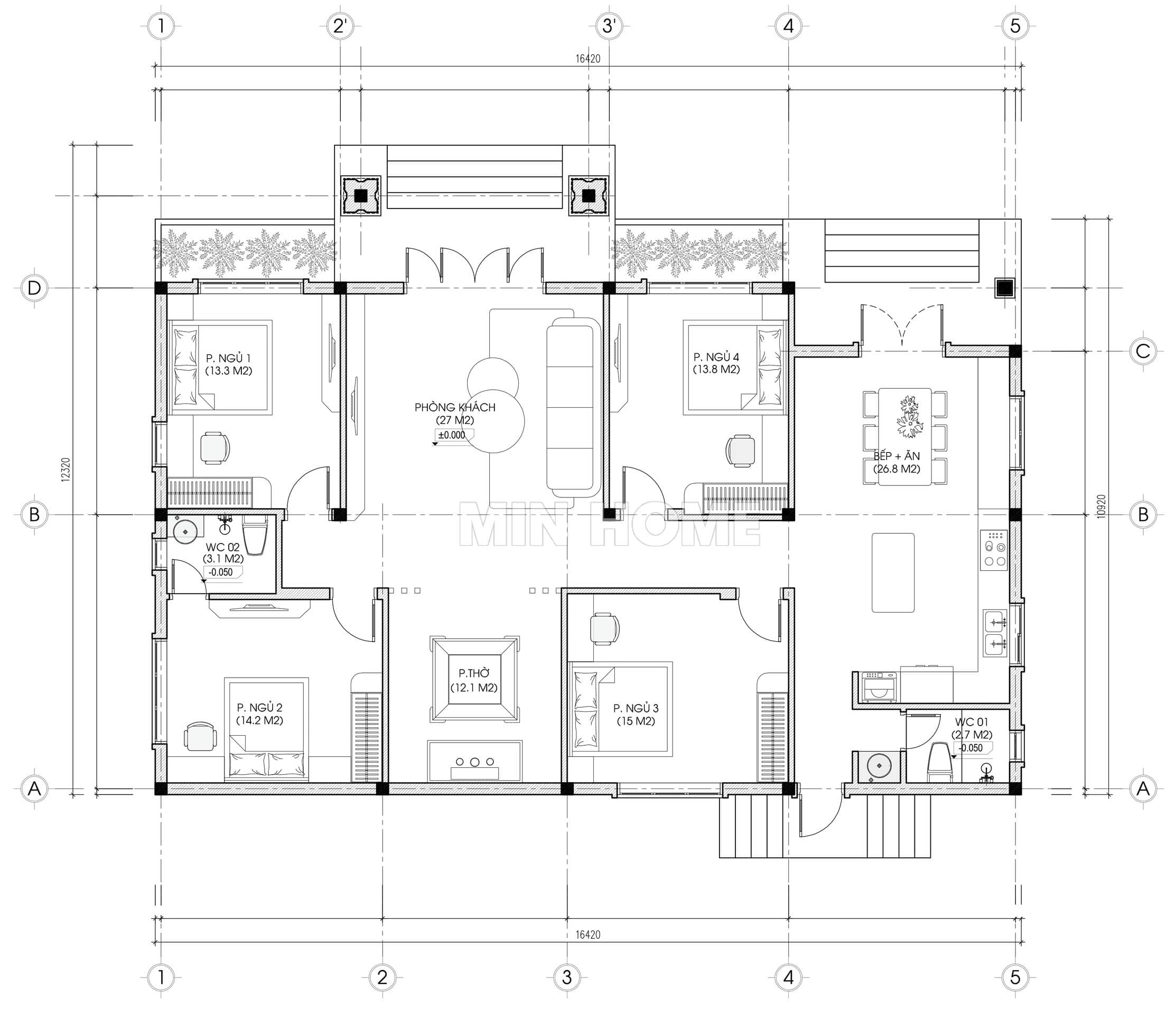
Mặt bằng bố trí công năng nhà cấp 4 mái Nhật 4 phòng ngủ
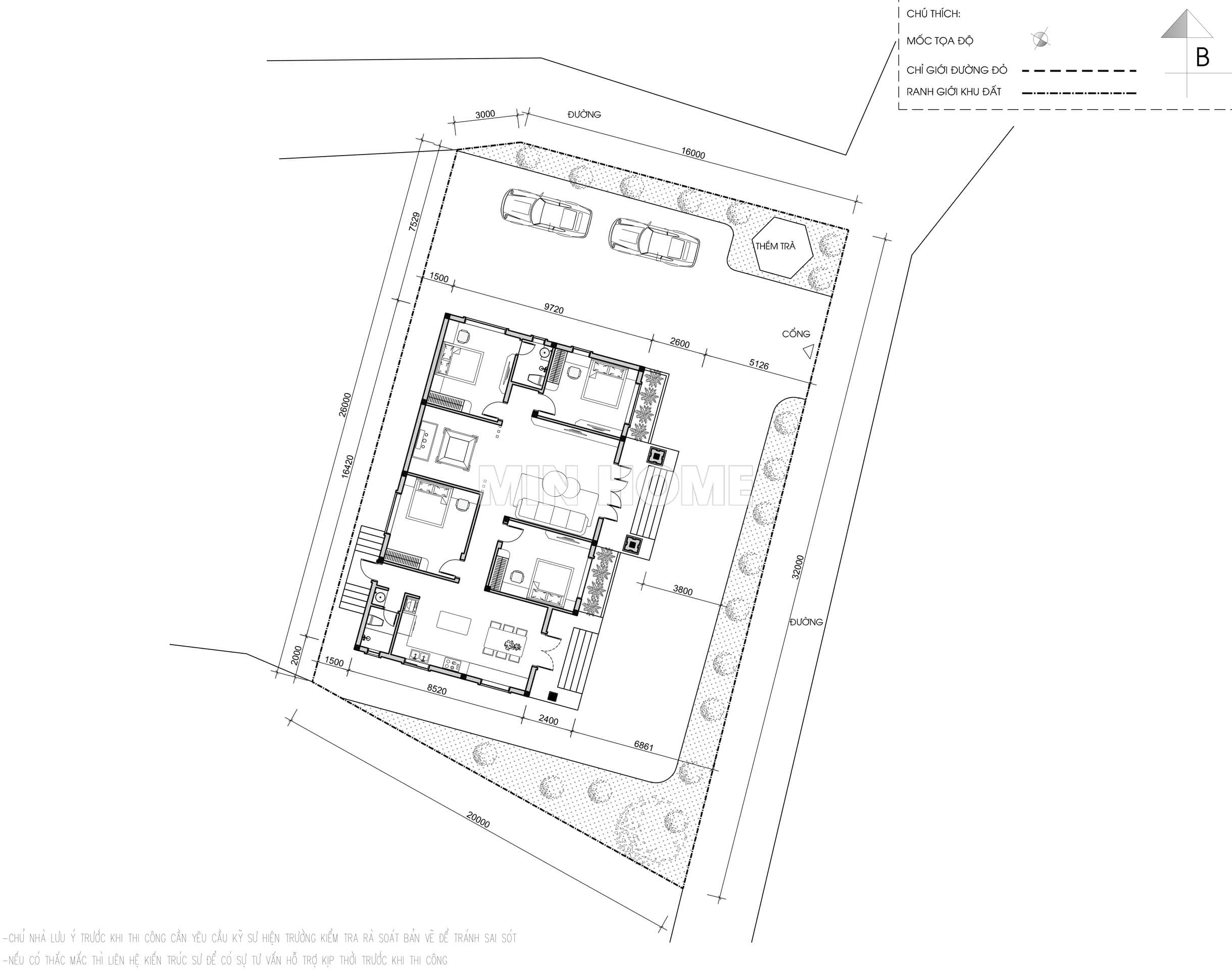
Về vị trí ngôi nhà 1 tầng Nhật có hướng chính nằm ở phía Đông Nam, có kích thước xây dựng là 16,4 x 10,9m. Với tổng diện tích sàn sử dụng khoảng 140m², công trình được các kiến trúc sư bố trí công năng tiện nghi mang đến sự thoải mái cho các thành viên khi sinh hoạt.

Mặt bằng định vị công trình
Từ sảnh chính đi vào là phòng khách rộng với nội thất bố trí hài hòa theo gu thẩm mỹ của gia chủ mang đến không gian đón khách thoải mái. Đi sâu vào trong là phòng thờ có hướng cùng với hướng chính của ngôi nhà giúp đón may mắn, tài lộc cho gia chủ.

Mặt bằng bố trí công năng nhà cấp 4 mái Nhật
4 phòng ngủ có thiết kế thoáng mát nhờ những ô cửa sổ lớn, cùng đồ nội thất hiện đại mang đến không gian nghỉ ngơi thoải mái cho các thành viên.
Từ sảnh phụ đi vào là phòng bếp + ăn có thiết kế khá tách biệt có nội thất đầy đủ đảm bảo tiện nghi cho các thành viên khi sử dụng. Cuối nhà đặt 1 nhà vệ sinh chung sạch sẽ thuận tiện cho chủ nhà và khách khi dùng.


