Mẫu nhà mái Nhật 1 tầng hiện đại cực chất mà giá lại rẻ tại Tây Ninh | MN02909

970

Mẫu nhà mái Nhật 1 tầng đẹp và bắt mắt ngay từ cái nhìn đầu tiên, dễ dàng chiếm được tình cảm của gia chủ. Thiết kế mang phong cách hiện đại và năng động, không quá cầu kỳ nhưng vẫn rất tinh tế. Hãy cùng chiêm ngưỡng toàn bộ phối cảnh và mặt bằng của căn nhà đẹp này để cảm nhận sự thanh nhã và tiện nghi của không gian sống!

Thông tin chung nhà 1 tầng hiện đại mái Nhật

Chủ đầu tư: Anh Đặng Hoàng Việt Địa chỉ: Trảng Bàng, Tây Ninh
Mặt tiền: 7,3m Kích thước xây dựng: 7,3 x 13,3m
Số tầng: 1 tầng Loại hình: Nhà mái Nhật hiện đại
Tổng diện tích: 100m2
Công năng:

Phòng khách, phòng thờ, phòng bếp, 2 phòng ngủ, 1 wc

Đơn vị thiết kế: CÔNG TY TNHH THIẾT KẾ & XÂY DỰNG MINHOME

Phối cảnh ngoại thất của nhà 1 tầng hiện đại mái Nhật

Với phong cách thiết kế hiện đại, mẫu nhà mái Nhật 1 tầng đã nổi bật khác biệt so với những thiết kế truyền thống trước đây, từ kiểu dáng đến sắc màu. Đây là lựa chọn lý tưởng cho những chủ đầu tư trẻ, năng động, yêu thích sự đổi mới và cái mới trong không gian kiến trúc tổng thể.

mau nha mai nhat 1 tang hien dai doc dao 7

Mẫu nhà mái Nhật 1 tầng hiện đại này sử dụng tone màu trắng kết hợp với ghi xám trên diện tường mặt tiền và các vị trí giáp với sàn mái và trần được lát gỗ nhựa để trang trí, với màu nâu của gỗ mang lại cảm giác nhẹ nhàng và ấm áp. Và một điểm nhấn thu hút người nhìn đó là chi tiết ô cửa sổ tròn ở mặt tiền được trang trí tinh tế, khéo léo.

mau nha mai nhat 1 tang hien dai doc dao 8

Tiếp theo, toàn bộ hệ thống cửa được làm từ chất liệu nhôm hệ Xingfa kết hợp với kính cường lực. Loại kính này được thiết kế cao cấp để cung cấp khả năng cách âm tốt, đồng thời chống ồn và không cong vênh theo thời gian sử dụng. Hệ cửa nhôm còn có ưu điểm lớn trong việc cung cấp ánh sáng tự nhiên, mang lại cho không gian sống cảm giác thoải mái, mát mẻ.

mau nha mai nhat 1 tang hien dai doc dao 9

Chân tường được ốp đá bóc màu đen chắc chắn, giúp bảo vệ chân công trình một cách hiệu quả. Bậc tam cấp được thiết kế với 3 bậc, tạo nên một mặt tiền rộng và thông thoáng. Kiến trúc của ngôi nhà tôn lên sự thông thoáng nhờ vào bậc tam cấp, mang đến không gian sang trọng và ấn tượng bề thế.

mau nha mai nhat 1 tang hien dai doc dao 10

Mẫu nhà mái Nhật 1 tầng hiện đại này sử dụng tone màu trắng kết hợp với ghi xám trên diện tường mặt tiền và các vị trí giáp với sàn mái và trần được lát gỗ nhựa để trang trí, với màu nâu của gỗ mang lại cảm giác nhẹ nhàng và ấm áp.

mau nha mai nhat 1 tang hien dai doc dao 12

Tinh thần hiện đại được thể hiện ngay từ vị trí của cổng chính. Cánh cổng được làm bằng chất liệu sắt kết hợp với nan gỗ, làm nổi bật phần cổng. Tường bao được xây dựng từ bê tông, với các mảng tường được ốp đá tỉ mỉ và đan xen với gạch bông thông gió, tạo nên một thẩm mỹ và chức năng tốt cho không gian xung quanh.

mau nha mai nhat 1 tang hien dai doc dao 11

Mặt bằng bố trí công năng của nhà 1 tầng hiện đại mái Nhật

Công trình nhà mái Nhật 1 tầng hiện đại này được xây dựng hướng về Đông, có kích thước là 7,3 x 13,3m, tổng diện tích khoảng 100m².

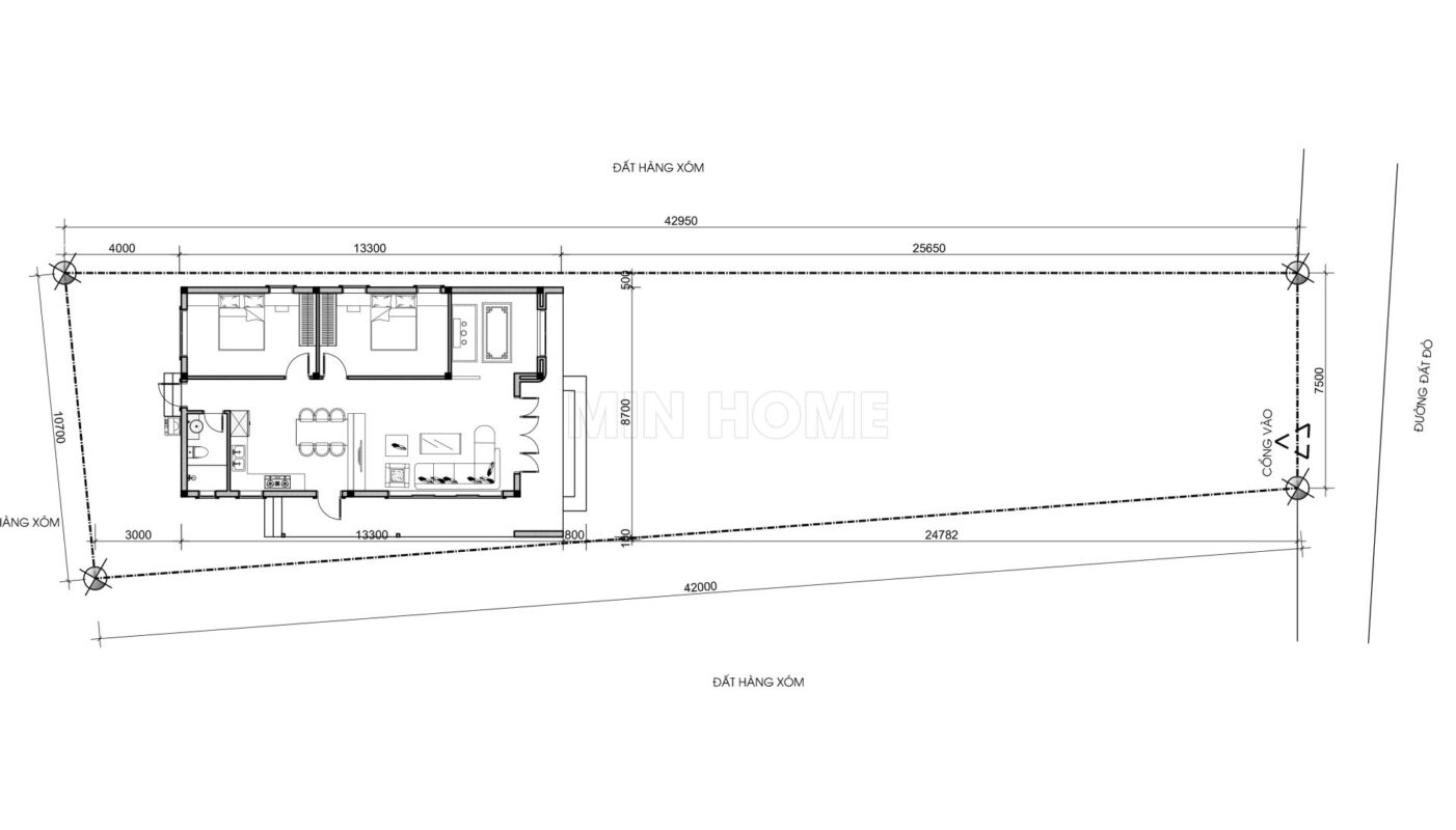
dinh vi
Mặt bằng định vị công trình

Không gian rộng nhất của ngôi nhà này dành cho khu vực phòng khách, vị trí đẹp và có ánh sáng tự nhiên đầy đủ. Bên cạnh đó là phòng thờ được bố trí trang nghiêm và yên tĩnh. Khu vực nấu ăn được đặt ngay kế bên phòng khách, với căn bếp này có cửa phụ nối ra khu vực sân chơi bên ngoài. Ngoài ra, ngôi nhà mái Nhật hiện đại này còn có hai phòng ngủ, các phòng được bố trí rộng rãi với hướng đặt cửa sổ hợp lý.

cong nang
Mặt bằng bố trí công năng nhà 1 tầng
Đánh giá ngay

Để lại một bình luận

Email của bạn sẽ không được hiển thị công khai. Các trường bắt buộc được đánh dấu *