Trong bài viết này, Min Home mời bạn cùng khám phá một mẫu nhà vườn mini mái bằng hiện đại được đội ngũ triển khai thực tế tại TP Hồ Chí Minh. Công trình hướng tới nhóm khách hàng yêu thích không gian sống gọn gàng, trẻ trung, chi phí hợp lý nhưng vẫn đảm bảo tính thẩm mỹ và khả năng sử dụng lâu dài. Ngay từ tổng thể bên ngoài, ngôi nhà đã tạo được thiện cảm nhờ bố cục rõ ràng, hình khối dứt khoát và cách xử lý mặt tiền đơn giản mà tinh tế.
Thông tin nhà vườn mini 1 tầng mái bằng
| Chủ đầu tư: Chú Phạm Hoàng Ngọc | Địa chỉ: An Hải, Phước Hải, TP Hồ Chí Minh |
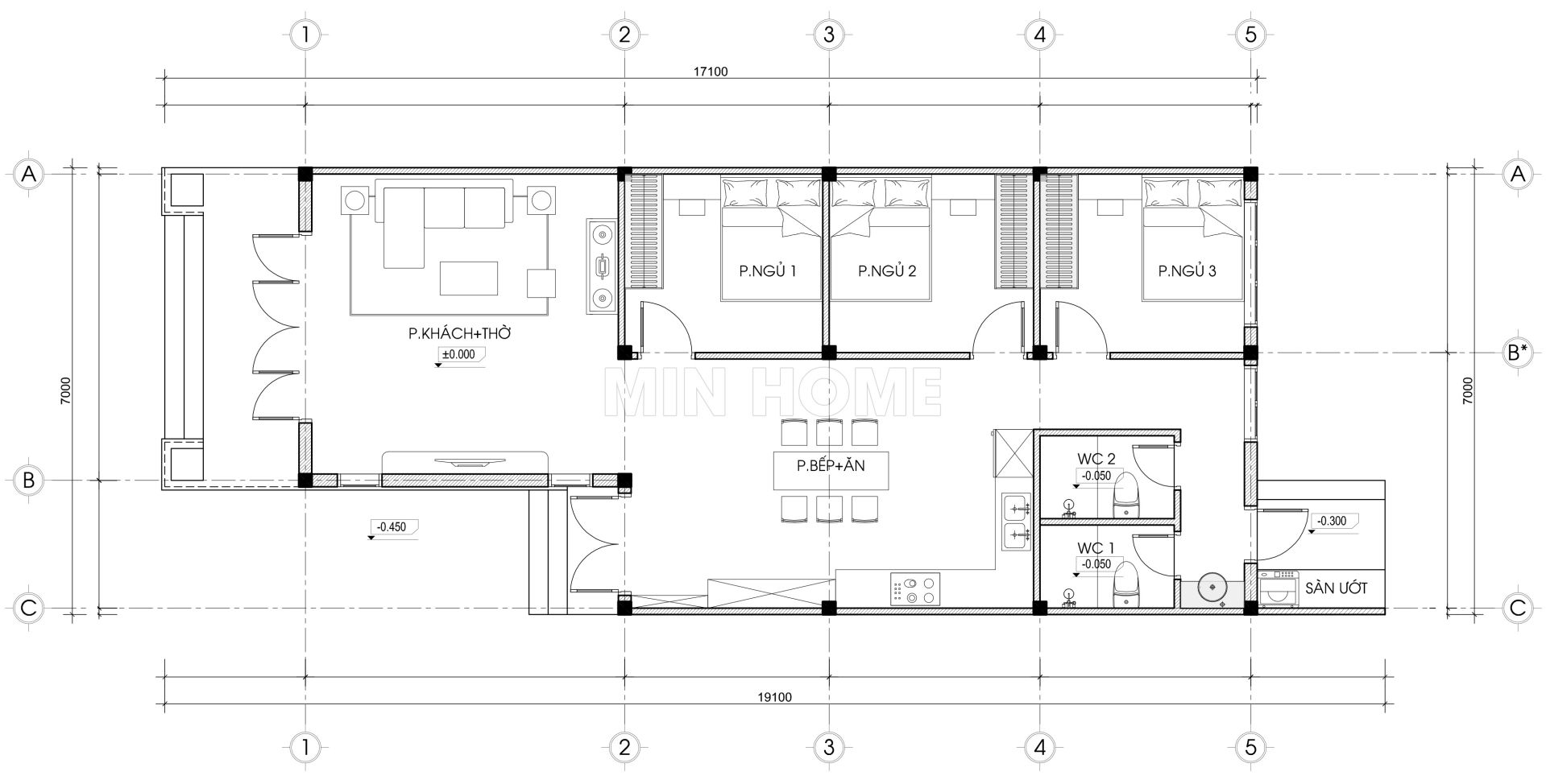
| Mặt tiền: 7m | Kích thước xây dựng: 7 x 19,1m |
| Số tầng: 1 tầng | Loại hình: Nhà mái bằng hiện đại |
| Tổng diện tích: 93m2 | |
| Công năng:
Phòng khách + thờ, phòng bếp, 3 phòng ngủ, 2 wc, sân ướt |
|
| Đơn vị thiết kế: CÔNG TY TNHH THIẾT KẾ & XÂY DỰNG MINHOME | |
Không gian cao thoáng, tận dụng tối đa ánh sáng tự nhiên cho mẫu thiết kế nhà vườn mini
Thay vì chạy theo các chi tiết trang trí cầu kỳ, Min Home lựa chọn lối thiết kế hiện đại với các mảng khối vuông vức, đường nét thẳng gọn và tỷ lệ cân đối. Kiểu dáng này không chỉ phù hợp với quỹ đất phổ biến tại TP Hồ Chí Minh mà còn giúp tối ưu chi phí xây dựng, rút ngắn thời gian thi công và dễ bảo trì về sau.
Một trong những điểm đáng chú ý nhất của mẫu nhà vườn mini này chính là hệ mái bằng đua rộng ra phía trước. Phần mái được tính toán đua dài khoảng 1,5m đóng vai trò như một lớp che nắng mưa hiệu quả cho toàn bộ mặt tiền. Nhờ đó, khu vực cửa chính và tường ngoài hạn chế được tác động trực tiếp của thời tiết, giúp công trình giữ được độ bền và vẻ mới lâu hơn theo thời gian.

Không dừng lại ở công năng che chắn, phần mái còn được Min Home xử lý thẩm mỹ khá kỹ lưỡng cho mẫu nhà vườn mini này. Hệ đèn LED âm trần ánh sáng trắng được lắp đặt gọn gàng nên khi đêm xuống sẽ tạo nên hiệu ứng ánh sáng dịu nhẹ làm nổi bật các mảng tường và khối kiến trúc bên dưới. Với những ngôi nhà có diện tích vừa phải, cách bố trí ánh sáng này giúp tổng thể trở nên sang trọng và ấm cúng hơn mà không cần đầu tư quá nhiều chi phí.

Một ưu điểm lớn khác của công trình là chiều cao thông thủy được thiết kế lên tới khoảng 4m. Nhờ đó, không gian bên trong luôn có cảm giác thoáng đãng, dễ chịu, hạn chế tình trạng nóng bức hay bí khí thường gặp ở nhà thấp tầng tại khu vực đô thị.
Khoảng cách từ mái hiên đến hệ cửa chính đạt khoảng 1,2m tạo nên một lớp không gian đệm vừa đủ để không khí lưu thông tốt hơn. Kết hợp với các mảng cửa kính lớn, ánh sáng tự nhiên có thể dễ dàng lan tỏa vào sâu bên trong nhà giúp giảm phụ thuộc vào đèn điện ban ngày và mang lại cảm giác gần gũi, dễ chịu cho người sử dụng.

Về mặt ngoại thất, Min Home lựa chọn giải pháp ốp đá sáng màu vân nhẹ cho khu vực mặt tiền. Tông màu trắng pha xám giúp ngôi nhà trông sạch sẽ, hiện đại và tạo hiệu ứng thị giác mát mẻ giữa không gian xung quanh. Đây là gam màu rất được ưa chuộng trong các mẫu nhà vườn mini hiện nay bởi dễ phối, ít lỗi mốt và phù hợp với nhiều độ tuổi sử dụng.
Để tránh cảm giác đơn điệu, một số mảng tường được nhấn nhá bằng tông màu xanh dịu tạo sự tương phản vừa đủ nhưng vẫn giữ được tổng thể hài hòa, cách phối màu này giúp ngôi nhà trông trẻ trung hơn mà không gây rối mắt.

Toàn bộ hệ cửa của ngôi nhà sử dụng cửa kính khung nhôm giúp mở rộng tầm nhìn và tăng khả năng lấy sáng tự nhiên. Việc sử dụng kính còn giúp kết nối không gian bên trong với khoảng sân vườn bên ngoài, mang lại cảm giác thoáng và gần gũi với thiên nhiên. Riêng cửa chính được xử lý thêm chi tiết trang trí kim loại ở trung tâm vừa tạo điểm nhấn nhẹ cho mặt tiền vừa thể hiện sự chỉn chu trong thiết kế. Đây là lựa chọn phù hợp với những gia chủ yêu thích phong cách hiện đại nhưng vẫn muốn có một chút điểm nhấn tinh tế.

Ngoài sảnh chính, ngôi nhà còn có sảnh phụ được bố trí lệch dẫn thẳng vào khu vực bếp. Lối đi này giúp việc di chuyển trong sinh hoạt hằng ngày trở nên thuận tiện hơn, đặc biệt khi cần mang đồ đạc, thực phẩm mà không ảnh hưởng đến không gian tiếp khách phía trước. Phía sau nhà là lối đi phụ kết hợp sân ướt giúp tăng khả năng thông gió và hỗ trợ tốt cho các hoạt động giặt giũ, sơ chế. Nhờ cách tổ chức giao thông hợp lý này mà không gian bên trong luôn giữ được sự thông thoáng và mát mẻ.

Cuối cùng, mái bằng là lựa chọn giúp gia chủ tiết kiệm đáng kể chi phí xây dựng so với các kiểu mái phức tạp khác. Đồng thời, kết cấu này cũng tạo điều kiện thuận lợi cho việc nâng tầng hoặc cải tạo trong tương lai nếu có nhu cầu mở rộng không gian sống.
Mặt bằng công năng gọn gàng, dễ sử dụng
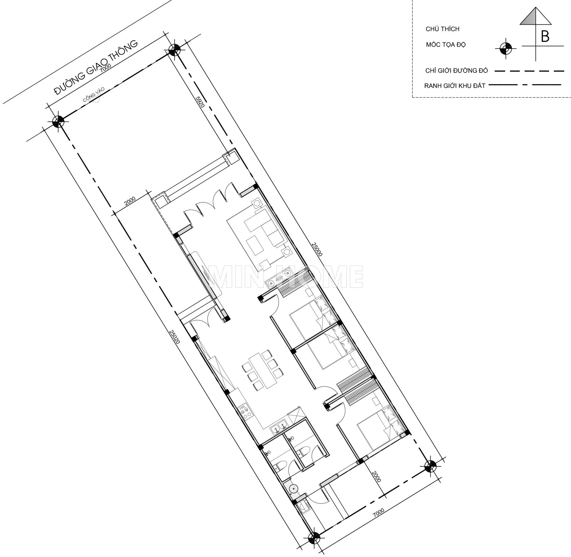
Khu đất có kích thước 7x25m, căn nhà vườn mini được xây lùi về phía sau để chừa lại khoảng sân trước làm không gian đệm. Hướng nhà Tây Bắc được giữ theo hiện trạng khu đất giúp tối ưu chi phí và phù hợp với điều kiện thực tế tại đô thị lớn.

Với diện tích sử dụng khoảng 93m2m2, mặt bằng công năng được Min Home bố trí khoa học gồm phòng khách kết hợp khu vực thờ đặt gần cửa chính vừa thuận tiện tiếp khách vừa đảm bảo sự trang nghiêm cần thiết. Khu bếp nằm liền kề có lối kết nối với sảnh phụ giúp việc nấu nướng thoải mái và hạn chế ám mùi.

Không gian nghỉ ngơi gồm 3 phòng ngủ được phân chia hợp lý để đảm bảo riêng tư cho từng thành viên. Hai khu vệ sinh bố trí tách biệt được đặt gọn về cuối nhà để thuận tiện sử dụng và dễ vệ sinh. Sân ướt phía sau là điểm cộng giúp tổng thể công năng trở nên thực tế và phù hợp với sinh hoạt gia đình Việt.


