Xu hướng thiết kế nhà lô phố hiện đại đang ngày càng trở nên phổ biến. Kiến trúc này mang đến cho chủ sở hữu một “tổ ấm” đẹp mắt, thời thượng cùng một không gian sống thoải mái, tiện nghi. Cùng đến với mẫu thiết kế nhà đẹp, nhà phố 2 tầng của gia đình anh Tú ở Hưng Yên mà Min Home sẽ chia sẻ trong bài viết hôm nay nhé!
Thông tin chung công trình nhà phố 2 tầng
| Chủ đầu tư: Anh Ngô Tuấn Tú | Địa chỉ: Tiên Lữ, Hưng Yên |
| Mặt tiền: 4,8m | Kích thước xây dựng: 4,8 x 15,7m |
| Số tầng: 2 tầng | Loại hình: Nhà phố mái bằng hiện đại |
| Tổng diện tích: 157m2 | |
Công năng:
|
|
| Đơn vị thiết kế: CÔNG TY TNHH THIẾT KẾ & XÂY DỰNG MINHOME | |
Ngoại thất đẹp long lanh của mẫu nhà phố 2 tầng
Ngôi nhà phố 2 tầng mang phong cách kiến trúc hiện đại, ngoại thất giản lược những chi tiết trang trí rườm rà mà nhấn mạnh vào những hình khối khoẻ khoắn, kiên cố, các đường nét gọn gàng, chỉn chu kết hợp với sắc trắng tinh khôi chủ đạo đã mang đến cho mẫu nhà này một vẻ đẹp tối giản mà vẫn sang trọng và tinh tế.

Sử dụng tone màu trắng làm nền khiến cho những vật liệu trang trí hiện đại càng thêm nổi bật. KTS sử dụng hệ cửa kính khung nhôm xingfa, lan can làm bằng sắt sơn tĩnh điện, 2 tone màu đen – trắng tạo hiệu ứng tương phản bắt mắt, gây ấn tượng thu hút mọi ánh nhìn.

Hình khối của căn nhà phố 2 tầng được thiết kế vuông vắn đã mang đến sự trẻ trung, khỏe khoắn cho công trình. Bằng việc sử dụng bê tông cốt thép tạo ra mái bằng vững chãi, cứng cáp giúp công trình mang một sắc thái khác lạ, ấn tượng trong kiến trúc hiện đại.

Để mang đến không gian rộng mở thoáng đãng cùng với vẻ đẹp hiện đại, thời thượng cho ngôi nhà phố 2 tầng thì toàn bộ cửa được KTS làm bằng chất liệu khung nhôm kính xingfa, loại cửa 2 lớp cách âm cách nhiệt tốt, khung nhôm đen bền bỉ mang lại giá trị thẩm mỹ cao. Những ô cửa kính lớn còn có tính kết nối, giúp con người trở nên hài hoà, gần gũi với thiên nhiên hơn.

Thiết kế ban công rộng rãi tạo mái sảnh giúp che chắn nắng mưa hắt vào khu vực mặt tiền dưới tầng 1. Lan can được làm chất liệu sắt sơn tĩnh điện giúp cho công trình bớt đi phần nào thô cứng mà trở nên bay bổng, thanh thoát hơn. Đây cũng là không gian để các thành viên có thể ngồi chill chill ngắm cảnh thư giãn.


Ngôi nhà sử dụng hệ mái bằng với kiến trúc gọn gàng, không làm ảnh hưởng tới các công trình xung quanh. Ưu điểm lớn nhất của mái bằng là mang đến tính thẩm mỹ cao, sự bền bỉ, khả năng chống chịu tốt trước các tác động khắc nghiệt từ thiên nhiên.

Bản vẽ chi tiết công năng của mẫu nhà ống 2 tầng
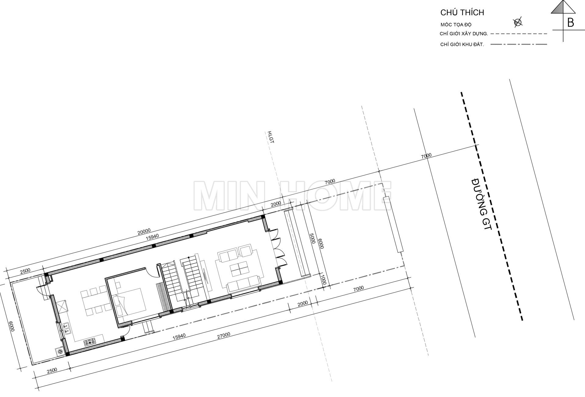
Dựa vào hoa tiêu có chữ B trên mặt bằng định vị, ngôi nhà phố 2 tầng nằm ở hướng Đông Nam, kích thước xây dựng 4,8 x 15,7m có hình dạng chữ nhật đẹp, vuông vắn giúp thuận lợi cho các KTS trong việc bố trí các phòng chức năng hợp lý, khoa học.

Mặt bằng định vị công trìnhKhông gian phòng khách được đặt gần cửa chính nên sẽ nhận được nhiều ánh sáng tự nhiên và gió mát. Nội thất căn phòng được bố trí gọn gàng, khoa học đảm bảo sự thuận tiện và thông thoáng. Cạnh cầu thang là phòng ngủ 01. Cuối nhà là phòng bếp ăn gọn gàng, tiện nghi, tại đây còn có một lối đi ra cửa sau giúp cho không khí trong nhà luôn được lưu thông.

Tiến lên tầng 2 có phòng thờ tôn nghiêm đặt phía trước, hướng bàn thờ thẳng hướng mặt tiền ngôi nhà, tại đây có một lối cửa mở ra ban công thoáng mát giúp gia tăng sinh khí, rất tốt về mặt phong thuỷ. Hai phòng ngủ được bố trí phía sau. Cuối cùng là khu vực vệ sinh chung của tầng.



