Nhà cấp 4 mái Nhật 4 phòng ngủ của gia đình anh Huấn tại Hưng Yên là mẫu nhà đẹp kết hợp hài hòa giữa ba yếu tố đặc trưng bao gồm kiểu nhà cấp 4, thiết kế mái Nhật, và bố trí 4 phòng ngủ phù hợp cho các gia đình muốn tiết kiệm chi phí xây dựng và có diện tích đất hạn chế. Cùng Min Home tham khảo chi tiết vẻ đẹp của căn nhà này trong bài viết dưới đây!
Thông tin mẫu nhà cấp 4 mái Nhật tại Hưng Yên
| Chủ đầu tư: Anh Nguyễn Đình Huấn | Địa chỉ: An Cảnh, Khoái Châu, Hưng Yên |
| Mặt tiền: 11m | Kích thước xây dựng: 11 x 20m |
| Số tầng: 1 tầng | Loại hình: Nhà mái Nhật hiện đại |
| Tổng diện tích: 110m2 | |
| Công năng:
Phòng khách, phòng thờ, phòng bếp, 4 phòng ngủ, 2 wc |
|
| Đơn vị thiết kế: CÔNG TY TNHH THIẾT KẾ & XÂY DỰNG MINHOME | |
Phối cảnh 3D nhà cấp 4 mái Nhật
Ngôi nhà cấp 4 mái Nhật được thiết kế hiện đại không có các chi tiết đắp vẽ, mà thay vào đó là đường nét, hình khối khỏe khoắn, vuông vức mang đến không gian sống nổi bật, trẻ trung Các vật liệu trang trí hiện đại cũng góp phần tạo nên nét đẹp thẩm mỹ của công trình bởi sự kết hợp hài hòa, ăn ý.

Màu trắng và xám là 2 màu đóng vai trò chủ đạo tạo nên vẻ đẹp của căn nhà. Tone màu trắng mang đến nét đẹp thanh tao, nhã nhặn, kết hợp cùng màu xám tạo sự sang trọng, trang nhã và hiện đại cho tổng thể ngôi nhà. Sự kết hợp này tạo nên một không gian thanh lịch, ấn tượng và đầy cuốn hút.

Mặt tiền ngôi nhà cấp 4 mái Nhật rộng 11m các kiến trúc sư đã thiết kế bố cục một cách hài hòa với hai phần rõ rệt. Một bên là cửa chính được sơn giả bê tông, tạo hiệu ứng ấn tượng với vẻ đẹp tối giản, hiện đại và mạnh mẽ. Bên còn lại được thiết kế như một ban công nhỏ, sử dụng sơn màu trắng thanh thoát kết hợp với khối đá ong ốp, tạo nên một điểm nhấn tự nhiên, đầy tinh tế.

Bên hông ngôi nhà cũng được thiết kế độc đáo với phần hình khối nhô ra là nơi lý tưởng để đặt bộ bàn trà nhỏ gọn để gia chủ cùng các thành viên thư giãn ngồi thưởng trà, trò chuyện, ngắm nhìn khung cảnh thiên nhiên và tận hưởng những khoảnh khắc yên bình, dễ chịu sau những giờ làm việc căng thẳng.

Ngôi nhà cấp 4 mái Nhật sử dụng 100% các ô cửa và vách làm bằng kính cường lực tạo sự thông thoáng, mát mẻ. Các ô cửa đều có kích thước lớn để dễ dàng lấy ánh sáng vào trong mang lại không khí tươi mới, cùng không gian sống thoáng đãng cho gia đình.
Ngôi nhà cấp 4 sử dụng hệ mái Nhật với thiết kế thanh thoát, nhẹ nhàng, giúp công trình trở nên mềm mại và uyển chuyển hơn. Mái Nhật có độ dốc vừa phải, tạo sự cân đối và hài hòa cho tổng thể kiến trúc đồng thời giúp công trình thoát nước vào mùa mưa. Kết hợp với ngói lợp cao cấp không chỉ đảm bảo tính thẩm mỹ mà còn có khả năng chống chịu tốt với thời tiết, mang đến sự bền vững cho căn nhà.

Các kiến trúc sư đã thiết kế những bồn cây, chậu hoa xung quanh nhà một cách hài hòa giúp không gian sống thêm trong lành, thư giãn, tạo sự thoải mái cho mọi người khi ở trong căn nhà của mình. Ánh đèn trên các diện tường và đèn âm trần trên mái cũng góp phần tạo nên vẻ đẹp lung linh nổi bật cho công trình vào ban đêm.
Cổng vào sử dụng khung thép hộp màu nâu, đen cùng tường bao bê tông kiên cố giúp bảo vệ an toàn cho gia đình. Cùng tường bao bê tông kiên cố giúp bảo vệ an toàn cho cả gia đình.

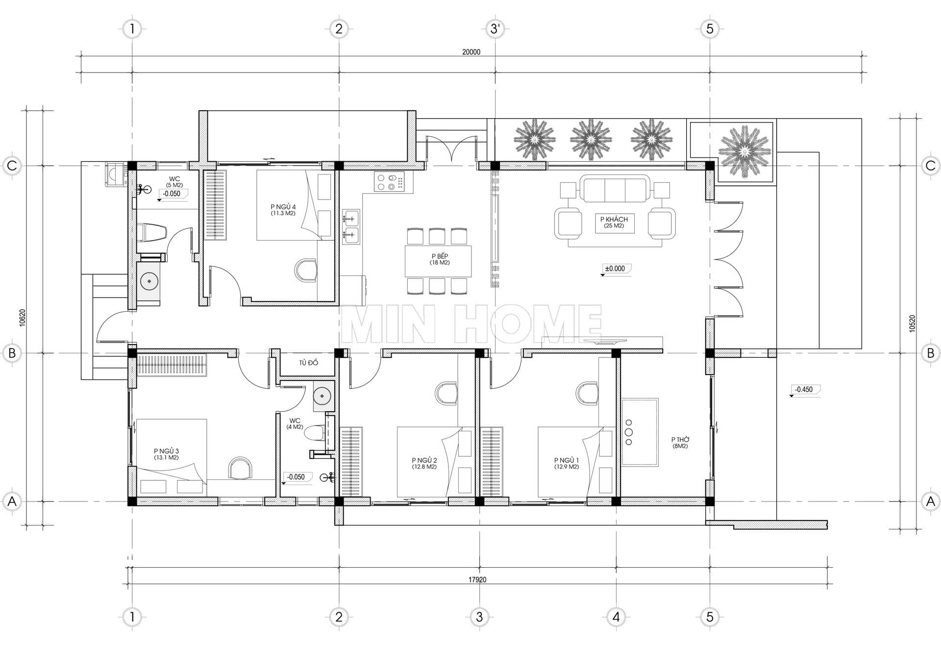
Mặt bằng bố trí công năng nhà cấp 4 mái Nhật 4 phòng ngủ
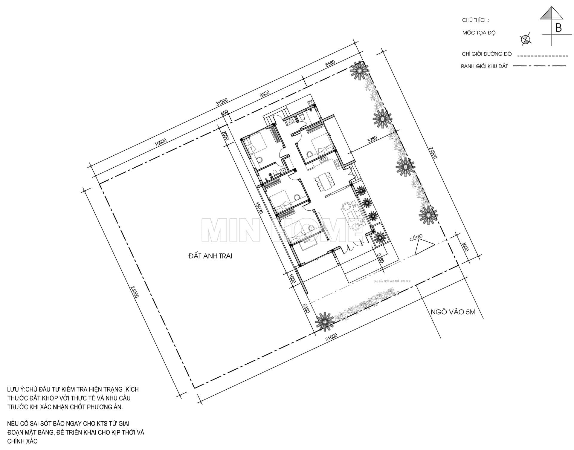
Về vị trí ngôi nhà cấp 4 mái Nhật có hướng chính nằm ở phía Đông Nam, có kích thước xây dựng là 11 x 20m. Với tổng diện tích sử dụng khoảng 110m² các kiến trúc sư đã bố trí công năng hài hòa, đảm bảo sinh hoạt tiện nghi cho các thành viên trong gia đình.

Bước vào từ sảnh chính đầu tiên là phòng khách thoáng mát nhờ ô cửa sổ lớn để lấy gió và ánh sáng. Căn phòng đủ rộng để bài trí đầy đủ các đồ nội thất cơ bản mang đến không gian đón khách, thư giãn thoải mái cho cả gia đình. Đối diện là phòng thờ có sử dụng vách ngăn riêng tạo sự trang nghiêm, thành kính cho không gian thờ cúng. Bàn thờ có hướng cùng với hướng chính của ngôi nhà giúp gia chủ đón tài lộc, may mắn.

Đi sâu vào trong là phòng bếp đặt gần sảnh phụ giúp thuận tiện khi di chuyển và giảm mùi khi đun nấu. Căn phòng khá rộng đủ để gia chủ đặt 1 tủ bếp hình chữ L cùng bộ bàn ăn 6 ghế sẽ là nơi cả gia đình quây quần, ấm cúng dùng bữa cùng nhau.
4 phòng ngủ có diện tích phù hợp để đặt các đồ nội thất, bố trí hợp lý mang đến một không gian nghỉ ngơi thoải mái cho các thành viên sau một ngày vất vả bên ngoài. Phòng ngủ 03 có thiết kế khép kín đảm bảo riêng tư khi sử dụng. Nhà vệ sinh chung đặt cuối nhà giúp mọi người thuận tiện khi sử dụng.


