Nhà cấp 4 mái Nhật với diện tích 90m² là mẫu nhà đẹp phù hợp dành cho gia đình có ít thành viên và chi phí thi công rẻ. Ngôi nhà không chỉ sở hữu vẻ ngoài sang trọng, thu hút người nhìn còn có công năng hài hòa bố trí hợp lý đảm bảo sinh hoạt cho cả gia đình. Cùng chúng tôi khám phá ý tưởng thiết kế của căn nhà này qua công trình của gia đình chú Quang ở Quảng Ninh trong bài viết dưới đây.
Thông tin mẫu nhà cấp 4 mái Nhật tại Quảng Ninh
| Chủ đầu tư: Chú Nguyễn Đức Quang | Địa chỉ: Hồng Phong, Đông Triều, Quảng Ninh |
| Mặt tiền: 7,5m | Kích thước xây dựng: 7,5 x 15,4m |
| Số tầng: 1 tầng | Loại hình: Nhà mái Nhật hiện đại |
| Tổng diện tích: 90m2 | |
| Công năng:
Phòng khách, phòng thờ, phòng bếp, 2 phòng ngủ, 1 wc |
|
| Đơn vị thiết kế: CÔNG TY TNHH THIẾT KẾ & XÂY DỰNG MINHOME | |
Phối cảnh 3D nhà 1 tầng mái Nhật
Ngôi nhà 1 tầng mái Nhật sở hữu vẻ đẹp ngoại thất sang trọng, vô cùng thu hút người nhìn bởi hình khối vuông vắn kết hợp cùng màu sắc ấn tượng giúp công trình toát lên vẻ đẹp mạnh mẽ, cuốn hút. Hệ mái Nhật có thiết kế thanh thoát, với độ dốc vừa phải đảm bảo thoát nước tốt vào mùa mưa, cùng ngói lợp cao cấp giúp căn nhà trở nên nổi bật, sang trọng.

Công trình sử dụng cột trụ vuông kiên cố tại sảnh chính, mang lại cảm giác bề thế, vững chãi. Thân cột được tạo điểm nhấn bằng đường kẻ chỉ hình chữ T sắc nét, trong khi phần chân cột được ốp gạch giả đá màu sắc tự nhiên giúp tăng tính thẩm mỹ.

Trên diện tường các kiến trúc sư đã sử dụng các đường kẻ chỉ âm có kích thước 30x20mm, được sắp xếp đều đặn với khoảng cách 420mm, không chỉ làm nổi bật các mảng tường mà còn góp phần tạo chiều sâu khi nhìn vào và tránh cảm giác đơn điệu cho kiến trúc của ngôi nhà.

Màu sắc là yếu tố quan trọng góp phần tạo nên vẻ đẹp của căn nhà, với màu trắng làm tone màu chủ đạo, mang đến nét đẹp thanh lịch, nhẹ nhàng nhưng không kém phần tinh tế. Kết hợp khéo léo cùng màu xám, xanh và các vật liệu trang trí như gạch ốp màu ghi, kính cường lực, đá granite và đá chẻ tự nhiên, tạo nên tổng thể hài hòa, hiện đại mà vẫn gần gũi với thiên nhiên.

Công trình có phần chân tường toàn bộ đều được ốp gạch trang trí màu xám, kết hợp với phần đế công trình ốp đá chẻ, mang đến cảm giác sang trọng, chắc chắn và bền vững cho căn nhà.
Từ sân vào sảnh chính, ngôi nhà 1 tầng mái Nhật sử dụng bậc ngũ giúp việc đi lại được thuận tiện hơn. Bậc cao 750mm góp phần nâng tổng thể căn nhà thêm cao và bề thế hơn. Toàn bộ bậc ốp đá Granite sang trọng kết nối từ sân lên sảnh chính vừa đảm bảo độ chắc chắn, vừa nâng tầm vẻ đẹp sang trọng cho lối vào.

Công trình có thiết kế rất nhiều cửa từ cửa phụ đến cửa sổ đảm bảo mọi căn phòng luôn thông thoáng, sạch sẽ. Toàn bộ hệ cửa của ngôi nhà 1 tầng mái Nhật sử dụng kính cường lực giúp tối ưu ánh sáng tự nhiên và tạo bầu khí tươi mới, mát mẻ cho không gian sinh hoạt.
Các kiến trúc sư còn tinh tế bố trí các bồn cây và chậu cây xanh phía trước nhà, tạo cảnh quan xanh mát và tăng cường lưu thông khí tự nhiên, giúp không gian sống luôn trong lành, dễ chịu.

Ngôi nhà 1 tầng mái Nhật được xây dựng trên khu đất rộng, gần đường giao thông, bên cạnh là hồ mát mẻ, phần diện tích xung quanh nhà sẽ được lát gạch sạch sẽ để phục vụ nhu cầu để xe, vui chơi cho trẻ nhỏ hoặc tổ chức các hoạt động ngoài trời của gia đình.
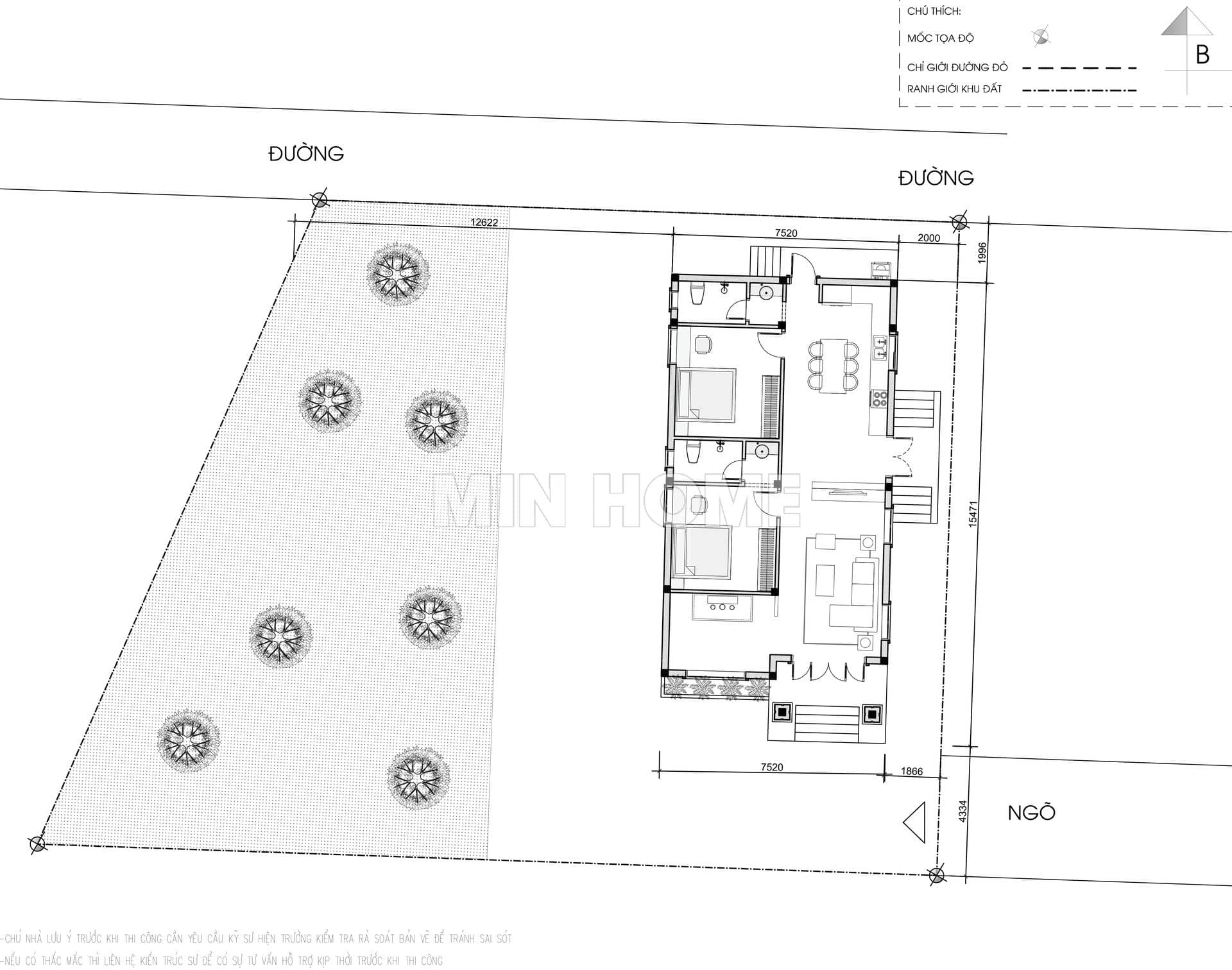
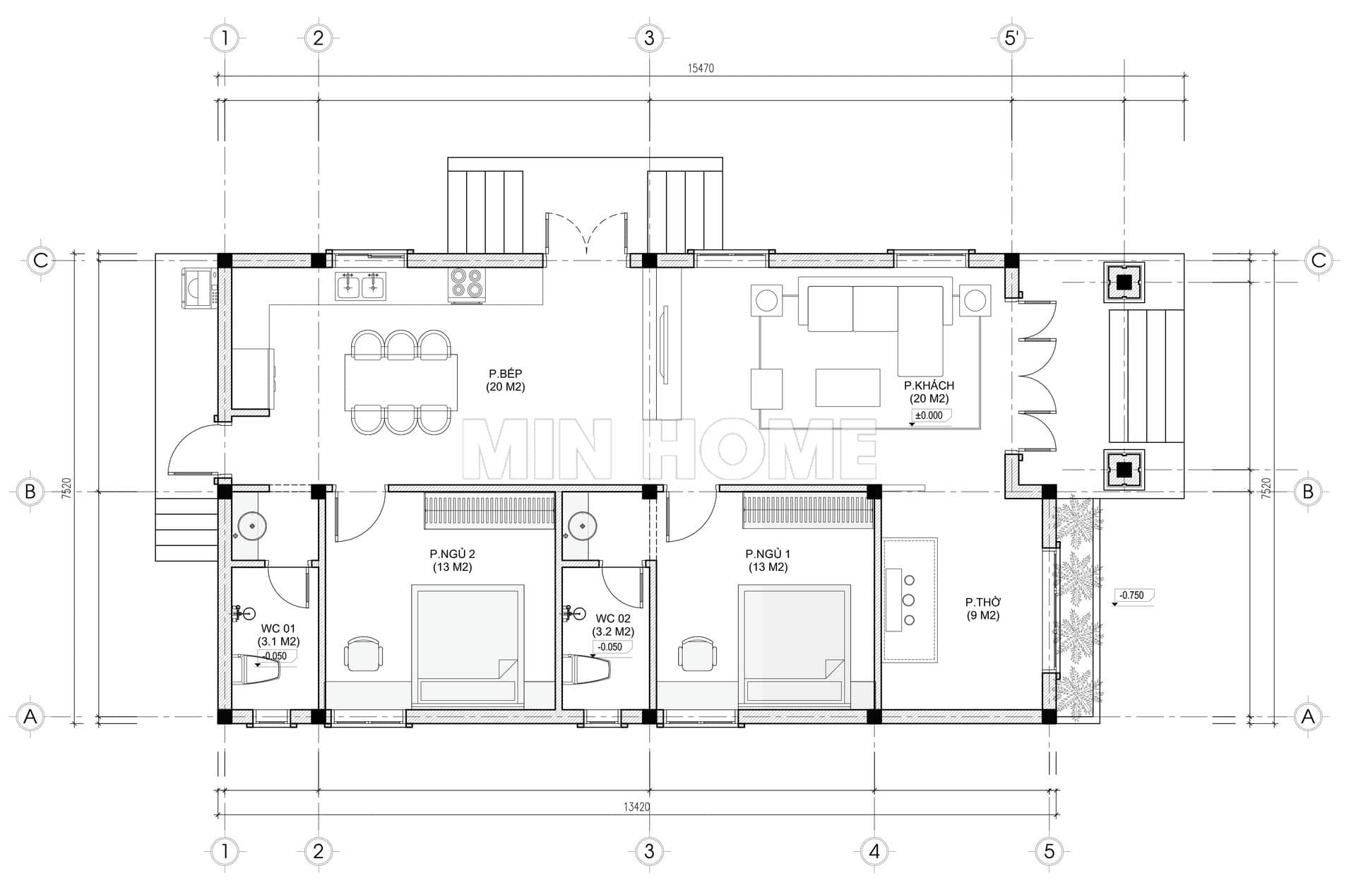
Mặt bằng bố trí công năng nhà 1 tầng mái Nhật 2 phòng ngủ
Về vị trí ngôi nhà 1 tầng mái Nhật có hướng chính nằm ở phía Nam, có kích thước xây dựng là 7,5 x 15,4m. Với tổng diện tích sàn sử dụng khoảng 90m² căn nhà được các kiến trúc sư bố trí khoa học phù hợp với hoạt động sinh hoạt của các thành viên trong gia đình.

Bước vào từ sảnh chính, đầu tiên là phòng khách rộng thoải mái để gia chủ bố trí nội thất mang đến không gian đón khách tiện nghi, thoải mái cho gia đình. Phòng thờ đặt ở vị trí tọa cát, hướng cát đảm bảo phong thủy giúp gia chủ đón tài lộc, may mắn.

Đi sâu vào trong là phòng bếp + ăn rộng đặt cạnh sảnh phụ giúp thuận tiện di chuyển và giảm mùi khi đun nấu. Căn bếp khá rộng thoải mái để đặt tủ bếp chữ L giúp tối ưu hóa không gian, cùng bộ bàn ăn 6 ghế là nơi chuẩn bị cho bữa ăn ấm cúng cho cả gia đình. 2 phòng ngủ có nội thất đầy đủ mang đến sự dễ chịu, thoải mái khi sinh hoạt. Phòng ngủ 01 có thiết kế khép đảm bảo riêng tư, cho cá nhân phòng khi sử dụng. Nhà vệ sinh chung đặt cuối nhà đảm bảo riêng tư, kín đáo cho mọi người khi dùng.


